Информационная система
«Ёшкин Кот»

Скачать базу одним архивом
Скачать обновления
История создания базы
Карта сайта

Скачать Типовой проект 902-9-3 Альбом I. Архитектурно-строительная часть (вариант - стены панельные)

Дата актуализации: 10.08.2017

Типовой проект 902-9-3

Альбом I. Архитектурно-строительная часть (вариант - стены панельные)

Обозначение: Типовой проект 902-9-3
Обозначение англ: 902-9-3
Статус:действует
Название рус.:Альбом I. Архитектурно-строительная часть (вариант - стены панельные)
Дата добавления в базу:01.09.2013
Дата актуализации:05.05.2017
Оглавление:Содержание
Пояснительная записка
Чертежи марки "АР"
АР-1 План кровли. Спецификации. Перечень листов марки АР. Основные строительные показатели
АР-2 План на отм. ±0.000. Спецификация проемов и изделий дверей
АР-3 План на отм. 3.300. Элемент плана № 1. Экспликация помещений
АР-4 Разрезы 1-1,2-2
АР-5 Фасады 1-9,9-1,А-В,В-А. Типы остекления
АР-6 План раскладки асбестоцементных листов подшивного потолка
АР-7 Планы полов. Экспликация полов. Ведомость внутренних отделочных работ
АР-8 Перегородки из деревянных щитов. Щит Т-1-Т-3
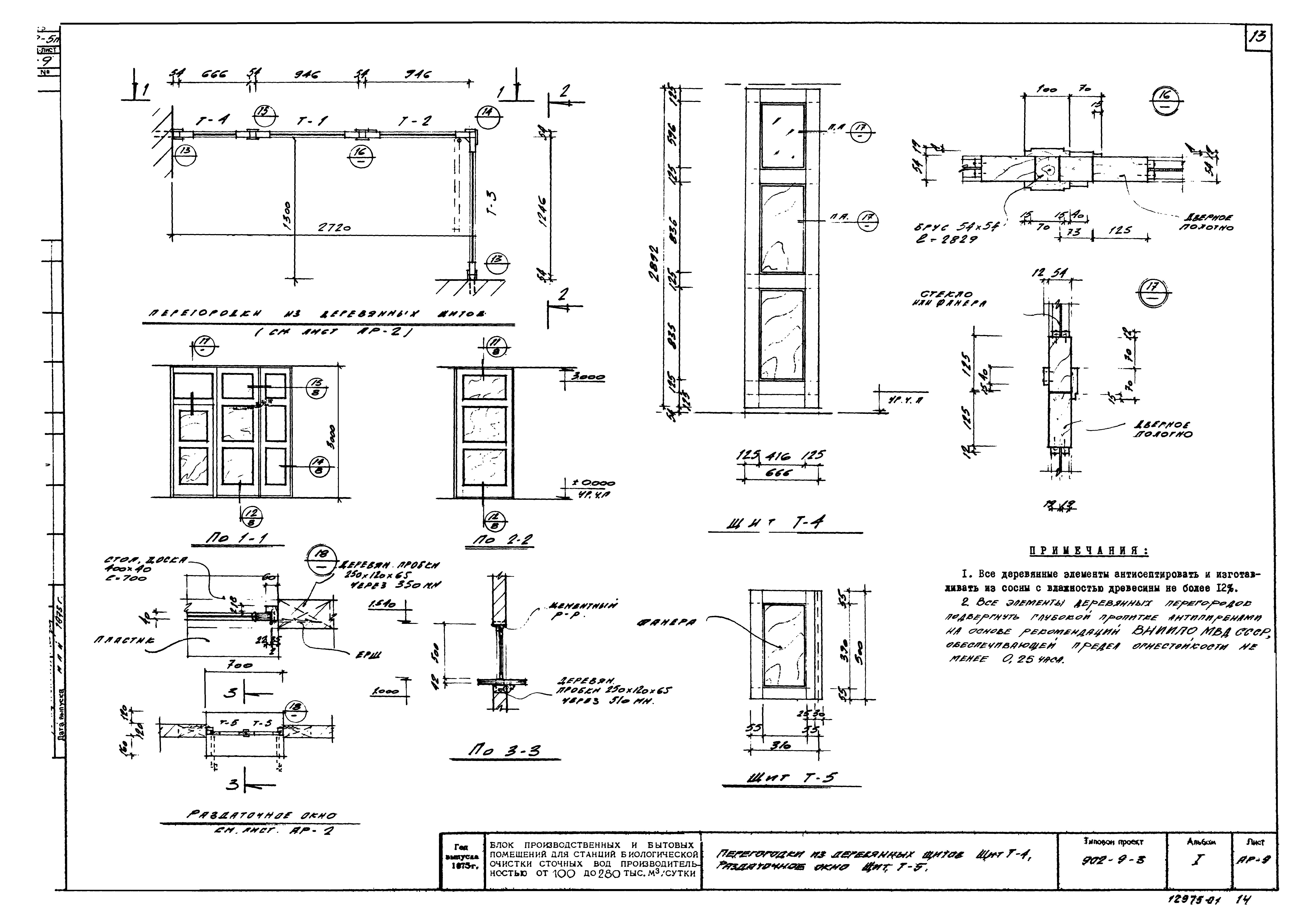
АР-9 Перегородки из деревянных щитов. Щит Т-4
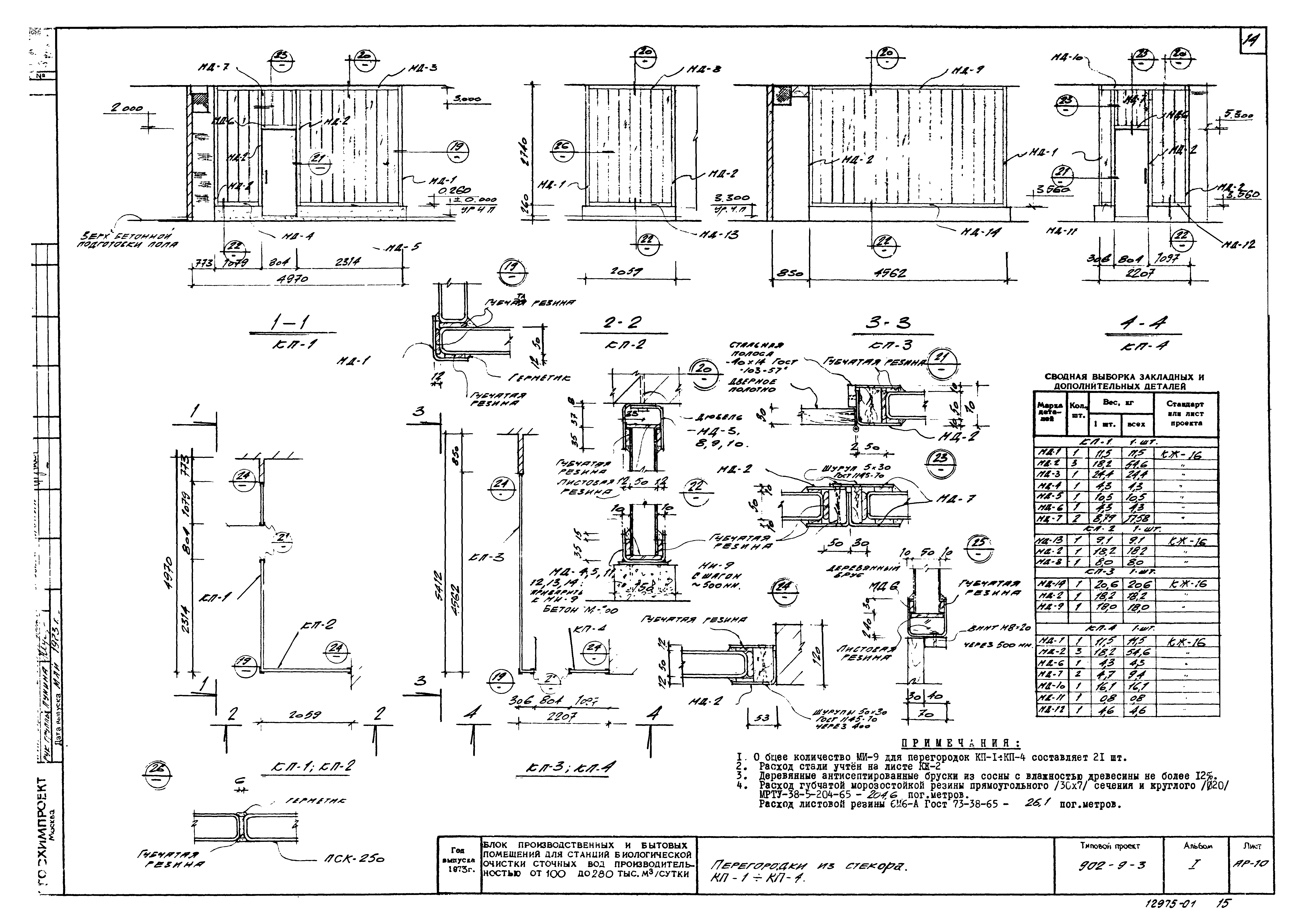
АР-10 Перегородки из стеклопрофилита КП-1-КП-4
АР-11 Планы приямка и подпольных каналов. Элементы планов 2-7
АР-12 План раскладки балок подшивного потолка
АР-13 Элементы планов полов
Чертежи марки "КЖ"
КЖ-1 Заглавный лист к листам марки КЖ
КЖ-2 Заглавный лист к чертежам марки КЖ (продолжение)
КЖ-3 План фундаментов
КЖ-4 Монтажные схемы колонн и ригелей
КЖ-5 Монтажные схемы диафрагм жесткости. Разрезы 1-1-4-4
КЖ-6 Монтажные схемы плит покрытия и перекрытия
КЖ-7 Монтажные схемы лестничных клеток. Раскладка накладных проступей
КЖ-8 Монтажные схемы стеновых панелей
КЖ-9 Опалубки колонн. К-17-75-3а (пр,лев), КЛ-17-75-3а (пр,лев), К2-13-75-3А, К2Л-13-75-3а (пр, лев) и лестничного марша ЛМ-58-14-17А
КЖ-10 Опалубка плит с отверстиями
КЖ-11 Дополнительные стенки и закладные детали к листам КЖ-6,10
КЖ-12 Опалубка диафрагм жесткости В-29-33А,В-29-33Б
КЖ-13 Армирование диафрагм жесткости В-29-33А,В-29-33Б
КЖ-14 Каркасы, сетки, спецификация арматуры к листам КЖ-12,13
КЖ-15 Каркасы, сетки, спецификация арматуры к листам КЖ-12,13
КЖ-16 Закладные детали, рамки, анкера
Разработан: Госхимпроект
Утверждён:25.02.1974 СоюзводоканалНИИпроект (SoyuzvodokanalNIIproject 40)
Расположен в:Техническая документация Строительство Справочные документы Типовые строительные конструкции, изделия и узлы Общероссийский строительный каталог Промышленные предприятия, здания и сооружения Здания и сооружения санитарно-технические Канализация Сооружения биологической (биохимической) очистки Станции биологической очистки сточных вод
Типовой проект 902-9-3Типовой проект 902-9-3Типовой проект 902-9-3Типовой проект 902-9-3Типовой проект 902-9-3Типовой проект 902-9-3Типовой проект 902-9-3Типовой проект 902-9-3Типовой проект 902-9-3Типовой проект 902-9-3Типовой проект 902-9-3Типовой проект 902-9-3Типовой проект 902-9-3Типовой проект 902-9-3Типовой проект 902-9-3Типовой проект 902-9-3Типовой проект 902-9-3Типовой проект 902-9-3Типовой проект 902-9-3Типовой проект 902-9-3Типовой проект 902-9-3Типовой проект 902-9-3Типовой проект 902-9-3Типовой проект 902-9-3Типовой проект 902-9-3Типовой проект 902-9-3Типовой проект 902-9-3Типовой проект 902-9-3Типовой проект 902-9-3Типовой проект 902-9-3Типовой проект 902-9-3Типовой проект 902-9-3Типовой проект 902-9-3Типовой проект 902-9-3Типовой проект 902-9-3

© 2013 Ёшкин Кот :-) Карта сайта