Информационная система
«Ёшкин Кот»

Скачать базу одним архивом
Скачать обновления
История создания базы
Карта сайта

Скачать Типовой проект 902-2-380.84 Альбом II. Строительная часть

Дата актуализации: 10.08.2017

Типовой проект 902-2-380.84

Альбом II. Строительная часть

Обозначение: Типовой проект 902-2-380.84
Обозначение англ: 902-2-380.84
Статус:не действует
Название рус.:Альбом II. Строительная часть
Дата добавления в базу:01.09.2013
Дата актуализации:05.05.2017
Оглавление:Содержание альбома
Конструкции железобетонные
КЖ-1 Общие данные (начало)
КЖ-2 Общие данные (продолжение)
КЖ-3 Общие данные (продолжение)
КЖ-4 Общие данные (продолжение)
КЖ-5 Общие данные (окончание)
КЖ-6 План группы отстойников и коммуникаций
КЖ-7 Отстойник. План 1-1. Сечения 2-2 - 5-5
КЖ-8 Отстойник. Сечения 6-6 - 11-11. Узел 1
КЖ-9 Отстойник. Днище. Армирование. Планы сеток и каркасов. Сечение 1-1
КЖ-10 Отстойник. Центральная часть. Армирование. Сечение 1-1 - 5-5
КЖ-11 Отстойник. Центральная часть. Армирование. Планы днища и перекрытия. Сечение 6-6 - 8-8. Узел 1
КЖ-12 Отстойник. Центральная часть. Армирование. Спецификация. Ведомости деталей и расход стали
КЖ-13 Отстойник. Схема расположения панелей и подкосно-ригельной системы. Сечения 1-1 - 3-3. Узел 1
КЖ-14 Отстойник. Узлы 2-8
КЖ-15 Отстойник. Схема расположения лотков
КЖ-16 Отстойник. Узлы 1 и 2
КЖ-17 Отстойник. Узлы 3 и 5
КЖ-18 Отстойник. Крепление водослива
КЖ-19 Отстойник. Выпускная камера ВМ1. Планы, сечения
КЖ-20 Отстойник. Выпускная камера ВМ1. Армирование. Сечения 1-1 - 7-7
КЖ-21 Отстойник. Выпускная камера ВМ1. Борт отстойников БМ1. Армирование. Спецификация
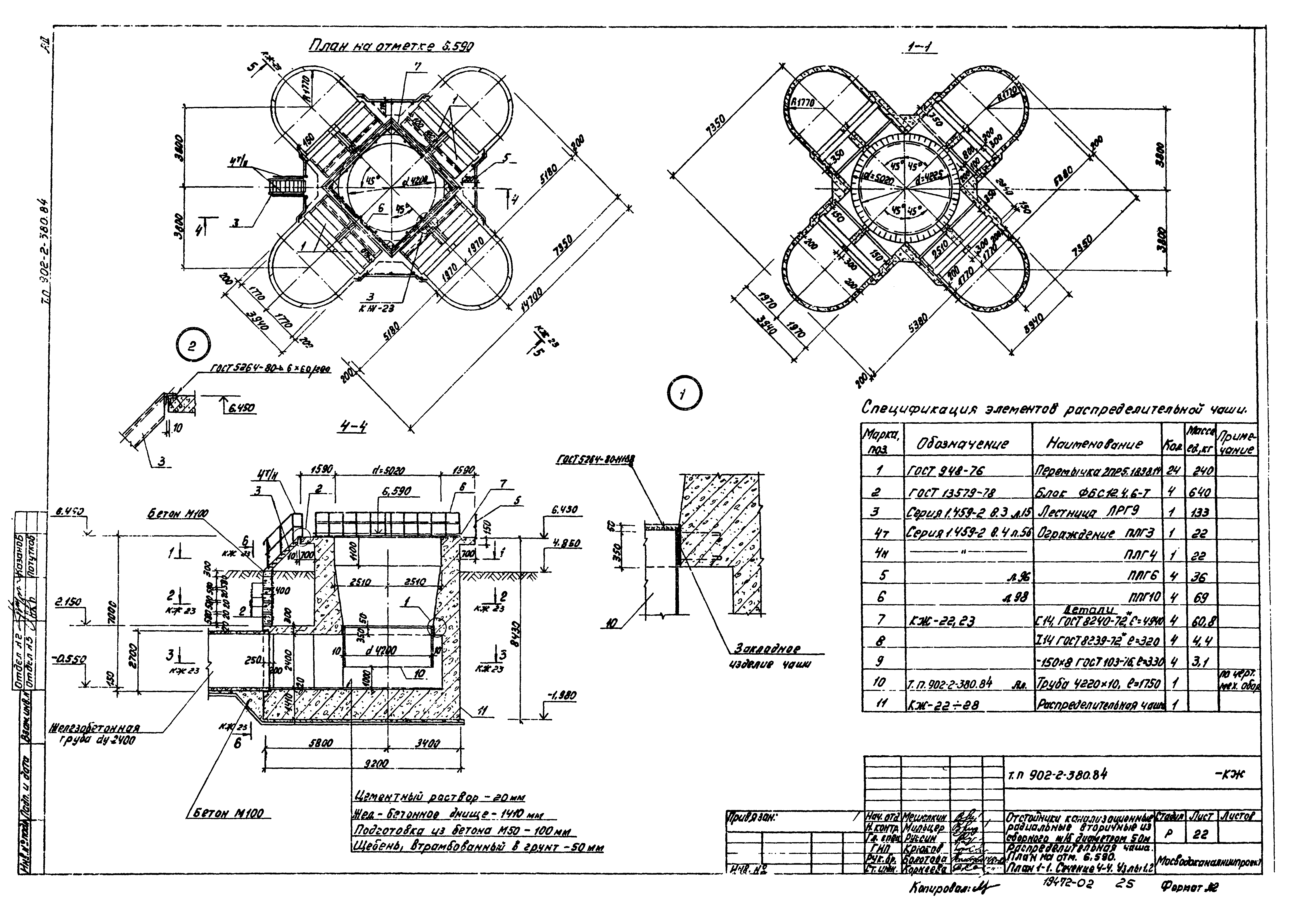
КЖ-22 Распределительная чаша. План на отм. 6.590. План 1-1. Сечение 4-4. Узлы 1 и 2
КЖ-23 Распределительная чаша. Планы 2-2,3-3. Сечения 5-5,6-6. Узел 9
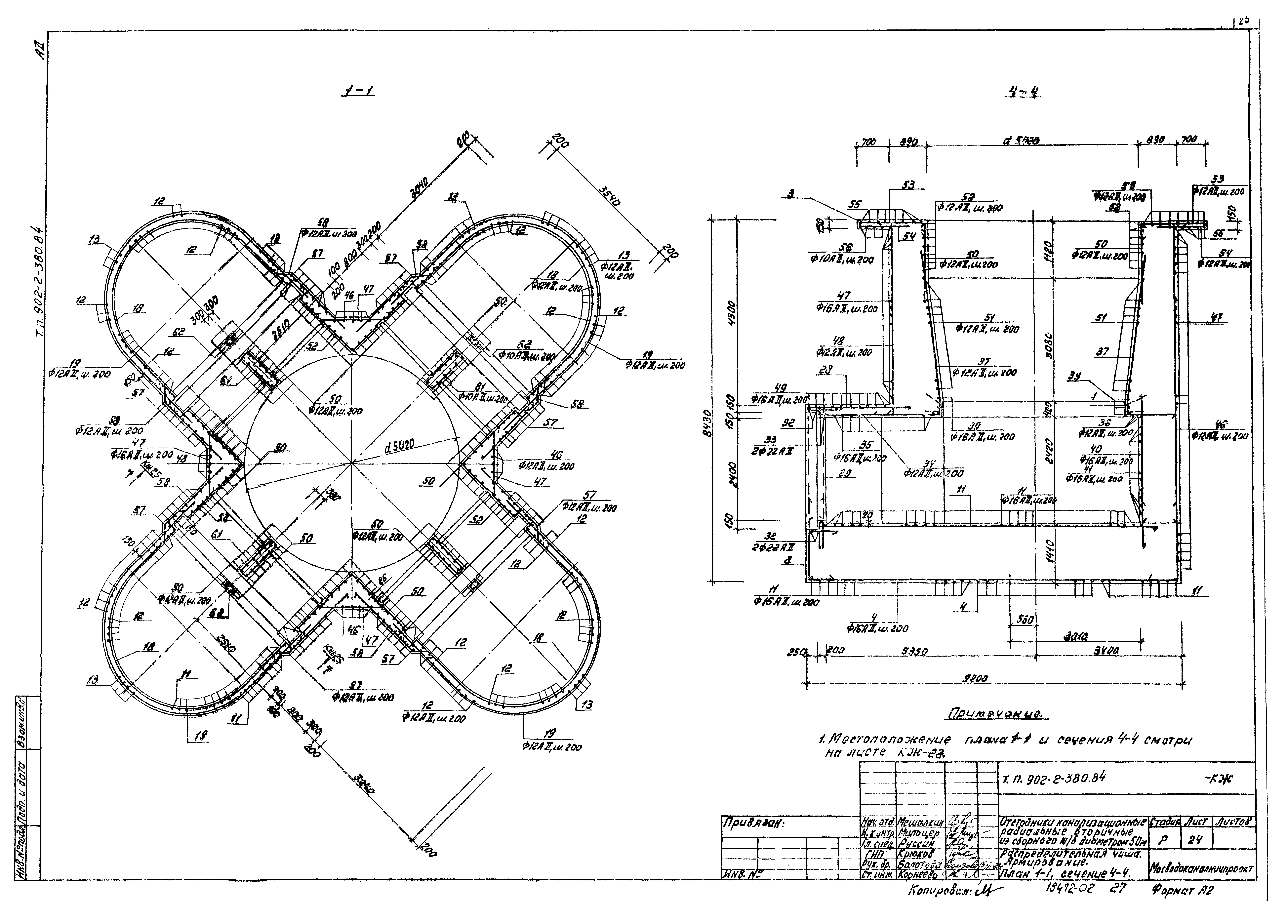
КЖ-24 Распределительная чаша. Армирование. План 1-1. Сечение 4-4
КЖ-25 Распределительная чаша. Армирование. План 2-2. Сечения 6-6,7-7
КЖ-26 Распределительная чаша. Армирование. План 3-3. Планы днища и перекрытия на отм. 2.150
КЖ-27 Распределительная чаша. Армирование. Сечения 5-5,8-8,9-9
КЖ-28 Распределительная чаша. Армирование. Ведомость деталей и спецификация
КЖ-29 Иловая камера ИК2. Планы 1-1,4-4. Сечения 2-2,3-3,5-5
КЖ-30 Иловая камера ИК2. Армирование. Сечения 1-1,2-2. Планы 3-3,4-4
КЖ-31 Иловая камера ИК2. Армирование. План перекрытия. Сечения 5-5 - 7-7. Узел 1
КЖ-32 Камеры ОВ1 и ОВ2. Планы. Сечения
КЖ-33 Камера ОВ1. Армирование. План. Сечения
КЖ-34 Камера ОВ2. Армирование. План, сечения
КЖ-35 Камеры ОВ3,ОВ4. План. Сечения
КЖ-36 Камера ОВ3. Армирование. Планы, сечения
КЖ-37 Камера ОВ4. Армирование. Планы. Сечения
КЖ-38 Камера ОВ7. Опалубка и армирование. Планы, сечения
КЖ-39 Камера ОВ8. Опалубка и армирование. Планы, сечения
Разработан: МосводоканалНИИпроект
Утверждён:20.12.1983 МосводоканалНИИпроект (312)
Расположен в:Техническая документация Строительство Справочные документы Типовые строительные конструкции, изделия и узлы Общероссийский строительный каталог Промышленные предприятия, здания и сооружения Здания и сооружения санитарно-технические Канализация Сооружения механической очистки Отстойники Отстойники радиальные вторичные
Типовой проект 902-2-380.84Типовой проект 902-2-380.84Типовой проект 902-2-380.84Типовой проект 902-2-380.84Типовой проект 902-2-380.84Типовой проект 902-2-380.84Типовой проект 902-2-380.84Типовой проект 902-2-380.84Типовой проект 902-2-380.84Типовой проект 902-2-380.84Типовой проект 902-2-380.84Типовой проект 902-2-380.84Типовой проект 902-2-380.84Типовой проект 902-2-380.84Типовой проект 902-2-380.84Типовой проект 902-2-380.84Типовой проект 902-2-380.84Типовой проект 902-2-380.84Типовой проект 902-2-380.84Типовой проект 902-2-380.84Типовой проект 902-2-380.84Типовой проект 902-2-380.84Типовой проект 902-2-380.84Типовой проект 902-2-380.84Типовой проект 902-2-380.84Типовой проект 902-2-380.84Типовой проект 902-2-380.84Типовой проект 902-2-380.84Типовой проект 902-2-380.84Типовой проект 902-2-380.84Типовой проект 902-2-380.84Типовой проект 902-2-380.84Типовой проект 902-2-380.84Типовой проект 902-2-380.84Типовой проект 902-2-380.84Типовой проект 902-2-380.84Типовой проект 902-2-380.84Типовой проект 902-2-380.84Типовой проект 902-2-380.84Типовой проект 902-2-380.84Типовой проект 902-2-380.84Типовой проект 902-2-380.84

© 2013 Ёшкин Кот :-) Карта сайта