Информационная система
«Ёшкин Кот»

Скачать базу одним архивом
Скачать обновления
История создания базы
Карта сайта

Скачать Типовой проект 330-018.85 Альбом II. Малые формы архитектуры

Дата актуализации: 10.08.2017

Типовой проект 330-018.85

Альбом II. Малые формы архитектуры

Обозначение: Типовой проект 330-018.85
Обозначение англ: 330-018.85
Статус:не определен законодательством
Название рус.:Альбом II. Малые формы архитектуры
Дата добавления в базу:01.09.2013
Дата актуализации:05.05.2017
Дата введения:25.02.1985
Оглавление:Ведомость чертежей основного комплекта
Ведомость чертежей основного комплекта. Ведомость ссылочных и прилагаемых документов. Ведомость спецификаций
Общие указания
Номенклатура
Чертежи основного комплекта марки АС
   Архитектурно-декоративный вход тип 1. Виды А, Б, В, Г. Планы. Сечения 1-1, 2-2
   Архитектурно-декоративный вход тип 2. Виды А, Б, В, Г. Планы. Схема раскладки сеток. Сечения 1-1, 2-2
   Архитектурно-декоративный вход тип 3. Виды А, Б, В, Г. Планы. Сечения 1-1, 2-2
   Архитектурно-декоративный вход тип 3. Скамья (фрагмент). Схема армирования стенки. Сечения 1-1 - 4-4
   Эстрада тип 1. Виды А, Б, В. План. Сечения 1-1, 2-2
   Эстрада тип 1. Кафедра. Виды А, Б, В. План. Сечения 1-1, 2-2
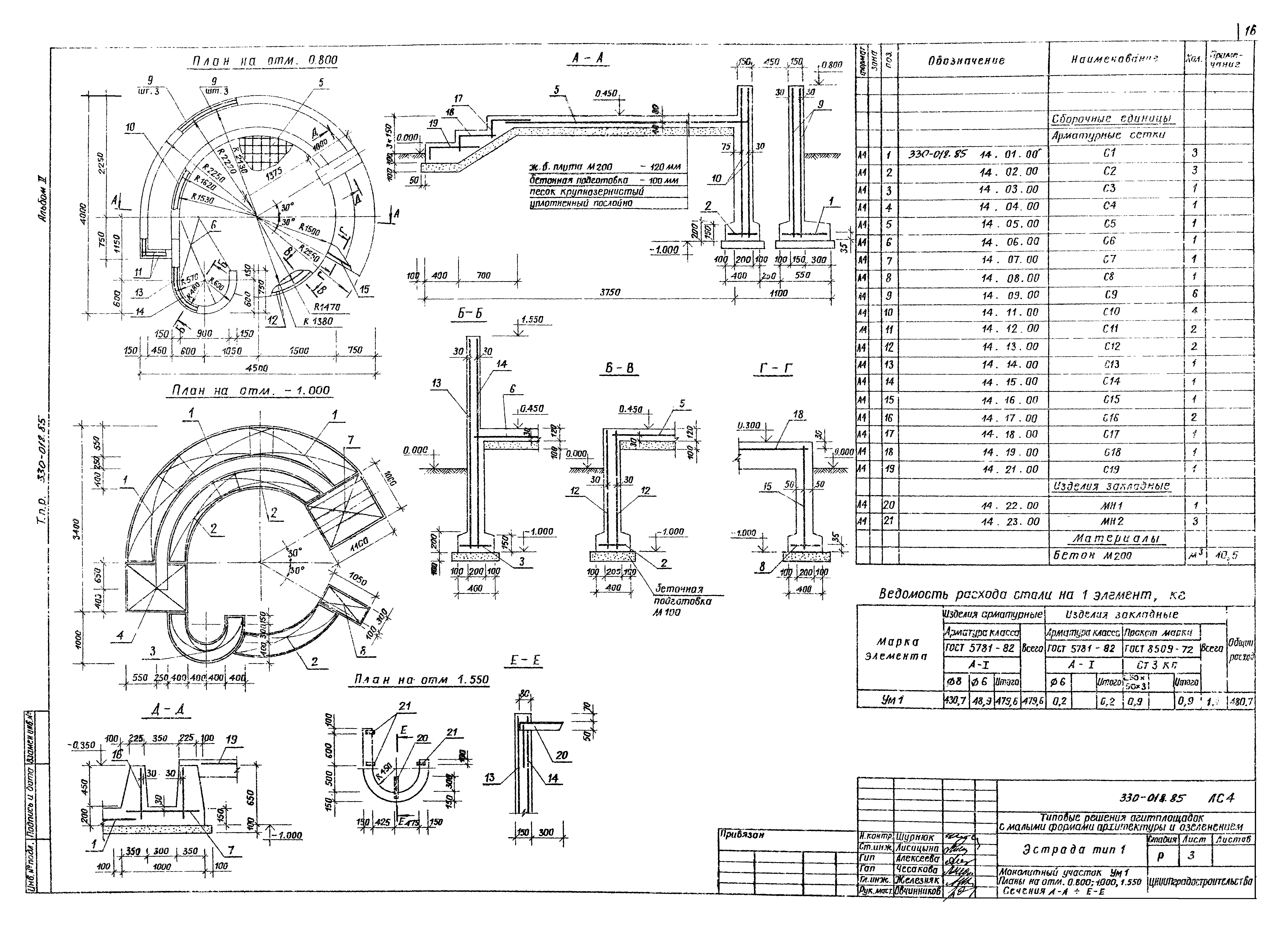
   Эстрада тип 1. Монолитный участок Ум1. Планы на отм. + 0.800; - 1.000; + 1.550. Сечения А-А - Е-Е
   Эстрада тип 2. План. Виды А, Б, В. Сечение 1-1. Узлы I, II
   Эстрада тип 2. Монолитный участок Ум1. Схема армирования. Сечения 1-1, 2-2. Узел I
   Эстрады тип 2 и 2а. Фрагмент фасада. Сечения 2-2 - 5-5
   Эстрады тип 2 и 2а. Элементы декоративные
   Эстрада тип 2а. План. Виды А, Б, В
   Эстрада тип 2а. Схема армирования монолитного участка Ум2. Сечения 3-3, 4-4
   Эстрада тип 3. Виды А, Б, В. План. Фрагменты 1, 2. Разрез 1-1
   Эстрада тип 3. План на отм. 0.000; - 0.800. План раскладки сеток. Фрагменты плана
   Эстрада тип 3. Сечения 1-1 - 8-8
   Эстрада тип 3. Разрез А-А. Сечения 1-1 - 3-3
   Эстрада тип 3. Фрагмент стенки экрана. Сечения 1-1 - 3-3. Узлы I, II, III
   Архитектурно-декоративный элемент с постаментом тип 1. План. Виды А и Б. Разрезы 1-1, 2-2, 3-3. Узел I
   Архитектурно-декоративный элемент с постаментом тип 2. План. Виды А и Б. Сечения 1-1, 2-2
   Архитектурно-декоративный элемент с постаментом тип 3. План. Виды А и Б. Сечения 1-1, 2-2. Узел I
   Устройство для посадки цветов и оформления газонов тип 1. План. Виды А, Б. Сечения 1-1 - 5-5
   Устройство для посадки цветов и оформления газонов тип 2. План. Виды А, Б. Сечения 1-1 - 5-5
   Устройство для посадки цветов и оформления газонов тип 3. Вид А. Фрагмент вида А. Сечения 1-1 - 3-3
   Декоративная стенка тип 1. План. Виды А, Б, В, Г. Сечение 1-1
   Декоративная стенка тип 1. План раскладки сеток. Сечения 1-1 - 6-6
   Декоративная стенка тип 2. План. Виды А, Б, В, Г. Сечения 1-1, 2-2, 3-3. Варианты блокировки
   Декоративная стенка тип 2. План фундаментов. Сечения 1-1 - 6-6
   Декоративная стенка тип 3. Виды А, Б, В. Разрез 1-1. Фрагмент обшивки
   Декоративная стенка тип 3. План на отм. - 0.050. Узел I. Сечение 1-1
   Декоративная стенка тип 3. Схема расположения
   Декоративная стенка тип 3. Сечения 1-1 - 6-6, А-А
   Пергола тип 1. Фасады 1-2, 2-1, Б-А, А-Б. Фрагмент 1. План. Сечение 1-1
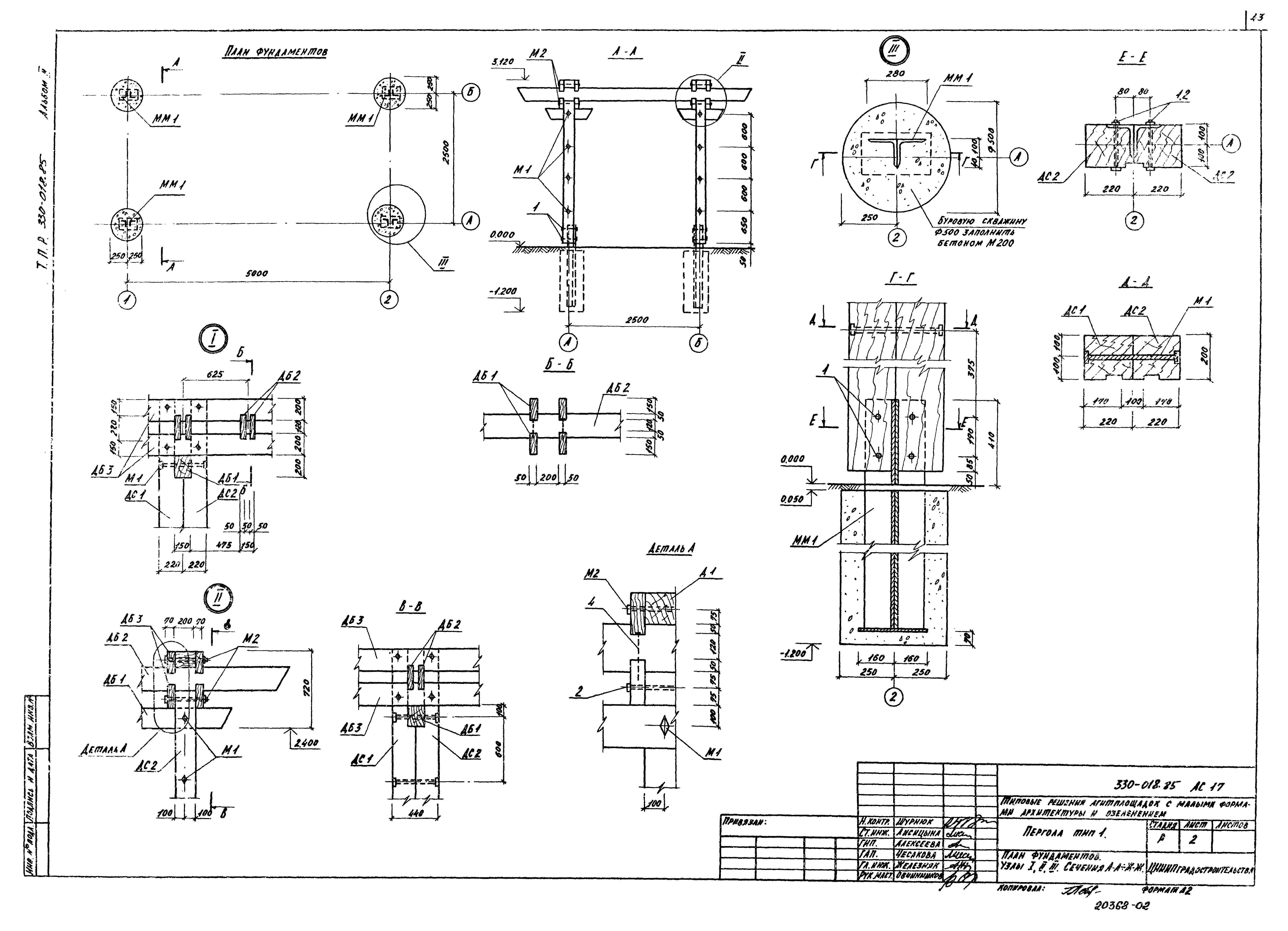
   Пергола тип 1. План фундаментов. Узлы I, II, III. Сечения А-А - Ж-Ж
   Пергола тип 2. Фасады 1-4, 4-1, А-Б. План. Сечения 1-1, 2-2
   Пергола тип 2. План фундаментов. План скамьи. Сечения А-А, Б-Б, В-В. Узлы I, II
   Пергола тип 3. Фасады 1-2, 2-1, Б-А, А-Б. План. Сечения 1-1 - 3-3. Узел I
   Декоративный фонтан тип 1. Фасад. План. Сечения 1-1 - 5-5. Узлы I, II
   Декоративный фонтан тип 2. Виды А, Б. План. Фрагмент плана. Сечение 1-1
   Декоративный фонтан тип 2. Схема армирования. Сечения 1-1, 2-2
   Декоративный фонтан тип 3. Виды А, Б, В, Г. Фрагмент плана. Сечение 1-1
   Декоративный фонтан тип 3. Раскладка сеток днища. Схема армирования
   Декоративный фонтан тип 3. Сечения 1-1, 2-2. Узлы I, II. Детали 1, 2
   Указатели и знаки с опорами и кронштейнами. Указатели тип 1, 2, 3. План. Виды
   Трельяжи тип 1, 2, 3. Фасады. Сечения 1-1 - 7-7. Узел I
   Флагштоки тип 1, 2, 3. Фасады, планы, разрезы 1-1, 2-2
   Флагшток тип 1. Фасад. Сечение А-А. Узел I
   Флагшток тип 2. Фасад. Разрезы 1-1, 2-2. Схема армирования
   Флагшток тип 3. План. Вид 1-1. Узлы I, II
   Флагшток тип 3. Фрагмент А. Узел III. Сечения 1-1, 2-2, 3-3
   Стенд тип 1 со световым табло тип 1. Виды А, Б, В. План. Разрезы 1-1, 2-2. Узлы I, II. Сечения 3-3, 4-4, 5-5
   Стенд тип 2 со световым табло тип 2. Виды А, Б. План. Сечения 1-1 - 4-4. Узлы I, II. Поз. 1
   Стенд тип 3. Виды А, Б. План. Сечения 1-1 - 5-5. Узлы I, II, III, IV. Варианты блокировок
   Стенд тип 3. постамент монолитный Пм1. Сечения А-А - Е-Е. Узел I
   Табло световое тип 3. Виды А и Б. План. Разрезы 1-1, 2-2, 3-3
Чертежи основного комплекта марки ЭО
   Стенд тип 1 со световым табло тип 1. Электроосвещение
   Стенд тип 2 со световым табло тип 2. Электроосвещение
   Табло световое тип 3. Электроосвещение
Чертежи основного комплекта марки ВК
   Общие данные
   Декоративный фонтан тип 1. План. Разрез 1-1. Узел I
   Декоративный фонтан тип 1. Разрез 2-2. "Ковер". Насадка
   Декоративный фонтан тип 2. Схема водопровода. "Ковер". План. Разрез 1-1
   Декоративный фонтан тип 2. План. Разрез 1-1. Узел I
   Декоративный фонтан тип 3. План. Схема водопровода. Разрез 1-1
   Декоративный фонтан тип 3. Узел I. "Ковер". Насадка с регулирующим тройником
Разработан: ЦНИИЭП градостроительства
Утверждён:08.02.1982 Госгражданстрой (Gosgrazhdanstroy 35)
Расположен в:Техническая документация Строительство Справочные документы Типовые строительные конструкции, изделия и узлы Общероссийский строительный каталог Малые формы архитектуры и элементы благоустройства Планировочные элементы благоустройства с малыми архитектурными формами и сооружениями Площадки отдыха
Типовой проект 330-018.85Типовой проект 330-018.85Типовой проект 330-018.85Типовой проект 330-018.85Типовой проект 330-018.85Типовой проект 330-018.85Типовой проект 330-018.85Типовой проект 330-018.85Типовой проект 330-018.85Типовой проект 330-018.85Типовой проект 330-018.85Типовой проект 330-018.85Типовой проект 330-018.85Типовой проект 330-018.85Типовой проект 330-018.85Типовой проект 330-018.85Типовой проект 330-018.85Типовой проект 330-018.85Типовой проект 330-018.85Типовой проект 330-018.85Типовой проект 330-018.85Типовой проект 330-018.85Типовой проект 330-018.85Типовой проект 330-018.85Типовой проект 330-018.85Типовой проект 330-018.85Типовой проект 330-018.85Типовой проект 330-018.85Типовой проект 330-018.85Типовой проект 330-018.85Типовой проект 330-018.85Типовой проект 330-018.85Типовой проект 330-018.85Типовой проект 330-018.85Типовой проект 330-018.85Типовой проект 330-018.85Типовой проект 330-018.85Типовой проект 330-018.85Типовой проект 330-018.85Типовой проект 330-018.85Типовой проект 330-018.85Типовой проект 330-018.85Типовой проект 330-018.85Типовой проект 330-018.85Типовой проект 330-018.85Типовой проект 330-018.85Типовой проект 330-018.85Типовой проект 330-018.85Типовой проект 330-018.85Типовой проект 330-018.85Типовой проект 330-018.85Типовой проект 330-018.85Типовой проект 330-018.85Типовой проект 330-018.85Типовой проект 330-018.85Типовой проект 330-018.85Типовой проект 330-018.85Типовой проект 330-018.85Типовой проект 330-018.85Типовой проект 330-018.85Типовой проект 330-018.85Типовой проект 330-018.85Типовой проект 330-018.85Типовой проект 330-018.85Типовой проект 330-018.85Типовой проект 330-018.85Типовой проект 330-018.85Типовой проект 330-018.85Типовой проект 330-018.85Типовой проект 330-018.85Типовой проект 330-018.85Типовой проект 330-018.85Типовой проект 330-018.85Типовой проект 330-018.85Типовой проект 330-018.85Типовой проект 330-018.85

© 2013 Ёшкин Кот :-) Карта сайта