Информационная система
«Ёшкин Кот»

Скачать базу одним архивом
Скачать обновления
История создания базы
Карта сайта

Скачать Типовой проект Альбом 1. Часть 1. Архитектурно-строительные чертежи ниже и выше отм. 0.000

Дата актуализации: 10.08.2017

Типовой проект

Альбом 1. Часть 1. Архитектурно-строительные чертежи ниже и выше отм. 0.000

Обозначение: Типовой проект
Статус:не действует
Название рус.:Альбом 1. Часть 1. Архитектурно-строительные чертежи ниже и выше отм. 0.000
Дата добавления в базу:01.09.2013
Дата актуализации:05.05.2017
Оглавление:АР-1 Заглавный лист (начало)
АР-2 Заглавный лист (продолжение)
АР-3 Заглавный лист (продолжение)
АР-4 Заглавный лист (окончание)
АР-5 Генплан. Вариант блокировки
АР-6 План с расстановкой мебели
АР-7 План на отметке 0.000
АР-8
АР-9 Фасад 1-3
АР-10 Фасад Б-А
АР-11 Фасад 3-1
АР-12 Фасад А-Б
АР-13 Разрезы 1-1 и 2-2
АР-14 План фундаментов (вариант сборных фундаментов)
АР-15 План подполья (вариант сборных фундаментов). Развертки фундаментов
АР-16 План свайного поля (вариант свайных фундаментов). Монтажный план цокольных панелей
АР-17 Монтажный план цокольных панелей. Развертки
АР-18 План подполья (вариант свайных фундаментов). Сечение 1-1
АР-19
АР-20 Монтажный план плит перекрытия над подпольем (вариант из арболитовых и ж-б панелей)
АР-21 Сводные спецификации сборных ж-б и металлических изделий ниже отм. 0.000
АР-22 Сводные спецификации сборных ж-б и металлических изделий ниже отм. 0.000 (вариант свайных фундаментов)
АР-23 Монтажные фасады 1-3,3-1,A-Б,Б-A
АР-24 Монтажный план стен. Монтажный план перекрытия
АР-25 План раскладки подстропильных ферм
АР-26 План раскладки стропильных щитов. План кровли. Разрез 1-1
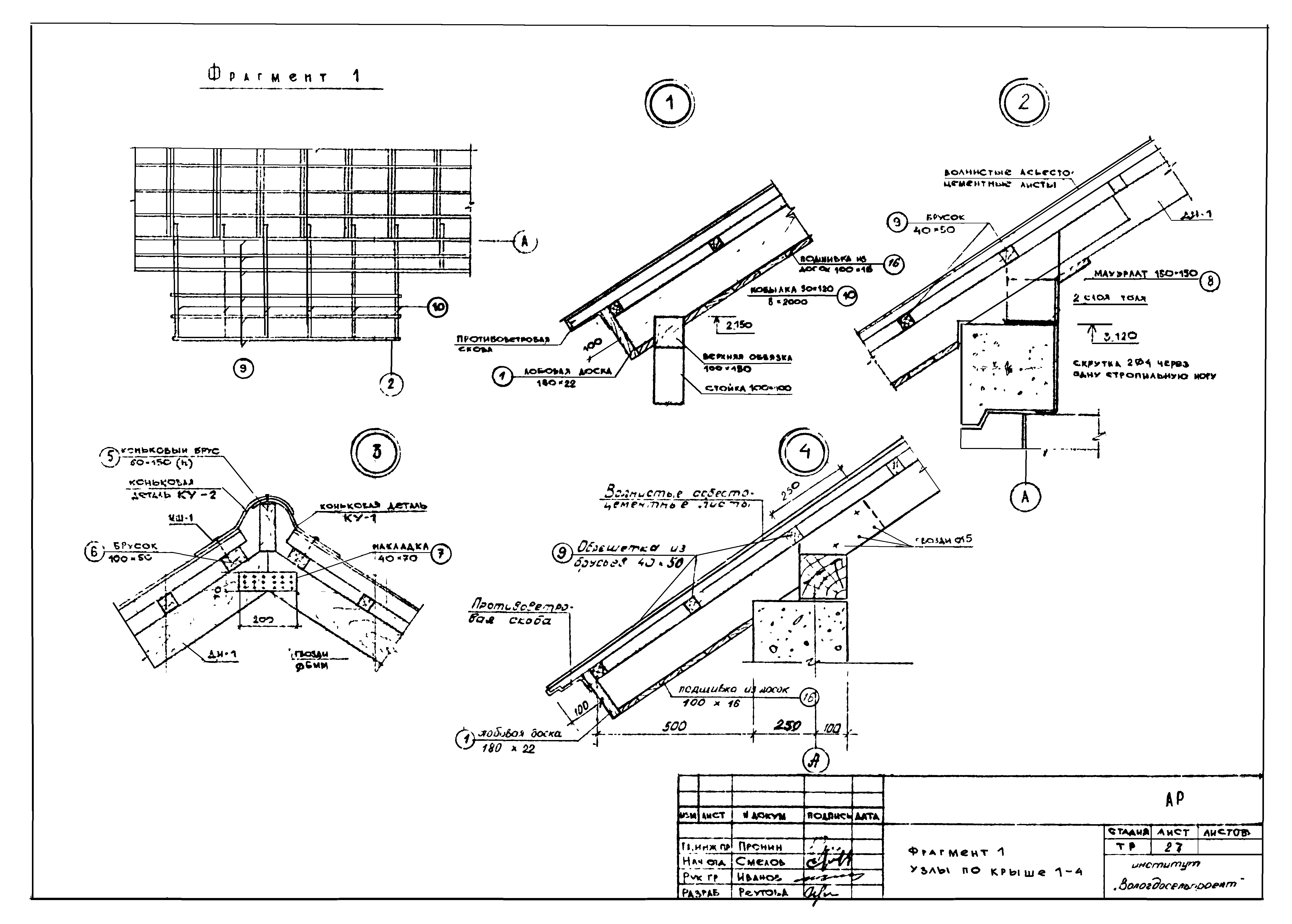
АР-27 Фрагмент 1. Узлы по крыше 1-4
АР-28 План отделочных работ
АР-29 Фасады и план веранды
АР-30 План балок, пола веранды. Разрезы 1-1,2-2
АР-31 Веранда. План раскладки стропил. Узлы 1-3
АР-32 Веранда. Узлы 4-9
АР-33 Вход
АР-34 Сводные спецификации
АР-35 Сводные спецификации
АР-36 Сводные спецификации древесины
Разработан: Вологдасельпроект
Утверждён:01.01.1981 Вологдасельпроект
Расположен в:Техническая документация Строительство Справочные документы Типовые строительные конструкции, изделия и узлы Разработанные другими министерствами, ведомствами и организациями
Типовой проект Типовой проект Типовой проект Типовой проект Типовой проект Типовой проект Типовой проект Типовой проект Типовой проект Типовой проект Типовой проект Типовой проект Типовой проект Типовой проект Типовой проект Типовой проект Типовой проект Типовой проект Типовой проект Типовой проект Типовой проект Типовой проект Типовой проект Типовой проект Типовой проект Типовой проект Типовой проект Типовой проект Типовой проект Типовой проект Типовой проект Типовой проект Типовой проект Типовой проект Типовой проект Типовой проект Типовой проект

© 2013 Ёшкин Кот :-) Карта сайта