Скачать Серия ПР-05-42.1 Ворота раздвижные 4,7х5,6 м (однопольные и двухпольные) с автоматическим открыванием и воздушными завесами. Электрическая частьДата актуализации: 10.08.2017 Серия ПР-05-42.1
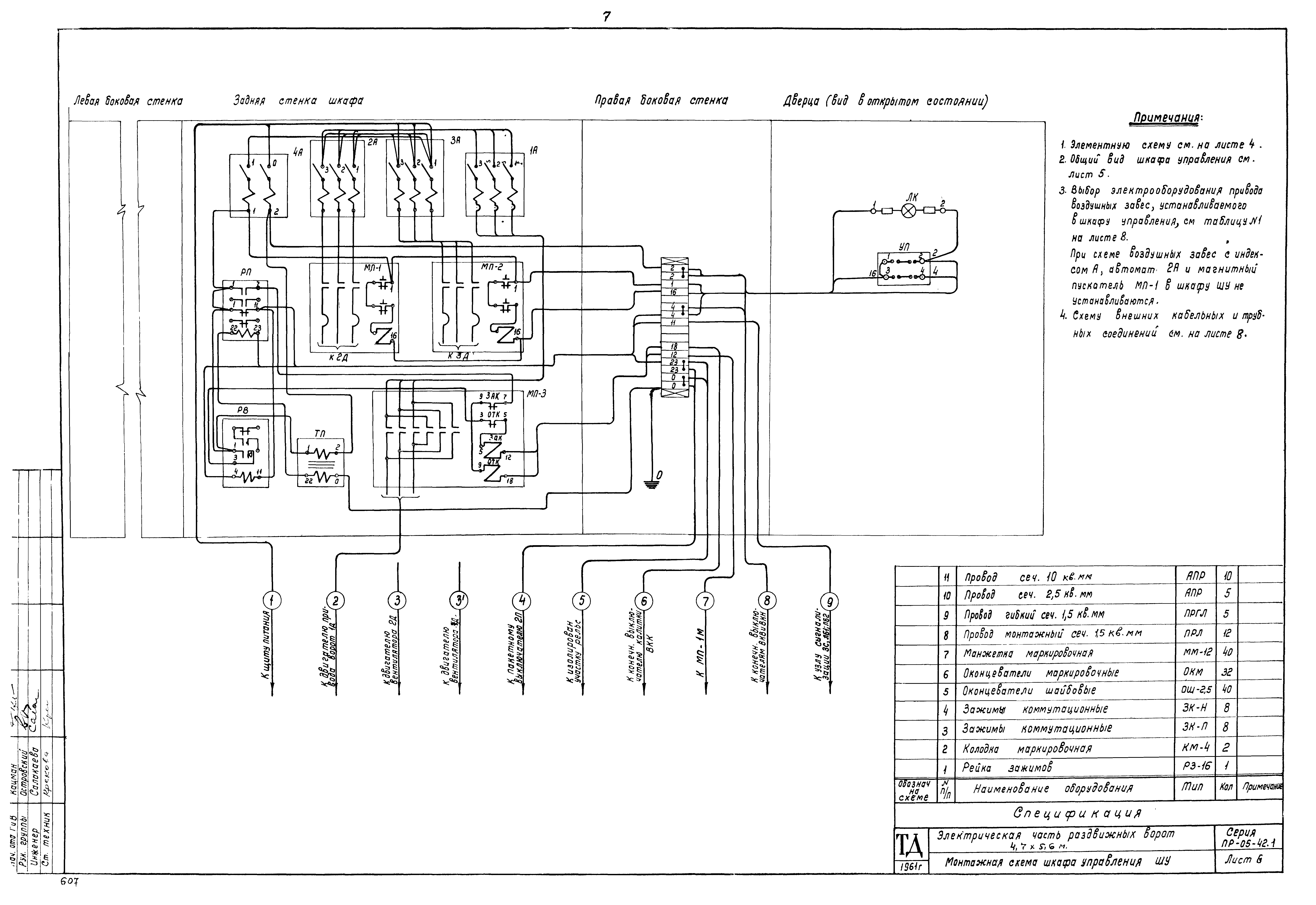
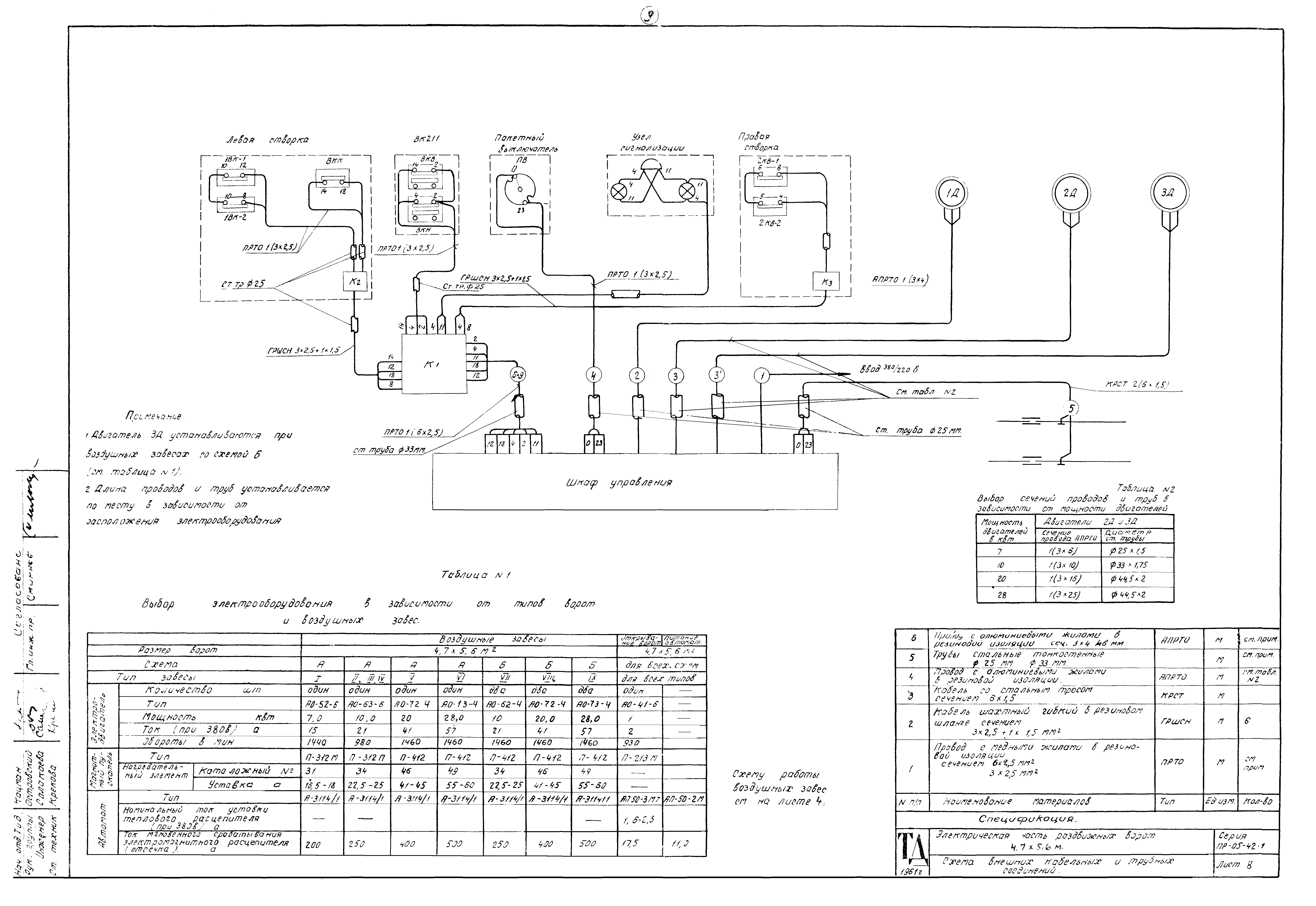
Ворота раздвижные 4,7х5,6 м (однопольные и двухпольные) с автоматическим открыванием и воздушными завесами. Электрическая частьОбозначение: | Серия ПР-05-42.1 | Обозначение англ: | Series ПР-05-42.1 | Статус: | не действует | Название рус.: | Ворота раздвижные 4,7х5,6 м (однопольные и двухпольные) с автоматическим открыванием и воздушными завесами. Электрическая часть | Дата добавления в базу: | 01.09.2013 | Дата актуализации: | 05.05.2017 | Оглавление: | Оглавление Предисловие Размещение электрооборудования Элементная схема Общий вид шкафа управления ШУ Монтажная схема шкафа управления ШУ Узлы электрооборудования Схема внешних кабельных и трубных соединений | Разработан: | Гипротис
| Утверждён: | 30.12.1961 Гипротис (265)
| Расположен в: |
|
       
|