Информационная система
«Ёшкин Кот»

Скачать базу одним архивом
Скачать обновления
История создания базы
Карта сайта

Скачать Серия ПР-05-36.3 Ворота распашные 4х3 м с автоматическим открыванием и воздушными завесами

Дата актуализации: 10.08.2017

Серия ПР-05-36.3

Ворота распашные 4х3 м с автоматическим открыванием и воздушными завесами

Обозначение: Серия ПР-05-36.3
Обозначение англ: Series ПР-05-36.3
Статус:не действует
Название рус.:Ворота распашные 4х3 м с автоматическим открыванием и воздушными завесами
Дата добавления в базу:01.09.2013
Дата актуализации:05.05.2017
Дата окончания срока действия:01.10.1977
Оглавление:Пояснительная записка. Перечень листов. Условные обозначения
Общий вид ворот и сводная спецификация материалов
Детали сечений полотен ворот
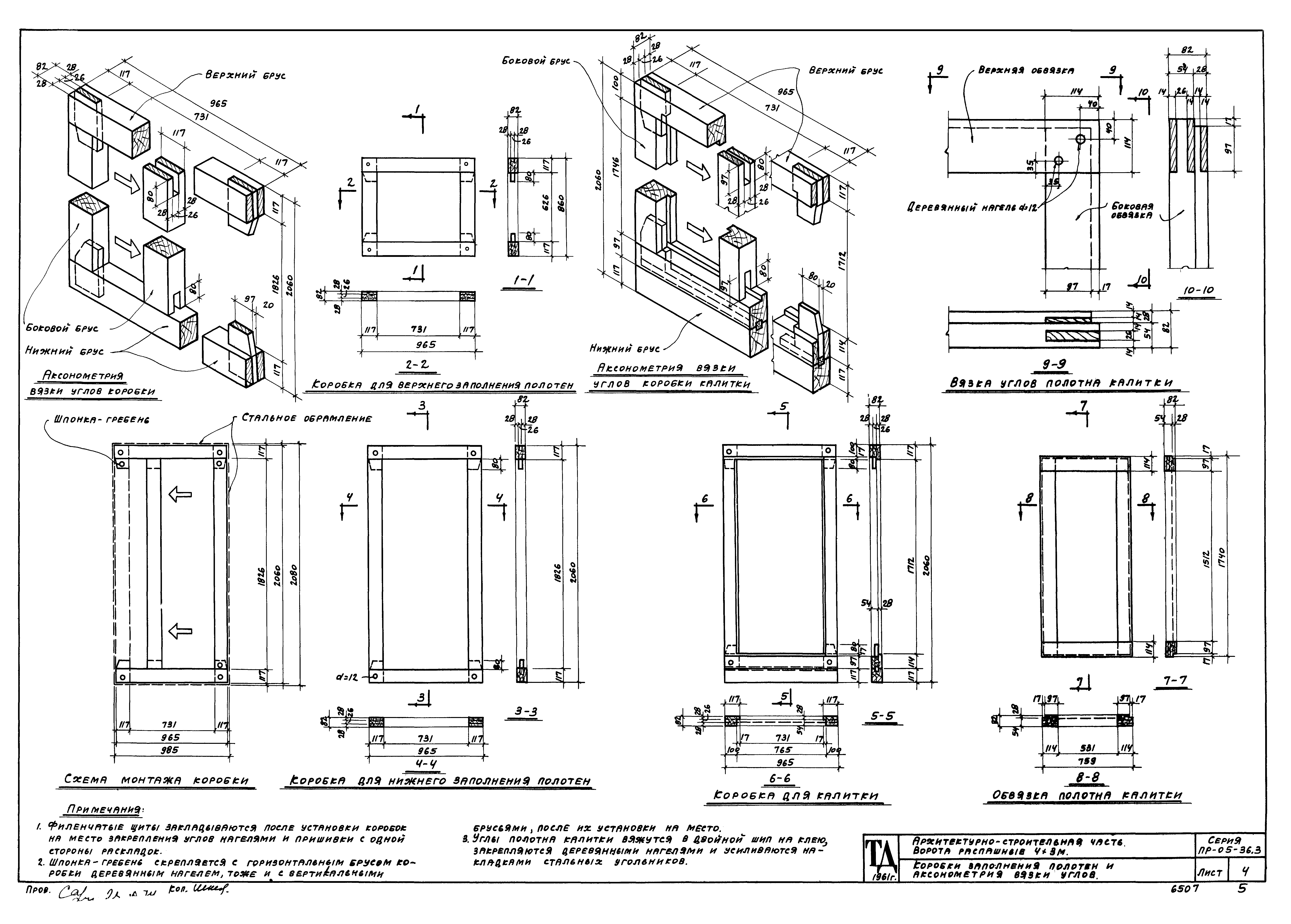
Коротки заполнения полотен и аксонометрия вязки углов
Стальной каркас полотен ворот и спецификация
Сборная железобетонная рама проема ворот. Общий вид рамы. Детали
Сборная железобетонная рама проема ворот. Каркасы, закладные детали и спецификация
Детали верхних петель
Скоба воротная и щеколда фалевая
Площадка (консоли) для установки механизма открывания
Набор дополнительных приборов для ручного открывания
Разработан: Гипротис
Утверждён:30.12.1961 Гипротис (265)
Расположен в:Техническая документация Строительство Справочные документы Типовые строительные конструкции, изделия и узлы Общероссийский строительный каталог Строительные конструкции, изделия и узлы зданий и сооружений для всех видов строительства Конструкции, изделия и узлы зданий Ограждающие конструкции Ворота
Серия ПР-05-36.3Серия ПР-05-36.3Серия ПР-05-36.3Серия ПР-05-36.3Серия ПР-05-36.3Серия ПР-05-36.3Серия ПР-05-36.3Серия ПР-05-36.3Серия ПР-05-36.3Серия ПР-05-36.3Серия ПР-05-36.3Серия ПР-05-36.3Серия ПР-05-36.3Серия ПР-05-36.3

© 2013 Ёшкин Кот :-) Карта сайта