Информационная система
«Ёшкин Кот»

Скачать базу одним архивом
Скачать обновления
История создания базы
Карта сайта

Скачать Серия КЭ-01-60 Выпуск II. Рабочие чертежи армирования колонн

Дата актуализации: 10.08.2017

Серия КЭ-01-60

Выпуск II. Рабочие чертежи армирования колонн

Обозначение: Серия КЭ-01-60
Обозначение англ: Series КЭ-01-60
Статус:не действует
Название рус.:Выпуск II. Рабочие чертежи армирования колонн
Дата добавления в базу:01.09.2013
Дата актуализации:05.05.2017
Оглавление:Содержание альбома
Пояснительная записка
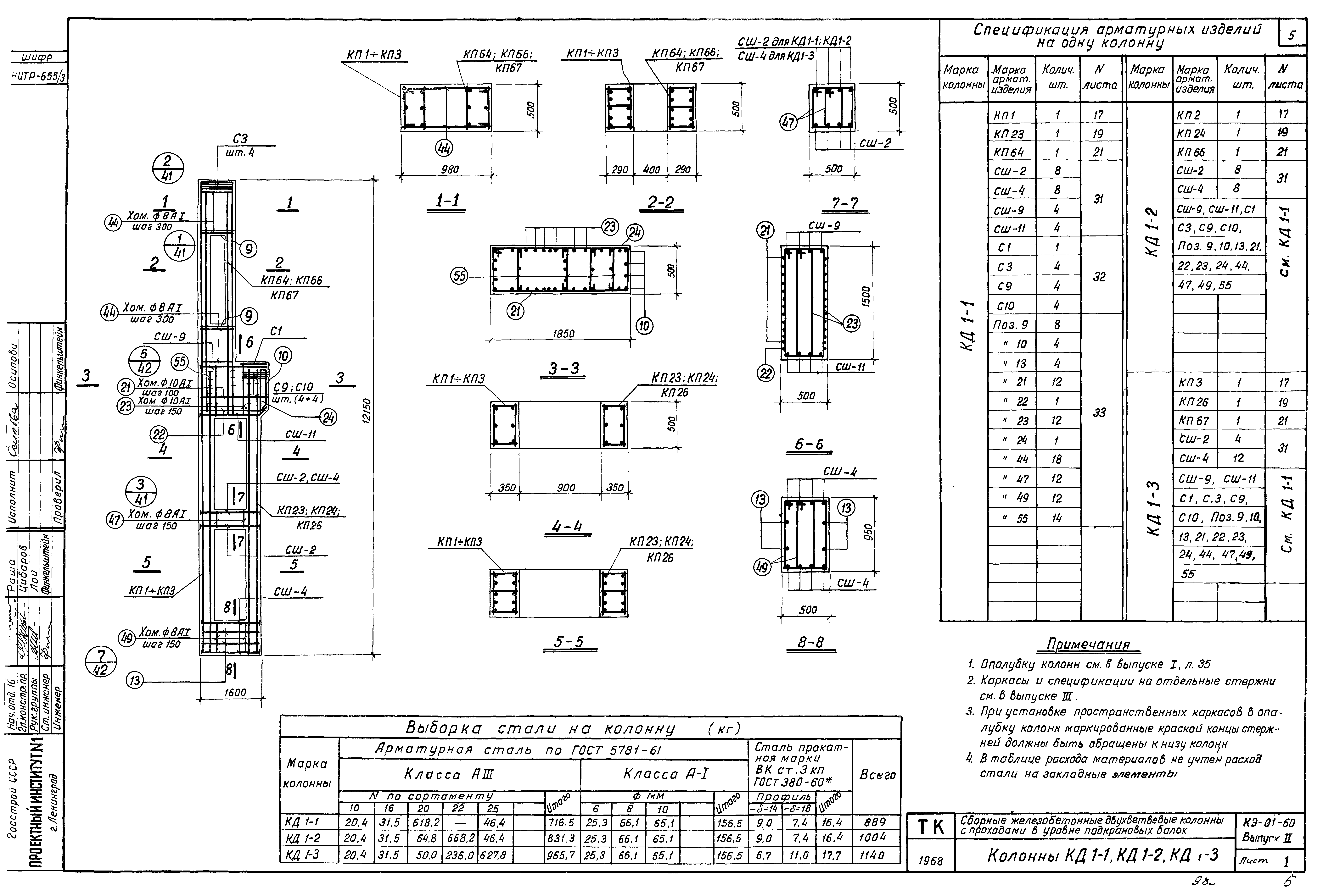
Колонны КД1-1-КД1-3
Колонны КД1-4;КД1-5
Колонны КД2-1-КД2-3
Колонны КД2-4-КД2-6
Колонны КД3-1-КД3-3
Колонны КД3-4-КД3-6
Колонны КД4-1-КД4-5
Колонны КД4-6-КД4-8
Колонны КД5-1-КД5-4
Колонны КД5-5;КД5-6
Колонны КД6-1-КД6-5
Колонны КД6-6;КД6-7
Колонны КД7-1-КД7-5
Колонны КД7-6;КД7-7
Колонны КД8-1-КД8-4
Колонны КД8-5;КД8-6
Колонны КД9-1-КД9-4
Колонны КД9-5;КД9-6
Колонны КД10-1-КД10-3
Колонны КД10-4;КД10-5
Колонны КД11-1-КД11-3
Колонны КД11-4;КД11-5
Колонны КД12-1-КД12-3
Колонны КД12-4;КД12-5
Колонны КД13-1-КД13-4
Колонны КД14-1-КД14-3;КД14-5
Колонны КД14-4;КД14-5
Колонны КД15-1-КД15-3;КД15-5
Колонны КД15-4;КД15-6
Колонны КД16-1-КД16-3;КД16-5
Колонны КД16-4;КД16-6
Колонны КД17-1-КД17-3
Колонны КД17-4;КД17-5
Колонны КД18-1-КД18-4
Колонны КД19-1-КД19-4
Колонны КД20-1-КД20-3
Колонны КД21-1;КД21-2
Колонны КД21-3;КД21-4
Колонны КД22-1;КД22-2
Колонны КД22-3;КД22-4
Узлы "1"-"5"
Узлы "6";"7"
Узел 8. Детали армирования ветвей и шейки колонн в местах установки закладных элементов для крепления несущих столиков и вертикальных связей
Узел "9"
Узел "10"
Узел "11"
Узлы "12","13","14","15"
Узел "16". Стыки СА-1-СА-5
Узел "17". Стыки СА-6-СА-9
Разработан: НИИЖБ
Проектный институт № 1 Госстроя СССР
Утверждён:02.01.1968 Госстрой СССР (Государственный комитет Совета Министров СССР по делам строительства) (USSR Gosstroy )
Расположен в:Техническая документация Строительство Справочные документы Типовые строительные конструкции, изделия и узлы Общероссийский строительный каталог Строительные конструкции, изделия и узлы зданий и сооружений для всех видов строительства Конструкции, изделия и узлы зданий Несущие конструкции одноэтажных зданий Колонны Железобетонные
Серия КЭ-01-60Серия КЭ-01-60Серия КЭ-01-60Серия КЭ-01-60Серия КЭ-01-60Серия КЭ-01-60Серия КЭ-01-60Серия КЭ-01-60Серия КЭ-01-60Серия КЭ-01-60Серия КЭ-01-60Серия КЭ-01-60Серия КЭ-01-60Серия КЭ-01-60Серия КЭ-01-60Серия КЭ-01-60Серия КЭ-01-60Серия КЭ-01-60Серия КЭ-01-60Серия КЭ-01-60Серия КЭ-01-60Серия КЭ-01-60Серия КЭ-01-60Серия КЭ-01-60Серия КЭ-01-60Серия КЭ-01-60Серия КЭ-01-60Серия КЭ-01-60Серия КЭ-01-60Серия КЭ-01-60Серия КЭ-01-60Серия КЭ-01-60Серия КЭ-01-60Серия КЭ-01-60Серия КЭ-01-60Серия КЭ-01-60Серия КЭ-01-60Серия КЭ-01-60Серия КЭ-01-60Серия КЭ-01-60Серия КЭ-01-60Серия КЭ-01-60Серия КЭ-01-60Серия КЭ-01-60Серия КЭ-01-60Серия КЭ-01-60Серия КЭ-01-60Серия КЭ-01-60Серия КЭ-01-60Серия КЭ-01-60Серия КЭ-01-60Серия КЭ-01-60Серия КЭ-01-60Серия КЭ-01-60Серия КЭ-01-60

© 2013 Ёшкин Кот :-) Карта сайта