| ||||||||||||||||||||||||||||
Скачать Серия КЭ-01-52 Выпуск X. Альбом 2. Колонны, армированные сварными каркасами. Рабочие чертежи сварных каркасов и закладных элементовДата актуализации: 10.08.2017
|
| Обозначение: | Серия КЭ-01-52 |
| Обозначение англ: | Series КЭ-01-52 |
| Статус: | не действует |
| Название рус.: | Выпуск X. Альбом 2. Колонны, армированные сварными каркасами. Рабочие чертежи сварных каркасов и закладных элементов |
| Дата добавления в базу: | 01.09.2013 |
| Дата актуализации: | 05.05.2017 |
| Дата окончания срока действия: | 01.02.1984 |
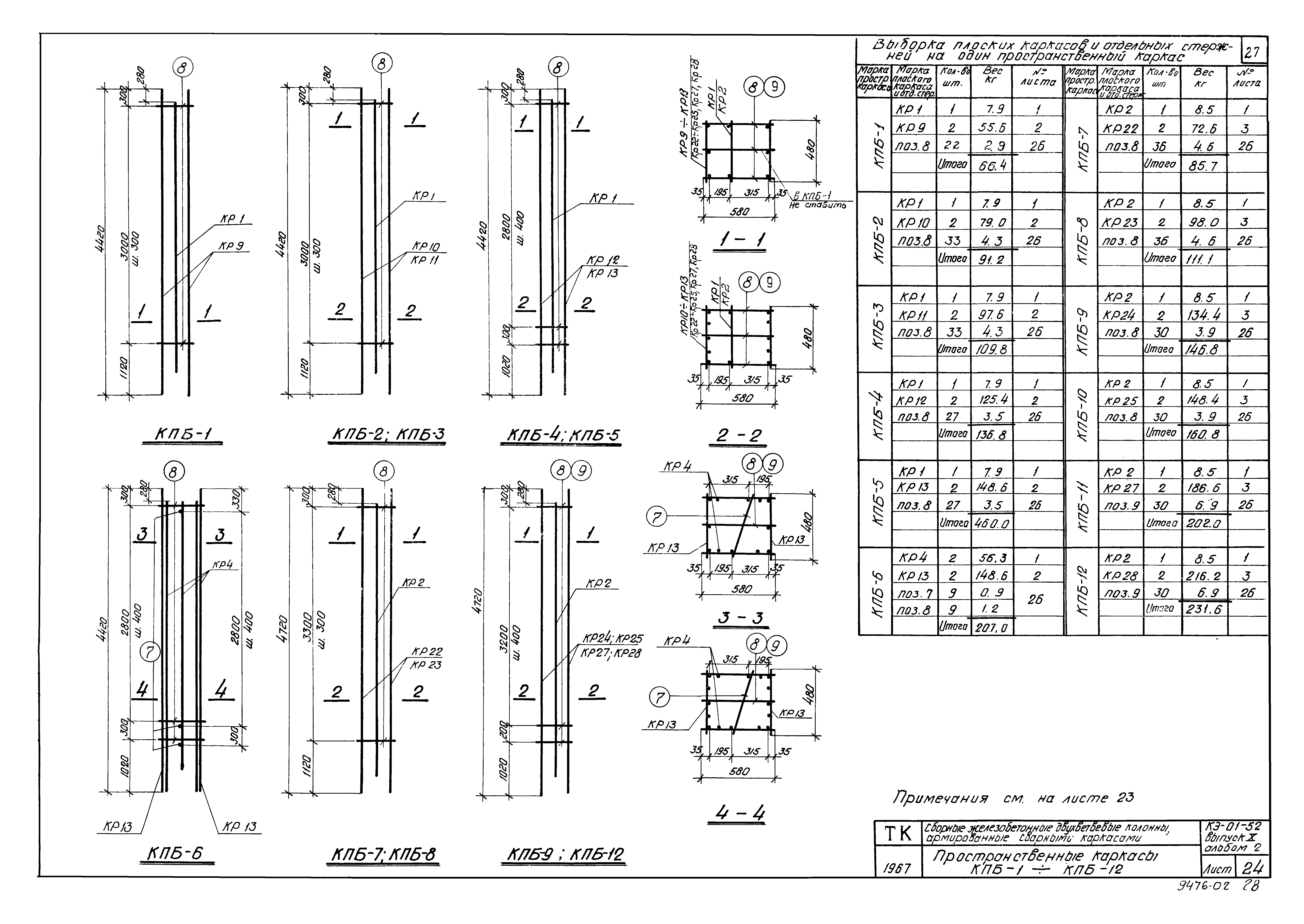
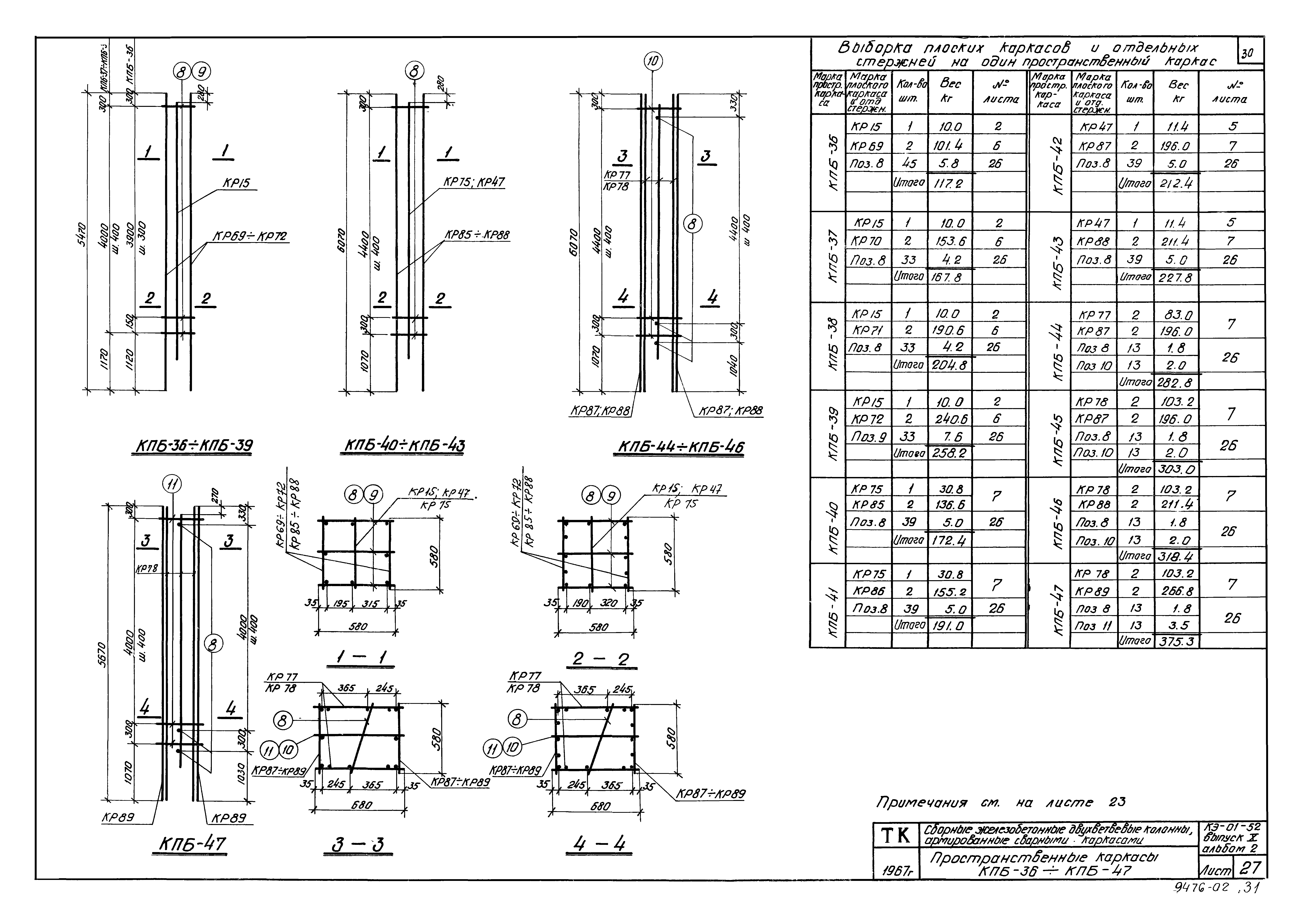
| Оглавление: | Содержание альбома Пояснительная записка Плоские каркасы КР1-КР8 Плоские каркасы КР9-КР19 Плоские каркасы КР20-КР34 Плоские каркасы КР35-КР46 Плоские каркасы КР47-КР61 Плоские каркасы КР62-КР72 Плоские каркасы КР73-КР89 Плоские каркасы КР90-КР102 Плоские каркасы КР103-КР118 Плоские каркасы КР119-КР132 Плоские каркасы КР133-КР147 Плоские каркасы КР148-КР160 Плоские каркасы КР161-КР172 Плоские каркасы КР173-КР186 Плоские каркасы КР187-КР196 Плоские каркасы КР197-КР209 Пространственные каркасы КПА-1-КПА-7 Пространственные каркасы КПА-8-КПА-14 Пространственные каркасы КПА-15-КПА-22 Пространственные каркасы КПА-23-КПА-28 Пространственные каркасы КПА-29-КПА-37 Пространственные каркасы КПА-38-КПА-43 Пространственные каркасы КПА-44-КПА-48 Пространственные каркасы КПБ-1-КПБ-12 Пространственные каркасы КПБ-13-КПБ-23 Пространственные каркасы КПБ-24-КПБ-35 Пространственные каркасы КПБ-36-КПБ-47 Пространственные каркасы КПВ-1-КПВ-14 Пространственные каркасы КПВ-15-КПВ-28 Пространственные каркасы КПВ-29-КПВ-45 Пространственные каркасы КПВ-46-КПВ-61 Пространственные каркасы КПВ-62-КПВ-77 Отдельные стержни СШ1-СШ20. Сетки С1-С7 Спецификация отдельных стержней поз. 1-56 Закладные элементы М1-М8 Закладные элементы М9-М17 Закладные элементы М18-М23 Закладные элементы М24-М35 Закладные элементы М36-М44 |
| Разработан: | НИИЖБ Проектный институт № 1 Главстройпроекта |
| Утверждён: | 08.12.1967 Госстрой СССР (Государственный комитет Совета Министров СССР по делам строительства) (USSR Gosstroy 199) |
| Расположен в: | |
| Чем заменён: |











































