Информационная система
«Ёшкин Кот»

Скачать базу одним архивом
Скачать обновления
История создания базы
Карта сайта

Скачать Серия ИС-01-09 Альбом 4. Выпуск 3. Сборные железобетонные конструкции. Силосы диаметром 12 м. Рабочие чертежи

Дата актуализации: 10.08.2017

Серия ИС-01-09

Альбом 4. Выпуск 3. Сборные железобетонные конструкции. Силосы диаметром 12 м. Рабочие чертежи

Обозначение: Серия ИС-01-09
Обозначение англ: Series ИС-01-09
Статус:не действует
Название рус.:Альбом 4. Выпуск 3. Сборные железобетонные конструкции. Силосы диаметром 12 м. Рабочие чертежи
Дата добавления в базу:01.09.2013
Дата актуализации:05.05.2017
Дата введения:01.05.1966
Дата окончания срока действия:01.10.1982
Оглавление:Краткие пояснения. Таблица нагрузок и расчетных схем
Показатели на один конструктивный элемент
Колонна К12-1-1
Колонны К12-2-1,К12-2-2,К12-2-3
Колонна К12-3-1
Колонны К12-4-1,К12-4-2
Колонны К12-4-3,К12-4-4
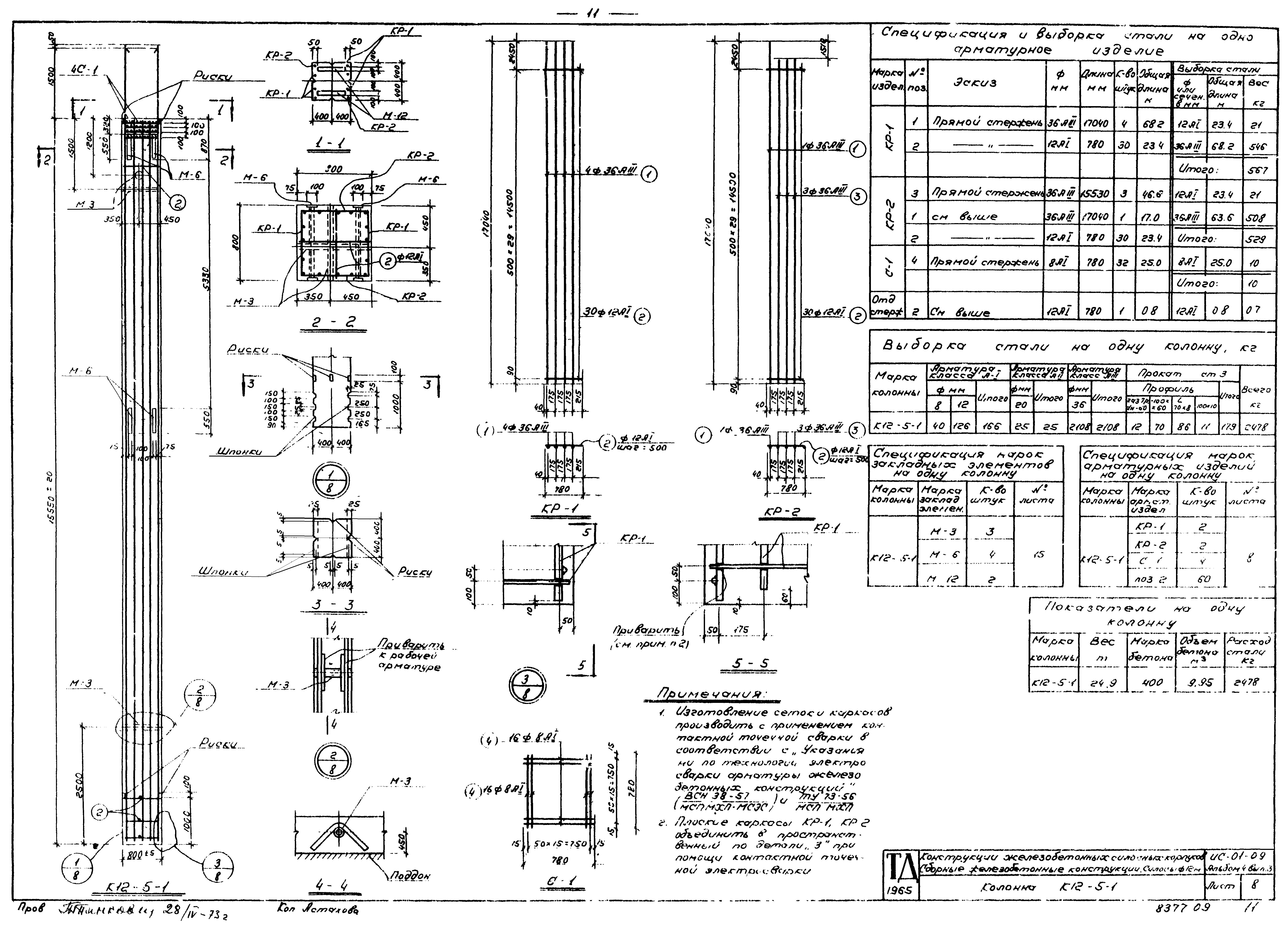
Колонна К12-5-1
Колонна К12-6-1
Колонны К12-7-1,К12-7-2
Балки Б12-1-1
Балки Б12-1-2
Балки Б12-1-3
Плиты П-1 и П-3
Закладные элементы
Воронка В-1
Воронка В-2 (нормальная)
Воронка В-3 (укороченная)
Воронка В-4 (нормальная)
Воронка В-5 (нормальная)
Воронка В-6
Разработан: НИИЖБ
ГПИ Ленинградский Промстройпроект
Утверждён:23.02.1966 Госстрой СССР (Государственный комитет Совета Министров СССР по делам строительства) (USSR Gosstroy 15)
Расположен в:Техническая документация Строительство Справочные документы Типовые строительные конструкции, изделия и узлы Общероссийский строительный каталог Строительные конструкции, изделия и узлы зданий и сооружений для всех видов строительства Конструкции и изделия сооружений и оборудования зданий Надземные сооружения Силосы и закрома
Чем заменён:
Серия ИС-01-09Серия ИС-01-09Серия ИС-01-09Серия ИС-01-09Серия ИС-01-09Серия ИС-01-09Серия ИС-01-09Серия ИС-01-09Серия ИС-01-09Серия ИС-01-09Серия ИС-01-09Серия ИС-01-09Серия ИС-01-09Серия ИС-01-09Серия ИС-01-09Серия ИС-01-09Серия ИС-01-09Серия ИС-01-09Серия ИС-01-09Серия ИС-01-09Серия ИС-01-09Серия ИС-01-09Серия ИС-01-09Серия ИС-01-09Серия ИС-01-09

© 2013 Ёшкин Кот :-) Карта сайта