Информационная система
«Ёшкин Кот»

Скачать базу одним архивом
Скачать обновления
История создания базы
Карта сайта

Скачать Серия ИС-01-09 Альбом 4. Выпуск 1. Сборные железобетонные конструкции. Силосы диаметром 3 м. Рабочие чертежи

Дата актуализации: 10.08.2017

Серия ИС-01-09

Альбом 4. Выпуск 1. Сборные железобетонные конструкции. Силосы диаметром 3 м. Рабочие чертежи

Обозначение: Серия ИС-01-09
Обозначение англ: Series ИС-01-09
Статус:не действует
Название рус.:Альбом 4. Выпуск 1. Сборные железобетонные конструкции. Силосы диаметром 3 м. Рабочие чертежи
Дата добавления в базу:01.09.2013
Дата актуализации:05.05.2017
Дата введения:01.05.1966
Дата окончания срока действия:01.10.1982
Оглавление:Краткие пояснения. Таблица нагрузок и расчетных схем
Показатели на один конструктивный элемент
Элемент стены 3С3.5. Опалубка и армирование. Показатели
Колонны К3-1. Опалубка и армирование
Кольцевая балка Б3-1. Опалубка и армирование
Плита П3-1. Опалубка и армирование
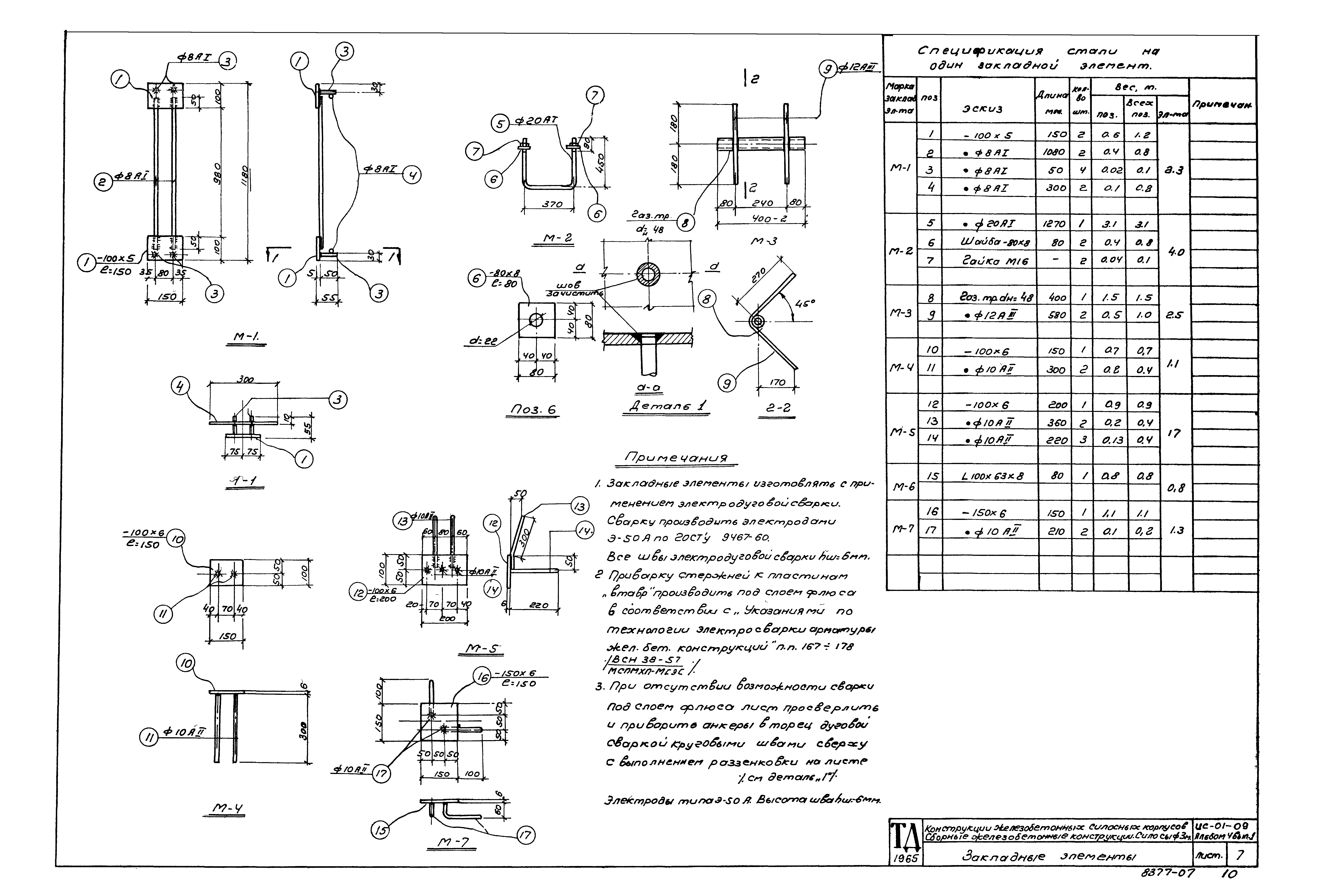
Закладные элементы
Стальная воронка В3-1, разрезы 1-1-6-6
Стальная воронка В3-1, разрезы 7-7-10-10. Спецификация
Разработан: НИИЖБ
ГПИ Ленинградский Промстройпроект
Утверждён:23.02.1966 Госстрой СССР (Государственный комитет Совета Министров СССР по делам строительства) (USSR Gosstroy 15)
Расположен в:Техническая документация Строительство Справочные документы Типовые строительные конструкции, изделия и узлы Общероссийский строительный каталог Строительные конструкции, изделия и узлы зданий и сооружений для всех видов строительства Конструкции и изделия сооружений и оборудования зданий Надземные сооружения Силосы и закрома
Чем заменён:
Серия ИС-01-09Серия ИС-01-09Серия ИС-01-09Серия ИС-01-09Серия ИС-01-09Серия ИС-01-09Серия ИС-01-09Серия ИС-01-09Серия ИС-01-09Серия ИС-01-09Серия ИС-01-09Серия ИС-01-09Серия ИС-01-09

© 2013 Ёшкин Кот :-) Карта сайта