Информационная система
«Ёшкин Кот»

Скачать базу одним архивом
Скачать обновления
История создания базы
Карта сайта

Скачать Серия ИС-01-09 Альбом 2. Выпуск 3. Монтажные планы и разрезы. Силосы диаметром 12 м. Материал для проектирования

Дата актуализации: 10.08.2017

Серия ИС-01-09

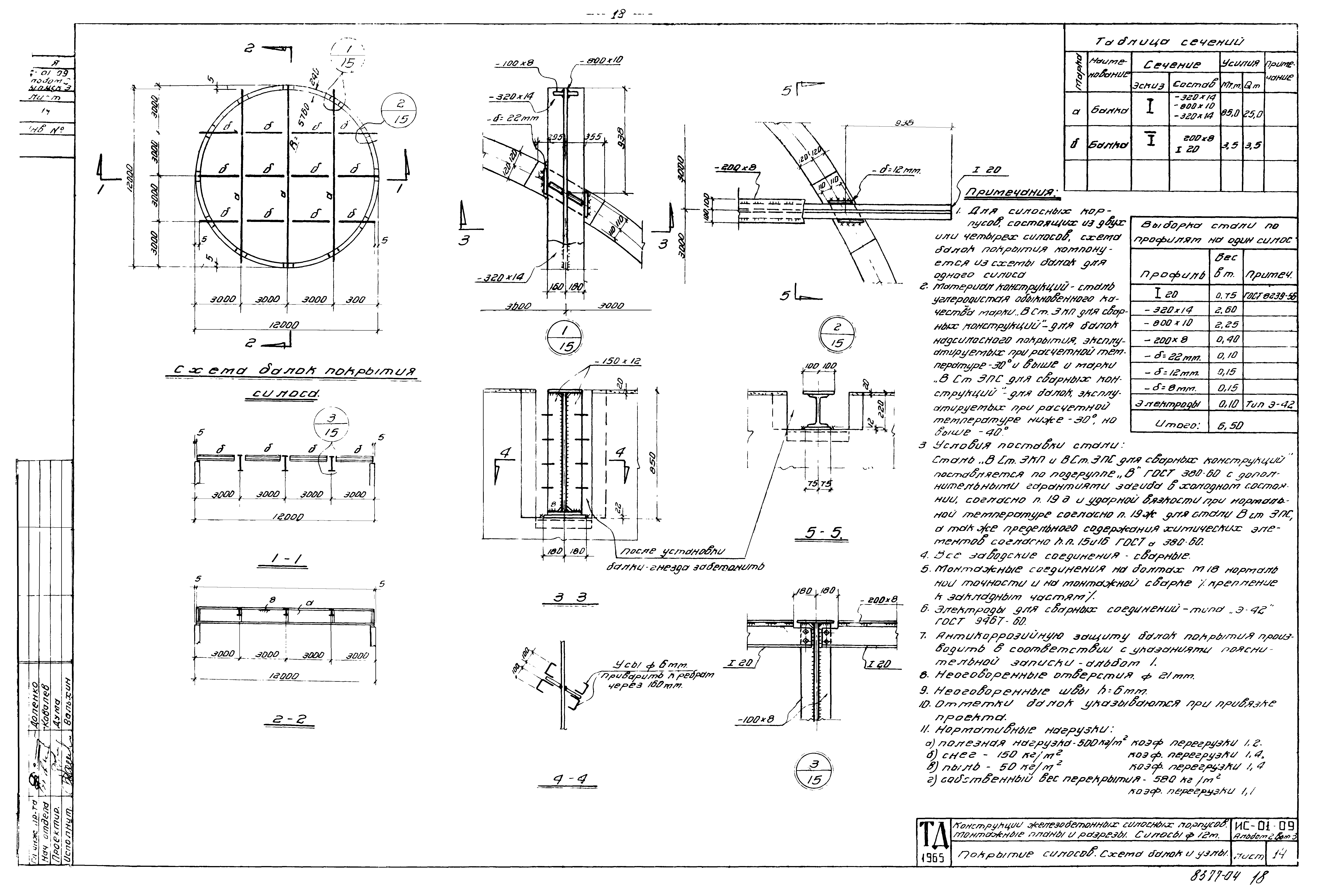
Альбом 2. Выпуск 3. Монтажные планы и разрезы. Силосы диаметром 12 м. Материал для проектирования

Обозначение: Серия ИС-01-09
Обозначение англ: Series ИС-01-09
Статус:не действует
Название рус.:Альбом 2. Выпуск 3. Монтажные планы и разрезы. Силосы диаметром 12 м. Материал для проектирования
Дата добавления в базу:01.09.2013
Дата актуализации:05.05.2017
Дата введения:01.05.1966
Дата окончания срока действия:01.10.1982
Оглавление:Краткие пояснения к чертежам монтажных планов и разрезов
Чертежи
Спецификация сборных железобетонных элементов на силосных корпус
Спецификация монолитных железобетонных и бетонных элементов на силосных корпус
Расход материалов на один конструктивный элемент монолитных железобетонных конструкций
Силосные корпуса: 1-12-108-180В, 1-12-108-300В, 2-12-108-300В. Планы колонн, стенок и балок
Силосные корпуса: 4-12-108-300В, 4-12-144-264В. Планы колонн, стенок и балок
Силосные корпуса: 1-12-60-180, 1-12-60-300,2-12-60-180, 2-12-60-300. Планы колонн, стенок и плит днища
Силосные корпуса: 1-12-180-300, 2-12-180-180,2-12-108-300. Планы колонн, стенок и плит днища
Силосные корпуса: 4-12-60-300. Планы колонн, стенок и плит днища
Силосные корпуса: 4-12-108-300. Планы колонн, стенок и плит днища
Планы балок и плит покрытия силосов
Разрезы 1-1,2-2 и 3-3
Разрезы 4-4,5-5
Разрезы 6-6,7-7,8-8 и 9-9
Покрытие силосов. Схема балок и узлы
Силосный корпус: 4-12-144-264В. Схема вертикальных связей по колоннам и узлы
Подвесные леса опалубки кольцевой балки и плиты. Детали. Указания по производству работ
Подвесные леса опалубки кольцевой балки и плиты. Планы опорных конструкций. Спецификация
Разработан: НИИЖБ
ГПИ Ленинградский Промстройпроект
Утверждён:23.02.1966 Госстрой СССР (Государственный комитет Совета Министров СССР по делам строительства) (USSR Gosstroy 15)
Расположен в:Техническая документация Строительство Справочные документы Типовые строительные конструкции, изделия и узлы Общероссийский строительный каталог Строительные конструкции, изделия и узлы зданий и сооружений для всех видов строительства Конструкции и изделия сооружений и оборудования зданий Надземные сооружения Силосы и закрома
Чем заменён:
Серия ИС-01-09Серия ИС-01-09Серия ИС-01-09Серия ИС-01-09Серия ИС-01-09Серия ИС-01-09Серия ИС-01-09Серия ИС-01-09Серия ИС-01-09Серия ИС-01-09Серия ИС-01-09Серия ИС-01-09Серия ИС-01-09Серия ИС-01-09Серия ИС-01-09Серия ИС-01-09Серия ИС-01-09Серия ИС-01-09Серия ИС-01-09Серия ИС-01-09Серия ИС-01-09

© 2013 Ёшкин Кот :-) Карта сайта