| ||||||||||||||||||||||||||||||||||
Скачать ГОСТ Р 53684-2009 Аппараты колонные. Технические требованияДата актуализации: 10.08.2017
|
| Обозначение: | ГОСТ Р 53684-2009 |
| Обозначение англ: | GOST R 53684-2009 |
| Статус: | отменен |
| Название рус.: | Аппараты колонные. Технические требования |
| Название англ.: | Columns. Specifications |
| Дата добавления в базу: | 01.09.2013 |
| Дата актуализации: | 05.05.2017 |
| Дата введения: | 01.01.2014 |
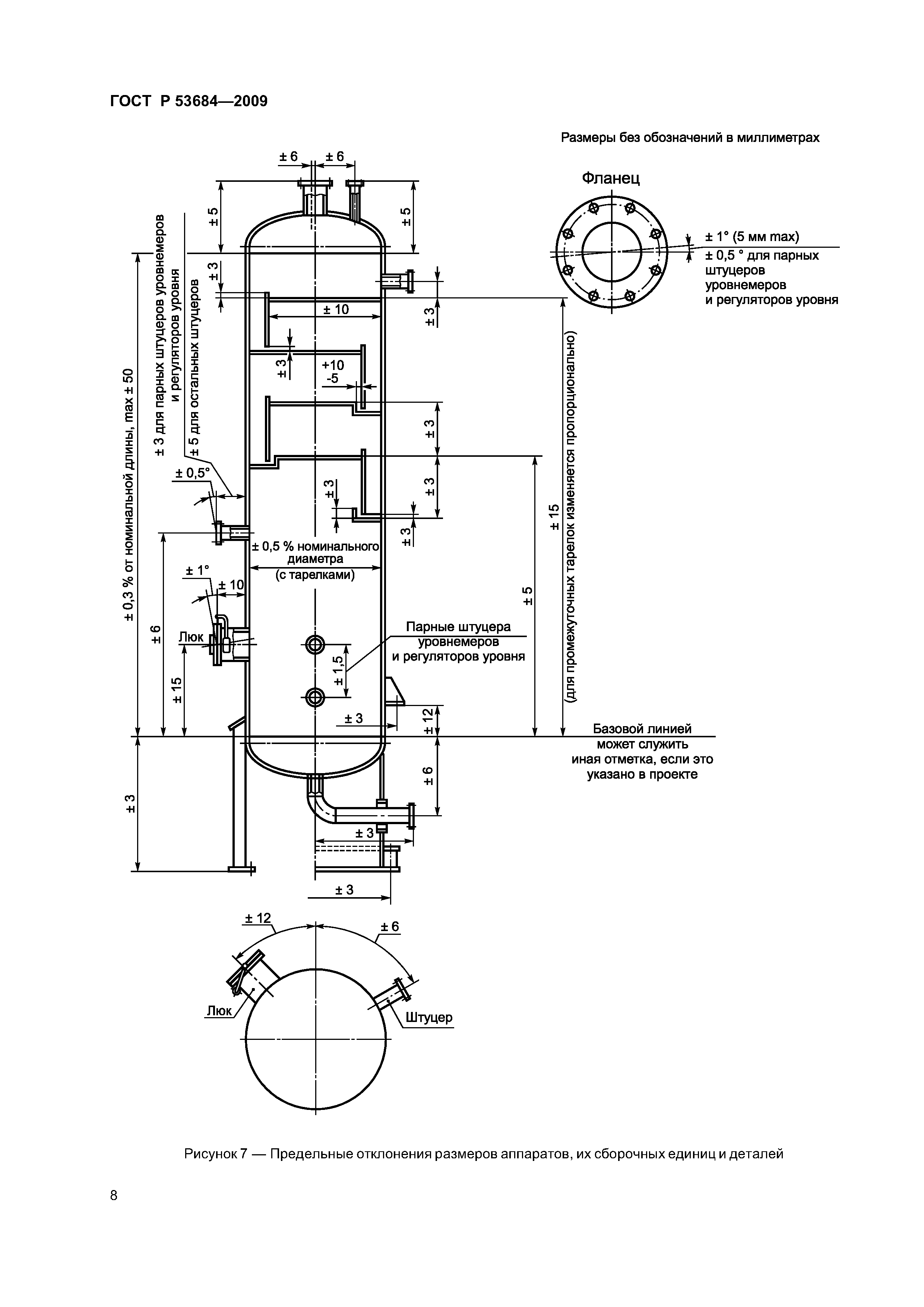
| Область применения: | Стандарт распространяется на колонные аппараты, предназначенные для применения в технологических установках нефтеперерабатывающей, нефтехимической, химической, газовой и других смежных отраслей промышленности для проведения тепло- и массообменных процессов при контакте пара (газа) и жидкости (возможно присутствие нескольких жидких фаз), также и в присутствии дисперсной твердой фазы (в промывных аппаратах) и устанавливает основные технические требования к их проектированию, изготовлению, контролю, испытаниям и приемке. В дополнение к требованиям стандарта следует руководствоваться нормами и правилами промышленной безопасности. |
| Оглавление: | 1 Область применения 2 Нормативные ссылки 3 Классификация и типы колонных аппаратов 4 Обозначения 5 Требования к конструкции 6 Требования к материалам 7 Требования к изготовлению 8 Сварка и сварные соединения 9 Гидравлическое испытание 10 Термическая обработка Библиография |
| Разработан: | ЗАО Петрохим Инжиниринг ОАО ВНИИНЕФТЕМАШ |
| Утверждён: | 15.12.2009 Федеральное агентство по техническому регулированию и метрологии (1072-ст) |
| Издан: | Стандартинформ (2011 г. ) |
| Расположен в: | |
| Нормативные ссылки: |
|














