Информационная система
«Ёшкин Кот»

Скачать базу одним архивом
Скачать обновления
История создания базы
Карта сайта

Скачать Серия ТКП-73 Альбом II. Подвальные помещения производственного назначения

Дата актуализации: 10.08.2017

Серия ТКП-73

Альбом II. Подвальные помещения производственного назначения

Обозначение: Серия ТКП-73
Обозначение англ: Series ТКП-73
Статус:не действует
Название рус.:Альбом II. Подвальные помещения производственного назначения
Дата добавления в базу:01.09.2013
Дата актуализации:05.05.2017
Оглавление:Перечень чертежей
Общая часть
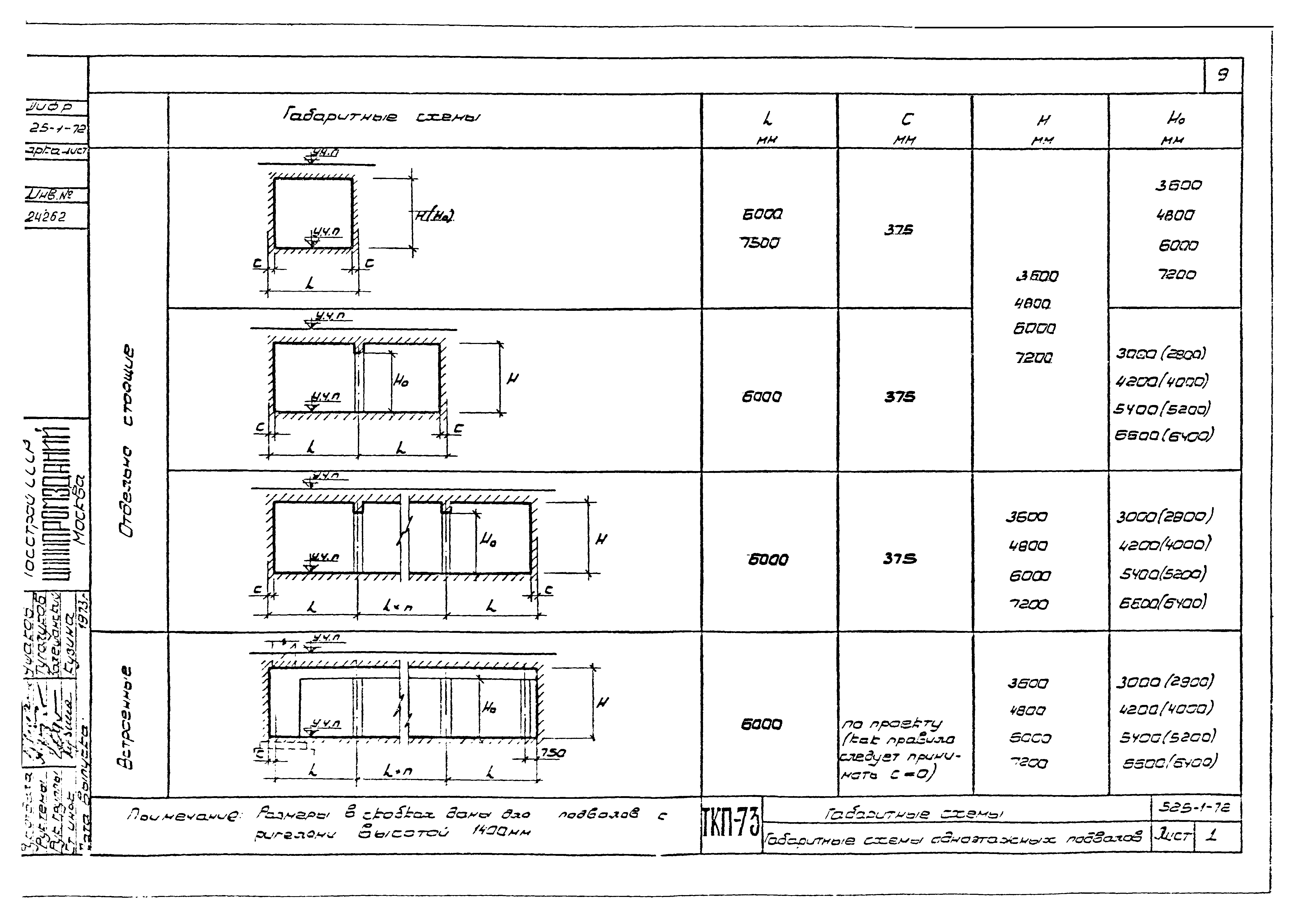
Габаритные схемы
Габаритные схемы одноэтажных подвалов
Габаритные схемы двухэтажных подвалов
Номенклатуре сборных железобетонных элементов
Плиты перекрытия П1; П1К; П2-1; П2-2
Плиты перекрытия П3-1-П3-4; П4-1-П4-4; П5-1-П5-4
Ригели перекрытия
Вертикальные стеновые панели
Колонны одноэтажных подвалов
Колонны двухэтажных подвалов
Конструктивные схемы
План перекрытия одноэтажного подвала
Одноэтажный подвал. Разрез 1-1
Одноэтажный подвал. Разрез 2-2
План перекрытия двухэтажного подвала
План междуэтажного перекрытия подвала
Двухэтажный подвал (кабельный этаж сверху). Разрез 1-1
Двухэтажный подвал (кабельный этаж сверху). Разрез 2-2
Двухэтажный подвал (кабельный этаж снизу). Разрез 1-1
Двухэтажный подвал (кабельный этаж снизу). Разрез 2-2
Детали приварки плит перекрытия к ригелям и стеновым панелям
Перекрытие подвала. Узлы 1-6
Междуэтажное перекрытие подвала. Узлы 7-11
Монтажные проемы в перекрытии
Вход в подвал сверху
Вход в подвал сбоку
Плиты перекрытий
Плита П1К. Опалубочный чертеж
Плиты П2-1;П2-2. Опалубочный чертеж
Плиты П3-1-П3-5. Опалубочный чертеж
Плиты П4-1-П4-4. Опалубочный чертеж
Плиты П5-1-П5-4. Опалубочный чертеж
Армирование плиты П1К
Армирование плит П2-1; П2-2
Армирование плит П3-1-П3-5
Армирование плит П4-1-П4-4
Армирование плит П5-1-П5-4
Узлы 1; 2; 3 для плит h = 400 мм, в = 1500 мм
Узлы 1; 2; 3 для плит h =400 мм, в=750 мм
Узел 1 для плит h = 600 мм, в=1500 мм
Узлы: 2; 3 для плит h = 600 мм, в=1500 мм
Узлы: 1; 2; 3 для плит h = 600 мм, в=750 мм
Арматурные каркасы КР1-КР3
Арматурные каркасы КР4-КР8
Арматурные каркасы КР9-КР12
Арматурные каркасы КР13-КР16
Арматурные каркасы КР17-КР23
Арматурные каркасы КР24-КР29
Арматурные сетки С1-С4
Арматурные сетки С5-С9
Арматурные сетки С10-С17
Закладные детали M-1 и У-2. Составная позиция СП-1
Плиты П1К, П2-1, П2-2, П3-1-П3-5. Спецификация марок арматурных изделий на одну плиту
Плиты П4-1-П4-4, П5-1-П5-4. Спецификация марок арматурных изделий на одну плиту
Выборка стали на одну плиту
Ригели
Опалубочный чертеж ригелей P1-1; Р1-2; Р1-3; P1А-1; Р1А-2; Р1А-3
Опалубочный чертеж ригелей P2-1; Р2-2; Р2-3; P1А-2; Р1А-2; Р1А-3
Армирование ригелей P1-1; P1-2; P1-3; P1A-1; P1A-2; P1A-3
Узел 1 для ригелей P1-1, P1-2, P1-3, P1A-1, P1A-2, P1A-3
Пространственные арматурные каркасы ПК1, ПК2, ПК3
Армирование ригеля P1К-1
Узел 1 для ригеля P1К-1
Пространственный арматурный каркас ПК4
Армирование ригелей P2-1, Р2-2, P2-3, P2A-1, Р2А-2, Р2А-3
Узел 1 для ригелей P2-1, P2-2, Р2-3, P2A-1, Р2А-2, Р2А-3
Пространственные арматурные каркасы ПК5, ПК6, ПК7
Спецификация марок арматурных изделий на один ригель
Арматурные каркасы КР1, КР2, КР3, КР4
Арматурные каркасы КР5, КР6, КР7, С1-С6
Арматурные сетки С7-С10. Отдельные стержни
Закладные детали M-1, М-2, М-3
Закладные детали М-4-М-7
Выборка стали на один ригель
Вертикальные стеновые панели
Опалубочный чертеж панелей ПВ1-1-ПВ1-4
Опалубочный чертеж панелей ПВ2-1-ПВ2-5
Опалубочный чертеж панелей ПВ3-1-ПВ3-3
Опалубочный чертеж панелей ПВ4-1-ПВ4-3
Опалубочный чертеж панелей ПВ5-1-ПВ5-3
Армирование стеновых панелей ПВ1-1-ПВ1-4
Армирование стеновых панелей ПВ2-1-ПВ2-5
Армирование стеновых панелей ПВ3-1-ПВ3-3
Армирование стеновых панелей ПВ4-1-ПВ4-3
Армирование стеновых панелей ПВ5-1-ПВ5-3
Пространственные арматурные каркасы КБ-1-КБ-4
Пространственные арматурные каркасы КБ-5-КБ-9
Пространственные арматурные каркасы КБ-10-КБ-12
Пространственные арматурные каркасы КБ-13-КБ-15
Пространственные арматурные каркасы КБ-16-КБ-18
Арматурные каркасы КЛ-1-КЛ-9; КП-1-КП-9
Арматурные каркасы КЛ-10-КЛ-13; КП-10-КП-18
Спецификация арматуры каркасов КЛ-1-КЛ-9; КП-1-КП-9
Спецификация арматуры каркасов КЛ-10-КЛ-18; КП-10-КП-18
Арматурные сетки C-1-С-8
Арматурные сетки C-9-С-14
Арматурные сетки C-15-С-19
Спецификация арматурных сеток С-1-С-19
Узлы: 1 и 2
Узлы: 3 и 4
Закладные детали М-1-M-6
Спецификация стали на закладные детали М-1-М-6
Закладная деталь ММ-1. Размещение MM-1 в стеновой панели
Колонны
Опалубочно-арматурный чертеж колонн К1-1-К1-8
Пространственные арматурные каркасы ПК-1-ПК-8
Арматурные каркасы и сетки КР-1-КР-16 и С-1
Спецификация арматурных каркасов и сеток КP-1-КP-16 и C-1
Опалубочно-арматурный чертеж колонн К2-1, К2-2, К2-3
Опалубочно-арматурный чертеж колонн К2-4, К2-5, К2-6
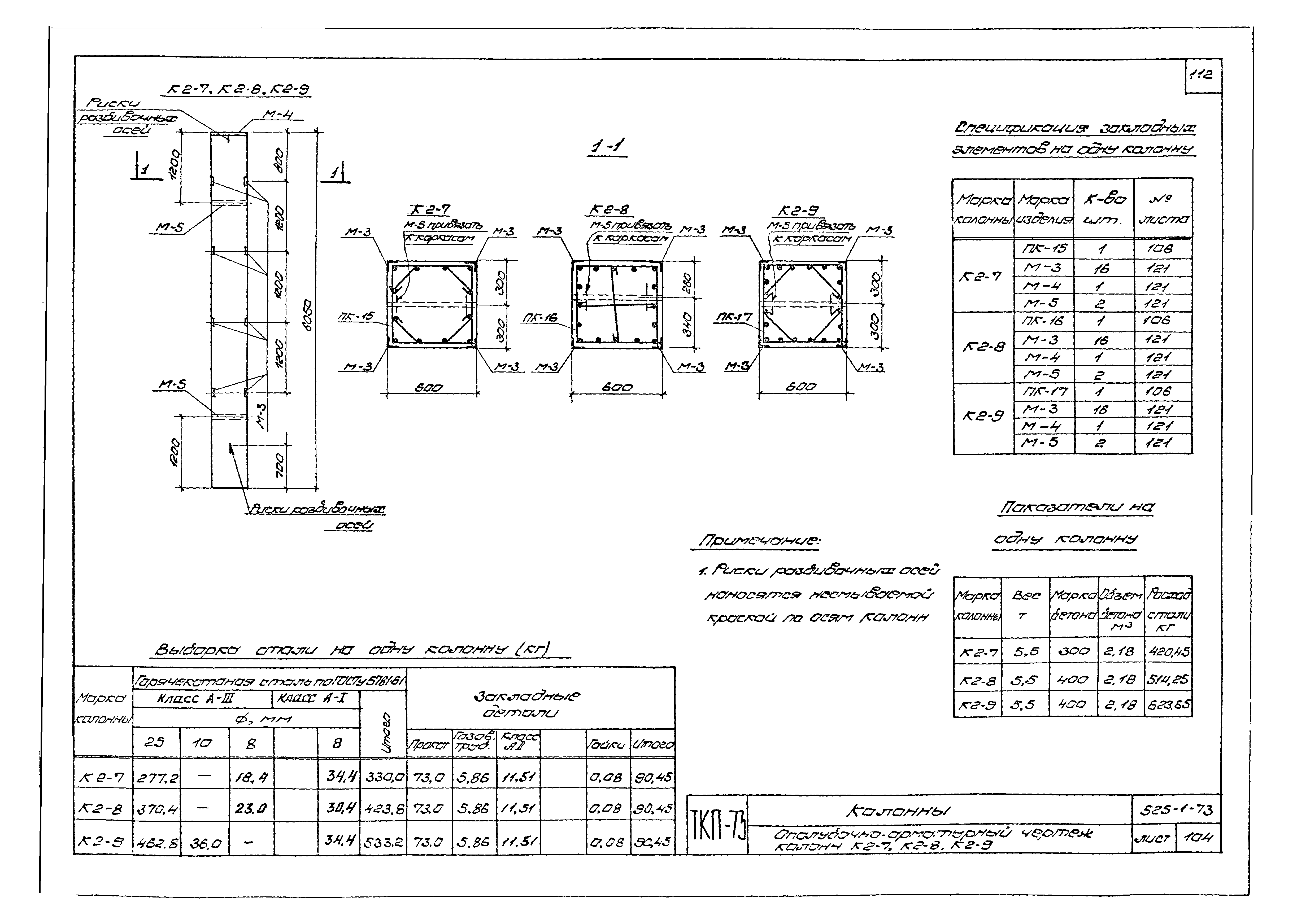
Опалубочно-арматурный чертеж колонн К2-7, К2-8, К2-9
Опалубочно-арматурный чертеж колонн К2-10, К2-11, К2-12
Пространственные арматурные каркасы ПК-9-ПК-20
Узлы 2,3,4
Арматурные каркасы и сетки: КР-17-КР-20, КР-29-КР-32, С-2
Арматурные каркасы и сетки: КР-21-КР-24, КР-33-КР-36, С-3
Арматурные каркасы и сетки: КР-25-КР-28, КР-37-КР-40, С-4
Спецификация арматурных каркасов КP-17-КР-36
Спецификация арматурных каркасов и сеток КP-37-КР-40, С-2, С-3, С-4
Опалубочно-арматурный чертеж колонн К3-1-К3-3
Пространственные арматурные каркасы ПК-21-ПК-28
Арматурные каркасы КР-41-КР-52
Спецификация арматурных каркасов и отдельных стержней КР-41-КР-52
Опалубочно-арматурный чертеж колонн К4-1-К4-8
Пространственные арматурные каркасы ПК-29-ПК-36
Арматурные каркасы КР-53-КР-64
Спецификация арматурных каркасов и отдельных стержней КР-53-КР-64
Закладные детали M-1-М-5
Закладные детали М-6 и М-7
Спецификация стали на закладные детали М-1-М-7
Разработан: ЦНИИпромзданий
Утверждён:01.01.1973 Госстрой СССР (Государственный комитет Совета Министров СССР по делам строительства) (USSR Gosstroy )
Расположен в:Техническая документация Строительство Справочные документы Типовые строительные конструкции, изделия и узлы Разработанные другими министерствами, ведомствами и организациями
Серия ТКП-73Серия ТКП-73Серия ТКП-73Серия ТКП-73Серия ТКП-73Серия ТКП-73Серия ТКП-73Серия ТКП-73Серия ТКП-73Серия ТКП-73Серия ТКП-73Серия ТКП-73Серия ТКП-73Серия ТКП-73Серия ТКП-73Серия ТКП-73Серия ТКП-73Серия ТКП-73Серия ТКП-73Серия ТКП-73Серия ТКП-73Серия ТКП-73Серия ТКП-73Серия ТКП-73Серия ТКП-73Серия ТКП-73Серия ТКП-73Серия ТКП-73Серия ТКП-73Серия ТКП-73Серия ТКП-73Серия ТКП-73Серия ТКП-73Серия ТКП-73Серия ТКП-73Серия ТКП-73Серия ТКП-73Серия ТКП-73Серия ТКП-73Серия ТКП-73Серия ТКП-73Серия ТКП-73Серия ТКП-73Серия ТКП-73Серия ТКП-73Серия ТКП-73Серия ТКП-73Серия ТКП-73Серия ТКП-73Серия ТКП-73Серия ТКП-73Серия ТКП-73Серия ТКП-73Серия ТКП-73Серия ТКП-73Серия ТКП-73Серия ТКП-73Серия ТКП-73Серия ТКП-73Серия ТКП-73Серия ТКП-73Серия ТКП-73Серия ТКП-73Серия ТКП-73Серия ТКП-73Серия ТКП-73Серия ТКП-73Серия ТКП-73Серия ТКП-73Серия ТКП-73Серия ТКП-73Серия ТКП-73Серия ТКП-73Серия ТКП-73Серия ТКП-73Серия ТКП-73Серия ТКП-73Серия ТКП-73Серия ТКП-73Серия ТКП-73Серия ТКП-73Серия ТКП-73Серия ТКП-73Серия ТКП-73Серия ТКП-73Серия ТКП-73Серия ТКП-73Серия ТКП-73Серия ТКП-73Серия ТКП-73Серия ТКП-73Серия ТКП-73Серия ТКП-73Серия ТКП-73Серия ТКП-73Серия ТКП-73Серия ТКП-73Серия ТКП-73Серия ТКП-73Серия ТКП-73Серия ТКП-73Серия ТКП-73Серия ТКП-73Серия ТКП-73Серия ТКП-73Серия ТКП-73Серия ТКП-73Серия ТКП-73Серия ТКП-73Серия ТКП-73Серия ТКП-73Серия ТКП-73Серия ТКП-73Серия ТКП-73Серия ТКП-73Серия ТКП-73Серия ТКП-73Серия ТКП-73Серия ТКП-73Серия ТКП-73Серия ТКП-73Серия ТКП-73Серия ТКП-73Серия ТКП-73Серия ТКП-73Серия ТКП-73Серия ТКП-73Серия ТКП-73Серия ТКП-73Серия ТКП-73Серия ТКП-73

© 2013 Ёшкин Кот :-) Карта сайта