Скачать Типовой проект 3.501-16 Типовой проект металлических прожекторных мачт высотой 21 и 28 м. Рабочие чертежиДата актуализации: 10.08.2017 Типовой проект 3.501-16
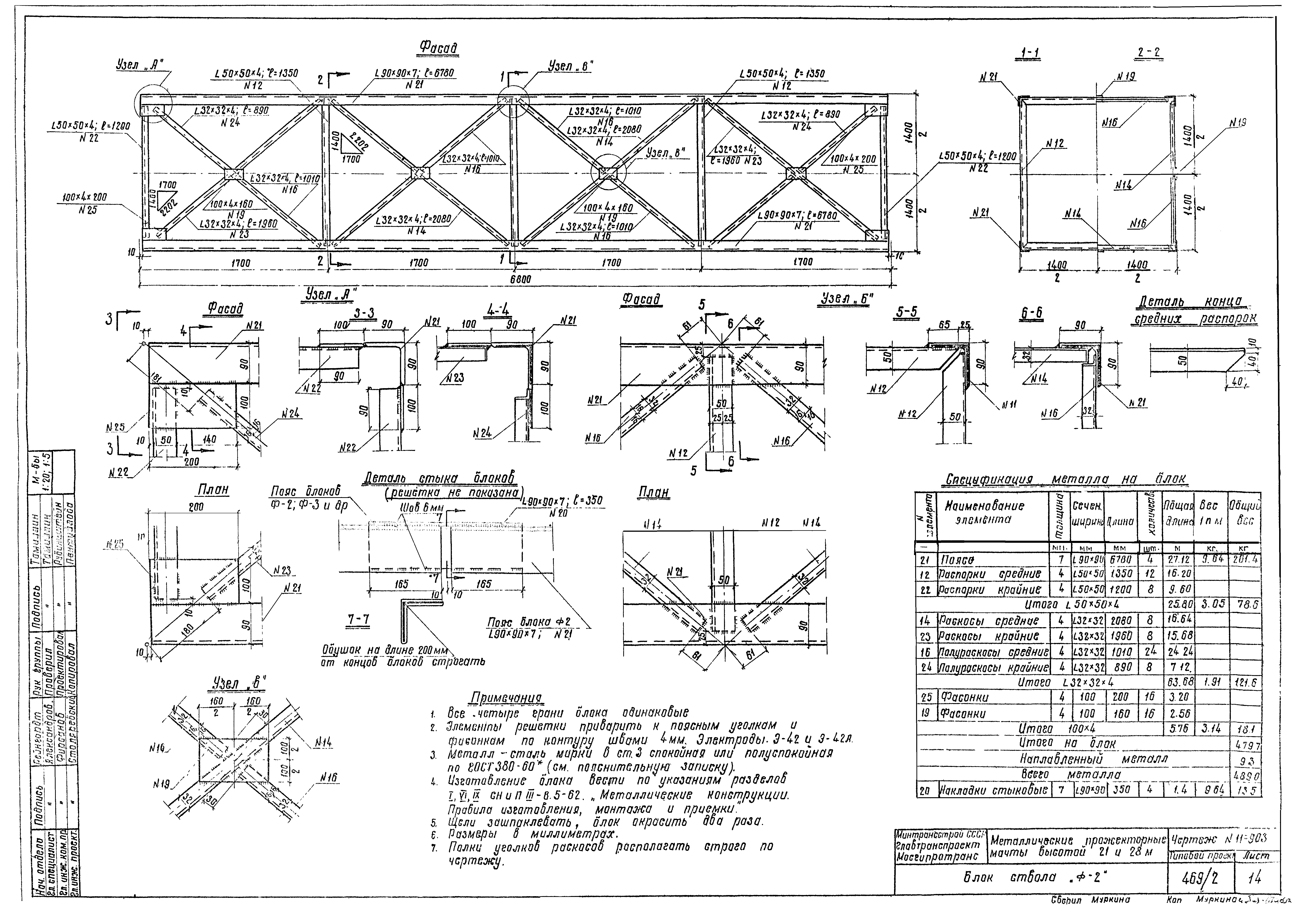
Типовой проект металлических прожекторных мачт высотой 21 и 28 м. Рабочие чертежиОбозначение: | Типовой проект 3.501-16 | Обозначение англ: | 3.501-16 | Статус: | не действует | Название рус.: | Типовой проект металлических прожекторных мачт высотой 21 и 28 м. Рабочие чертежи | Дата добавления в базу: | 01.09.2013 | Дата актуализации: | 05.05.2017 | Дата введения: | 01.01.1969 | Дата окончания срока действия: | 01.04.1981 | Оглавление: | Перечень чертежей Пояснительная записка Чертежи а) Конструктивная часть Расчетный лист Расчетный лист (продолжение) Расчетный лист (окончание) Общие виды мачт высотой 21 м Общие виды мачт высотой 28 м Прожекторная площадка для 27 прожекторов (П-1) Прожекторная площадка для 27 прожекторов (П-1) (продолжение) Прожекторная площадка для 27 прожекторов (П-2) Блок ствола "Ф-2" Блок ствола "Ф-3" Блок ствола "Ф-4", "Ф-5" Блок ствола "Ф-6" Блок ствола "Ф-7","Ф-8" Блок ствола "Ф-9","Ф-10" Блок ствола "Ф-11" Конструкция лестничных мачт Опорные узлы мачт Блоки фундамента Б-1,Б-2 Блоки фундамента Б-3,Б-4 Блок фундамента Б-5 Блок фундамента Б-6 Блок фундамента Б-7 Блоки фундамента Б-8,Б-9 Блок фундамента Б-10 Подъем мачт способом "падающей стрелы" б) Электротехническая часть Электрооборудование мачты на 16 прожекторов Электрооборудование мачты на 16 прожекторов для варианта расположения мачты менее 5 м от частей контактной сети Электрооборудование мачты на 27 прожекторов Электрооборудование площадки на 16 прожекторов Электрооборудование площадки на 16 прожекторов для варианта расположения мачты менее 5 м от частей контактной сети Электрооборудование площадки на 27 пассажиров Детали электрооборудования мачты Детали электрооборудования для варианта расположения ее менее 5 м от частей контактной сети | Разработан: | Мосгипротранс
| Утверждён: | 01.01.1969 Главтранспроект (Glavtransproject )
| Расположен в: |
| Чем заменён: | |
                                   
|