Информационная система
«Ёшкин Кот»

Скачать базу одним архивом
Скачать обновления
История создания базы
Карта сайта

Скачать Серия 3.501-9 Рабочие чертежи

Дата актуализации: 10.08.2017

Серия 3.501-9

Рабочие чертежи

Обозначение: Серия 3.501-9
Обозначение англ: Series 3.501-9
Статус:не действует
Название рус.:Рабочие чертежи
Дата добавления в базу:01.09.2013
Дата актуализации:05.05.2017
Дата введения:21.09.1966
Дата окончания срока действия:01.05.1982
Оглавление:Пояснительная записка
Расчетный лист
Расчетный лист (продолжение)
Расчетный лист (окончание)
Общий вид мачты
Конструкция прожекторной площадки
Конструкция прожекторной площадки и деталь прикрепления площадки к стволу
Конструкция лестницы
Электрооборудование мачты
Электрооборудование мачты для варианта расположения мачты менее 5 м от частей контактной сети
Электрооборудование площадки
Электрооборудование площадки для варианта расположения мачты менее 5 м от частей контактной сети
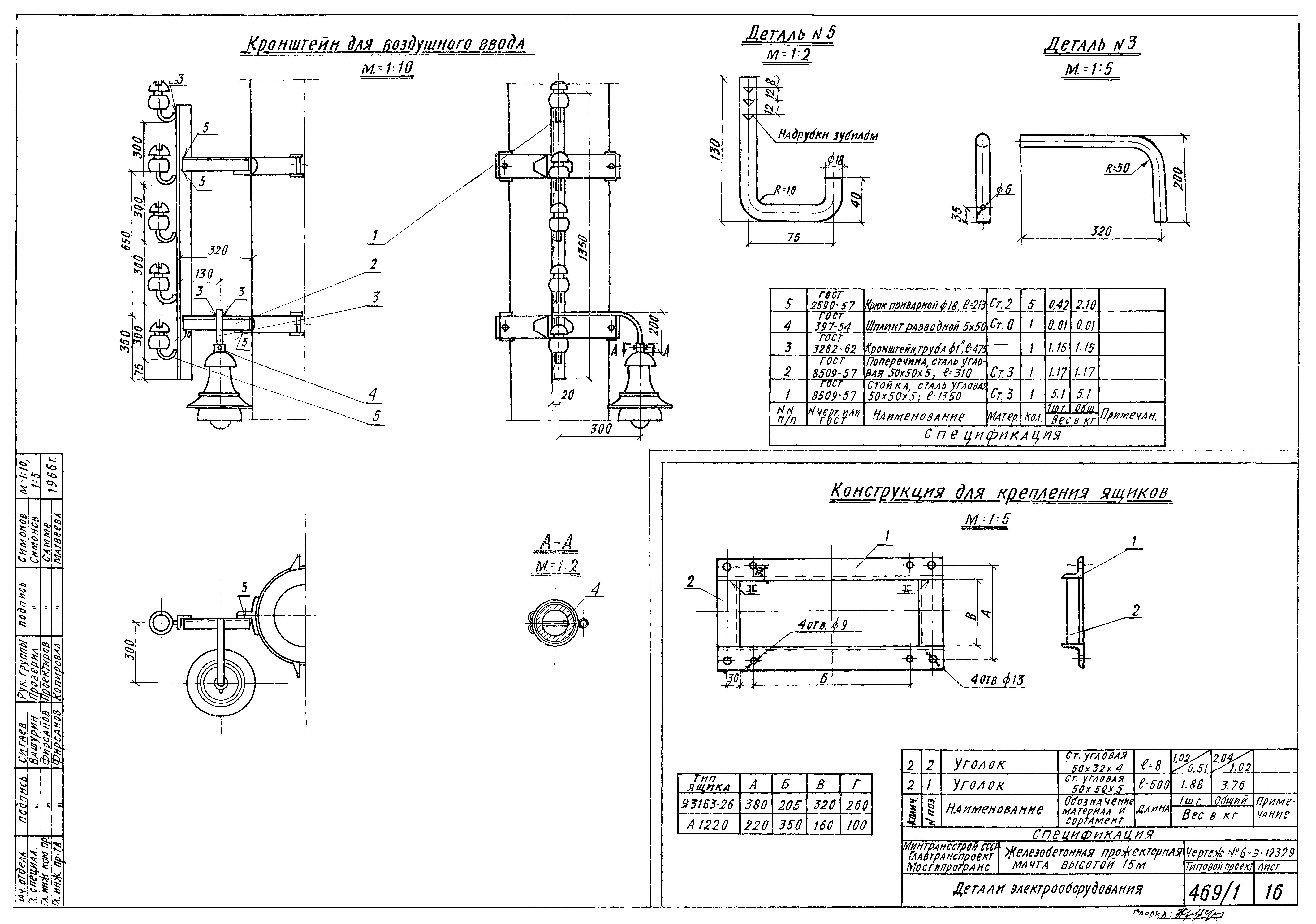
Детали электрооборудования
Детали электрооборудования для варианта расположения мачты менее 5 м от частей контактной сети
Разработан: Мосгипротранс
Утверждён:17.03.1966 МПС (Ministry of Railroads П-5999)
Расположен в:Техническая документация Строительство Справочные документы Типовые строительные конструкции, изделия и узлы Общероссийский строительный каталог Строительные конструкции, изделия и узлы зданий и сооружений для всех видов строительства Конструкции и изделия сооружений и оборудования зданий Надземные сооружения Опоры и порталы линий электропередачи, освещения, связи и др. Железобетонные
Чем заменён:
  • Серия 3.501.2-128
Серия 3.501-9Серия 3.501-9Серия 3.501-9Серия 3.501-9Серия 3.501-9Серия 3.501-9Серия 3.501-9Серия 3.501-9Серия 3.501-9Серия 3.501-9Серия 3.501-9Серия 3.501-9Серия 3.501-9Серия 3.501-9Серия 3.501-9Серия 3.501-9Серия 3.501-9

© 2013 Ёшкин Кот :-) Карта сайта