| ||||||||||||||||||||||||||||||||
Скачать Серия 1.020-1 Выпуск 4-1. Многопустотные панели и ребристые плиты перекрытий длиной 8650 мм, армированные предварительно напряженными стержнями из стали классов А-IV, Ат-V и Вр-II из тяжелого и легкого бетонов. Опалубочные чертежи и армирование. Арматурные изделия. Рабочие чертежиДата актуализации: 10.08.2017
|
| Обозначение: | Серия 1.020-1 |
| Обозначение англ: | Series 1.020-1 |
| Статус: | не действует |
| Название рус.: | Выпуск 4-1. Многопустотные панели и ребристые плиты перекрытий длиной 8650 мм, армированные предварительно напряженными стержнями из стали классов А-IV, Ат-V и Вр-II из тяжелого и легкого бетонов. Опалубочные чертежи и армирование. Арматурные изделия. Рабочие чертежи |
| Дата добавления в базу: | 01.09.2013 |
| Дата актуализации: | 05.05.2017 |
| Дата введения: | 01.01.1982 |
| Дата окончания срока действия: | 01.10.1984 |
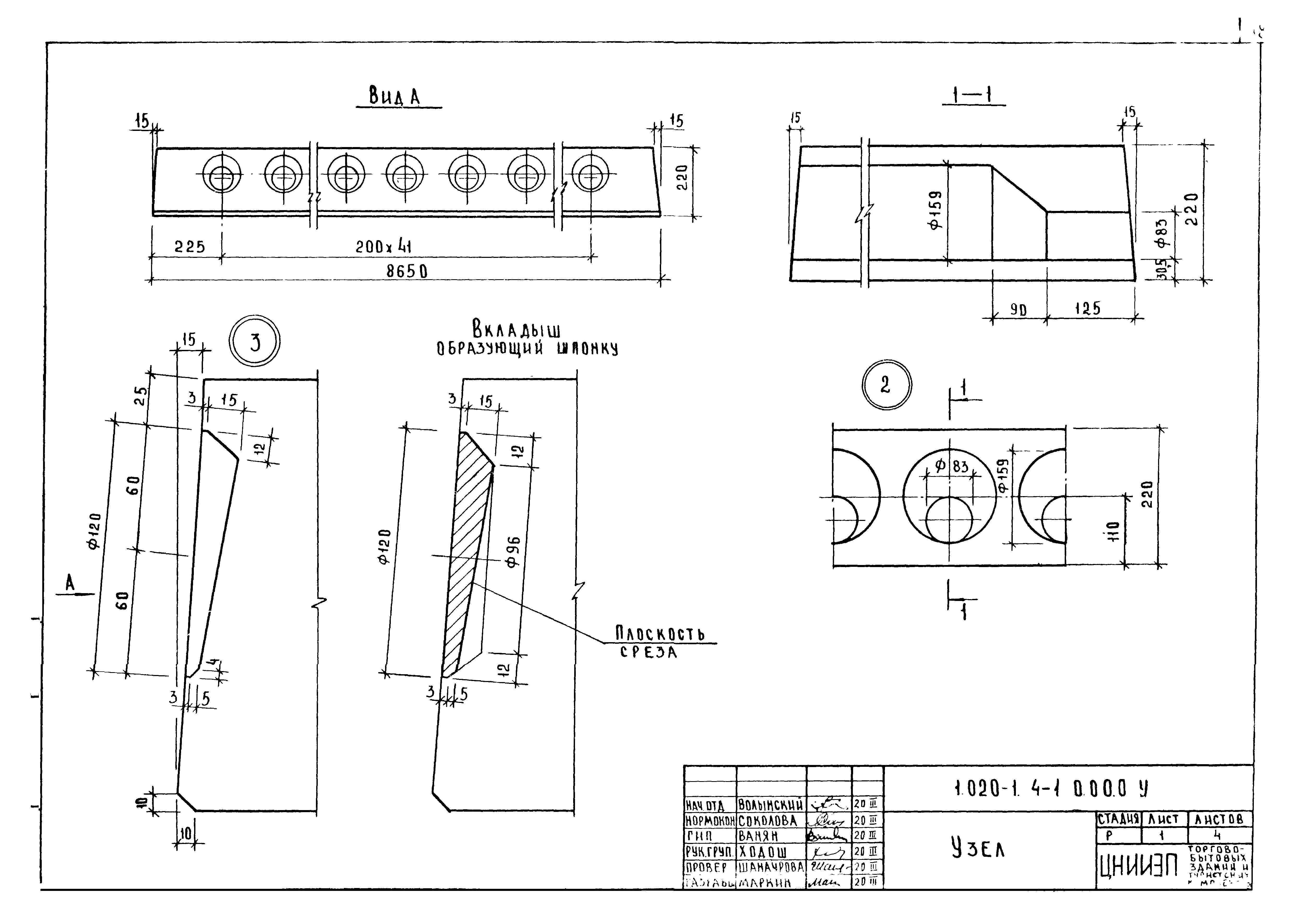
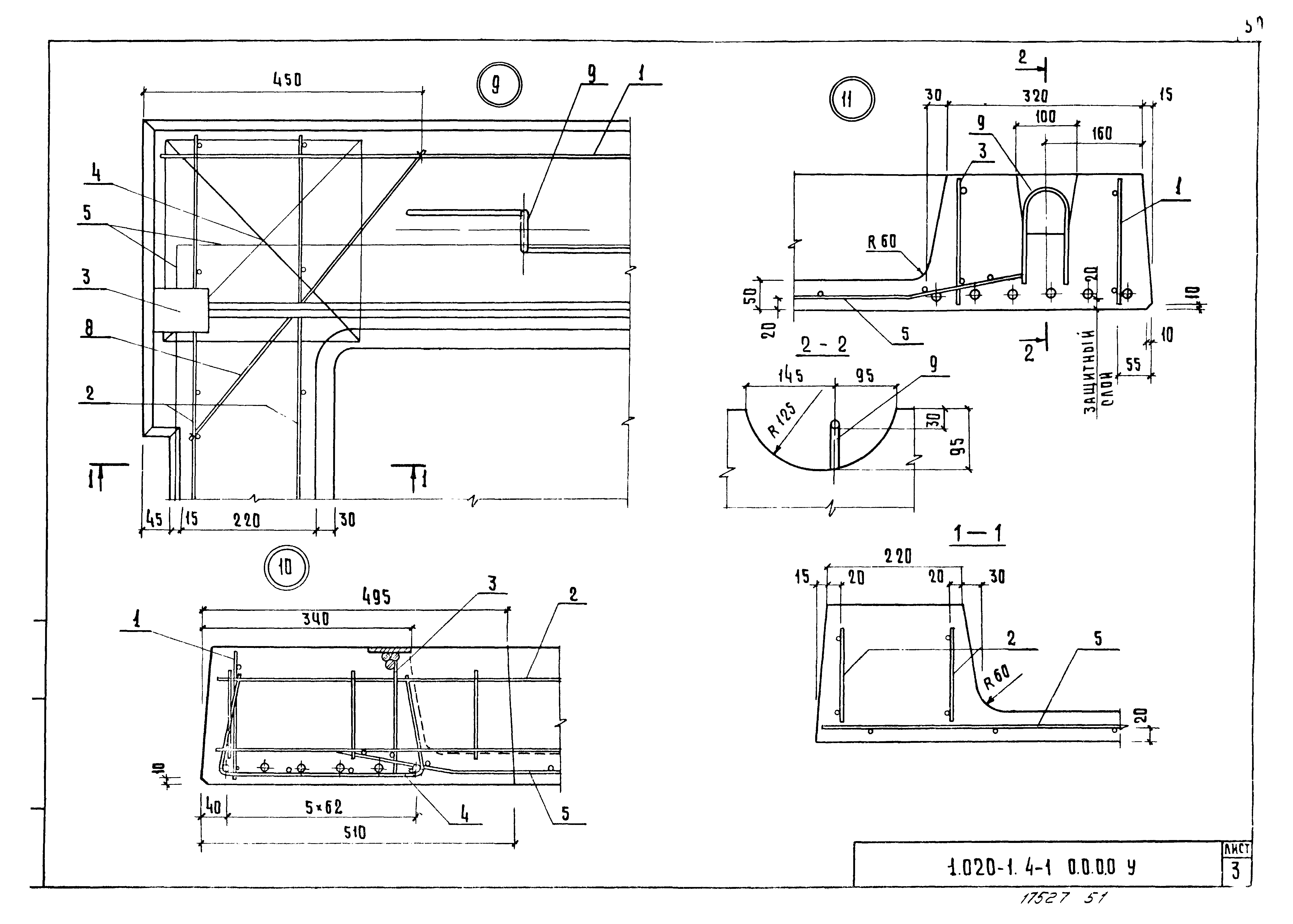
| Оглавление: | Содержание 1.020-1.4-1.0.0.0.0ПЗ Пояснительная записка 1.020-1.4-1.1.0.0.0 Рядовая панель перекрытия ПК86.12 1.020-1.4-1.2.0.0.0 Рядовая панель перекрытия ПК86.15 1.020-1.4-1.3.0.0.0 Связевая панель перекрытия ПК86.15 1.020-1.4-1.4.0.0.0 Пристенная панель перекрытия ПК86.15 1.020-1.4-1.5.0.0.0 Сантехническая плита перекрытия ПРС86.15 1.020-1.4-1.0.0.0.0У Узлы 1.020-1.4-1.0.0.1.0 Сетка С 1.020-1.4-1.0.0.2.0 Каркас плоский КР 1.020-1.4-1.0.0.3.0 Каркас плоский КР 1.020-1.4-1.0.0.0.1 Петля строповочная СП |
| Разработан: | НИИЖБ Госстроя СССР ЦНИИпромзданий ЦНИИЭП торгово-бытовых зданий и туристских комплексов |
| Утверждён: | 16.11.1981 Госстрой СССР (Государственный комитет Совета Министров СССР по делам строительства) (USSR Gosstroy 190) |
| Расположен в: | |
| Заменяет собой: |
|
| Чем заменён: |

























































