| ||||||||||||||||||||||||||||||
Скачать Серия 1.020-1 Выпуск 2-5. Колонны сечением 300х300 и 400х400 мм. Арматурные изделия. Рабочие чертежиДата актуализации: 10.08.2017
|
| Обозначение: | Серия 1.020-1 |
| Обозначение англ: | Series 1.020-1 |
| Статус: | заменен |
| Название рус.: | Выпуск 2-5. Колонны сечением 300х300 и 400х400 мм. Арматурные изделия. Рабочие чертежи |
| Дата добавления в базу: | 01.09.2013 |
| Дата актуализации: | 05.05.2017 |
| Дата введения: | 01.10.1984 |
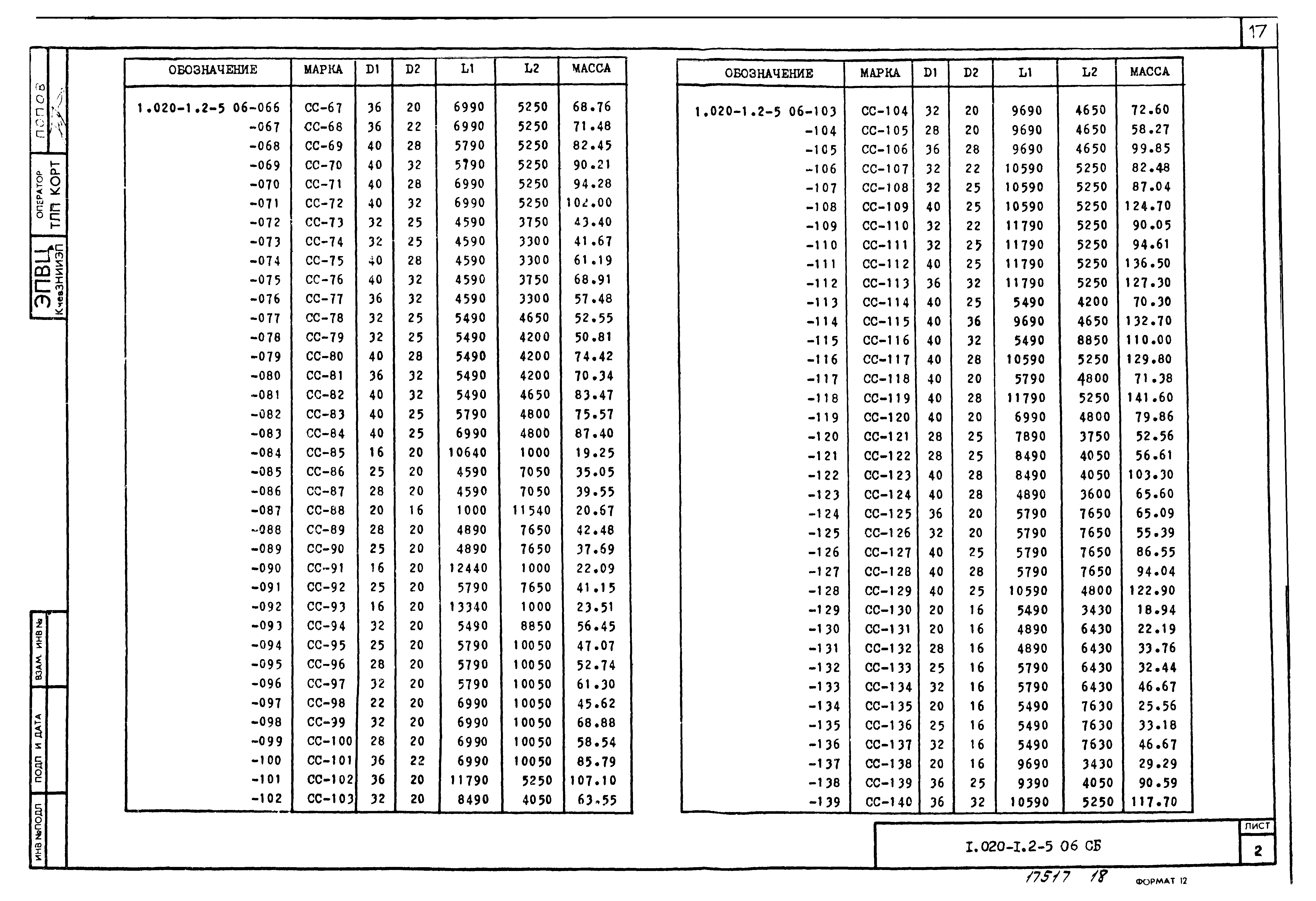
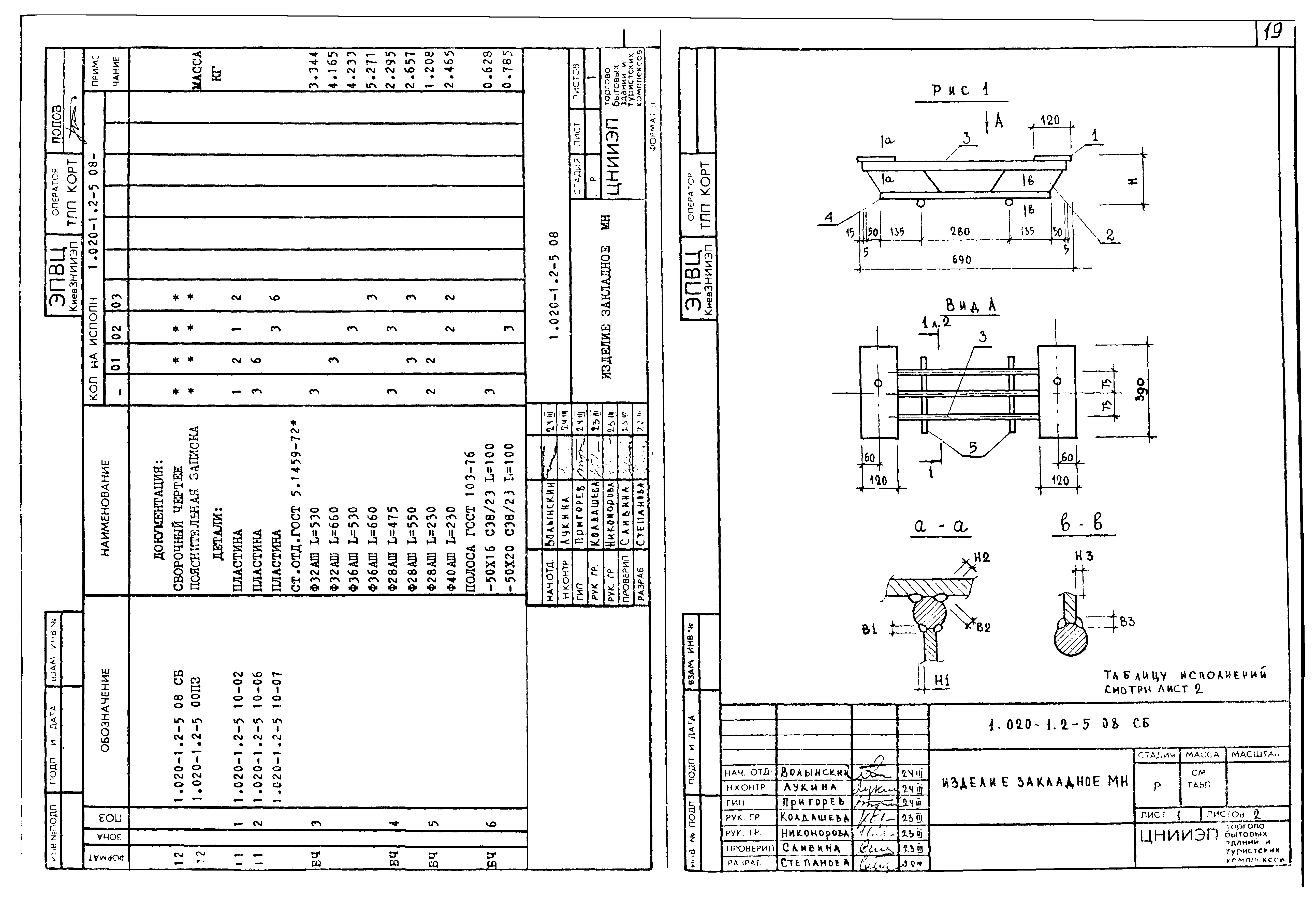
| Оглавление: | Содержание 1.020-1.2-5 00ПЗ Пояснительная записка 1.020-1.2-5 01 Сетка 1.020-1.2-5 02 Сетка 1.020-1.2-5 03 Стержень отдельный 1.020-1.2-5 04 Изделие закладное 1.020-1.2-5 05 Стержень отдельный 1.020-1.2-5 06 Стержень сварной СС 1.020-1.2-5 07 Изделие закладное 1.020-1.2-5 08 Изделие закладное 1.020-1.2-5 09 Сетка 1.020-1.2-5 10 Пластина 1.020-1.2-5 11 Сетка косвенного армирования 1.020-1.2-5 12 Пластина 1.020-1.2-5 13 Пластина 1.020-1.2-5 14 Изделие закладное 1.020-1.2-5 15 Изделие закладное 1.020-1.2-5 16 Изделие закладное 1.020-1.2-5 17 Изделие закладное 1.020-1.2-5 18 Изделие закладное 1.020-1.2-5 19 Изделие закладное 1.020-1.2-5 20 Изделие закладное 1.020-1.2-5 21 Пластина 1.020-1.2-5 22 Пластина 1.020-1.2-5 23 Пластина 1.020-1.2-5 24 Пластина |
| Разработан: | НИИЖБ Госстроя СССР ЦНИИпромзданий ЦНИИЭП торгово-бытовых зданий и туристских комплексов |
| Утверждён: | 16.11.1981 Госстрой СССР (Государственный комитет Совета Министров СССР по делам строительства) (USSR Gosstroy 190) |
| Расположен в: | |
| Заменяет собой: |
|
| Чем заменён: |




































