Информационная система
«Ёшкин Кот»

Скачать базу одним архивом
Скачать обновления
История создания базы
Карта сайта

Скачать Серия 1.420-8 Выпуск 7. Разные стальные конструктивные элементы. Рабочие чертежи

Дата актуализации: 10.08.2017

Серия 1.420-8

Выпуск 7. Разные стальные конструктивные элементы. Рабочие чертежи

Обозначение: Серия 1.420-8
Обозначение англ: Series 1.420-8
Статус:не действует
Название рус.:Выпуск 7. Разные стальные конструктивные элементы. Рабочие чертежи
Дата добавления в базу:01.09.2013
Дата актуализации:05.05.2017
Дата введения:01.12.1978
Дата окончания срока действия:01.02.1987
Оглавление:Титульный лист
Содержание
Пояснительная записка
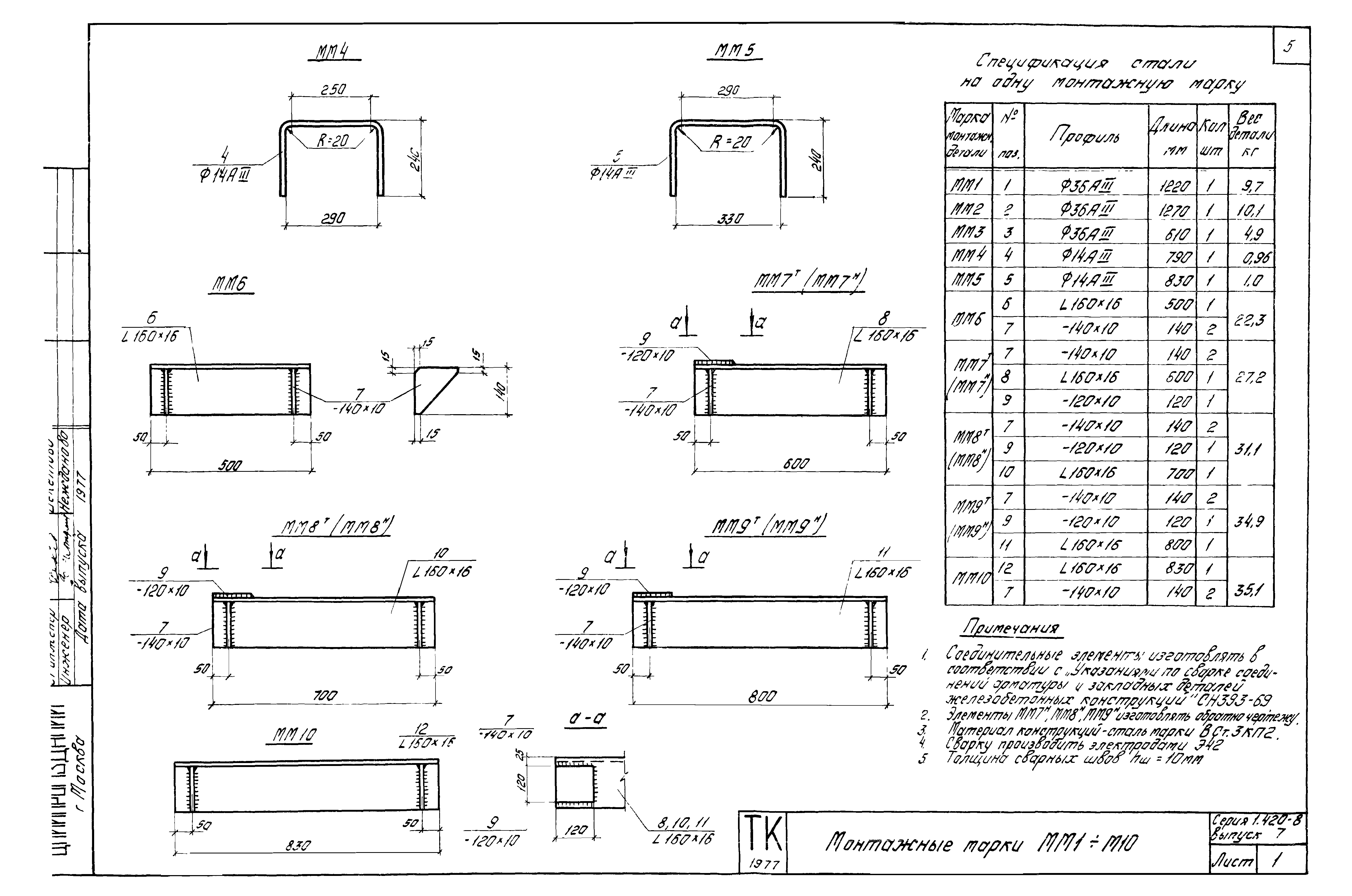
Монтажные марки ММ1-ММ10
Монтажные марки ММ11-ММ24
Консоль КР1,КР2,КР3
Вертикальная связь СВ1
Вертикальная связь СВ2
Вертикальная связь СВ3
Вертикальная связь СВ4
Вертикальная связь СВ5
Вертикальная связь СВ6
Вертикальная связь СВ7
Вертикальная связь СВ8
Вертикальная связь СВ9
Вертикальная связь СВ10
Вертикальная связь СВ11
Вертикальная связь СВ12
Вертикальная связь СВ15
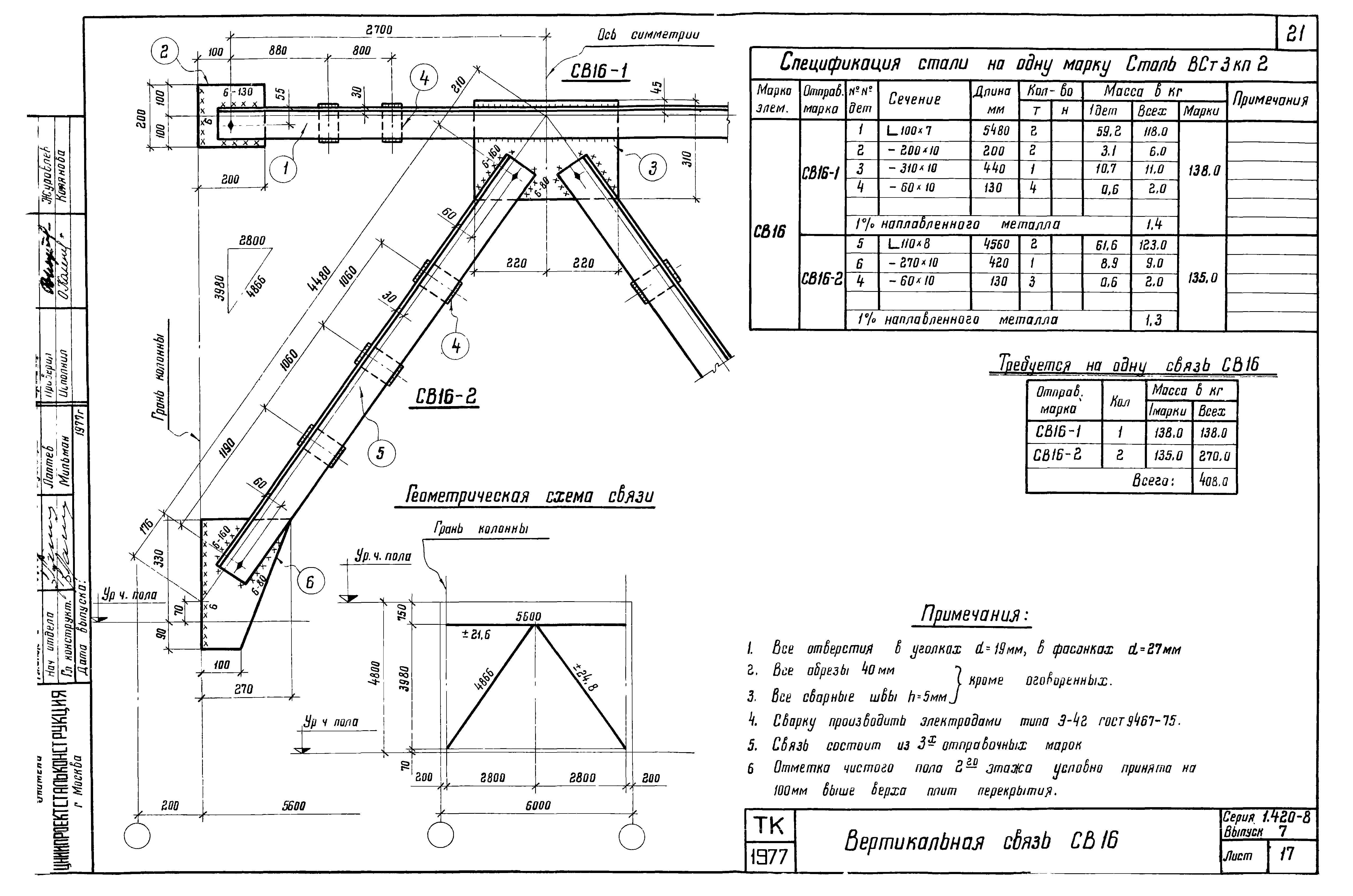
Вертикальная связь СВ16
Вертикальная связь СВ17
Вертикальная связь СВ18
Вертикальная связь СВ19
Вертикальная связь СВ20
Вертикальная связь СВ21
Вертикальная связь СВ23
Вертикальная связь СВ24
Вертикальная связь СВ25
Вертикальная связь СВ26
Вертикальная связь СВ27
Вертикальная связь СВ28
Вертикальная связь СВ29
Вертикальная связь СВ30
Вертикальная связь СВ32
Вертикальная связь СВ33
Вертикальная связь СВ34
Вертикальная связь СВ35
Вертикальная связь СВ36
Вертикальная связь СВ37
Вертикальная связь СВ38
Вертикальная связь СВ39
Вертикальная связь СВ40
Вертикальная связь СВ41
Вертикальная связь СВ42
Вертикальная связь СВ43
Вертикальная связь СВ44
Вертикальная связь СВ45
Вертикальная связь СВ46
Вертикальная связь СВ47
Распорки Р1,Р2,Р3,Р4,Р5
Распорки РТ1,РТ2,РТ3,РТ4,РТ5
Узлы 15,16,17,18. Сопряжение вертикальных связей с ж.б. колоннами
Узлы 19,20,21. Сопряжение вертикальных связей с ж.б. колоннами
Разработан: ЦНИИпромзданий
ЦНИИпроектстальконструкция
Утверждён:31.07.1978 Госстрой СССР (Государственный комитет Совета Министров СССР по делам строительства) (USSR Gosstroy 151)
Расположен в:Техническая документация Строительство Справочные документы Типовые строительные конструкции, изделия и узлы Общероссийский строительный каталог Строительные конструкции, изделия и узлы зданий и сооружений для всех видов строительства Конструкции, изделия и узлы зданий Несущие конструкции двухэтажных и многоэтажных зданий Каркасные здания
Серия 1.420-8Серия 1.420-8Серия 1.420-8Серия 1.420-8Серия 1.420-8Серия 1.420-8Серия 1.420-8Серия 1.420-8Серия 1.420-8Серия 1.420-8Серия 1.420-8Серия 1.420-8Серия 1.420-8Серия 1.420-8Серия 1.420-8Серия 1.420-8Серия 1.420-8Серия 1.420-8Серия 1.420-8Серия 1.420-8Серия 1.420-8Серия 1.420-8Серия 1.420-8Серия 1.420-8Серия 1.420-8Серия 1.420-8Серия 1.420-8Серия 1.420-8Серия 1.420-8Серия 1.420-8Серия 1.420-8Серия 1.420-8Серия 1.420-8Серия 1.420-8Серия 1.420-8Серия 1.420-8Серия 1.420-8Серия 1.420-8Серия 1.420-8Серия 1.420-8Серия 1.420-8Серия 1.420-8Серия 1.420-8Серия 1.420-8Серия 1.420-8Серия 1.420-8Серия 1.420-8Серия 1.420-8Серия 1.420-8Серия 1.420-8Серия 1.420-8Серия 1.420-8Серия 1.420-8Серия 1.420-8Серия 1.420-8Серия 1.420-8

© 2013 Ёшкин Кот :-) Карта сайта