Информационная система
«Ёшкин Кот»

Скачать базу одним архивом
Скачать обновления
История создания базы
Карта сайта

Скачать Типовой проект 902-1-75.83 Альбом IV. Строительные решения. Подземная часть. Монолитный вариант (открытый способ в сухих грунтах)

Дата актуализации: 10.08.2017

Типовой проект 902-1-75.83

Альбом IV. Строительные решения. Подземная часть. Монолитный вариант (открытый способ в сухих грунтах)

Обозначение: Типовой проект 902-1-75.83
Обозначение англ: 902-1-75.83
Статус:действует
Название рус.:Альбом IV. Строительные решения. Подземная часть. Монолитный вариант (открытый способ в сухих грунтах)
Дата добавления в базу:01.09.2013
Дата актуализации:05.05.2017
Дата введения:28.10.1983
Оглавление:Содержание
Основной комплект КЖ
Общие данные
Планы подземной части на отм. -6.920 и -8.105. Разрезы 1-1;2-2
Схема расположения элементов подземной части
СТМ1. Развертка. Разрезы 3-3,4-4
Плита днища ПДМ1. Общий вид и схема армирования
Плита днища ПДМ1. Схема армирования. Спецификация
СТМ1,СТМ2. Схема армирования
СТМ1,СТМ2. Схема армирования. Спецификация
РКМ2. Перекрытие на отм. -6.200. План и сечения 1-1-3-3,7-7
РКМ2. Перекрытие на отм. -6.200. Элемент плана № 1. Сечения 4-4-6-6
РКМ2. Схема армирования. Плита ПМ1. Балки БМ1-БМ3
РКМ2, РКМ3. Схема армирования. Балки БМ4-БМ8, колонны КМ1,КМ2. Схема армирования
РКМ2. Лоток ЛТМ1. Схема армирования
РКМ2. Спецификация перекрытия (начало)
РКМ2. Спецификация перекрытия (окончание)
РКМ3. Перекрытие на отм. -6.200. План и сечения 1-1-3-3,7-7
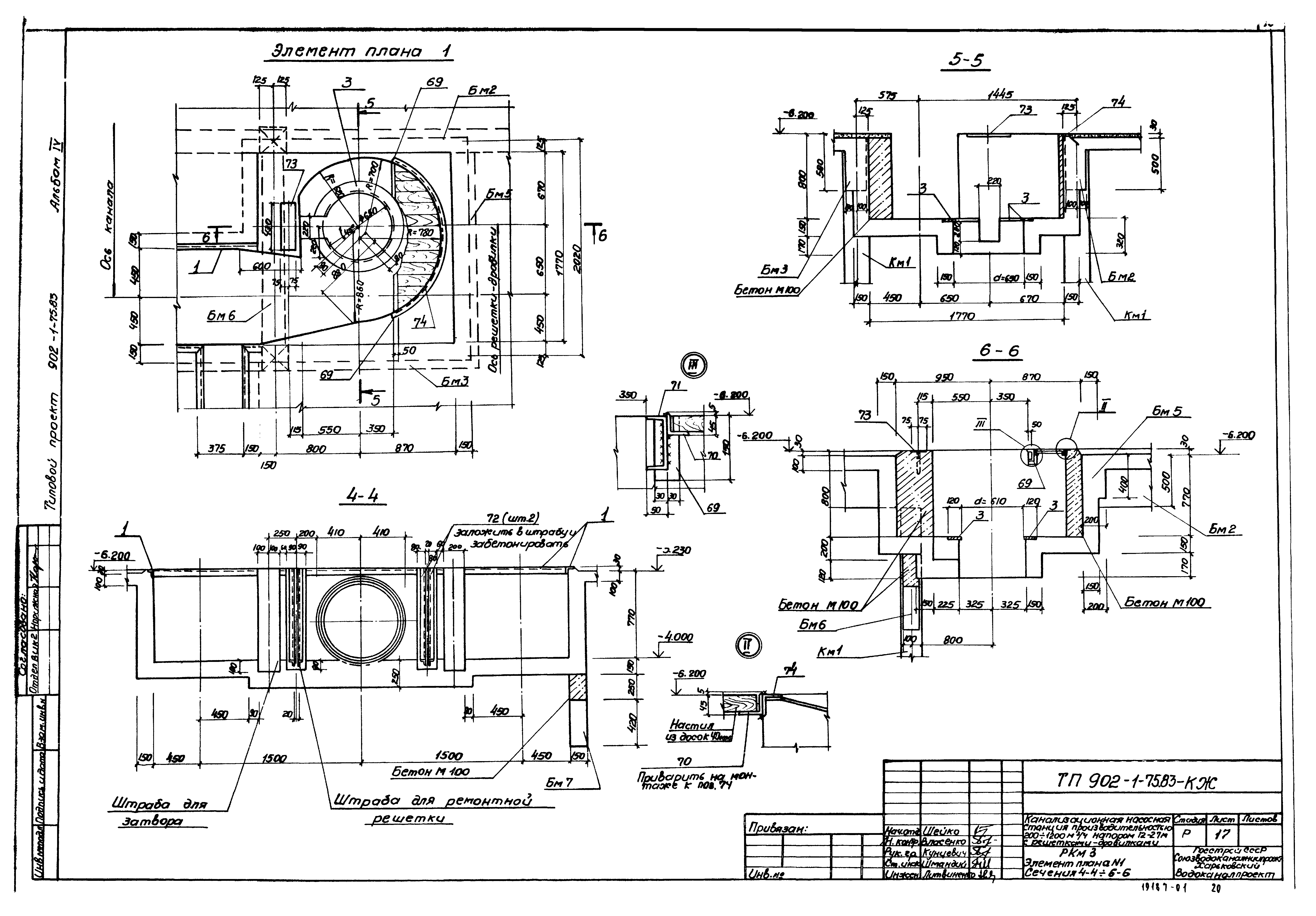
РКМ3. Перекрытие на отм. -6.200. Элемент плана № 1. Сечения 4-4-6-6
РКМ3. Схема армирования. Плита ПМ2. Балки БМ1-БМ3
РКМ3. Лоток ЛТМ2. Схема армирования
РКМ3. Схема армирования. Спецификация (начало)
РКМ3. Схема армирования. Спецификация (окончание)
Основной комплект КМ
Общие данные (начало)
Общие данные (окончание)
Схема расположения лестниц и лестничных площадок. Разрезы 1-1,2-2
Схемы узлов лестниц. Узел 1
Узлы 2-5
Разработан: Харьковский Водоканалпроект
Утверждён:27.06.1983 СоюзводоканалНИИпроект (SoyuzvodokanalNIIproject 32)
Расположен в:Техническая документация Строительство Справочные документы Типовые строительные конструкции, изделия и узлы Общероссийский строительный каталог Промышленные предприятия, здания и сооружения Здания и сооружения санитарно-технические Канализация Станции насосные Станции насосные для перекачки бытовых сточных вод
Типовой проект 902-1-75.83Типовой проект 902-1-75.83Типовой проект 902-1-75.83Типовой проект 902-1-75.83Типовой проект 902-1-75.83Типовой проект 902-1-75.83Типовой проект 902-1-75.83Типовой проект 902-1-75.83Типовой проект 902-1-75.83Типовой проект 902-1-75.83Типовой проект 902-1-75.83Типовой проект 902-1-75.83Типовой проект 902-1-75.83Типовой проект 902-1-75.83Типовой проект 902-1-75.83Типовой проект 902-1-75.83Типовой проект 902-1-75.83Типовой проект 902-1-75.83Типовой проект 902-1-75.83Типовой проект 902-1-75.83Типовой проект 902-1-75.83Типовой проект 902-1-75.83Типовой проект 902-1-75.83Типовой проект 902-1-75.83Типовой проект 902-1-75.83Типовой проект 902-1-75.83Типовой проект 902-1-75.83Типовой проект 902-1-75.83Типовой проект 902-1-75.83Типовой проект 902-1-75.83

© 2013 Ёшкин Кот :-) Карта сайта