Информационная система
«Ёшкин Кот»

Скачать базу одним архивом
Скачать обновления
История создания базы
Карта сайта

Скачать РД 31.11.21.18-96 Правила перевозки грузов в контейнерах морским транспортом

Дата актуализации: 10.08.2017

РД 31.11.21.18-96

Правила перевозки грузов в контейнерах морским транспортом

Обозначение: РД 31.11.21.18-96
Обозначение англ: RD 31.11.21.18-96
Статус:действует
Название рус.:Правила перевозки грузов в контейнерах морским транспортом
Дата добавления в базу:01.09.2013
Дата актуализации:05.05.2017
Дата введения:01.02.1997
Область применения:Правила устанавливают общие условия перевозки контейнеров и грузов в контейнерах, а также основные технические требования к размещению и креплению грузов в контейнерах на судне, обеспечивающие безопасность перевозки и сохранность груза.
Оглавление:Область применения
Раздел 1. Коммерческие условия перевозки грузов в универсальных контейнерах
   1.1 Общие положения
   1.2 Перевозка грузов в контейнерах морем
   1.3 Особенности перевозки грузов в контейнерах по видам сообщений
   1.4 Прием и передача контейнеров в портах
Приложение 1.1 Основные характеристики универсальных контейнеров
Приложение 1.2 Таблички КБК и КТК
Приложение 1.3 Способ и порядок навешивания свинцовых пломб
Приложение 1.4 Содержание значений выполнения операций по загрузке и разгрузке контейнеров
Приложение 1.5 Маршрутная карточка
Раздел 2. Технические требования к размещению и креплению контейнеров на судах
   2.1 Общие положения
   2.2 Требования к контейнерам
   2.3 Требования к судам
   2.4 Требования к размещению контейнеров на судне. Грузовой план
   2.5 Наставление по креплению контейнеров
   2.6 Поддержание безопасности судна в течение погрузки и рейса
Приложение 2.1 Габаритные и прочностные характеристики контейнеров серии 1 стандарта ИСО
Приложение 2.2 Допускаемые величины нагрузок на средства крепления контейнеров
Приложение 2.3 Грузовой план
Раздел 3. Технические требования к размещению и креплению грузов в контейнерах и открытых средствах укрупнения
    3.1 Технические требования к размещению и креплению грузов в контейнерах
      Приложение 3.1.1 Характеристики грузов по условиям режима перевозки в контейнерах
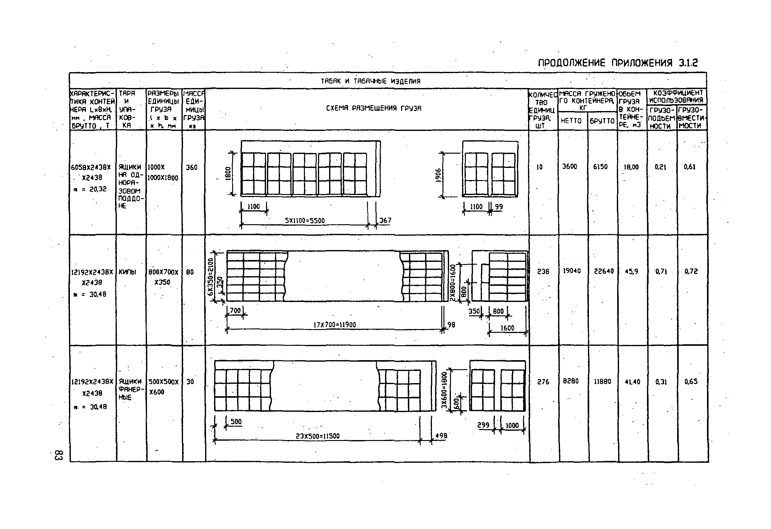
      Приложение 3.1.2 Рекомендуемые схемы размещения грузов в контейнерах
      Приложение 3.1.4 Свидетельство о загрузке контейнера опасными грузами
   3.2 Технические требования к размещению и креплению грузов в открытых контейнерах, контейнерах-платформах, ролл-трейлерах)
Раздел 4. Международные руководства по размещению, укладке и креплению грузов в контейнерах и транспортных средствах
   4.1 Руководство по укладке грузов в контейнеры или транспортные средства. ИМО/МОТ
   4.2 Руководство по размещению и укладке груза в грузовых контейнерах, съемных кузовах и транспортных средствах и по обработке и креплению контейнеров, ЕЭК ООН
Разработан: ЗАО ЦНИИМФ
Утверждён:22.10.1996 Федеральная служба морского флота России (39)
Издан: ЗАО ЦНИИМФ (1997 г. )
Расположен в:Техническая документация Экология СУДОСТРОЕНИЕ И МОРСКИЕ СООРУЖЕНИЯ Судостроение и морские сооружения в целом Судостроение и морские сооружения, общие аспекты
Заменяет собой:
  • РД 31.10.23-89
  • РД 31.11.21.18-80
  • РД 31.11.21.35-80
  • РД 31.11.21.36-80
Нормативные ссылки:
РД 31.11.21.18-96РД 31.11.21.18-96РД 31.11.21.18-96РД 31.11.21.18-96РД 31.11.21.18-96РД 31.11.21.18-96РД 31.11.21.18-96РД 31.11.21.18-96РД 31.11.21.18-96РД 31.11.21.18-96РД 31.11.21.18-96РД 31.11.21.18-96РД 31.11.21.18-96РД 31.11.21.18-96РД 31.11.21.18-96РД 31.11.21.18-96РД 31.11.21.18-96РД 31.11.21.18-96РД 31.11.21.18-96РД 31.11.21.18-96РД 31.11.21.18-96РД 31.11.21.18-96РД 31.11.21.18-96РД 31.11.21.18-96РД 31.11.21.18-96РД 31.11.21.18-96РД 31.11.21.18-96РД 31.11.21.18-96РД 31.11.21.18-96РД 31.11.21.18-96РД 31.11.21.18-96РД 31.11.21.18-96РД 31.11.21.18-96РД 31.11.21.18-96РД 31.11.21.18-96РД 31.11.21.18-96РД 31.11.21.18-96РД 31.11.21.18-96РД 31.11.21.18-96РД 31.11.21.18-96РД 31.11.21.18-96РД 31.11.21.18-96РД 31.11.21.18-96РД 31.11.21.18-96РД 31.11.21.18-96РД 31.11.21.18-96РД 31.11.21.18-96РД 31.11.21.18-96РД 31.11.21.18-96РД 31.11.21.18-96РД 31.11.21.18-96РД 31.11.21.18-96РД 31.11.21.18-96РД 31.11.21.18-96РД 31.11.21.18-96РД 31.11.21.18-96РД 31.11.21.18-96РД 31.11.21.18-96РД 31.11.21.18-96РД 31.11.21.18-96РД 31.11.21.18-96РД 31.11.21.18-96РД 31.11.21.18-96РД 31.11.21.18-96РД 31.11.21.18-96РД 31.11.21.18-96РД 31.11.21.18-96РД 31.11.21.18-96РД 31.11.21.18-96РД 31.11.21.18-96РД 31.11.21.18-96РД 31.11.21.18-96РД 31.11.21.18-96РД 31.11.21.18-96РД 31.11.21.18-96РД 31.11.21.18-96РД 31.11.21.18-96РД 31.11.21.18-96РД 31.11.21.18-96РД 31.11.21.18-96РД 31.11.21.18-96РД 31.11.21.18-96РД 31.11.21.18-96РД 31.11.21.18-96РД 31.11.21.18-96РД 31.11.21.18-96РД 31.11.21.18-96РД 31.11.21.18-96РД 31.11.21.18-96РД 31.11.21.18-96РД 31.11.21.18-96РД 31.11.21.18-96РД 31.11.21.18-96РД 31.11.21.18-96РД 31.11.21.18-96РД 31.11.21.18-96РД 31.11.21.18-96РД 31.11.21.18-96РД 31.11.21.18-96РД 31.11.21.18-96РД 31.11.21.18-96РД 31.11.21.18-96РД 31.11.21.18-96РД 31.11.21.18-96РД 31.11.21.18-96РД 31.11.21.18-96РД 31.11.21.18-96РД 31.11.21.18-96РД 31.11.21.18-96РД 31.11.21.18-96РД 31.11.21.18-96РД 31.11.21.18-96РД 31.11.21.18-96РД 31.11.21.18-96РД 31.11.21.18-96РД 31.11.21.18-96РД 31.11.21.18-96РД 31.11.21.18-96РД 31.11.21.18-96РД 31.11.21.18-96РД 31.11.21.18-96РД 31.11.21.18-96РД 31.11.21.18-96РД 31.11.21.18-96РД 31.11.21.18-96РД 31.11.21.18-96РД 31.11.21.18-96РД 31.11.21.18-96РД 31.11.21.18-96РД 31.11.21.18-96РД 31.11.21.18-96РД 31.11.21.18-96РД 31.11.21.18-96РД 31.11.21.18-96РД 31.11.21.18-96РД 31.11.21.18-96РД 31.11.21.18-96РД 31.11.21.18-96РД 31.11.21.18-96РД 31.11.21.18-96РД 31.11.21.18-96РД 31.11.21.18-96РД 31.11.21.18-96РД 31.11.21.18-96РД 31.11.21.18-96РД 31.11.21.18-96РД 31.11.21.18-96РД 31.11.21.18-96РД 31.11.21.18-96РД 31.11.21.18-96РД 31.11.21.18-96РД 31.11.21.18-96РД 31.11.21.18-96РД 31.11.21.18-96РД 31.11.21.18-96РД 31.11.21.18-96РД 31.11.21.18-96РД 31.11.21.18-96РД 31.11.21.18-96РД 31.11.21.18-96РД 31.11.21.18-96РД 31.11.21.18-96РД 31.11.21.18-96РД 31.11.21.18-96РД 31.11.21.18-96РД 31.11.21.18-96РД 31.11.21.18-96РД 31.11.21.18-96РД 31.11.21.18-96РД 31.11.21.18-96РД 31.11.21.18-96РД 31.11.21.18-96РД 31.11.21.18-96РД 31.11.21.18-96РД 31.11.21.18-96РД 31.11.21.18-96

© 2013 Ёшкин Кот :-) Карта сайта