Скачать Типовой проект 902-1-71.83 Альбом IV. Строительные решения. Подземная часть. Сборно-монолитный вариант (открытый способ в сухих и мокрых грунтах)Дата актуализации: 10.08.2017 Типовой проект 902-1-71.83
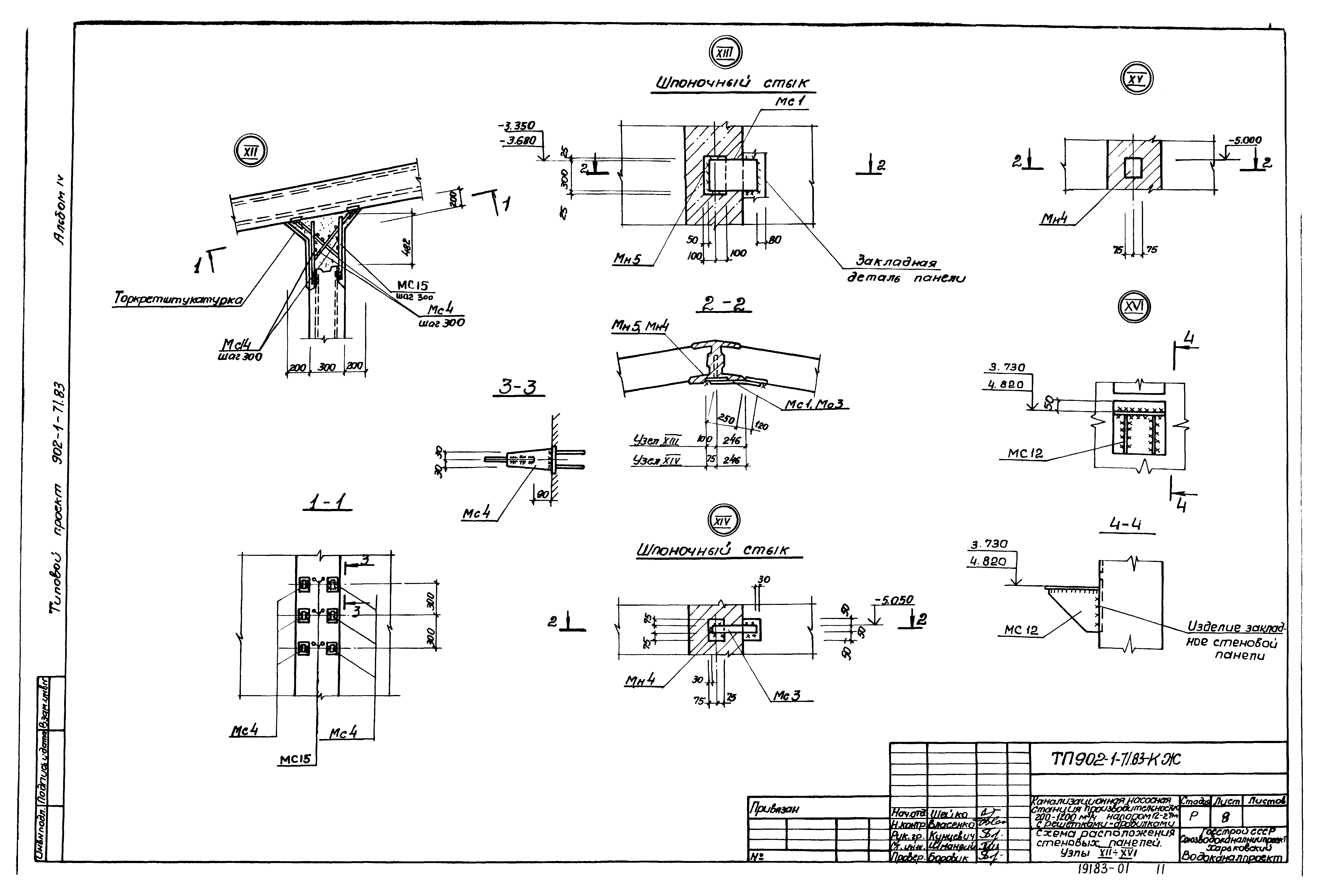
Альбом IV. Строительные решения. Подземная часть. Сборно-монолитный вариант (открытый способ в сухих и мокрых грунтах)Обозначение: | Типовой проект 902-1-71.83 | Обозначение англ: | 902-1-71.83 | Статус: | заменен | Название рус.: | Альбом IV. Строительные решения. Подземная часть. Сборно-монолитный вариант (открытый способ в сухих и мокрых грунтах) | Дата добавления в базу: | 01.09.2013 | Дата актуализации: | 05.05.2017 | Дата введения: | 01.11.1990 | Оглавление: | Содержание Основной комплект марки КЖ Общие данные План на отм. -5.650 и -3.200. Разрезы 1-1;2-2 Схема расположения монолитных конструкций подземной части (открытый способ в сухих и мокрых грунтах) Схема расположения стеновых панелей. Разрезы 1-1;2-2 Схема расположения стеновых панелей. Развертка наружной стены. Узлы 1,2 Схема расположения стеновых панелей. Узлы 3-7 Схема расположения стеновых панелей. Узлы 8-11 Схема расположения стеновых панелей. Узлы 12-16 Схема расположения стеновых панелей. Спецификация Плита днища ПДМ1. Схема армирования (в сухих грунтах) Плита днища ПДМ1. Схема армирования. Спецификация (в мокрых грунтах) Плита днища ПДМ1. Схема армирования (в мокрых грунтах) Плита днища ПДМ1. Схема армирования. Спецификация (в мокрых грунтах) РКМ2. Перекрытие на отм. -3.200. План, сечения 1-1 - 3-3,7-7 РКМ2. Перекрытие на отм. -3.200. Элемент плана 1. Сечения 4-4 - 6-6 РКМ2. Перекрытие на отм. -3.200. Схема армирования. Плита ПМ1. Балки БМ1-БМ3 РКМ2, РКМ3. Перекрытие на отм. -3.200. Схема армирования. Балки БМ4-БМ8, колонны КМ1,КМ2 РКМ2. Перекрытие на отм. -3.200. Лоток ЛТМ1. Схема армирования РКМ2. Спецификация перекрытия РКМ2 (начало) РКМ2. Спецификация перекрытия (окончание) РКМ3. Перекрытие на отм. -3.200. План и сечения 1-1 - 3-3,7-7 РКМ3. Перекрытие на отм. -3.200. Элемент плана 1. Сечения 4-4 - 6-6 РКМ3. Перекрытие на отм. -3.200. Схема армирования. Плита ПМ2. Балки БМ1-БМ3 РКМ3. Перекрытие на отм. -3.200. Лоток ЛТМ2. Схема армирования РКМ3. Спецификация перекрытия (начало) РКМ3. Спецификация перекрытия (окончание) Основной комплект марки КМ Общие данные (начало) Общие данные (окончание) Схема расположения лестниц и лестничных площадок. Разрезы 1-1,2-2 Схемы узлов лестниц. Узел 1 Узлы 2-5 | Разработан: | Харьковский Водоканалпроект
| Утверждён: | 27.06.1983 СоюзводоканалНИИпроект (SoyuzvodokanalNIIproject 32)
| Расположен в: |
| Чем заменён: | |
                                 
|