Информационная система
«Ёшкин Кот»

Скачать базу одним архивом
Скачать обновления
История создания базы
Карта сайта

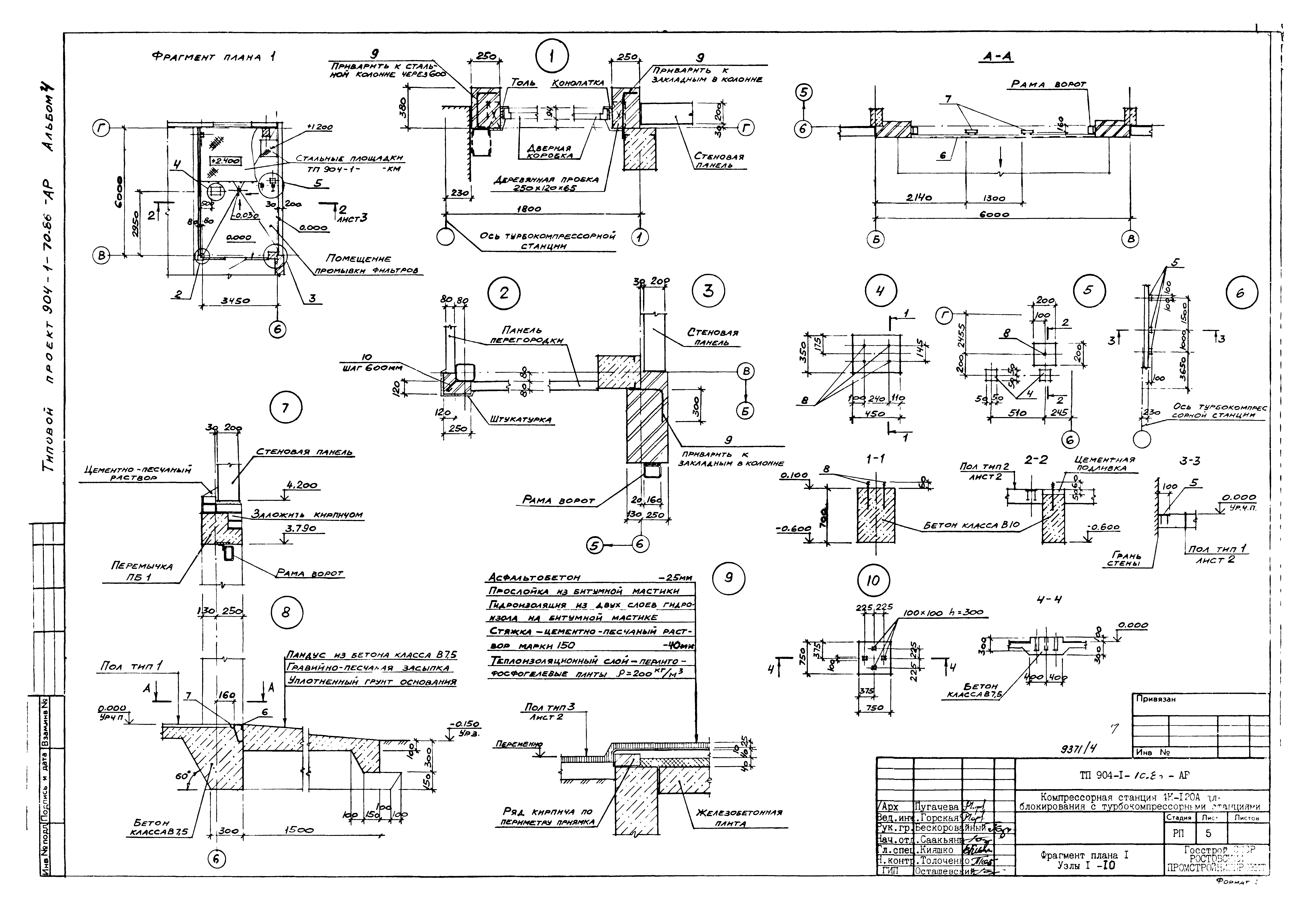
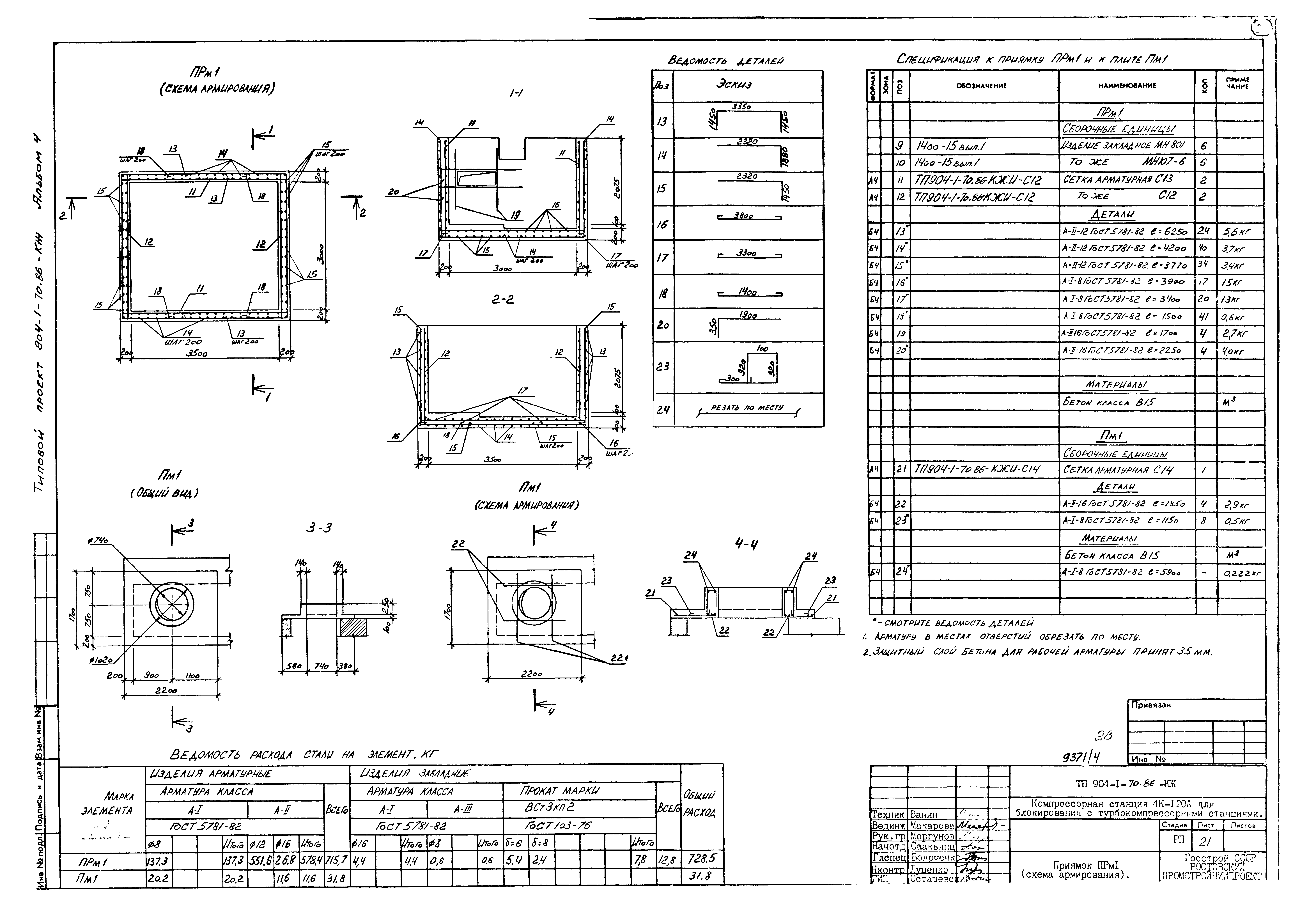
Скачать Типовой проект 904-1-70.86 Альбом 4. Строительные решения для 4 компрессоров

Дата актуализации: 10.08.2017

Типовой проект 904-1-70.86

Альбом 4. Строительные решения для 4 компрессоров

Обозначение: Типовой проект 904-1-70.86
Обозначение англ: 904-1-70.86
Статус:действует
Название рус.:Альбом 4. Строительные решения для 4 компрессоров
Дата добавления в базу:01.09.2013
Дата актуализации:05.05.2017
Дата введения:14.11.1986
Оглавление:ТП 904-1-70.86-ПЗ Пояснительная записка
ТП 904-1-70.86-АР Архитектурные решения
ТП 904-1-70.86-КЖ Конструкции железобетонные
ТП 904-1-70.86-КМ Конструкции металлические
ТП 904-1-70.86-ОВ Отопление и вентиляция
ТП 904-1-70.86-ВК Внутренние водопровод и канализация
Разработан: Ростовский Промстройниипроект Госстроя СССР
Утверждён:14.11.1986 Минстройдормаш (Minstroydormash 640)
Расположен в:Техническая документация Строительство Справочные документы Типовые строительные конструкции, изделия и узлы Общероссийский строительный каталог Промышленные предприятия, здания и сооружения Здания и сооружения санитарно-технические Воздухоснабжение, вентиляция и кондиционирование воздуха Воздухоснабжение
Типовой проект 904-1-70.86Типовой проект 904-1-70.86Типовой проект 904-1-70.86Типовой проект 904-1-70.86Типовой проект 904-1-70.86Типовой проект 904-1-70.86Типовой проект 904-1-70.86Типовой проект 904-1-70.86Типовой проект 904-1-70.86Типовой проект 904-1-70.86Типовой проект 904-1-70.86Типовой проект 904-1-70.86Типовой проект 904-1-70.86Типовой проект 904-1-70.86Типовой проект 904-1-70.86Типовой проект 904-1-70.86Типовой проект 904-1-70.86Типовой проект 904-1-70.86Типовой проект 904-1-70.86Типовой проект 904-1-70.86Типовой проект 904-1-70.86Типовой проект 904-1-70.86Типовой проект 904-1-70.86Типовой проект 904-1-70.86Типовой проект 904-1-70.86Типовой проект 904-1-70.86Типовой проект 904-1-70.86Типовой проект 904-1-70.86Типовой проект 904-1-70.86Типовой проект 904-1-70.86Типовой проект 904-1-70.86Типовой проект 904-1-70.86Типовой проект 904-1-70.86Типовой проект 904-1-70.86Типовой проект 904-1-70.86Типовой проект 904-1-70.86Типовой проект 904-1-70.86Типовой проект 904-1-70.86Типовой проект 904-1-70.86Типовой проект 904-1-70.86Типовой проект 904-1-70.86Типовой проект 904-1-70.86Типовой проект 904-1-70.86Типовой проект 904-1-70.86Типовой проект 904-1-70.86Типовой проект 904-1-70.86Типовой проект 904-1-70.86Типовой проект 904-1-70.86Типовой проект 904-1-70.86Типовой проект 904-1-70.86Типовой проект 904-1-70.86Типовой проект 904-1-70.86Типовой проект 904-1-70.86Типовой проект 904-1-70.86Типовой проект 904-1-70.86

© 2013 Ёшкин Кот :-) Карта сайта