Информационная система
«Ёшкин Кот»

Скачать базу одним архивом
Скачать обновления
История создания базы
Карта сайта

Скачать СТО 45089902-001-2010 Организация и проведение работ по монтажу оконных и дверных балконных блоков из ПВХ-профилей ЗАО профайн РУС

Дата актуализации: 10.08.2017

СТО 45089902-001-2010

Организация и проведение работ по монтажу оконных и дверных балконных блоков из ПВХ-профилей ЗАО "профайн РУС"

Обозначение: СТО 45089902-001-2010
Обозначение англ: STO 45089902-001-2010
Статус:действует
Название рус.:Организация и проведение работ по монтажу оконных и дверных балконных блоков из ПВХ-профилей ЗАО "профайн РУС"
Дата добавления в базу:01.09.2013
Дата актуализации:05.05.2017
Дата введения:01.08.2010
Область применения:Документ устанавливает общие требования, порядок организации и проведения работ по монтажу оконных и дверных балконных блоков из поливинилхлоридных профилей ЗАО "профайн РУС" в наружных стенах различного конструктивного решения.
Оглавление:1. Область применения
2. Нормативные ссылки
3. Термины и определения
4. Общие положения
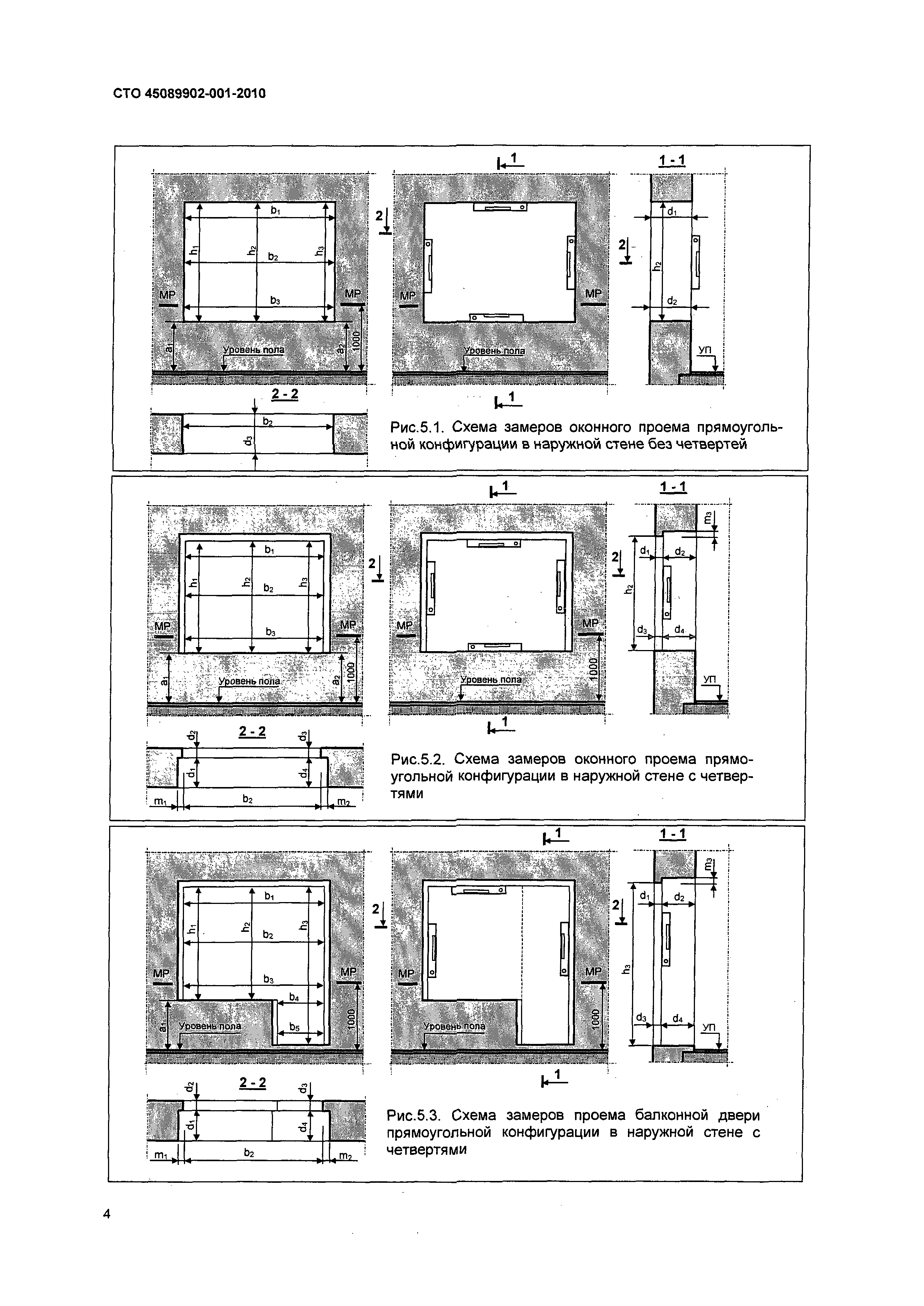
5. Проведение обмерных работ
   5.1 Требования к измерительному инструменту
   5.2 Измеряемые показатели, допуски
   5.3 Оценка температуры и относительной влажности воздуха помещений и работоспособности системы вентиляции
6. Определение размеров оконных блоков
7. Выбор конструктивного решения узлов примыканий оконных и дверных балконных блоков к наружным стенам
   7.1 Общие положения
   7.2 Размещение оконных блоков
   7.3 Обеспечение зазоров и крепление окон
   7.4 Утепление оконных откосов и монтажных швов
   7.5 Пароизоляция и гидроизоляция монтажных швов
   7.6 Узлы примыканий сливов, подоконников, облицовки оконных откосов
8. Общие указания по производству работ на строительной площадке
   8.1 Приемка оконных блоков перед монтажом
   8.2 Организация рабочего места
   8.3 Подготовка оконных проемов
   8.4 Монтаж оконных блоков
   8.5 Облицовка оконных блоков
9. Проверка качества монтажа
10. Хранение и транспортировка оконных блоков
11. Требования к персоналу
12. Требования к инструментам и приспособлениям для монтажа оконных блоков
13. Техника безопасности при производстве работ
14. Гарантии производителя работ
Приложение А. Перечень нормативно-технической документации, на которую даны ссылки в настоящем СТО
Приложение Б. Термины и определения, принятые в стандарте
Приложение В. Пример бланка обмеров оконных проемов
Приложение Г. Методика оценки производительности системы вентиляции квартиры
Приложение Д. Перечень инструментов и приспособлений для монтажа оконных блоков и облицовки оконных откосов
Приложение Е. Пример договора бытового подряда
Приложение Ж. Пример договора ответственного хранения
Приложение З. Карта трудового процесса. Монтаж оконных блоков в стенах реконструируемых зданий с применением саморасширяющихся уплотнительных и пароизоляционных лент
Приложение И. Карта трудового процесса. Монтаж оконных блоков в стенах строящихся зданий с применением уголковых профилей из ПВХ
Приложение К. Карта трудового процесса. Отделка оконных откосов облицовочными панелями с применением откосной системы из ПВХ-профилей
Приложение Д. Сведения о разработчиках стандарта
Разработан: АНО СО МИО
ЗАО профайн РУС
Утверждён:15.12.2010 ЗАО профайн РУС
Принят:15.12.2010 ООО НИУПЦ Межрегиональный институт окна
10.12.2010 АНО Омскстройсертификация
Расположен в:Техническая документация
Нормативные ссылки:
СТО 45089902-001-2010СТО 45089902-001-2010СТО 45089902-001-2010СТО 45089902-001-2010СТО 45089902-001-2010СТО 45089902-001-2010СТО 45089902-001-2010СТО 45089902-001-2010СТО 45089902-001-2010СТО 45089902-001-2010СТО 45089902-001-2010СТО 45089902-001-2010СТО 45089902-001-2010СТО 45089902-001-2010СТО 45089902-001-2010СТО 45089902-001-2010СТО 45089902-001-2010СТО 45089902-001-2010СТО 45089902-001-2010СТО 45089902-001-2010СТО 45089902-001-2010СТО 45089902-001-2010СТО 45089902-001-2010СТО 45089902-001-2010СТО 45089902-001-2010СТО 45089902-001-2010СТО 45089902-001-2010СТО 45089902-001-2010СТО 45089902-001-2010СТО 45089902-001-2010СТО 45089902-001-2010СТО 45089902-001-2010СТО 45089902-001-2010СТО 45089902-001-2010СТО 45089902-001-2010СТО 45089902-001-2010СТО 45089902-001-2010СТО 45089902-001-2010СТО 45089902-001-2010СТО 45089902-001-2010СТО 45089902-001-2010СТО 45089902-001-2010СТО 45089902-001-2010СТО 45089902-001-2010СТО 45089902-001-2010СТО 45089902-001-2010СТО 45089902-001-2010СТО 45089902-001-2010СТО 45089902-001-2010СТО 45089902-001-2010СТО 45089902-001-2010СТО 45089902-001-2010СТО 45089902-001-2010СТО 45089902-001-2010СТО 45089902-001-2010СТО 45089902-001-2010

© 2013 Ёшкин Кот :-) Карта сайта