Информационная система
«Ёшкин Кот»

Скачать базу одним архивом
Скачать обновления
История создания базы
Карта сайта

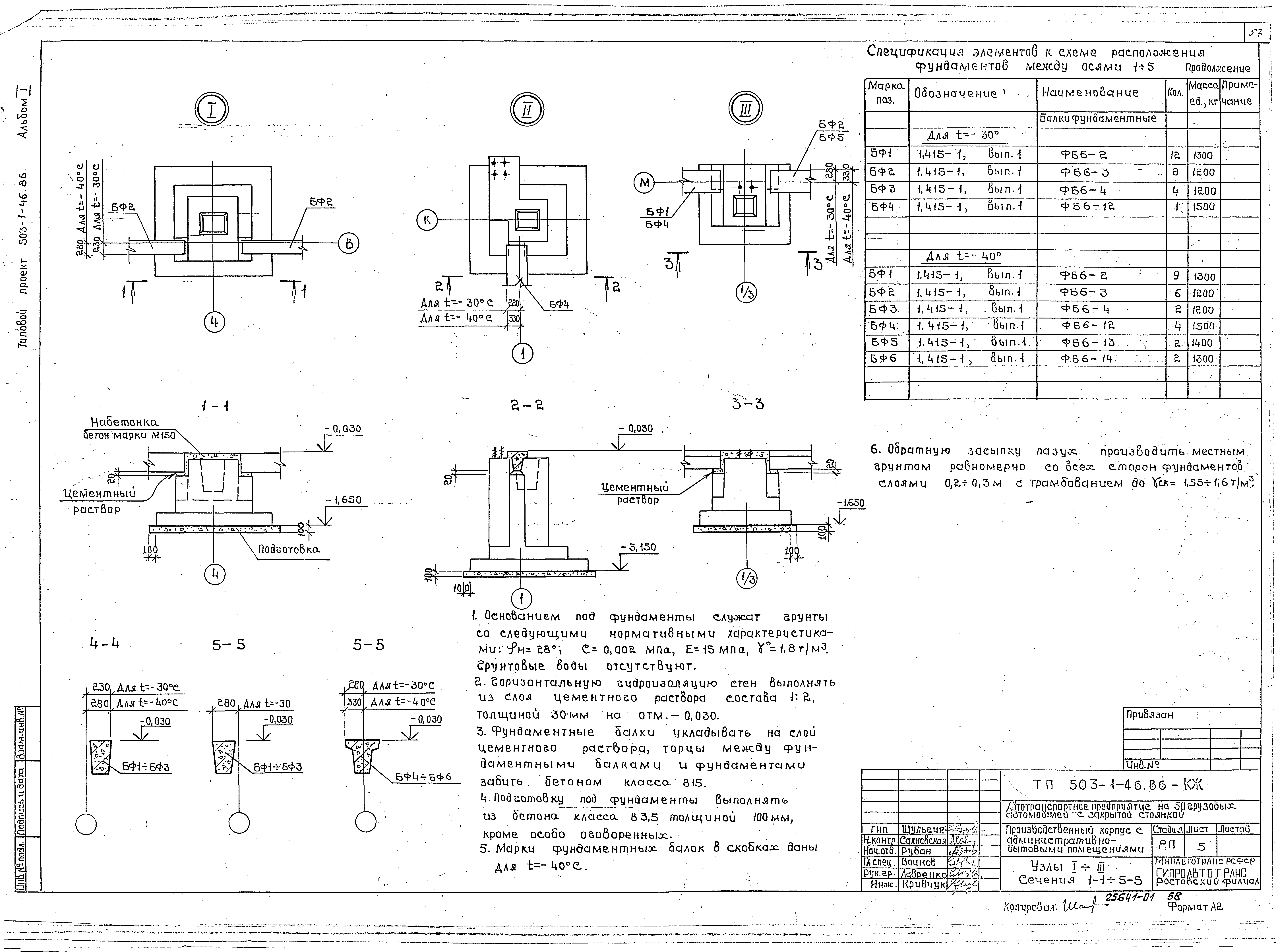
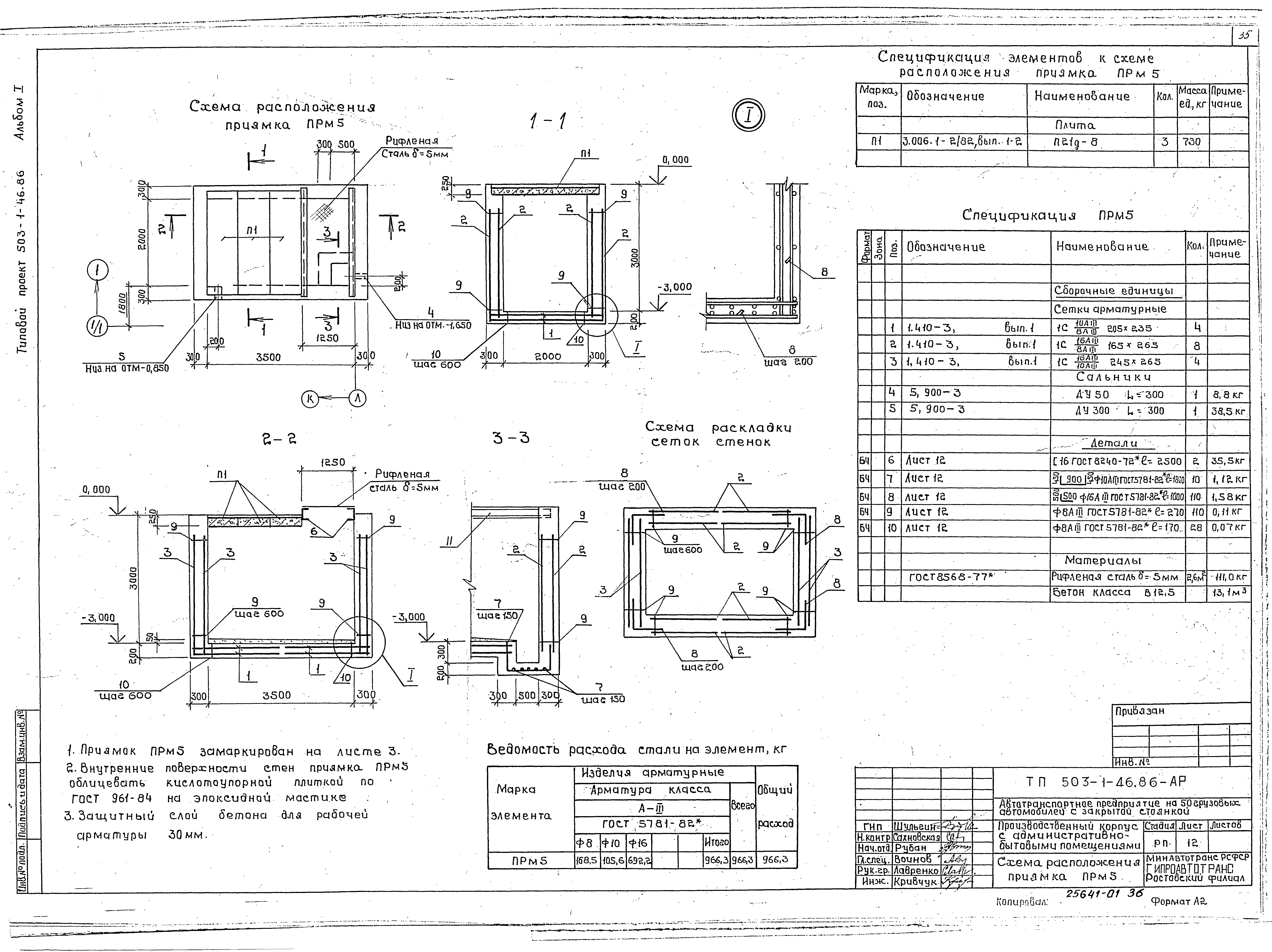
Скачать Типовой проект 503-1-46.86 Альбом I. Общая пояснительная записка. Технология производства. Архитектурные решения. Конструкции железобетонные. Конструкции металлические

Дата актуализации: 10.08.2017

Типовой проект 503-1-46.86

Альбом I. Общая пояснительная записка. Технология производства. Архитектурные решения. Конструкции железобетонные. Конструкции металлические

Обозначение: Типовой проект 503-1-46.86
Обозначение англ: 503-1-46.86
Статус:не определен законодательством
Название рус.:Альбом I. Общая пояснительная записка. Технология производства. Архитектурные решения. Конструкции железобетонные. Конструкции металлические
Дата добавления в базу:01.09.2013
Дата актуализации:05.05.2017
Дата введения:18.04.1986
Разработан: Ростовский филиал Гипроавтотранса Минавтотранса РСФСР
Утверждён:18.04.1986 Минавтотранс РСФСР (Russian Federation Minavtotrans 11)
Расположен в:Техническая документация Строительство Справочные документы Типовые строительные конструкции, изделия и узлы Общероссийский строительный каталог Промышленные предприятия, здания и сооружения Предприятия, здания и сооружения транспорта Транспорт автомобильный Предприятия автотранспортные, гаражи и стоянки для грузовых автомобилей и механизмов
Типовой проект 503-1-46.86Типовой проект 503-1-46.86Типовой проект 503-1-46.86Типовой проект 503-1-46.86Типовой проект 503-1-46.86Типовой проект 503-1-46.86Типовой проект 503-1-46.86Типовой проект 503-1-46.86Типовой проект 503-1-46.86Типовой проект 503-1-46.86Типовой проект 503-1-46.86Типовой проект 503-1-46.86Типовой проект 503-1-46.86Типовой проект 503-1-46.86Типовой проект 503-1-46.86Типовой проект 503-1-46.86Типовой проект 503-1-46.86Типовой проект 503-1-46.86Типовой проект 503-1-46.86Типовой проект 503-1-46.86Типовой проект 503-1-46.86Типовой проект 503-1-46.86Типовой проект 503-1-46.86Типовой проект 503-1-46.86Типовой проект 503-1-46.86Типовой проект 503-1-46.86Типовой проект 503-1-46.86Типовой проект 503-1-46.86Типовой проект 503-1-46.86Типовой проект 503-1-46.86Типовой проект 503-1-46.86Типовой проект 503-1-46.86Типовой проект 503-1-46.86Типовой проект 503-1-46.86Типовой проект 503-1-46.86Типовой проект 503-1-46.86Типовой проект 503-1-46.86Типовой проект 503-1-46.86Типовой проект 503-1-46.86Типовой проект 503-1-46.86Типовой проект 503-1-46.86Типовой проект 503-1-46.86Типовой проект 503-1-46.86Типовой проект 503-1-46.86Типовой проект 503-1-46.86Типовой проект 503-1-46.86Типовой проект 503-1-46.86Типовой проект 503-1-46.86Типовой проект 503-1-46.86Типовой проект 503-1-46.86Типовой проект 503-1-46.86Типовой проект 503-1-46.86Типовой проект 503-1-46.86Типовой проект 503-1-46.86Типовой проект 503-1-46.86Типовой проект 503-1-46.86Типовой проект 503-1-46.86Типовой проект 503-1-46.86Типовой проект 503-1-46.86Типовой проект 503-1-46.86Типовой проект 503-1-46.86Типовой проект 503-1-46.86Типовой проект 503-1-46.86Типовой проект 503-1-46.86Типовой проект 503-1-46.86Типовой проект 503-1-46.86Типовой проект 503-1-46.86Типовой проект 503-1-46.86Типовой проект 503-1-46.86Типовой проект 503-1-46.86Типовой проект 503-1-46.86Типовой проект 503-1-46.86Типовой проект 503-1-46.86Типовой проект 503-1-46.86Типовой проект 503-1-46.86Типовой проект 503-1-46.86Типовой проект 503-1-46.86Типовой проект 503-1-46.86Типовой проект 503-1-46.86Типовой проект 503-1-46.86Типовой проект 503-1-46.86Типовой проект 503-1-46.86Типовой проект 503-1-46.86Типовой проект 503-1-46.86Типовой проект 503-1-46.86Типовой проект 503-1-46.86Типовой проект 503-1-46.86Типовой проект 503-1-46.86Типовой проект 503-1-46.86Типовой проект 503-1-46.86Типовой проект 503-1-46.86Типовой проект 503-1-46.86Типовой проект 503-1-46.86Типовой проект 503-1-46.86Типовой проект 503-1-46.86

© 2013 Ёшкин Кот :-) Карта сайта