Информационная система
«Ёшкин Кот»

Скачать базу одним архивом
Скачать обновления
История создания базы
Карта сайта

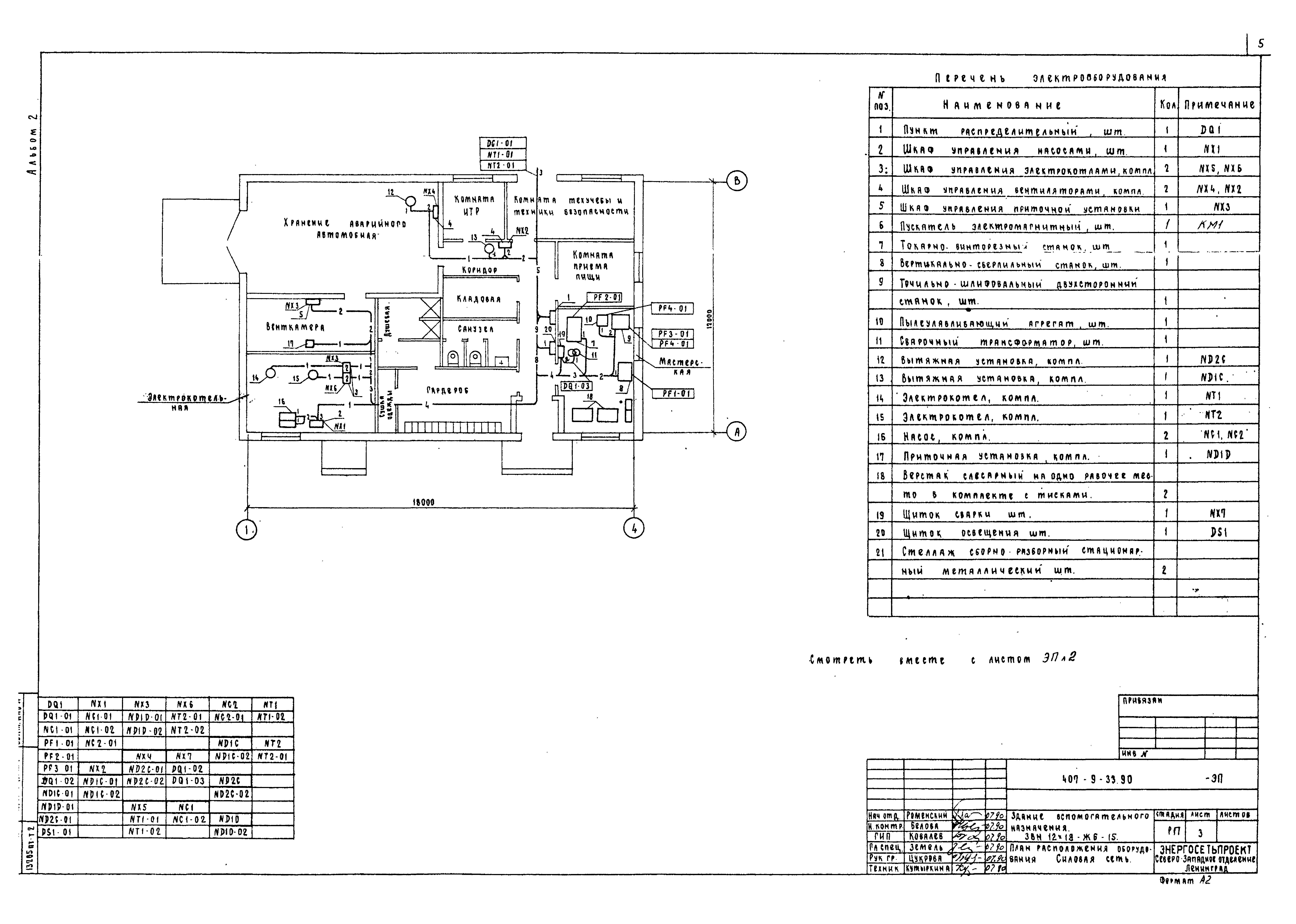
Скачать Типовой проект 407-9-33.90 Альбом 2. Электротехнические решения. Автоматизация и управления

Дата актуализации: 10.08.2017

Типовой проект 407-9-33.90

Альбом 2. Электротехнические решения. Автоматизация и управления

Обозначение: Типовой проект 407-9-33.90
Обозначение англ: 407-9-33.90
Статус:не определен законодательством
Название рус.:Альбом 2. Электротехнические решения. Автоматизация и управления
Дата добавления в базу:01.09.2013
Дата актуализации:05.05.2017
Дата введения:01.01.1992
Разработан: Северо-западное отделение института Энергосетьпроект
Утверждён:24.07.1990 Минэнерго СССР (USSR Minenergo 43)
Издан: Энергосетьпроект (1990 г. )
Расположен в:Техническая документация Строительство Справочные документы Типовые строительные конструкции, изделия и узлы Общероссийский строительный каталог Промышленные предприятия, здания и сооружения Предприятия, здания и сооружения промышленности и электроэнергетики Электроэнергетика Здания и сооружения разные
Типовой проект 407-9-33.90Типовой проект 407-9-33.90Типовой проект 407-9-33.90Типовой проект 407-9-33.90Типовой проект 407-9-33.90Типовой проект 407-9-33.90Типовой проект 407-9-33.90Типовой проект 407-9-33.90Типовой проект 407-9-33.90Типовой проект 407-9-33.90Типовой проект 407-9-33.90Типовой проект 407-9-33.90Типовой проект 407-9-33.90Типовой проект 407-9-33.90Типовой проект 407-9-33.90Типовой проект 407-9-33.90Типовой проект 407-9-33.90Типовой проект 407-9-33.90Типовой проект 407-9-33.90Типовой проект 407-9-33.90Типовой проект 407-9-33.90Типовой проект 407-9-33.90Типовой проект 407-9-33.90Типовой проект 407-9-33.90Типовой проект 407-9-33.90Типовой проект 407-9-33.90

© 2013 Ёшкин Кот :-) Карта сайта