Информационная система
«Ёшкин Кот»

Скачать базу одним архивом
Скачать обновления
История создания базы
Карта сайта

Скачать Серия 4.407-256 Прокладка магистрального шинопровода серии Ш3М16УЗ на 1600А. Рабочие чертежи

Дата актуализации: 10.08.2017

Серия 4.407-256

Прокладка магистрального шинопровода серии Ш3М16УЗ на 1600А. Рабочие чертежи

Обозначение: Серия 4.407-256
Обозначение англ: Series 4.407-256
Статус:не действует
Название рус.:Прокладка магистрального шинопровода серии Ш3М16УЗ на 1600А. Рабочие чертежи
Дата добавления в базу:01.09.2013
Дата актуализации:05.05.2017
Дата введения:17.09.1979
Дата окончания срока действия:01.03.1987
Оглавление:4.407-256-Д Общие данные
Примеры прокладки шинопроводов
4.407-256-01 Прокладка шинопровода по стене. Подъем трассы с применением угловых и прямых секций
4.407-256-02 Прокладка шинопровода по стене. Подъем трассы с применением угловых и подгоночной секции
4.407-256-03 Прокладка шинопровода по стене. Подъем трассы с применением угловых секций
4.407-256-04 Прокладка шинопровода по стене. Поворот трассы в горизонтальной плоскости с применением угловых секций Ш3М16-УГУЗ
4.407-256-05 Прокладка шинопровода по колоннам. Кронштейны по центру
4.407-256-06 Конечное крепление шинопровода, проложенного по колоннам
4.407-256-07 Прокладка шинопровода на стойках
4.407-256-08 Прокладка шинопровода под перекрытием. Обход одного шинопровода с применением угловых секций
4.407-256-09 Прокладка шинопровода под перекрытием. Обход двух шинопроводов с применением прямой и подгоночной секций
4.407-256-10 Прокладка шинопровода на перилах светотехнических мостиков
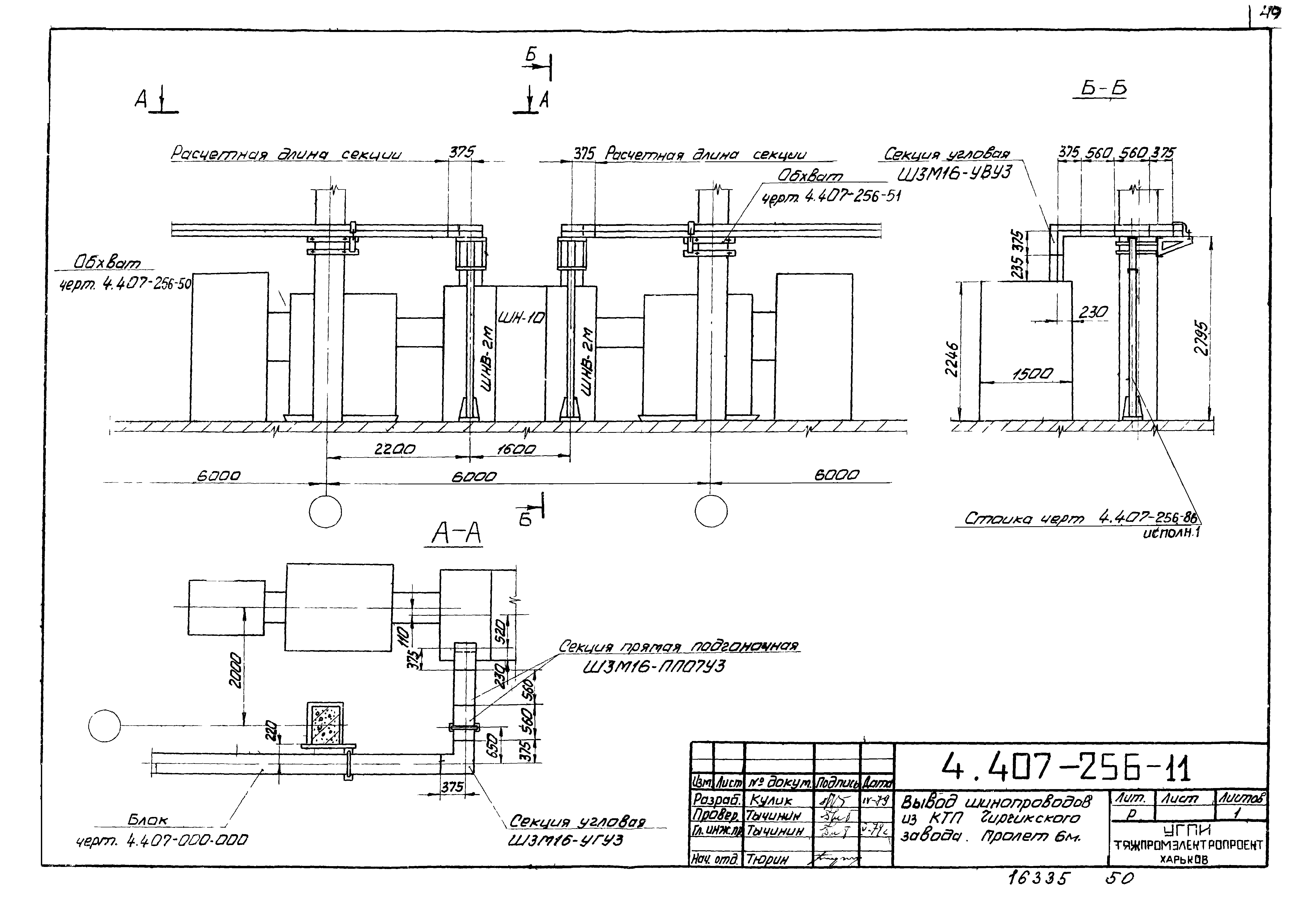
4.407-256-11 Вывод шинопроводов из КТП Чиркизовского завода. Пролет 6 м
4.407-256-12 Вывод шинопроводов из КТП Чиркизовского завода. Пролет 12 м
4.407-256-13 Вывод шинопроводов из КТП Хмельницкого завода. Пролет 6 м
4.407-256-14 Вывод шинопроводов из КТП Хмельницкого завода. Пролет 12 м
4.407-256-15 Вертикальная прокладка шинопровода
Установочные чертежи
4.407-256-20 Установка тройниковой вертикальной секции Ш3М16-ТВУ3
4.407-256-21 Установка вертикального ответвления Ш3М16-ОВУ3
4.407-256-22 Установка секции Ш3М16-ПП07У3 для прохода шинопровода сквозь стену
4.407-256-23 Установка секции Ш3М16-ПП07У3 для прохода шинопровода сквозь перекрытие
Промежуточное крепление
4.407-256-24 Установка гибкой секции Ш3М16-ГУ3 на температурном шве здания
4.407-256-25 Установка секции кабельного присоединения Ш3М16-КПУ3
4.407-256-26 Установка шинопровода вдоль нижнего пояса металлической стропильной фермы
4.407-256-27 Установка шинопровода поперек нижнего пояса металлической стропильной фермы
4.407-256-28 Установка шинопровода вдоль нижнего пояса железобетонной стропильной фермы
4.407-256-29 Установка шинопровода поперек нижнего пояса железобетонной стропильной фермы
4.407-256-30 Установка промежуточного подвеса на подкрановой балке
4.407-256-31 Установка промежуточного подвеса на подкрановой балке
4.407-256-32 Крепление шинопровода к сборным ж.б. ригелям перекрытия
4.407-256-33 Крепление шинопровода на железобетонной или кирпичной стене или на колонне
4.407-256-34 Крепление двух шинопроводов к сборным ж.б. ригелям перекрытия
4.407-256-35 Крепление шинопровода к второстепенным балкам монолитного перекрытия
4.407-256-36 Крепление двух шинопроводов к второстепенным балкам монолитного перекрытия
4.407-256-37 Крепление шинопровода к сборным железобетонным плитам перекрытия
4.407-256-38 Крепление шинопровода между сборными железобетонными плитами перекрытия
4.407-256-39 Крепление шинопровода к перекрытию (сборному или монолитному)
4.407-256-40 Крепление шинопровода к перекрытию (сборному или монолитному)
4.407-256-41 Крепление шинопровода к пустотным плитам перекрытия
4.407-256-42 Крепление шинопровода к пустотным плитам перекрытия
4.407-256-43 Крепление стойки СШ к монолитному перекрытию
4.407-256-44 Крепление стойки СШ к железобетонной плите
4.407-256-45 Крепление стойки СШ к полу
Сборочные чертежи и детали
4.407-256-50 Обхват с одним кронштейном для прямоугольных ж.б. колонн
4.407-256-51 Обхват с одним кронштейном для прямоугольных ж.б. колонн
4.407-256-52 Обхват с одним кронштейном для прямоугольных ж.б. колонн
4.407-256-53 Обхват с двумя кронштейнами для прямоугольных ж.б. колонн
4.407-256-54 Обхват с одним кронштейном для ж.б. двухветвевых колонн
4.407-256-55 Обхват с одним кронштейном для ж.б. двухветвевых колонн
4.407-256-56 Обхват с одним кронштейном для железобетонных двухветвевых колонн
4.407-256-57 Обхват с двумя кронштейнами для ж.б. двухветвевых колонн
4.407-256-58 Обхват с одним кронштейном для ж.б. двухветвевых колонн
4.407-256-59 Обхват с одним кронштейном для ж.б. двухветвевых колонн
4.407-256-60 Обхват с одним кронштейном для ж.б. двухветвевых колонн
4.407-256-61 Обхват с двумя кронштейнами для ж.б. двухветвевых колонн
4.407-256-62 Подвес для крепления шинопровода к сборным ригелям перекрытия
4.407-256-63 Подвес для крепления шинопровода к второстепенным балкам монолитного перекрытия
4.407-256-64 Обхват
4.407-256-65 Подвес сдвоенный для крепления шинопровода к сборным ж.б. ригелям перекрытия
4.407-256-66 Подвес для крепления шинопровода между сборными ж.б. плитами перекрытия
4.407-256-67 Подвес сдвоенный для крепления шинопровода к второстепенным балкам монолитного перекрытия
4.407-256-68 Подвес для крепления шинопровода к сборным ж.б. плитам или монолитным перекрытиям
4.407-256-69 Подвес для крепления шинопровода к сборным ж.б. плитам или монолитным перекрытиям
4.407-256-70 Подвес для крепления шинопровода к пустотным плитам перекрытия
4.407-256-71 Подвес для крепления шинопровода к пустотным плитам перекрытия
4.407-256-72 Обойма
4.407-256-73 Плита
4.407-256-74 Рама
4.407-256-75 Стойка
4.407-256-76 Стойка
4.407-256-77 Обхват
4.407-256-78 Обхват
4.407-256-79 Обхват
4.407-256-80 Закреп
4.407-256-81 Подвес промежуточный
4.407-256-82 Скоба
4.407-256-83 Скоба
4.407-256-84 Хомутик
4.407-256-85 Швеллер
4.407-256-86 Стойка
4.407-256-87 Скоба
4.407-256-88 Шпилька
4.407-256-89 Конструкция для крепления стойки СШ к монолитному перекрытию
4.407-256-90 Конструкция для крепления стойки к сборной железобетонной плите
Разработан: УГПИ Тяжпромэлектропроект Минмонтажспецстроя УССР
Утверждён:03.07.1979 ВНИПИ Тяжпромэлектропроект им. Ф.Б. Якубовского (F.B.Yakubovskiy Tyazhpromelektroproject VNIPI 104)
Расположен в:Техническая документация Строительство Справочные документы Типовые строительные конструкции, изделия и узлы Общероссийский строительный каталог Строительные конструкции, изделия и узлы зданий и сооружений для всех видов строительства Инженерное оборудование Инженерное оборудование; изделия и узлы инженерного оборудования зданий и сооружений Электрооборудование и электросети Прокладка шинопроводов, кабелей, троллеев и электропроводок
Заменяет собой:
  • Серия 4.407-180 «Прокладка магистрального шинопровода серии Ш3М16 на 1600 А»
Чем заменён:
Серия 4.407-256Серия 4.407-256Серия 4.407-256Серия 4.407-256Серия 4.407-256Серия 4.407-256Серия 4.407-256Серия 4.407-256Серия 4.407-256Серия 4.407-256Серия 4.407-256Серия 4.407-256Серия 4.407-256Серия 4.407-256Серия 4.407-256Серия 4.407-256Серия 4.407-256Серия 4.407-256Серия 4.407-256Серия 4.407-256Серия 4.407-256Серия 4.407-256Серия 4.407-256Серия 4.407-256Серия 4.407-256Серия 4.407-256Серия 4.407-256Серия 4.407-256Серия 4.407-256Серия 4.407-256Серия 4.407-256Серия 4.407-256Серия 4.407-256Серия 4.407-256Серия 4.407-256Серия 4.407-256Серия 4.407-256Серия 4.407-256Серия 4.407-256Серия 4.407-256Серия 4.407-256Серия 4.407-256Серия 4.407-256Серия 4.407-256Серия 4.407-256Серия 4.407-256Серия 4.407-256Серия 4.407-256Серия 4.407-256Серия 4.407-256Серия 4.407-256Серия 4.407-256Серия 4.407-256Серия 4.407-256Серия 4.407-256Серия 4.407-256Серия 4.407-256Серия 4.407-256Серия 4.407-256Серия 4.407-256Серия 4.407-256Серия 4.407-256Серия 4.407-256Серия 4.407-256Серия 4.407-256Серия 4.407-256Серия 4.407-256Серия 4.407-256Серия 4.407-256Серия 4.407-256Серия 4.407-256Серия 4.407-256Серия 4.407-256Серия 4.407-256Серия 4.407-256Серия 4.407-256Серия 4.407-256Серия 4.407-256Серия 4.407-256Серия 4.407-256Серия 4.407-256Серия 4.407-256Серия 4.407-256Серия 4.407-256Серия 4.407-256Серия 4.407-256Серия 4.407-256Серия 4.407-256Серия 4.407-256Серия 4.407-256Серия 4.407-256Серия 4.407-256Серия 4.407-256Серия 4.407-256Серия 4.407-256Серия 4.407-256Серия 4.407-256Серия 4.407-256Серия 4.407-256Серия 4.407-256Серия 4.407-256Серия 4.407-256Серия 4.407-256Серия 4.407-256Серия 4.407-256Серия 4.407-256Серия 4.407-256Серия 4.407-256Серия 4.407-256Серия 4.407-256Серия 4.407-256Серия 4.407-256Серия 4.407-256Серия 4.407-256Серия 4.407-256Серия 4.407-256Серия 4.407-256Серия 4.407-256Серия 4.407-256Серия 4.407-256

© 2013 Ёшкин Кот :-) Карта сайта