Информационная система
«Ёшкин Кот»

Скачать базу одним архивом
Скачать обновления
История создания базы
Карта сайта

Скачать Серия 3.904-11 Выпуск 2. Альбом 11. Приточная вентиляционная камера типа ПК150 производительностью от 100 до 150 тыс. куб. м/час с ограждающими конструкциями из легкометаллических панелей. Рабочие чертежи

Дата актуализации: 10.08.2017

Серия 3.904-11

Выпуск 2. Альбом 11. Приточная вентиляционная камера типа ПК150 производительностью от 100 до 150 тыс. куб. м/час с ограждающими конструкциями из легкометаллических панелей. Рабочие чертежи

Обозначение: Серия 3.904-11
Обозначение англ: Series 3.904-11
Статус:не действует
Название рус.:Выпуск 2. Альбом 11. Приточная вентиляционная камера типа ПК150 производительностью от 100 до 150 тыс. куб. м/час с ограждающими конструкциями из легкометаллических панелей. Рабочие чертежи
Дата добавления в базу:01.09.2013
Дата актуализации:05.05.2017
Дата введения:12.12.1968
Дата окончания срока действия:01.02.1975
Оглавление:Содержание альбома
Пояснительная записка
ПО80. Общий вид
ПО80Ф. Общий вид
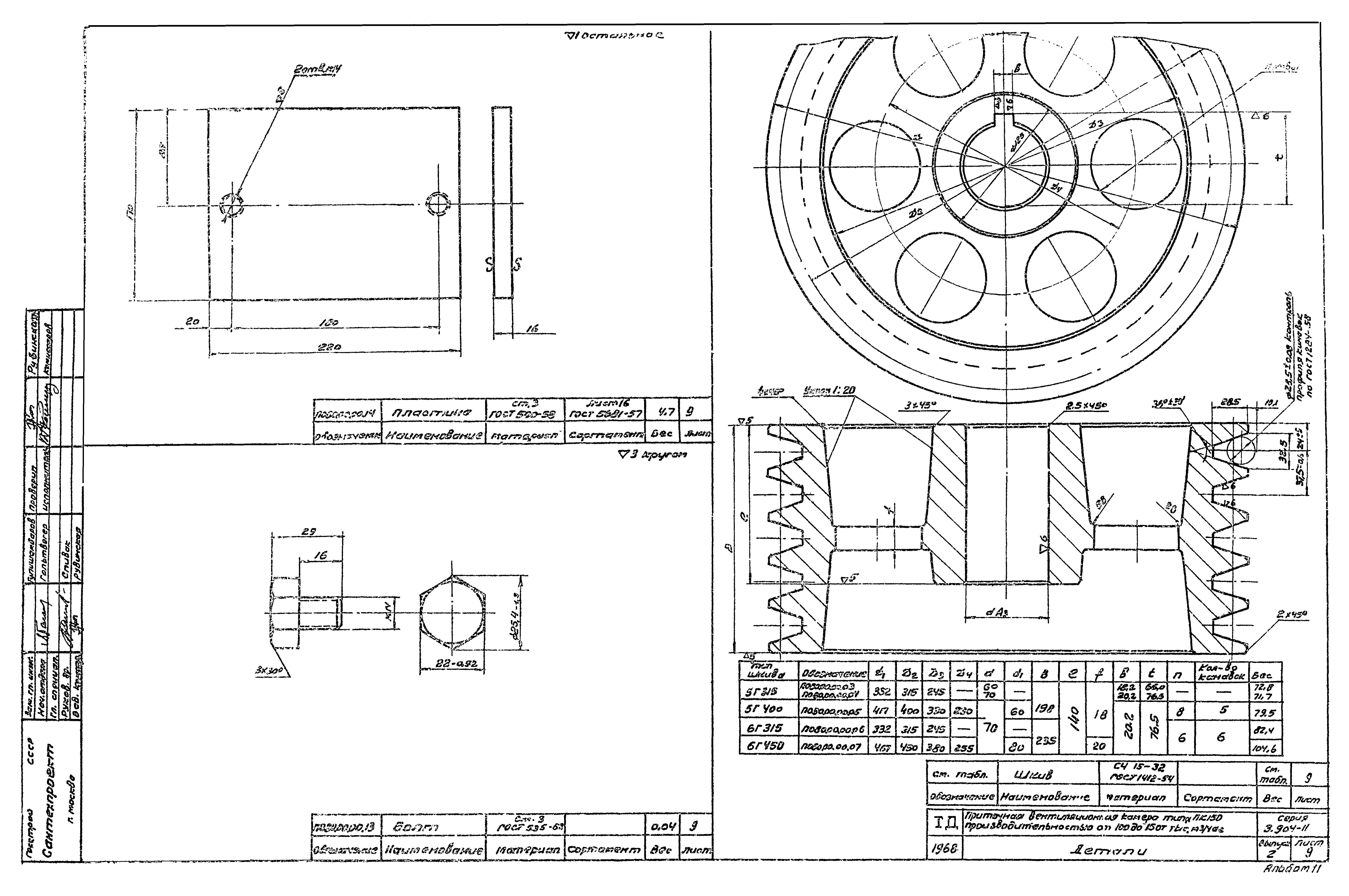
Детали
ПО80.00.01 Фланец переходной. Детали
ПО80.00.02 Фланец. Детали
Секция соединительная
ПО80.01.01 Панель передняя
Детали
Панель торцевая
Детали
ПО80.01.03 Панель задняя. Детали
ПО80.01.04 Решетка ограждающая. Детали
ПО80.01.05 Панель перекрытия. Детали
Детали
ПО80.03 Секция калориферная
Детали
Заслонка ложная. Детали
Рама
Детали
ПО80.03.11 Коллектор
Подвод. Детали
ПО80.03.18 Отвод. Детали
ПО80.03.20 Отвод. Детали
ПО80.03.04 Секция приемная
ПО80.04.01 Панель торцевая
Детали
ПО80.04.02 Панель задняя
Детали
ПО80.04.03 Панель передняя
Детали
ПО80.04.04 Панель перекрытия
Детали
ПО80.04.05 Панель перекрытия утепленная. Детали
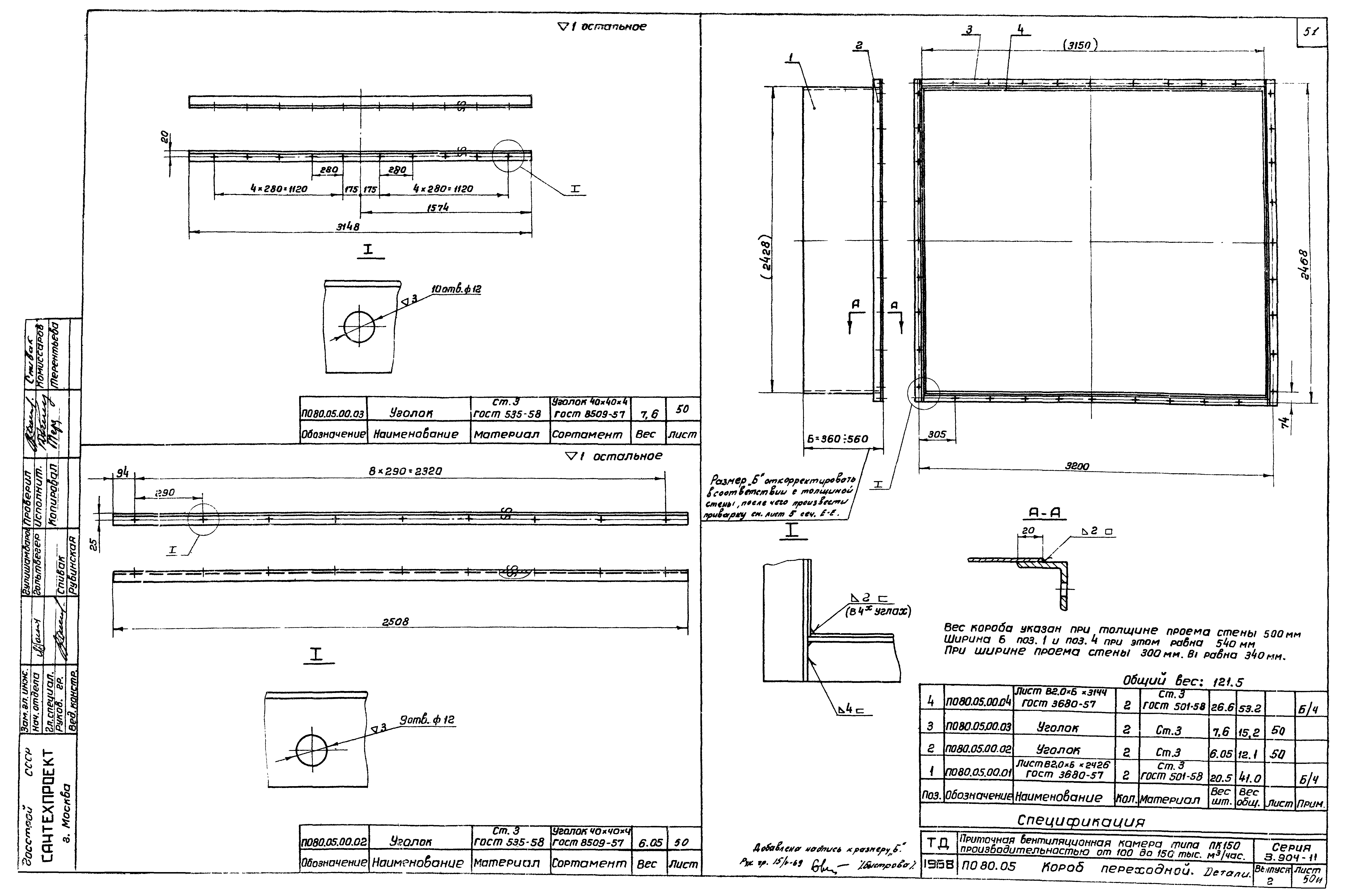
ПО80.05 Короб переходной. Детали
ПО80.06 Установка утепленных заслонок
Детали
ПО80.07 Панель
Детали
ПО80.08 Секция приемная с фильтром
ПО80.08.01 Панель торцевая
Детали
ПО80.08.02 Подшипник левый. Детали
ПО80.08.03 Катушка. Детали
ПО80.08.04 Панель перекрытия
Детали
ПО80.08.05 Панель задняя
Детали
ПО80.08.06 Панель передняя
Детали
ПО80.08.08 Решетка съемная. Детали
ПО80.08.09 Корпус фильтра
Детали
ПО80.08.11 Фланец переходной
ПО80.08.12 Панель перекрытия утепленная
Детали
Разработан: Сантехпроект Госстроя СССР
Утверждён:27.06.1968 Главпромстройпроект Госстроя СССР (29)
Расположен в:Техническая документация Строительство Справочные документы Типовые строительные конструкции, изделия и узлы Общероссийский строительный каталог Строительные конструкции, изделия и узлы зданий и сооружений для всех видов строительства Инженерное оборудование Инженерное оборудование; изделия и узлы инженерного оборудования зданий и сооружений Воздухоснабжение, вентиляция и кондиционирование Приточные камеры и установки, завесы
Чем заменён:
Серия 3.904-11Серия 3.904-11Серия 3.904-11Серия 3.904-11Серия 3.904-11Серия 3.904-11Серия 3.904-11Серия 3.904-11Серия 3.904-11Серия 3.904-11Серия 3.904-11Серия 3.904-11Серия 3.904-11Серия 3.904-11Серия 3.904-11Серия 3.904-11Серия 3.904-11Серия 3.904-11Серия 3.904-11Серия 3.904-11Серия 3.904-11Серия 3.904-11Серия 3.904-11Серия 3.904-11Серия 3.904-11Серия 3.904-11Серия 3.904-11Серия 3.904-11Серия 3.904-11Серия 3.904-11Серия 3.904-11Серия 3.904-11Серия 3.904-11Серия 3.904-11Серия 3.904-11Серия 3.904-11Серия 3.904-11Серия 3.904-11Серия 3.904-11Серия 3.904-11Серия 3.904-11Серия 3.904-11Серия 3.904-11Серия 3.904-11Серия 3.904-11Серия 3.904-11Серия 3.904-11Серия 3.904-11Серия 3.904-11Серия 3.904-11Серия 3.904-11Серия 3.904-11Серия 3.904-11Серия 3.904-11Серия 3.904-11Серия 3.904-11Серия 3.904-11Серия 3.904-11Серия 3.904-11Серия 3.904-11Серия 3.904-11Серия 3.904-11Серия 3.904-11Серия 3.904-11Серия 3.904-11Серия 3.904-11Серия 3.904-11Серия 3.904-11Серия 3.904-11Серия 3.904-11Серия 3.904-11Серия 3.904-11Серия 3.904-11Серия 3.904-11Серия 3.904-11Серия 3.904-11

© 2013 Ёшкин Кот :-) Карта сайта