Информационная система
«Ёшкин Кот»

Скачать базу одним архивом
Скачать обновления
История создания базы
Карта сайта

Скачать Серия 3.015-2/77 Выпуск II-1. Сборные железобетонные колонны для эстакад типов Iк; IIк. Траверсы и вставки. Рабочие чертежи

Дата актуализации: 10.08.2017

Серия 3.015-2/77

Выпуск II-1. Сборные железобетонные колонны для эстакад типов Iк; IIк. Траверсы и вставки. Рабочие чертежи

Обозначение: Серия 3.015-2/77
Обозначение англ: Series 3.015-2/77
Статус:заменен
Название рус.:Выпуск II-1. Сборные железобетонные колонны для эстакад типов Iк; IIк. Траверсы и вставки. Рабочие чертежи
Дата добавления в базу:01.09.2013
Дата актуализации:05.05.2017
Дата введения:01.10.1985
Оглавление:Содержание
Пояснительная записка
Траверса Т1-1
Траверса Т2-1
Траверса Т2-2
Траверса Т3-1
Траверса Т3-2
Траверса Т4-1
Траверса Т5-1
Траверса Т5-2
Траверса Т5-3
Траверса Т5-4
Траверса Т6-1
Траверса Т6-2
Траверса Т6-3
Траверса Т6-4
Траверса Т6-5
Траверса Т6-6
Траверса Т6-7
Траверса Т7-1
Траверса Т7-2
Траверса Т7-3
Траверса Т8
Траверса Т9
Вставка В1-1
Вставка В1-2
Колонна К1-1
Колонна К1-2
Колонна К2-1
Колонна К2-2
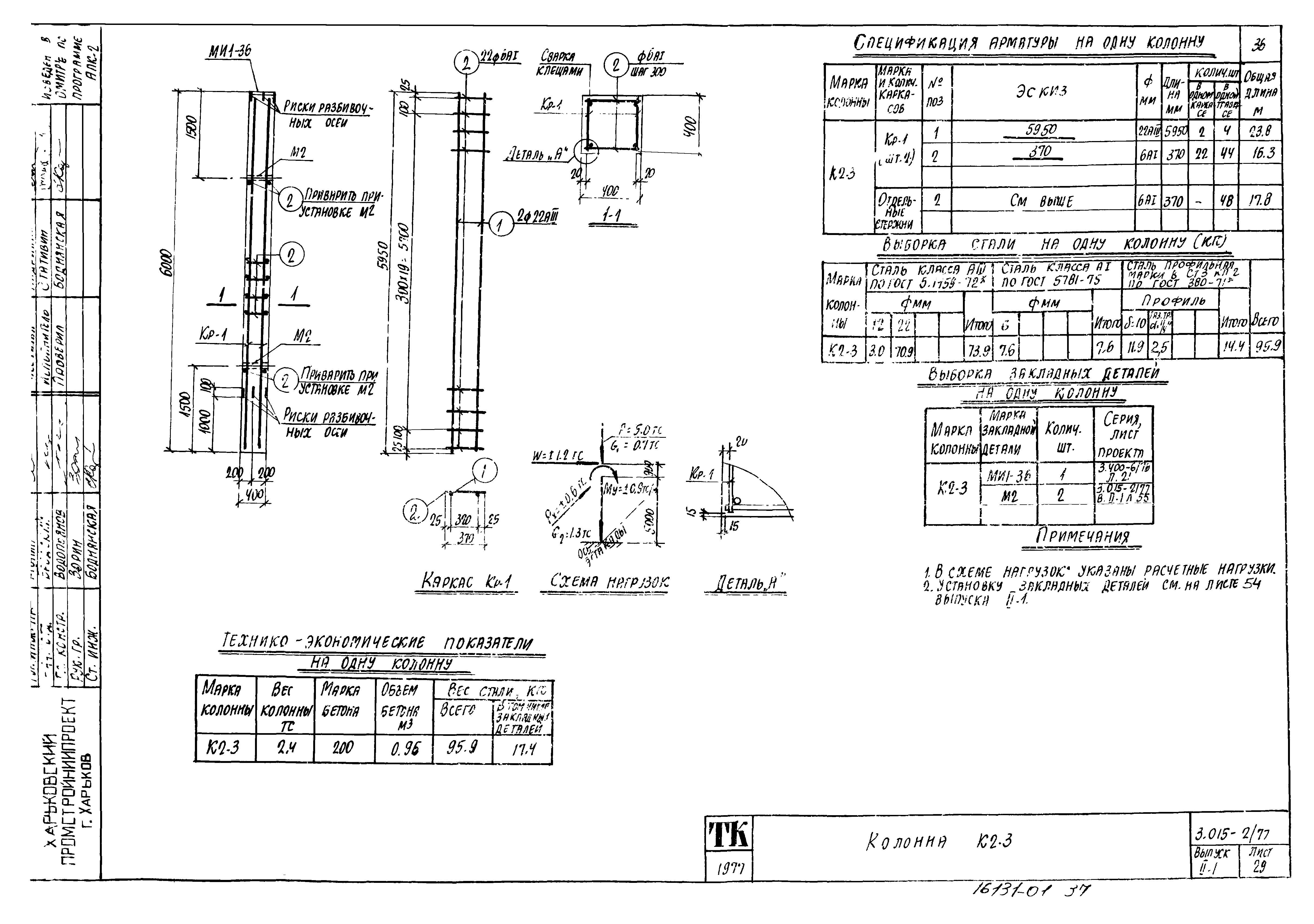
Колонна К2-3
Колонна К2-4
Колонна К2-5
Колонна К3-1
Колонна К3-2
Колонна К3-3
Колонна К3-4
Колонна К3-5
Колонна К3-6
Колонна К4-1
Колонна К4-2
Колонна К4-3
Колонна К4-4
Колонна К4-5
Колонна К4-6
Колонна К5-1
Колонна К5-2
Колонна К5-3
Колонна К5-4
Колонна К5-5
Колонна К5-6
Колонна К5-7
Колонна К6-1
Колонна К6-2
Колонна К6-3
Пример установки закладных деталей в колоннах
Пример установки закладных деталей во вставках и спецификация стали на закладные детали
Примеры установки закладных деталей в траверсах
Накладные детали МН-1-МН-10
Накладные детали МН-11-МН-18. Спецификация стали на одну накладную деталь
Спецификация стали на одну накладную деталь
Разработан: Харьковский Промстройниипроект
ЦНИИпроектстальконструкция
НИИЖБ
Проектный институт № 1 Госстроя СССР
Утверждён:02.04.1979 Госстрой СССР (Государственный комитет Совета Министров СССР по делам строительства) (USSR Gosstroy 50)
Расположен в:Техническая документация Строительство Справочные документы Типовые строительные конструкции, изделия и узлы Общероссийский строительный каталог Строительные конструкции, изделия и узлы зданий и сооружений для всех видов строительства Конструкции и изделия сооружений и оборудования зданий Надземные сооружения Опоры и эстакады под технологические трубопроводы
Чем заменён:
Серия 3.015-2/77Серия 3.015-2/77Серия 3.015-2/77Серия 3.015-2/77Серия 3.015-2/77Серия 3.015-2/77Серия 3.015-2/77Серия 3.015-2/77Серия 3.015-2/77Серия 3.015-2/77Серия 3.015-2/77Серия 3.015-2/77Серия 3.015-2/77Серия 3.015-2/77Серия 3.015-2/77Серия 3.015-2/77Серия 3.015-2/77Серия 3.015-2/77Серия 3.015-2/77Серия 3.015-2/77Серия 3.015-2/77Серия 3.015-2/77Серия 3.015-2/77Серия 3.015-2/77Серия 3.015-2/77Серия 3.015-2/77Серия 3.015-2/77Серия 3.015-2/77Серия 3.015-2/77Серия 3.015-2/77Серия 3.015-2/77Серия 3.015-2/77Серия 3.015-2/77Серия 3.015-2/77Серия 3.015-2/77Серия 3.015-2/77Серия 3.015-2/77Серия 3.015-2/77Серия 3.015-2/77Серия 3.015-2/77Серия 3.015-2/77Серия 3.015-2/77Серия 3.015-2/77Серия 3.015-2/77Серия 3.015-2/77Серия 3.015-2/77Серия 3.015-2/77Серия 3.015-2/77Серия 3.015-2/77Серия 3.015-2/77Серия 3.015-2/77Серия 3.015-2/77Серия 3.015-2/77Серия 3.015-2/77Серия 3.015-2/77Серия 3.015-2/77Серия 3.015-2/77Серия 3.015-2/77Серия 3.015-2/77Серия 3.015-2/77Серия 3.015-2/77Серия 3.015-2/77Серия 3.015-2/77Серия 3.015-2/77Серия 3.015-2/77Серия 3.015-2/77Серия 3.015-2/77Серия 3.015-2/77

© 2013 Ёшкин Кот :-) Карта сайта