Информационная система
«Ёшкин Кот»

Скачать базу одним архивом
Скачать обновления
История создания базы
Карта сайта

Скачать Серия 1.435-2 Выпуск 2. Полотна ворот. Рабочие чертежи КМ

Дата актуализации: 10.08.2017

Серия 1.435-2

Выпуск 2. Полотна ворот. Рабочие чертежи КМ

Обозначение: Серия 1.435-2
Обозначение англ: Series 1.435-2
Статус:не действует
Название рус.:Выпуск 2. Полотна ворот. Рабочие чертежи КМ
Дата добавления в базу:01.09.2013
Дата актуализации:05.05.2017
Дата введения:01.09.1969
Дата окончания срока действия:01.10.1977
Оглавление:Содержание альбома и условные обозначения
Пояснительная записка
Полотна однопольных и двухпольных ворот. Спецификация материалов
Полотна однопольных ворот. Общий вид
Полотна однопольных ворот. Секция полотна (левая)
Полотна однопольных ворот. Секция полотна (правая)
Полотна однопольных ворот. Рама полотна (левая)
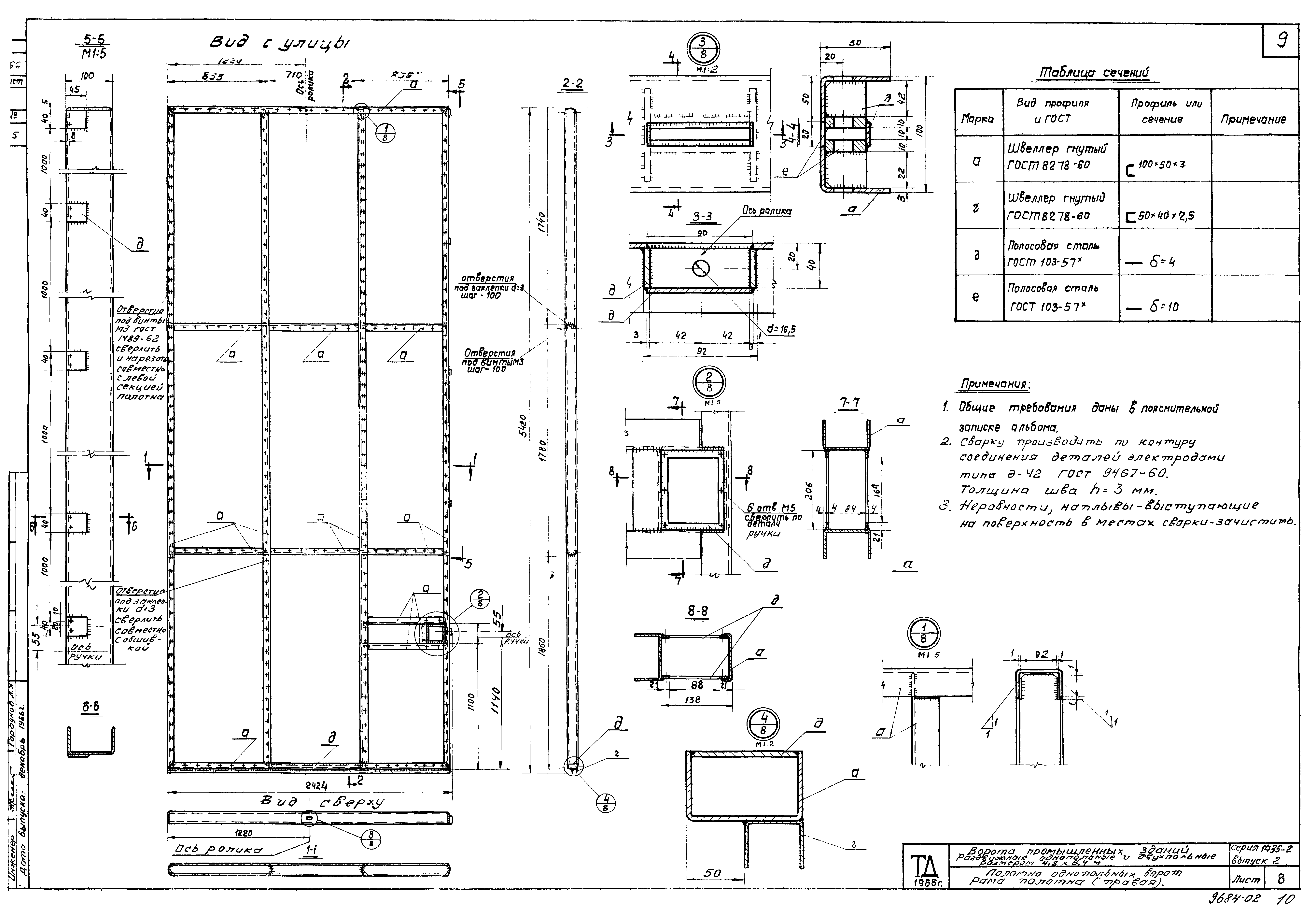
Полотна однопольных ворот. Рама полотна (правая)
Полотна двухпольных ворот. Общий вид
Полотна двухпольных ворот. Секция полотна (левая)
Полотна двухпольных ворот. Секция полотна (правая)
Полотна двухпольных ворот. Рама полотна (левая)
Полотна двухпольных ворот. Рама полотна (правая)
Полотна однопольных и двухпольных ворот. Калитка
Полотна однопольных и двухпольных ворот. Рама калитки
Полотна однопольных и двухпольных ворот. Узлы уплотнения зазоров и ограждения над воротами
Разработан: ЦНИИпромзданий
Утверждён:25.04.1969 Госстрой СССР (Государственный комитет Совета Министров СССР по делам строительства) (USSR Gosstroy 55)
Расположен в:Техническая документация Строительство Справочные документы Типовые строительные конструкции, изделия и узлы Общероссийский строительный каталог Строительные конструкции, изделия и узлы зданий и сооружений для всех видов строительства Конструкции, изделия и узлы зданий Ограждающие конструкции Ворота
Серия 1.435-2Серия 1.435-2Серия 1.435-2Серия 1.435-2Серия 1.435-2Серия 1.435-2Серия 1.435-2Серия 1.435-2Серия 1.435-2Серия 1.435-2Серия 1.435-2Серия 1.435-2Серия 1.435-2Серия 1.435-2Серия 1.435-2Серия 1.435-2Серия 1.435-2Серия 1.435-2Серия 1.435-2

© 2013 Ёшкин Кот :-) Карта сайта