Информационная система
«Ёшкин Кот»

Скачать базу одним архивом
Скачать обновления
История создания базы
Карта сайта

Скачать Серия 3.900-2 Выпуск 6. Изделия для лотков. Рабочие чертежи

Дата актуализации: 10.08.2017

Серия 3.900-2

Выпуск 6. Изделия для лотков. Рабочие чертежи

Обозначение: Серия 3.900-2
Обозначение англ: Series 3.900-2
Статус:заменен
Название рус.:Выпуск 6. Изделия для лотков. Рабочие чертежи
Дата добавления в базу:01.09.2013
Дата актуализации:05.05.2017
Дата введения:01.10.1978
Оглавление:Содержание
Пояснительная записка
Номенклатура изделий
Лоток ЛП1-60. Опалубочный чертеж, детали и армирование
Лоток ЛП1-30. Опалубочный чертеж, детали и армирование
Лоток ЛП2-60. Опалубочный чертеж, детали и армирование
Лоток ЛП2-30. Опалубочный чертеж, детали и армирование
Лоток ЛП3-60. Опалубочный чертеж, детали и армирование
Лоток ЛП3-30. Опалубочный чертеж, детали и армирование
Лоток ЛП4-60. Опалубочный чертеж, детали и армирование
Лоток ЛП4-30. Опалубочный чертеж, детали и армирование
Лоток ЛП5-60. Опалубочный чертеж, детали и армирование
Лоток ЛП5-30. Опалубочный чертеж, детали и армирование
Лоток ЛП6-60. Опалубочный чертеж, детали и армирование
Лоток ЛП6-30. Опалубочный чертеж, детали и армирование
Лоток ЛУ1-15
Общий вид
Опалубочный чертеж, армирование
Лоток ЛУ2-15
Общий вид
Опалубочный чертеж, армирование
Лоток ЛУ2-23
Общий вид
Опалубочный чертеж, армирование
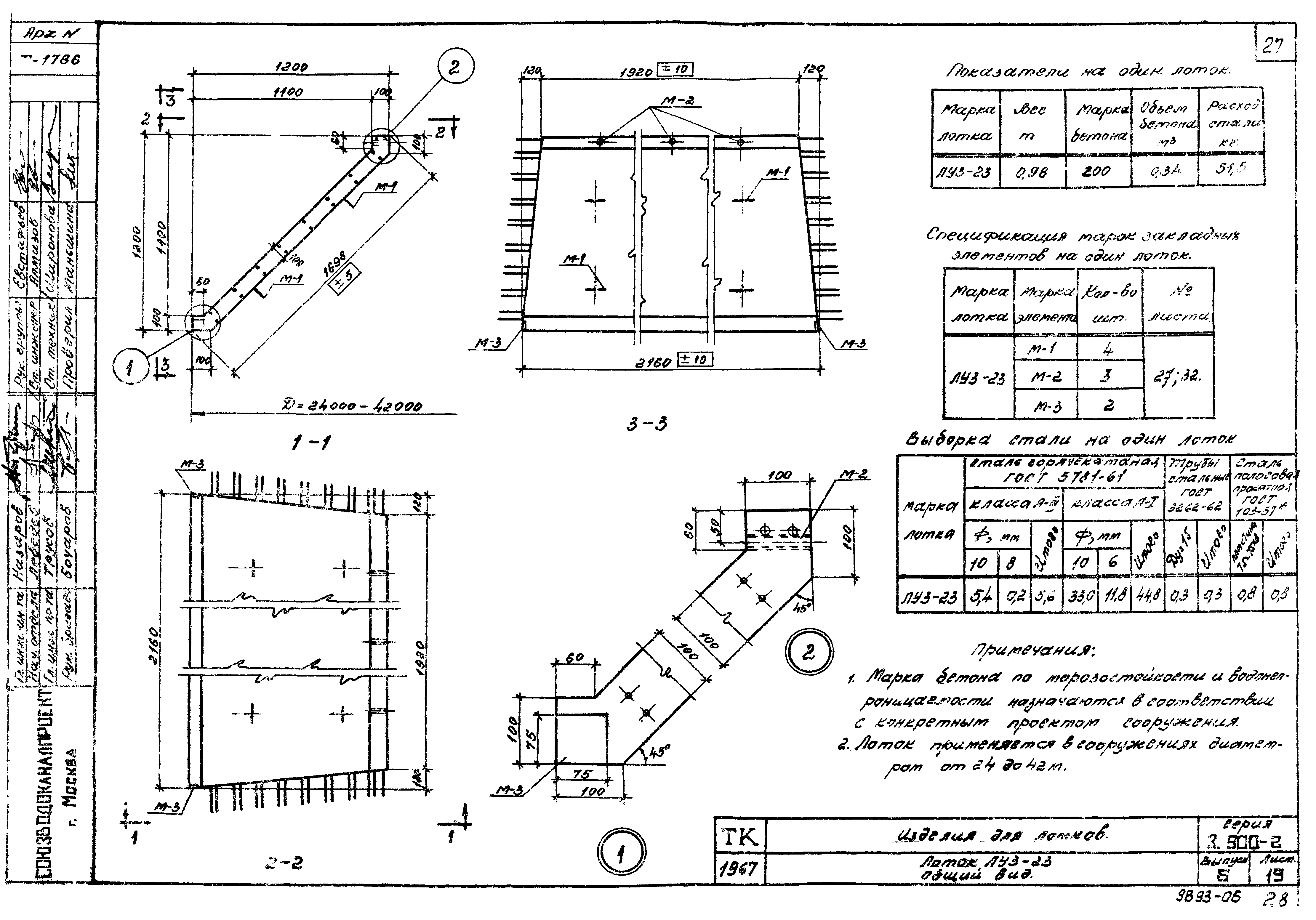
Лоток ЛУ3-23
Общий вид
Опалубочный чертеж, армирование
Лоток ЛУ4-23
Общий вид
Опалубочный чертеж, армирование
Сетки сварные с С-1 по С-8
Сетки сварные с С-9 по С-14
Сетки сварные с С-15 по С-22
Сетки сварные с С-23 по С-31
Сетки сварные с С-32 по С-38. Закладные детали М-1,М-2,М-3
Спецификация и выборка стали на одно арматурное изделие. Сетки сварные с С-1 по С-8
Спецификация и выборка стали на одно арматурное изделие. Сетки сварные с С-9 по С-16
Спецификация и выборка стали на одно арматурное изделие. Сетки сварные с С-17 по С-25
Спецификация и выборка стали на одно арматурное изделие. Сетки сварные с С-26 по С-34
Спецификация и выборка стали на одно арматурное изделие. Сетки сварные с С-35 по С-38. Отдельные стержни. Закладные детали
Разработан: ЦНИИпромзданий
НИИЖБ
Союзводоканалниипроект
Утверждён:09.07.1968 Госстрой СССР (Государственный комитет Совета Министров СССР по делам строительства) (USSR Gosstroy 61)
Расположен в:Техническая документация Строительство Справочные документы Типовые строительные конструкции, изделия и узлы Общероссийский строительный каталог Строительные конструкции, изделия и узлы зданий и сооружений для всех видов строительства Конструкции и изделия сооружений и оборудования зданий Подземные сооружения Емкостные сооружения
Чем заменён:
Серия 3.900-2Серия 3.900-2Серия 3.900-2Серия 3.900-2Серия 3.900-2Серия 3.900-2Серия 3.900-2Серия 3.900-2Серия 3.900-2Серия 3.900-2Серия 3.900-2Серия 3.900-2Серия 3.900-2Серия 3.900-2Серия 3.900-2Серия 3.900-2Серия 3.900-2Серия 3.900-2Серия 3.900-2Серия 3.900-2Серия 3.900-2Серия 3.900-2Серия 3.900-2Серия 3.900-2Серия 3.900-2Серия 3.900-2Серия 3.900-2Серия 3.900-2Серия 3.900-2Серия 3.900-2Серия 3.900-2Серия 3.900-2Серия 3.900-2Серия 3.900-2Серия 3.900-2Серия 3.900-2Серия 3.900-2Серия 3.900-2Серия 3.900-2Серия 3.900-2Серия 3.900-2Серия 3.900-2

© 2013 Ёшкин Кот :-) Карта сайта