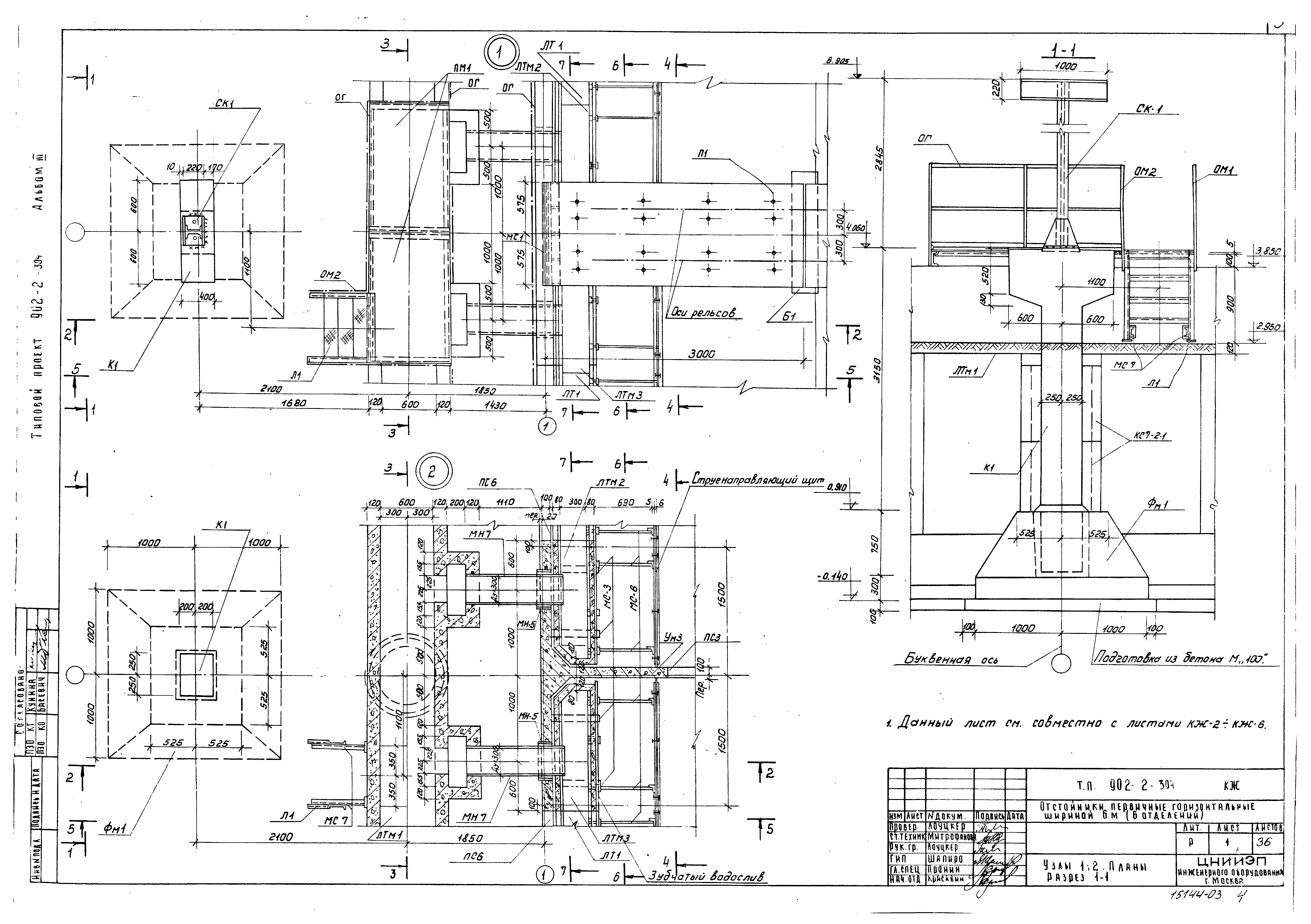
Скачать Типовой проект 902-2-305 Альбом III. Строительная часть. Узлы, детали, сборные железобетонные элементы (из ТП 902-2-304)Дата актуализации: 10.08.2017 Типовой проект 902-2-305
Альбом III. Строительная часть. Узлы, детали, сборные железобетонные элементы (из ТП 902-2-304)Обозначение: | Типовой проект 902-2-305 | Обозначение англ: | 902-2-305 | Статус: | действует | Название рус.: | Альбом III. Строительная часть. Узлы, детали, сборные железобетонные элементы (из ТП 902-2-304) | Дата добавления в базу: | 01.09.2013 | Дата актуализации: | 05.05.2017 | Дата введения: | 01.02.1978 | Разработан: | ЦНИИЭП иженерного оборудования
| Утверждён: | 22.07.1974 Госгражданстрой (Gosgrazhdanstroy 164)
| Расположен в: |
|
                                      
|