Информационная система
«Ёшкин Кот»

Скачать базу одним архивом
Скачать обновления
История создания базы
Карта сайта

Скачать Серия 1.117-9 Выпуск 1-2. Панели групп ЦТ1 и ЦТ2 толщиной 250 мм

Дата актуализации: 10.08.2017

Серия 1.117-9

Выпуск 1-2. Панели групп ЦТ1 и ЦТ2 толщиной 250 мм

Обозначение: Серия 1.117-9
Обозначение англ: Series 1.117-9
Статус:не действует
Название рус.:Выпуск 1-2. Панели групп ЦТ1 и ЦТ2 толщиной 250 мм
Дата добавления в базу:01.09.2013
Дата актуализации:05.05.2017
Дата введения:01.06.1982
Область применения:В альбоме серии 1.117-9, выпуск 1-2 представлены рабочие чертежи наружных трехслойных стеновых панелей групп ЦТ1 и ЦТ2. Альбомом следует пользоваться совместно с выпусками 0-1; 2-1 и 2-2 настоящей серии
Оглавление:Содержание
Пояснительная записка
Номенклатура изделий
Цокольные панели ЦТ1-43.14.25, ЦТ1л-43.14.25, ЦТ1-43.13.25, ЦТ1Л-43.13.25
Цокольные панели ЦТ1-43.14.25, ЦТ1л-43.14.25, ЦТ1-43.13.25, ЦТ1Л-43.13.25. Схемы армирования
Цокольные панели ЦТ1-46.14.25, ЦТ1л-46.14.25, ЦТ1-46.13.25, ЦТ1Л-46.13.25
Цокольные панели ЦТ1-46.14.25, ЦТ1л-46.14.25, ЦТ1-46.13.25, ЦТ1Л-46.13.25. Схемы армирования
Цокольные панели ЦТ1-49.14.25, ЦТ1л-49.14.25, ЦТ1-49.13.25, ЦТ1Л-49.13.25
Цокольные панели ЦТ1-49.14.25, ЦТ1л-49.14.25, ЦТ1-49.13.25, ЦТ1Л-49.13.25. Схемы армирования
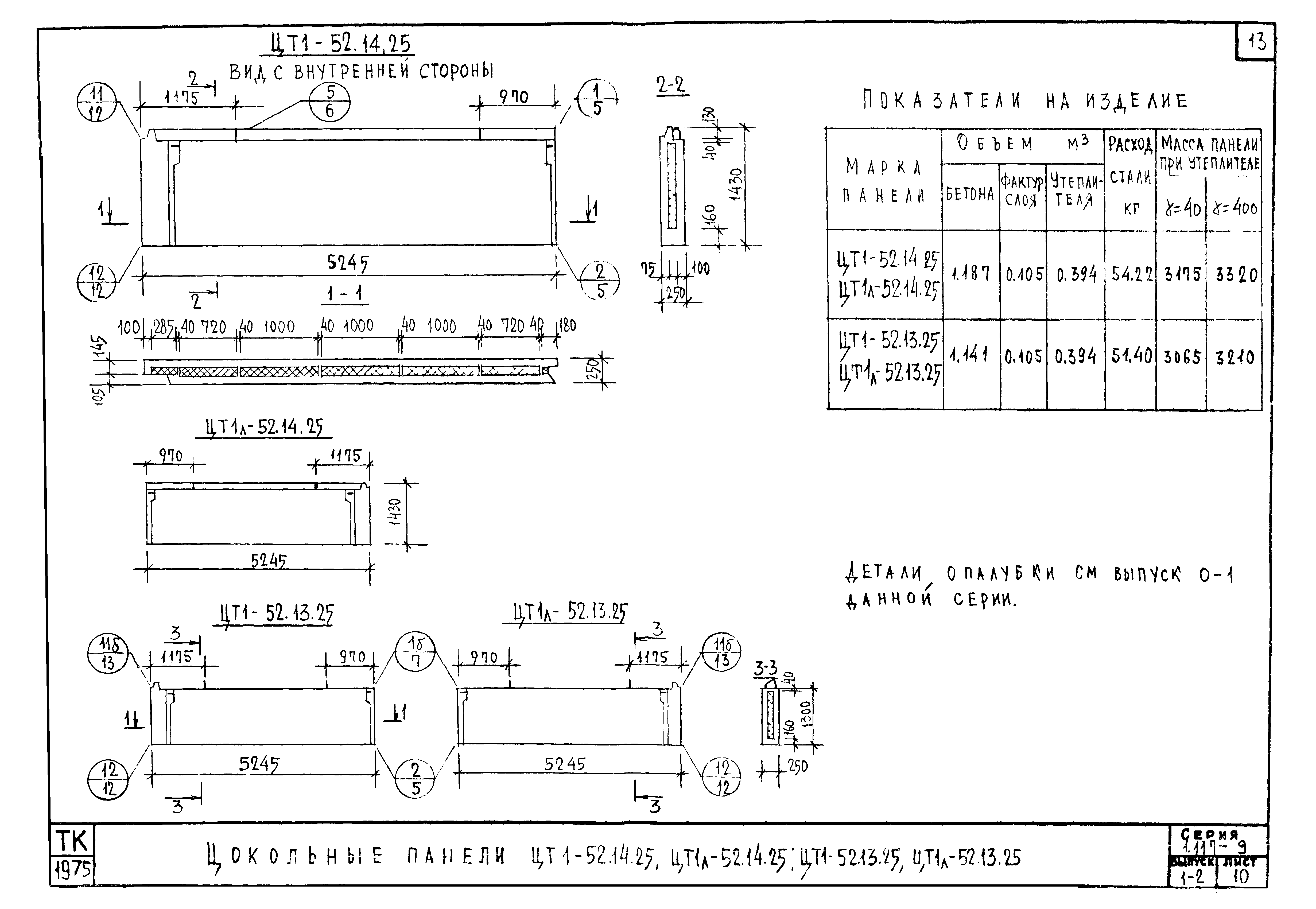
Цокольные панели ЦТ1-52.14.25, ЦТ1л-52.14.25, ЦТ1-52.13.25, ЦТ1Л-52.13.25
Цокольные панели ЦТ1-52.14.25, ЦТ1л-52.14.25, ЦТ1-52.13.25, ЦТ1Л-52.13.25. Схемы армирования
Цокольные панели ЦТ1-55.14.25, ЦТ1л-55.14.25, ЦТ1-55.13.25, ЦТ1Л-55.13.25
Цокольные панели ЦТ1-55.14.25, ЦТ1л-55.14.25, ЦТ1-55.13.25, ЦТ1Л-55.13.25. Схемы армирования
Цокольные панели ЦТ1-58.14.25, ЦТ1л-58.14.25, ЦТ1-58.13.25, ЦТ1Л-58.13.25
Цокольные панели ЦТ1-58.14.25, ЦТ1л-58.14.25, ЦТ1-58.13.25, ЦТ1Л-58.13.25. Схемы армирования
Цокольные панели ЦТ1-61.14.25, ЦТ1л-61.14.25, ЦТ1-61.13.25, ЦТ1Л-61.13.25
Цокольные панели ЦТ1-61.14.25, ЦТ1л-61.14.25, ЦТ1-61.13.25, ЦТ1Л-61.13.25. Схемы армирования
Цокольные панели ЦТ1-64.14.25, ЦТ1л-64.14.25, ЦТ1-64.13.25, ЦТ1Л-64.13.25
Цокольные панели ЦТ1-64.14.25, ЦТ1л-64.14.25, ЦТ1-64.13.25, ЦТ1Л-64.13.25. Схемы армирования
Цокольные панели ЦТ1-67.14.25, ЦТ1л-67.14.25, ЦТ1-67.13.25, ЦТ1Л-67.13.25
Цокольные панели ЦТ1-67.14.25, ЦТ1л-67.14.25, ЦТ1-67.13.25, ЦТ1Л-67.13.25. Схемы армирования
Цокольные панели ЦТ2-7.14.25, ЦТ2-7.13.25
Цокольные панели ЦТ2-7.14.25, ЦТ2-7.13.25. Схемы армирования
Цокольные панели ЦТ2-10.14.25, ЦТ2-10.13.25
Цокольные панели ЦТ2-10.14.25, ЦТ2-10.13.25. Схемы армирования
Цокольные панели ЦТ2-13.14.25, ЦТ2-13.13.25
Цокольные панели ЦТ2-13.14.25, ЦТ2-13.13.25. Схемы армирования
Цокольные панели ЦТ2-16.14.25, ЦТ2-16.13.25
Цокольные панели ЦТ2-16.14.25, ЦТ2-16.13.25. Схемы армирования
Ведомость расхода стали на панель
Разработан: ЦНИИСК им. В.А. Кучеренко
ЦНИИЭП жилища
Утверждён:16.12.1975 Государственный комитет по гражданскому строительству и архитектуре при Госстрое СССР (289)
Расположен в:Техническая документация Строительство Справочные документы Типовые строительные конструкции, изделия и узлы Общероссийский строительный каталог Строительные конструкции, изделия и узлы зданий и сооружений для всех видов строительства Конструкции, изделия и узлы зданий Конструкции нулевого цикла Цокольные панели и блоки стен подвалов
Нормативные ссылки:
Серия 1.117-9Серия 1.117-9Серия 1.117-9Серия 1.117-9Серия 1.117-9Серия 1.117-9Серия 1.117-9Серия 1.117-9Серия 1.117-9Серия 1.117-9Серия 1.117-9Серия 1.117-9Серия 1.117-9Серия 1.117-9Серия 1.117-9Серия 1.117-9Серия 1.117-9Серия 1.117-9Серия 1.117-9Серия 1.117-9Серия 1.117-9Серия 1.117-9Серия 1.117-9Серия 1.117-9Серия 1.117-9Серия 1.117-9Серия 1.117-9Серия 1.117-9Серия 1.117-9Серия 1.117-9Серия 1.117-9Серия 1.117-9Серия 1.117-9Серия 1.117-9Серия 1.117-9

© 2013 Ёшкин Кот :-) Карта сайта