| ||||||||||||||||||||||||||||||
Скачать Серия 1.063.1-1 Выпуск 0. Материалы для проектированияДата актуализации: 10.08.2017
|
| Обозначение: | Серия 1.063.1-1 |
| Обозначение англ: | Series 1.063.1-1 |
| Статус: | не действует |
| Название рус.: | Выпуск 0. Материалы для проектирования |
| Дата добавления в базу: | 01.09.2013 |
| Дата актуализации: | 05.05.2017 |
| Дата введения: | 01.07.1982 |
| Дата окончания срока действия: | 01.02.1994 |
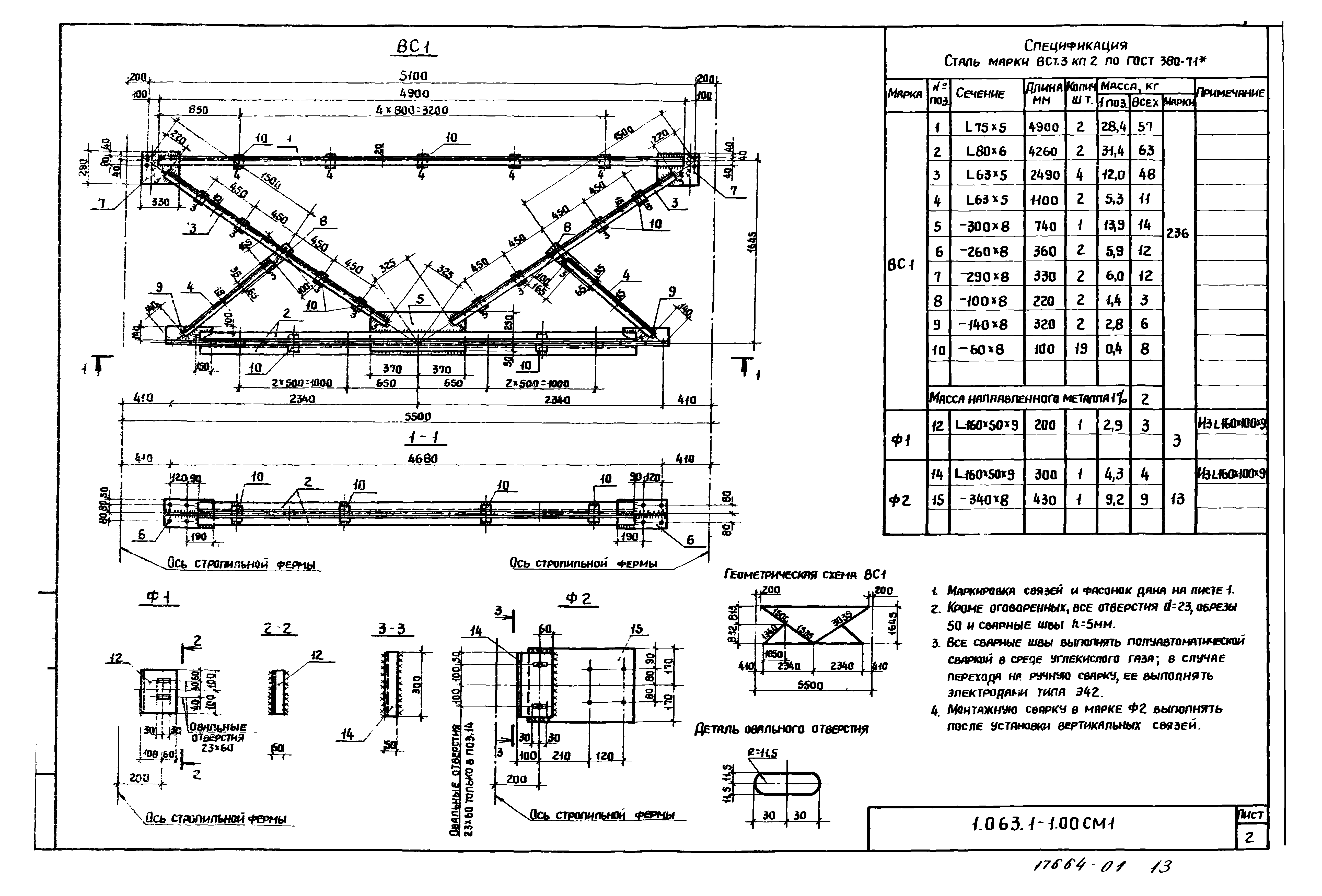
| Оглавление: | Содержание 1.063.1-1.00ПЗ Пояснительная записка 1.063.1-1.00СМ1 Схемы расположения вертикальных и горизонтальных связей 1.063.1-1.00СМ2 Схемы расположения путей подвесных кранов и тормозных балок 1.063.1-1.00СМ3 Положение закладных изделий для крепления подвесного транспорта и связей 1.063.1-1.00СМ4 Положение закладных изделий для крепления прогонов 1.063.1-1.00СМ5 Положение закладных изделий для крепления плит 1,5х6 и 3х6 м 1.063.1-1.00СМ6 Расчетные нагрузки и усилия 1.063.1-1.00ВМС Выборка стали на фермы |
| Разработан: | НИИЖБ ЦНИИЭПсельстрой ГПИ Промстройпроект |
| Утверждён: | 09.03.1982 Госстрой СССР (Государственный комитет Совета Министров СССР по делам строительства) (USSR Gosstroy 44) |
| Расположен в: | |
| Чем заменён: |
































