Информационная система
«Ёшкин Кот»

Скачать базу одним архивом
Скачать обновления
История создания базы
Карта сайта

Скачать Типовой проект 901-7-21.90 Альбом 3. Архитектурные решения. Конструкции железобетонные. Конструкции металлические. Организация строительства

Дата актуализации: 10.08.2017

Типовой проект 901-7-21.90

Альбом 3. Архитектурные решения. Конструкции железобетонные. Конструкции металлические. Организация строительства

Обозначение: Типовой проект 901-7-21.90
Обозначение англ: 901-7-21.90
Статус:не действует
Название рус.:Альбом 3. Архитектурные решения. Конструкции железобетонные. Конструкции металлические. Организация строительства
Дата добавления в базу:01.09.2013
Дата актуализации:05.05.2017
Дата введения:01.04.2003
Оглавление:Архитектурные решения
АР1 Общие данные
АР2 Планы на отм. 0.000;2.900. Разрез 1-1. Фасады 1-2,В-А,2-1 (вариант питьевых вод)
АР3 Планы на отм. 0.000;2.900. Разрез 1-1. Фасады 1-2,В-А,2-1 (вариант сточных вод)
АР4 Разрезы 2-2,3-3. Фасад А-В. Узел 1
АР5 Ведомость и спецификация перемычек. Ведомость проемов ворот и дверей. Спецификация элементов заполнения проемов. Ведомость отделки помещений
АР6 Планы полов и кровли. Экспликация полов. Узлы 2,3
Конструкции железобетонные
КЖ1 Общие данные
КЖ2 Схема расположения фундаментов. Сечения 1-1...9-9
КЖ3 Схема расположения фундаментов. Виды 10-10...22-22
КЖ4 Схема расположения каналов, приямков и фундаментов под оборудование. Сечение 1-1...6-6;10-10;11-11
КЖ5 Схема расположения плит перекрытия каналов. Сечение 7-7...9-9
КЖ6 Фундаменты под оборудование. ФОМ1...ФОМ4
КЖ7 Колодцы К1;К2. Монолитные участки УМ1...УМ3. Деревянные щиты и решетка
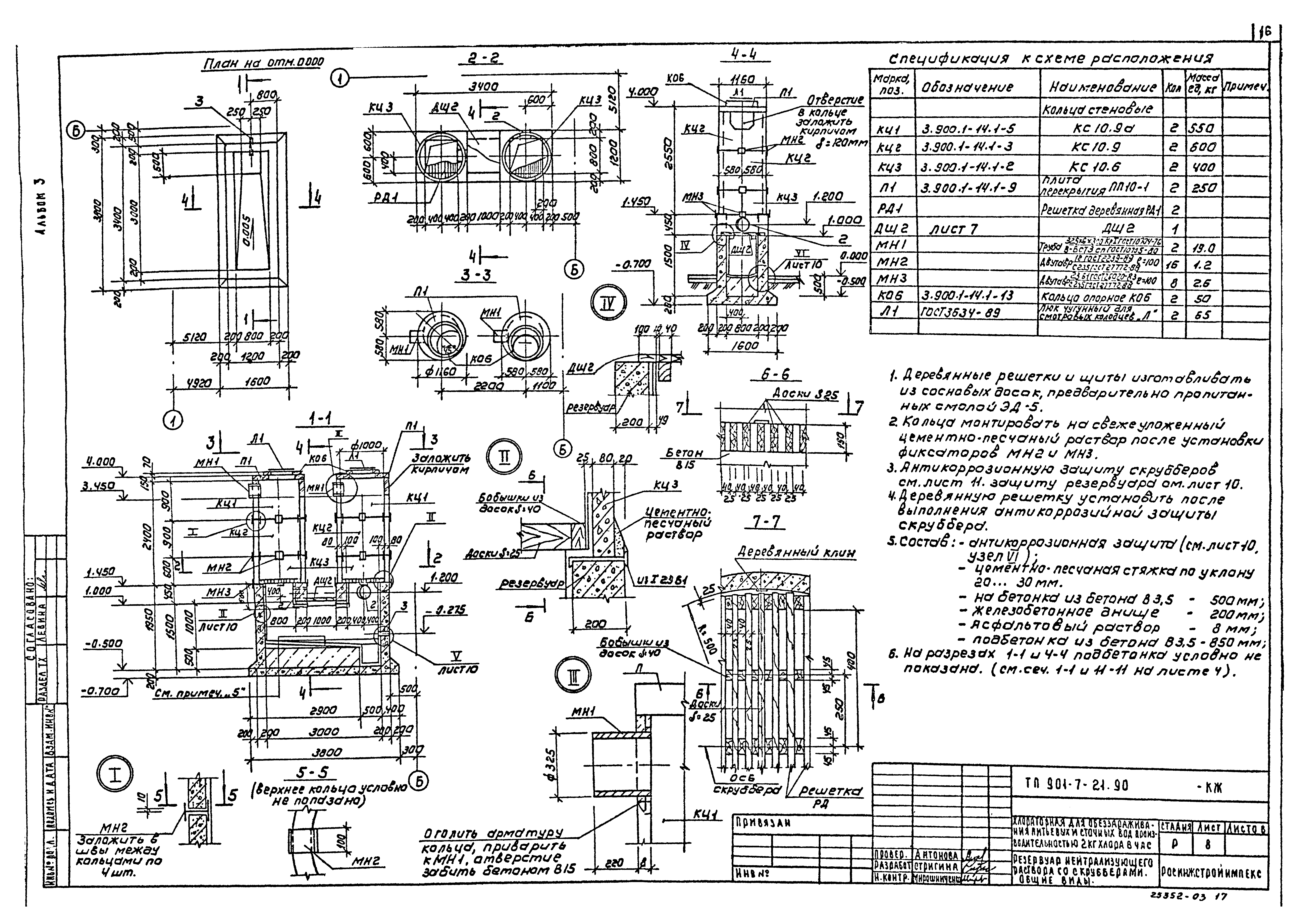
КЖ8 Резервуар нейтрализирующего раствора со скрубберами. Общие виды
КЖ9 Резервуар нейтрализирующего раствора. Армирование
КЖ10 Узлы антикоррозионной защиты резервуара, каналов и приямков
КЖ11 Узлы антикоррозионной защиты скрубберов
КЖ12 Схема расположения панелей перекрытия на отм. 2.900
КЖ13 Схема расположения плит покрытия
КЖ14 Приточная венткамера
Конструкции металлические
КМ1 Общие данные. Ведомость металлоконструкций по видам профилей
КМ2 Общие данные. Техническая спецификация металла (начало)
КМ3 Общие данные. Техническая спецификация металла (окончание)
КМ4 Схемы расположения подвесных путей и монорельса
КМ5 Схемы расположения металлических площадок и лестниц. Разрезы
КМ6 Сечения. Узлы 1-8
КМ7 Труба вытяжная
Строительные изделия
КЖ.И.1.00 Изделия металлические
Организация строительства
ОС1 График производства работ
Разработан: Росинжстройимпекс
Утверждён:29.11.1991 Госкомархитектура (185)
Расположен в:Техническая документация Строительство Справочные документы Типовые строительные конструкции, изделия и узлы Общероссийский строительный каталог Промышленные предприятия, здания и сооружения Здания и сооружения санитарно-технические Водоснабжение Сооружения и установки по обеззараживанию воды Реагентное хозяйство для станций очистки
Типовой проект 901-7-21.90Типовой проект 901-7-21.90Типовой проект 901-7-21.90Типовой проект 901-7-21.90Типовой проект 901-7-21.90Типовой проект 901-7-21.90Типовой проект 901-7-21.90Типовой проект 901-7-21.90Типовой проект 901-7-21.90Типовой проект 901-7-21.90Типовой проект 901-7-21.90Типовой проект 901-7-21.90Типовой проект 901-7-21.90Типовой проект 901-7-21.90Типовой проект 901-7-21.90Типовой проект 901-7-21.90Типовой проект 901-7-21.90Типовой проект 901-7-21.90Типовой проект 901-7-21.90Типовой проект 901-7-21.90Типовой проект 901-7-21.90Типовой проект 901-7-21.90Типовой проект 901-7-21.90Типовой проект 901-7-21.90Типовой проект 901-7-21.90Типовой проект 901-7-21.90Типовой проект 901-7-21.90Типовой проект 901-7-21.90Типовой проект 901-7-21.90Типовой проект 901-7-21.90

© 2013 Ёшкин Кот :-) Карта сайта