Скачать Типовой проект 901-3-191.83 Альбом I. Архитектурно-строительная, технологическая, санитарно-техническая, электротехническая части, связь и сигнализация, нестандартизированное оборудованиеДата актуализации: 10.08.2017 Типовой проект 901-3-191.83
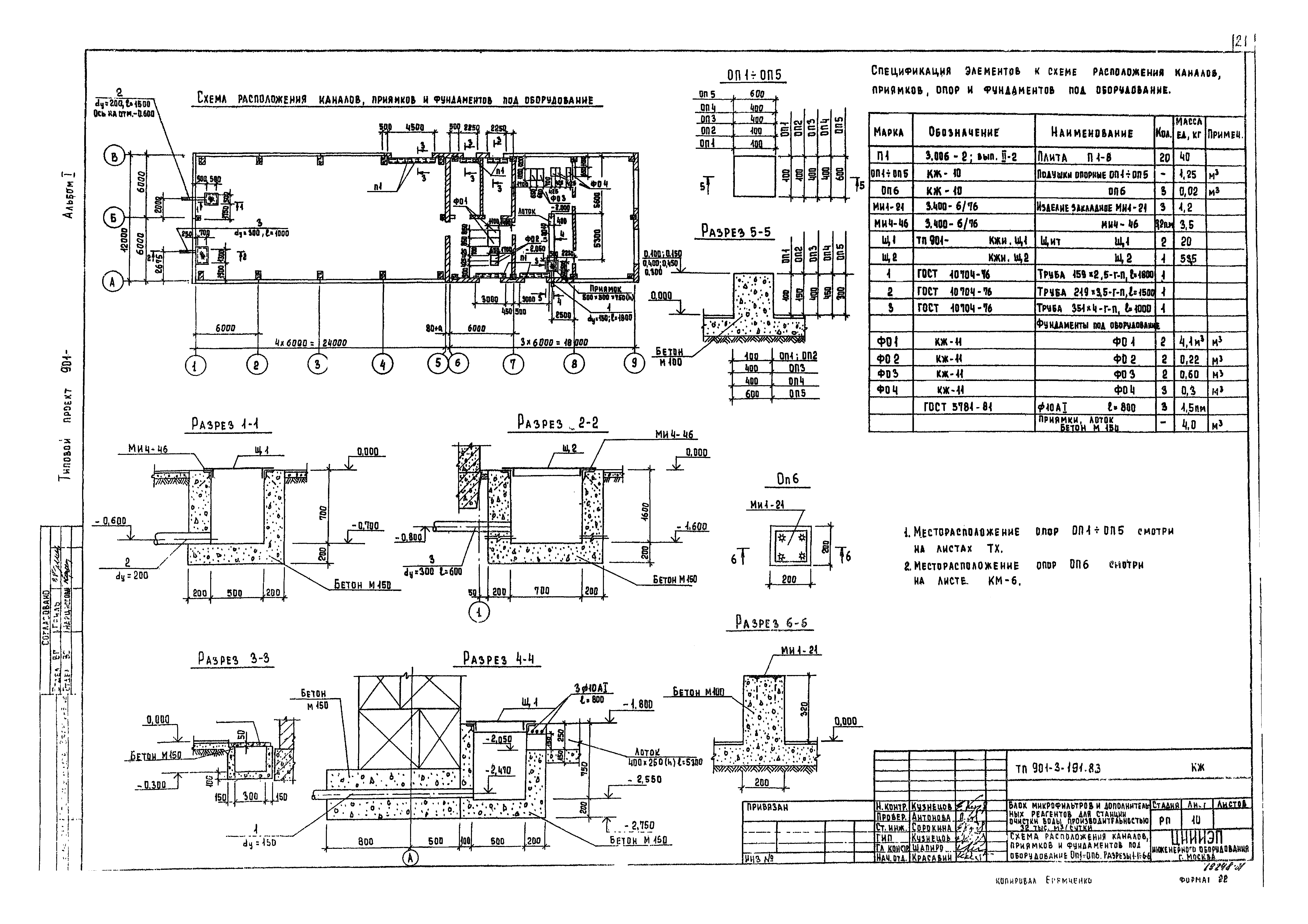
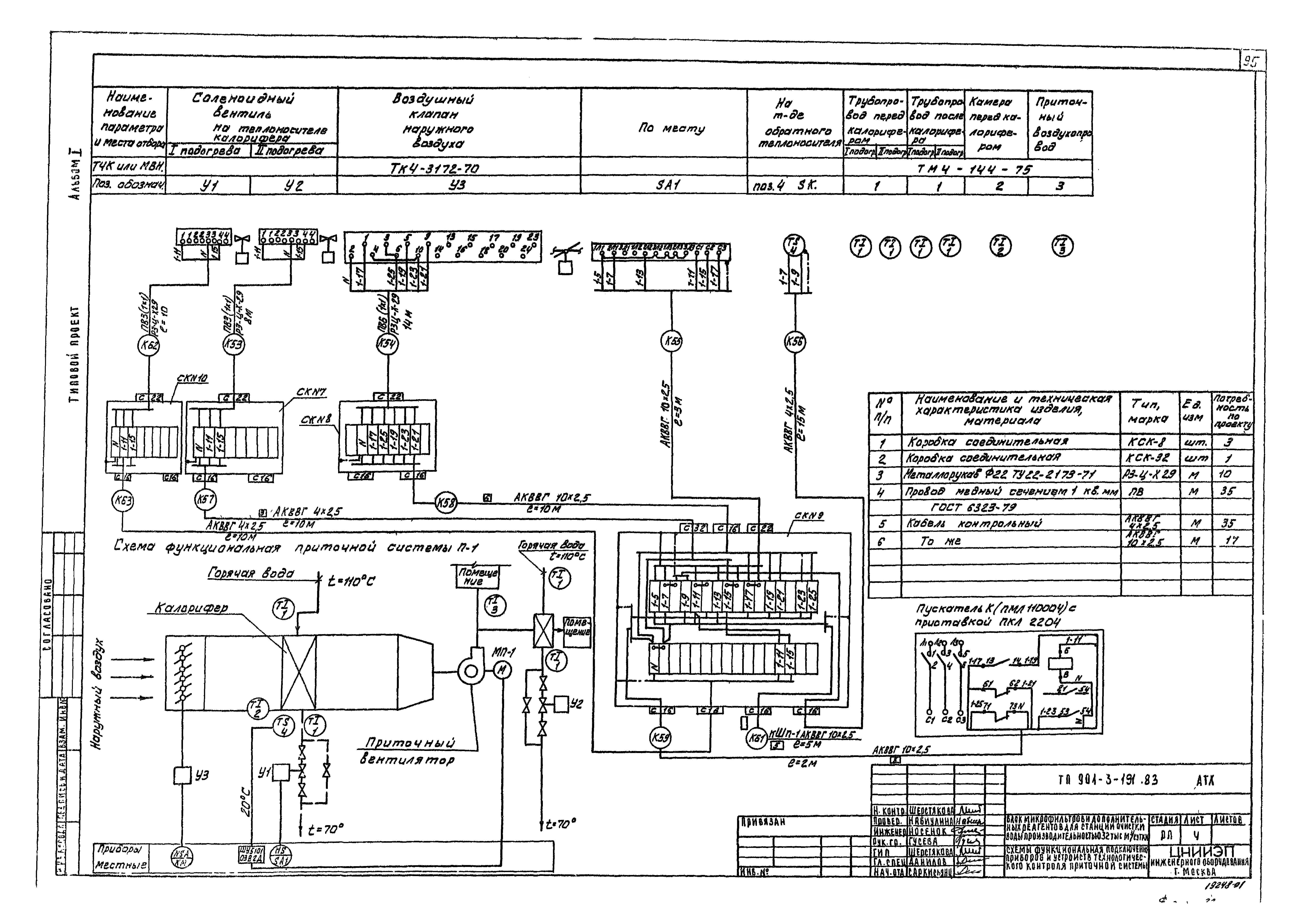
Альбом I. Архитектурно-строительная, технологическая, санитарно-техническая, электротехническая части, связь и сигнализация, нестандартизированное оборудованиеОбозначение: | Типовой проект 901-3-191.83 | Обозначение англ: | 901-3-191.83 | Статус: | не определен законодательством | Название рус.: | Альбом I. Архитектурно-строительная, технологическая, санитарно-техническая, электротехническая части, связь и сигнализация, нестандартизированное оборудование | Дата добавления в базу: | 01.09.2013 | Дата актуализации: | 05.05.2017 | Дата введения: | 23.06.1983 | Оглавление: | Архитектурно-строительная часть АР-1 Общие данные АР-2 Планы на отм. -1.800;0.000;3.600;6.000 АР-3 Разрезы 1-1;2-2;3-3 и детали АР-4 Фасады 1-8;8-1;В-А;А-В АР-5 Ведомость перемычек. Спецификация перемычек т ведомость отделки помещений АР-6 План кровли, планы полов на отм. 0.000 и 3.600. Экспликация полов АР-7 Схема и спецификация расположения лестничной клетки и детали АР-8 Переходная галерея. Планы. Разрезы. Фасад АР-9 Переходная галерея. Узлы КЖ-1 Общие данные (начало) КЖ-2 Общие данные (окончание) КЖ-3 Схема расположения фундаментов, фундаментных балок и стеновых блоков подвала КЖ-4 Разрезы 1-1÷8-8 КЖ-5 Фрагменты 1-5. Разрезы 9-9÷12-12 КЖ-6 Фундаменты ФМ1,ФМ2,ФМ3 КЖ-7 Фундаменты ФМ4,ФМ5 КЖ-8 Фундаменты ФМ6,ФМ7,ФМ8 КЖ-9 Фундаменты ФМ9,ФМ10 КЖ-10 Схема расположения каналов приямков и фундаментов под оборудование ОП1-ОП6. Разрезы 1-1÷6-6 КЖ-11 Схема расположения полиэтиленовых труб ФОМ1-ФОМ4 КЖ-12 Схема расположения колонн, балок, плит покрытия и перекрытия. Разрез 1-1 КЖ-13 Разрезы 2-2÷4-4,7-7. Узел 1 КЖ-14 Монолитные участки перекрытия УМ1-УМ6 КЖ-15 Разрезы 1-1÷6-6 КЖ-16 Схема расположения стеновых панелей по осям А,В КЖ-17 Схема расположения стеновых панелей по осям 1 и 5. Разрезы 4-4 и 5-5 КЖ-18 Фрагменты 1-11 КЖ-19 Опалубочный чертеж емкости микрофильтров. План на отм. 3.300. Разрез 1-1. Узлы 1 и 2 КЖ-20 Опалубочный чертеж емкости микрофильтров. План на отм. 6.200. Разрез 2-2 КЖ-21 Разрезы 3-3 и 4-4. Узлы 3-5 КЖ-22 Разрезы 5-5÷7-7. Узел 6 КЖ-23 Армирование днища и стен на отм. 0.400 КЖ-24 Армирование стен. План на отм. 5.000. Разрез 1-1. Узлы 1-3 КЖ-25 Разрезы 2-2÷4-4. Узлы 4-6 КЖ-26 Узлы 7-11 КЖ-27 Спецификация монолитной конструкции емкости микрофильтров КЖ-28 Баки извести. Опалубочный чертеж. План. Разрезы 1-1 и 2-2 КЖ-29 Баки извести. Армирование КЖ-30 БМ1,ПМ1. Разрезы 1-1÷5-5 КЖ-31 Схема расположения площадок на отм. 0.000;1.100;3.600 и 6.000 КЖ-32 Разрезы 1-1÷8-8. Узлы 1-3 КЖ-33 Венткамера на отм. 3.600 КЖ-34 Переходная галерея. Схемы расположения стеновых панелей КЖ-35 Переходная галерея. Схемы расположения колонн, ригелей, плит покрытия, перекрытий и фундаментов УМ1,УМ2 КМ-1 Общие данные. Техническая спецификация металла КМ-2 Техническая спецификация металла КМ-3 Техническая спецификация металла на типовые конструкции КМ-4 Ведомость металлоконструкций по видам профилей КМ-5 Схемы расположения металлических площадок и балок на отм. 1.200;3.440;5.900 и 8.400 КМ-6 Схемы расположения площадок на отм. 0.600;1.100 и 1.500. Разрезы 1-1÷3-3 КМ-7 Площадки. Разрезы 4-4÷14-14 КМ-8 Площадки. Разрезы 15-15÷17-17 КМ-9 Схемы расположения подвесных путей. Разрезы 1-1÷9-9 КМ-10 Пожарные лестницы КМ-11 Схема расположения элементов креплений оборудования на отм. 0.000;-1.800;3.600. Разрезы 1-1÷5-5 КМ-12 Связь вертикальная СВЗ Технологическая часть ТХ-1 Общие данные ТХ-2 Общеувязочный чертеж. План на отм. -1.800;0.000. Экспликация помещений ТХ-3 Общеувязочный чертеж. План на отм. 3.600. Разрезы 1-1;2-2 ТХ-4 Помещение микрофильтров. План на отм. 0.000;3.600 и 6.000 ТХ-5 Помещение микрофильтров. Разрезы 3-3;4-4;5-5 ТХ-6 Помещение микрофильтров. Аксонометрические схемы. Спецификация материалов ТХ-7 Помещение фторирования и известкования. План на отм. -1.800;0.000 и 1.100 ТХ-8 Помещение фторирования и известкования. Разрез 6-6 ТХ-9 Помещение известкования. Аксонометрические схемы. Спецификация материалов ТХ-10 Помещение фторирования. Аксонометрические схемы. Спецификация материалов и оборудования ТХ-11 Водостоки. Планы. Схемы. Спецификация материалов Нестандартизированное оборудование ТХН-1 Перекрытие мешалки М-4 671.00.000ВО. Эжектор 674.00.000ВО ТХН-2 Ящик для выгрузки реагента 767.00.000ВО ТХН-3 Ящик для размыва известкового теста 876.00.000ВО Отопление и вентиляция ОВН-1 Переходы ОВ-1 Общие данные (начало) ОВ-2 Общие данные (окончание) ОВ-3 Планы на отм. -1.800;0.000;3.600;6.000. Переходная галерея ОВ-4 Схемы системы отопления. Схемы систем В1;В2;П1;ВЕ-1÷ВЕ-4 ОВ-5 Установка системы П1 ОВ-6 Установка систем В1,В2 Электротехническая часть ЭМ-1 Общие данные ЭМ-2 Схема электрическая принципиальная питающей сети ~380/220 В ЭМ-3 Схема электрическая принципиальная управления задвижками М11,М12,М17-М21 ЭМ-4 Схема подключения электрооборудования (начало) ЭМ-5 Схема подключения электрооборудования (окончание) ЭМ-6 Кабельный журнал (начало) ЭМ-7 Кабельный журнал (окончание) ЭМ-8 Размещение электрооборудования и прокладка кабеля. План на отм. -1.800;0.000;1.100. Отделение фторирования. Помещение баков ЭМ-9 Размещение электрооборудования и прокладка кабеля. План на отм. 0.000;6.000. Помещение микрофильтров ЭМ-10 Размещение электрооборудования и прокладка кабеля. План на отм. 3.600. Приточная и вытяжная венткамеры. Спецификация ЭМ-11 Прокладка троллейного шинопровода для электрической тали ТЭ. Кран-балок Т5,Т6. План на отм. 6.500,10.000 ЭМ-12 Электрическое освещение. Планы на отм. -1.800;0.000;3.600;6.000 ЭМ-13 Переходная галерея. Электрическое освещение. План на отм. 3.600 Автоматизация технологического процесса АТХ-1 Общие данные АТХ-2 Схема функциональная технологического процесса. Схема внешних проводок АТХ-3 Схема электрическая принципиальная управлением приточной системой П1 АТХ-4 Схема функциональная подключения приборов и устройств технологического контроля приточной системы АТХ-5 Схема регулирования дозирование фтора АТХ-6 Размещение приборов и устройств технологического контроля и прокладка кабеля. План на отм. -1.800;0.000;1.100;6.000. Помещение микрофильтров АТХ-7 Размещение приборов и устройств технологического контроля и прокладка кабеля. План на отм. 3.600. Приточная венткамера. Спецификация Связь и сигнализация СС-1 Общие данные. Планы на отм. 0.000;3.600 с сетями связи. Экспликация помещений. спецификация Задание заводу изготовителю на низковольтные комплектные устройства ЭМ001ВС Шкаф напольный 8.900. Технические данные аппаратов ЭМ001ТБ Шкаф напольный 8.900. Таблица перечня надписей ЭМ001ВО Шкаф напольный 8.900. Чертеж общего вида ЭМ001ЭЧ Шкаф напольный 8.900. Схема электрическая соединений | Разработан: | ЦНИИЭП инженерного оборудования Госгражданстроя
| Утверждён: | 23.11.1982 Госгражданстрой (Gosgrazhdanstroy 313)
| Расположен в: |
|
                                                                                                    
|