Информационная система
«Ёшкин Кот»

Скачать базу одним архивом
Скачать обновления
История создания базы
Карта сайта

Скачать Типовой проект 125-045/1.2 Часть 1. Раздел 1-5. Архитектурно-строительные чертежи выше отм. 0.000. Теплый чердак. Кровля рулонная

Дата актуализации: 10.08.2017

Типовой проект 125-045/1.2

Часть 1. Раздел 1-5. Архитектурно-строительные чертежи выше отм. 0.000. Теплый чердак. Кровля рулонная

Обозначение: Типовой проект 125-045/1.2
Обозначение англ: 125-045/1.2
Статус:действует
Название рус.:Часть 1. Раздел 1-5. Архитектурно-строительные чертежи выше отм. 0.000. Теплый чердак. Кровля рулонная
Дата добавления в базу:01.09.2013
Дата актуализации:05.05.2017
Дата введения:30.06.1984
Оглавление:ТП 125-045/1.2-АС-1 Заглавный лист (начало)
ТП 125-045/1.2-АС-2 Заглавный лист (продолжение)
ТП 125-045/1.2-АС-3 Заглавный лист (окончание)
ТП 125-045/1.2-АС-4 Монтажный план чердака
ТП 125-045/1.2-АС-5 Монтажный план покрытия
ТП 125-045/1.2-АС-6 План кровли
ТП 125-045/1.2-АС-7 ЭБд-7,ЭБд-8. Монтажные планы
ТП 125-045/1.2-АС-8 ЭБд-9,ЭБд-10. Монтажные планы
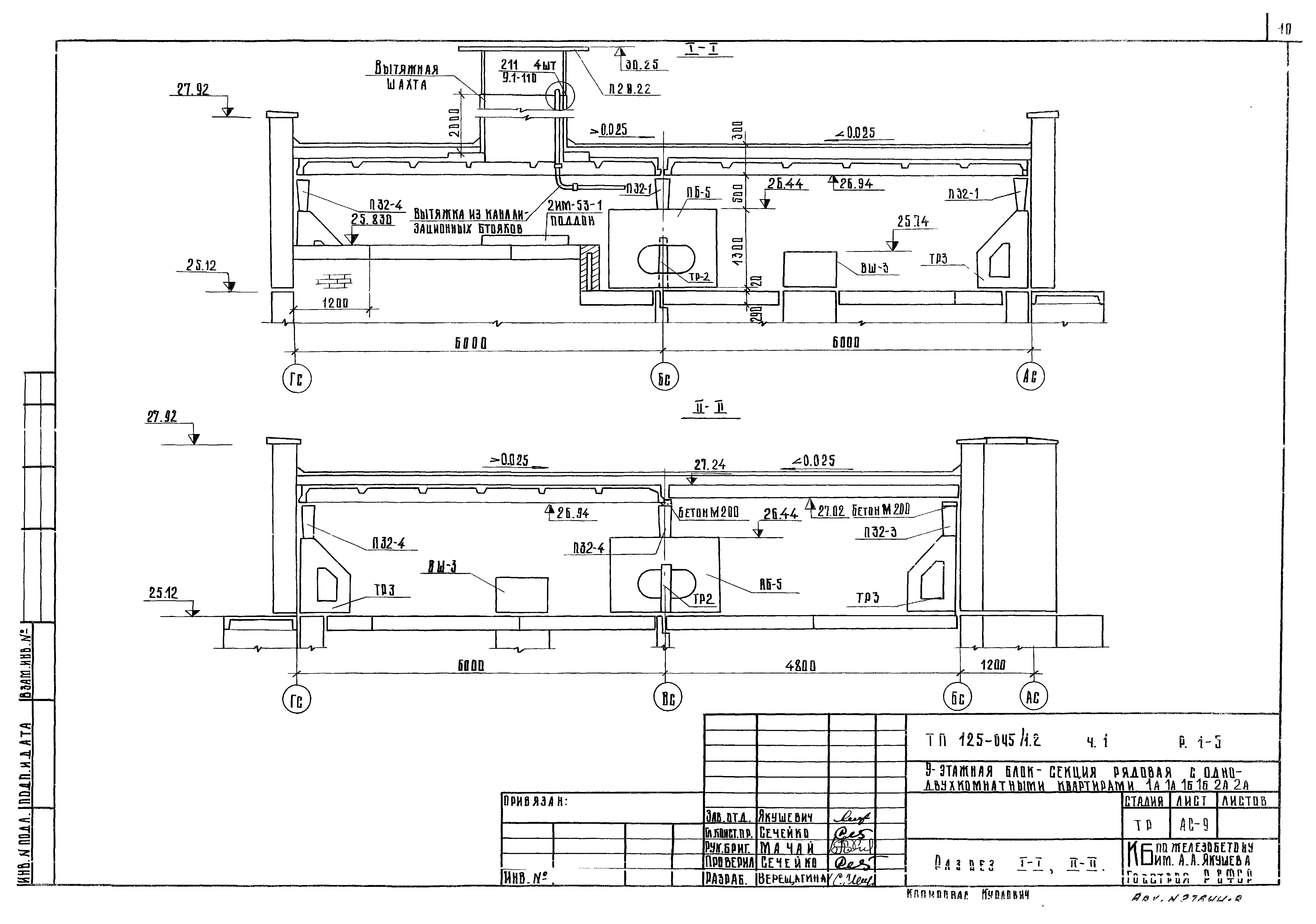
ТП 125-045/1.2-АС-9 Разрез 1-1,2-2
ТП 125-045/1.2-АС-10 Люк выхода на кровлю. План. Разрез 1-1
ТП 125-045/1.2-АС-11 Люк выхода на кровлю. Разрез 2-2
Разработан: КБ по железобетону Госстроя РСФСР
Утверждён:21.06.1982 Госстрой РСФСР (Russian Federation Gosstroy 46)
Расположен в:Техническая документация Строительство Справочные документы Типовые строительные конструкции, изделия и узлы Общероссийский строительный каталог Жилые здания для строительства в городах и поселках городского типа Обычные условия Жилые дома панельные Серия 125
Типовой проект 125-045/1.2Типовой проект 125-045/1.2Типовой проект 125-045/1.2Типовой проект 125-045/1.2Типовой проект 125-045/1.2Типовой проект 125-045/1.2Типовой проект 125-045/1.2Типовой проект 125-045/1.2Типовой проект 125-045/1.2Типовой проект 125-045/1.2Типовой проект 125-045/1.2Типовой проект 125-045/1.2Типовой проект 125-045/1.2

© 2013 Ёшкин Кот :-) Карта сайта