Информационная система
«Ёшкин Кот»

Скачать базу одним архивом
Скачать обновления
История создания базы
Карта сайта

Скачать Типовой проект 125-045/1.2 Часть 01. Раздел 01-1. Архитектурно-строительные чертежи ниже отм. 0.000. Здание с техподпольем. Фундаменты свайные

Дата актуализации: 10.08.2017

Типовой проект 125-045/1.2

Часть 01. Раздел 01-1. Архитектурно-строительные чертежи ниже отм. 0.000. Здание с техподпольем. Фундаменты свайные

Обозначение: Типовой проект 125-045/1.2
Обозначение англ: 125-045/1.2
Статус:действует
Название рус.:Часть 01. Раздел 01-1. Архитектурно-строительные чертежи ниже отм. 0.000. Здание с техподпольем. Фундаменты свайные
Дата добавления в базу:01.09.2013
Дата актуализации:05.05.2017
Дата введения:30.06.1984
Оглавление:ТП 125-045/1.2-АС-1 Заглавный лист (начало)
ТП 125-045/1.2-АС-2,АС-3 Заглавный лист (продолжение)
ТП 125-045/1.2-АС-4 Заглавный лист (окончание). Схемы нагрузок
ТП 125-045/1.2-АС-5 План техподполья
ТП 125-045/1.2-АС-6 План свайного поля
ТП 125-045/1.2-АС-7 Разрезы по свайному полю 1-1,2-2
ТП 125-045/1.2-АС-8 Монтажный план оголовков
ТП 125-045/1.2-АС-9 Монтажный план ростверков и цокольных панелей
ТП 125-045/1.2-АС-10 Монтажный план перекрытия над техподпольем
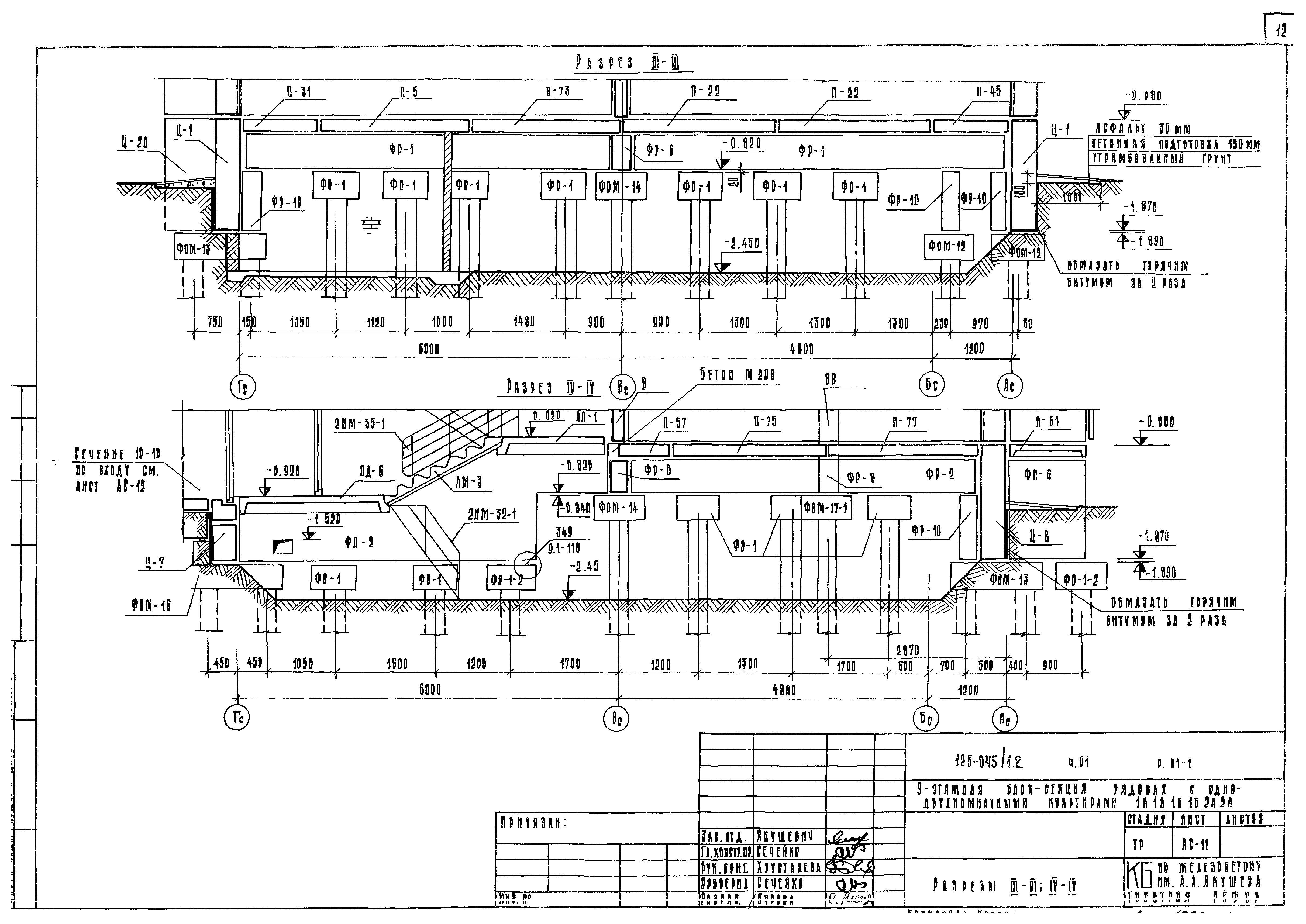
ТП 125-045/1.2-АС-11 Разрезы 3-3,4-4
ТП 125-045/1.2-АС-12 Сечения 4-4÷10-10
ТП 125-045/1.2-АС-13 Сечения 11-11÷12-12
ТП 125-045/1.2-АС-14 Фрагмент входа тип "6д"
ТП 125-045/1.2-АС-15 ЭБд-7. Монтажные планы ниже отм. 0.000
ТП 125-045/1.2-АС-16 ЭБд-8. Монтажные планы ниже отм. 0.000
ТП 125-045/1.2-АС-17 ЭБд-9. Монтажные планы ниже отм. ±0.000
ТП 125-045/1.2-АС-18 ЭБд-10. Монтажные планы ниже отм. ±0.000
ТП 125-045/1.2-АС-19 Разрезы 5-5÷6-6
ТП 125-045/1.2-АС-20 Сечения 13-13÷20-20
ТП 125-045/1.2-АС-21 Монолитный оголовок ФОМ-11
ТП 125-045/1.2-АС-22 Монолитный оголовок ФОМ-12
ТП 125-045/1.2-АС-23 Монолитный оголовок ФОМ-13
ТП 125-045/1.2-АС-24 Монолитный оголовок ФОМ-14
ТП 125-045/1.2-АС-25 Монолитный оголовок ФОМ-16
ТП 125-045/1.2-АС-26 Монолитный оголовок ФОМ-17
ТП 125-045/1.2-АС-27 Монолитный оголовок ФОМ-18
ТП 125-045/1.2-АС-28 Указания по производству работ
Разработан: КБ по железобетону Госстроя РСФСР
Утверждён:21.06.1982 Госстрой РСФСР (Russian Federation Gosstroy 46)
Расположен в:Техническая документация Строительство Справочные документы Типовые строительные конструкции, изделия и узлы Общероссийский строительный каталог Жилые здания для строительства в городах и поселках городского типа Обычные условия Жилые дома панельные Серия 125
Типовой проект 125-045/1.2Типовой проект 125-045/1.2Типовой проект 125-045/1.2Типовой проект 125-045/1.2Типовой проект 125-045/1.2Типовой проект 125-045/1.2Типовой проект 125-045/1.2Типовой проект 125-045/1.2Типовой проект 125-045/1.2Типовой проект 125-045/1.2Типовой проект 125-045/1.2Типовой проект 125-045/1.2Типовой проект 125-045/1.2Типовой проект 125-045/1.2Типовой проект 125-045/1.2Типовой проект 125-045/1.2Типовой проект 125-045/1.2Типовой проект 125-045/1.2Типовой проект 125-045/1.2Типовой проект 125-045/1.2Типовой проект 125-045/1.2Типовой проект 125-045/1.2Типовой проект 125-045/1.2Типовой проект 125-045/1.2Типовой проект 125-045/1.2Типовой проект 125-045/1.2Типовой проект 125-045/1.2Типовой проект 125-045/1.2Типовой проект 125-045/1.2Типовой проект 125-045/1.2

© 2013 Ёшкин Кот :-) Карта сайта