Информационная система
«Ёшкин Кот»

Скачать базу одним архивом
Скачать обновления
История создания базы
Карта сайта

Скачать Типовой проект 125-045/1.2 Часть 0. Раздел 0-1. Общая часть. Общая характеристика проекта

Дата актуализации: 10.08.2017

Типовой проект 125-045/1.2

Часть 0. Раздел 0-1. Общая часть. Общая характеристика проекта

Обозначение: Типовой проект 125-045/1.2
Обозначение англ: 125-045/1.2
Статус:действует
Название рус.:Часть 0. Раздел 0-1. Общая часть. Общая характеристика проекта
Дата добавления в базу:01.09.2013
Дата актуализации:05.05.2017
Дата введения:30.06.1984
Оглавление:ТП 125-045/1.2-АС-1 Заглавный лист (начало)
ТП 125-045/1.2-АС-2÷АС-6 Заглавный лист (продолжение)
ТП 125-045/1.2-АС-7 Заглавный лист (окончание)
ТП 125-045/1.2-АС-8 План типового этажа 1А1А1Б1Б2А2А
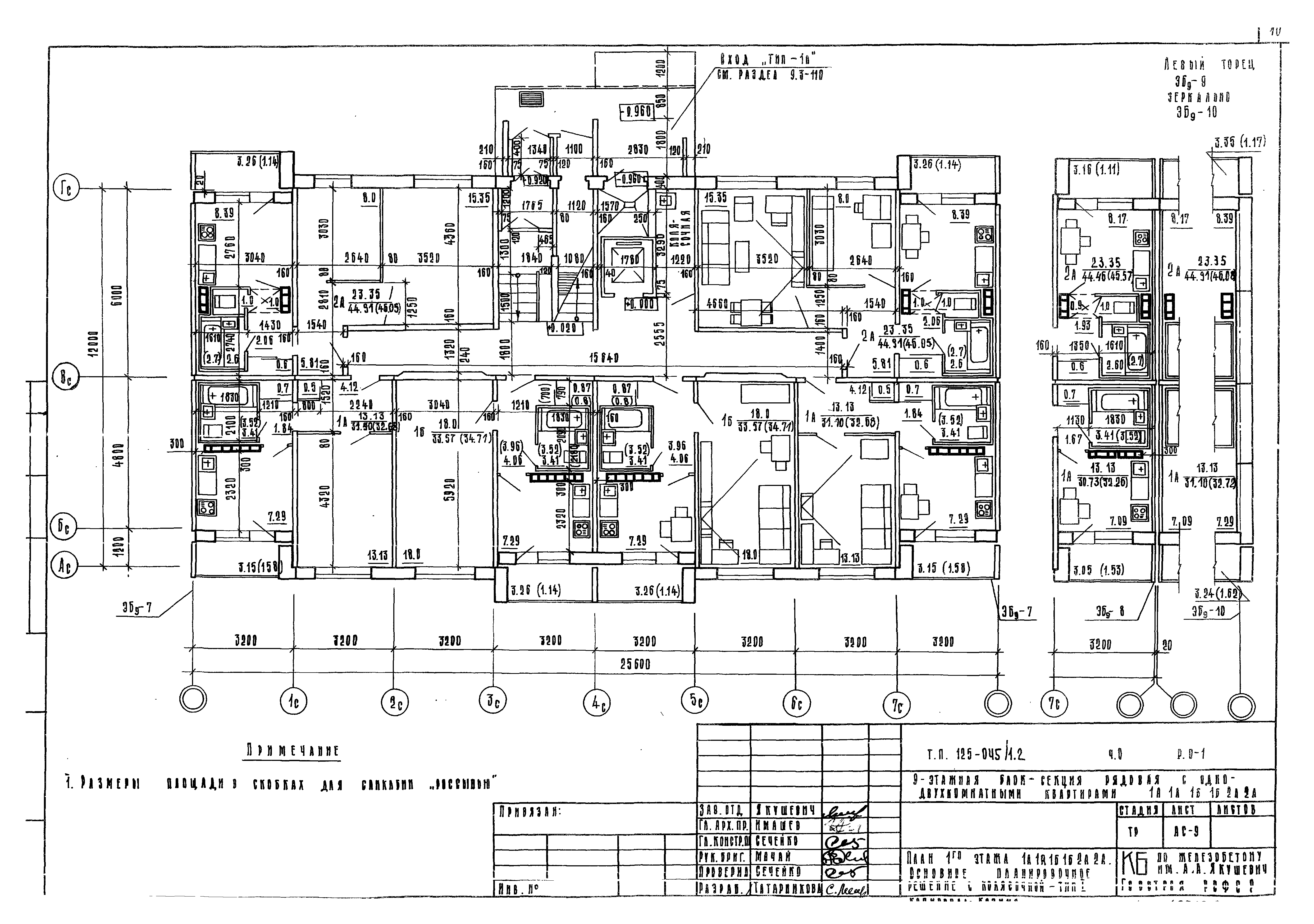
ТП 125-045/1.2-АС-9 План 1го этажа 1А1А1Б1Б2А2А. Основное планировочное решение с колясочной - тип 1
ТП 125-045/1.2-АС-10 План 1го этажа 1А1А1Б1Б2А2А. Основное планировочное решение со сквозным проходом - тип 2
ТП 125-045/1.2-АС-11 План 1го этажа 1А1А1Б1Б2А2А. Основное планировочное решение с электрощитовой - тип 3
ТП 125-045/1.2-АС-12 Фасады. Схемы фасадов
ТП 125-045/1.2-АС-13 Фасады. Схемы фасадов (вариант остекленных лоджий)
ТП 125-045/1.2-АС-14 Детали фасада
ТП 125-045/1.2-АС-15 Детали фасада (вариант остекленных лоджий)
ТП 125-045/1.2-АС-16 Вход тип - 1Д. Вход тип - 6Д
Разработан: КБ по железобетону Госстроя РСФСР
Утверждён:21.06.1982 Госстрой РСФСР (Russian Federation Gosstroy 46)
Расположен в:Техническая документация Строительство Справочные документы Типовые строительные конструкции, изделия и узлы Общероссийский строительный каталог Жилые здания для строительства в городах и поселках городского типа Обычные условия Жилые дома панельные Серия 125
Типовой проект 125-045/1.2Типовой проект 125-045/1.2Типовой проект 125-045/1.2Типовой проект 125-045/1.2Типовой проект 125-045/1.2Типовой проект 125-045/1.2Типовой проект 125-045/1.2Типовой проект 125-045/1.2Типовой проект 125-045/1.2Типовой проект 125-045/1.2Типовой проект 125-045/1.2Типовой проект 125-045/1.2Типовой проект 125-045/1.2Типовой проект 125-045/1.2Типовой проект 125-045/1.2Типовой проект 125-045/1.2Типовой проект 125-045/1.2Типовой проект 125-045/1.2

© 2013 Ёшкин Кот :-) Карта сайта