Скачать Типовой проект 901-5-9/70 Альбом I. Архитектурно-строительная, технологическая, электротехническая части и автоматикаДата актуализации: 10.08.2017 Типовой проект 901-5-9/70
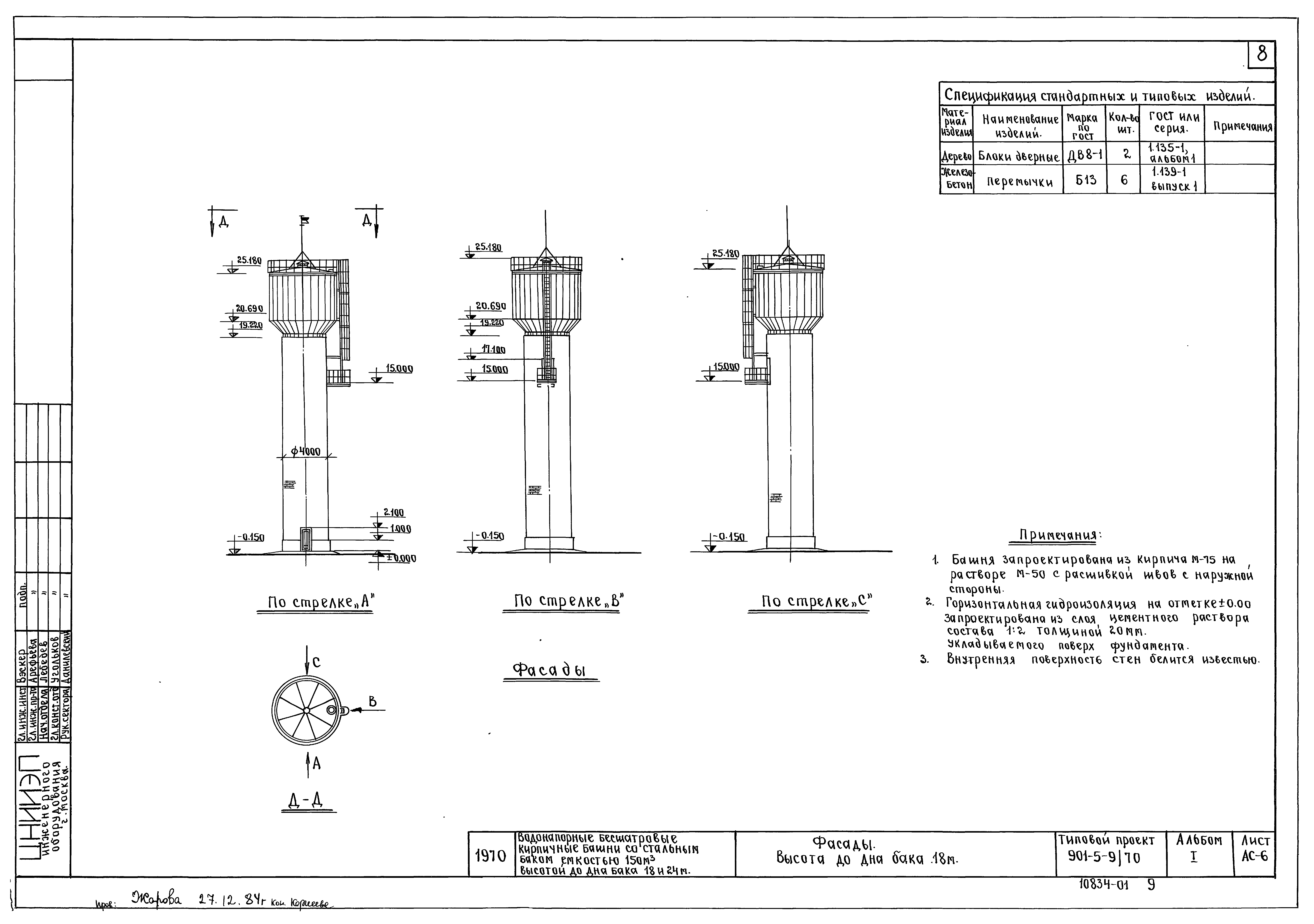
Альбом I. Архитектурно-строительная, технологическая, электротехническая части и автоматикаОбозначение: | Типовой проект 901-5-9/70 | Обозначение англ: | 901-5-9/70 | Статус: | не определен законодательством | Название рус.: | Альбом I. Архитектурно-строительная, технологическая, электротехническая части и автоматика | Дата добавления в базу: | 01.09.2013 | Дата актуализации: | 05.05.2017 | Дата введения: | 30.12.1970 | Оглавление: | ТП 901-5-9/70 Титульный лист ТП 901-5-9/70 Содержание альбома ТП 901-5-9/70-АС-1 Пояснительная записка ТП 901-5-9/70-АС-2 Заглавный лист. Высота до дна бака 24 м ТП 901-5-9/70-АС-3 Фасады. Высота до дна бака 24 м ТП 901-5-9/70-АС-4 Планы и разрезы. Высота до дна бака 24 м ТП 901-5-9/70-АС-5 Заглавный лист. Высота до дна бака 18 м ТП 901-5-9/70-АС-6 Фасады. Высота до дна бака 18 м ТП 901-5-9/70-АС-7 Планы и разрезы. Высота до дна бака 18 м ТП 901-5-9/70-АС-8 Детали 1-10 ТП 901-5-9/70-АС-9 Оголовок ствола. Опалубка. Армирование и закладные детали ТП 901-5-9/70-АС-10 Детали утепления бака и труб ТП 901-5-9/70-АС-11 Опалубка фундамента Ф-1 и плиты П-1 ТП 901-5-9/70-АС-12 Армирование фундамента Ф-1 и плиты П-1. Лист 1 ТП 901-5-9/70-АС-13 Армирование фундамента Ф-1 и плиты П-1. Лист 2 ТП 901-5-9/70-АС-14 Стальной бак емкостью 150 м³. Лист 1 ТП 901-5-9/70-АС-15 Стальной бак емкостью 150 м³. Лист 2 ТП 901-5-9/70-АС-16 Стальной бак емкостью 150 м³. Лист 3 ТП 901-5-9/70-АС-17 Стальной бак емкостью 150 м³. Лист 4 ТП 901-5-9/70-АС-18 Лестничная площадка ПЛ-1 ТП 901-5-9/70-АС-19 Лестничная площадка ПЛ-2 ТП 901-5-9/70-АС-20 Лестничная площадка ПЛ-3. Люк ТП 901-5-9/70-АС-21 Лестницы Л-1,Л-2 ТП 901-5-9/70-АС-22 Лестница Л-3, деталь перил. Кронштейны К-1,К-2 ТП 901-5-9/70-АС-23 Лестницы Л-4,Л-5 ТП 901-5-9/70-ППР-1 Производство работ. Пояснительная записка ТП 901-5-9/70-ППР-2 План стройплощадки ТП 901-5-9/70-ППР-3 Схема производства земляных и бетонных работ ТП 901-5-9/70-ППР-4 Схема сварки металлического бака в трубчатых подмостах ТП 901-5-9/70-ППР-5 Схема возведения кладки ствола и бетонирования оголовка. Ведомость объемов работ ТП 901-5-9/70-ППР-6 Схема монтажного бака спаренными кранами ТП 901-5-9/70-ППР-7 Схема монтажа бака ТП 901-5-9/70-ВК-1 Технологическая часть. Пояснительная записка ТП 901-5-9/70-ВК-2 Общий вид оборудования башни и монтажная схема для ствола высотой 18 м ТП 901-5-9/70-ВК-3 Общий вид оборудования башни и монтажная схема для ствола высотой 24 м ТП 901-5-9/70-ВК-4 Деталь выпуска трубопроводов ТП 901-5-9/70-ВК-5 Опорное колено, воронка ТП 901-5-9/70-ВК-6 Детали 3-7 ТП 901-5-9/70-ВК-7 Клапан-захлопка dу-200 ТП 901-5-9/70-АВ-1 Пояснительная записка. Кабельный журнал ТП 901-5-9/70-АВ-2 Заказная спецификация электроаппаратуры (начало) ТП 901-5-9/70-АВ-3 Заказная спецификация электроаппаратуры (окончание). Заказная спецификация щитов и пультов ТП 901-5-9/70-АВ-4 Заказная спецификация кабелей и проводов. Заказная спецификация основных монтажных материалов и изделий ТП 901-5-9/70-АВ-5 Схема питания электрооборудования. Электрообогрев напорно-разводящего стояка. Схема принципиальная электрическая ТП 901-5-9/70-АВ-6 Измерение уровня в баке водонапорной башни. Схема принципиальная электрическая ТП 901-5-9/70-АВ-7 Задвижка. Схема принципиальная электрическая ТП 901-5-9/70-АВ-8 Схема внешних соединений электрооборудования ТП 901-5-9/70-АВ-9 Электрические проводки. Электроосвещение. Молниезащита ТП 901-5-9/70-АВ-10 Шкаф автоматики. Общий вид. Схема монтажная. Лист 1 ТП 901-5-9/70-АВ-11 Шкаф автоматики. Общий вид. Схема монтажная. Лист 2 ТП 901-5-9/70-АВ-12 Электрообогрев напорно-разводящего стояка. Общий вид и детали ТП 901-5-9/70-АВ-13 Датчик уровня с электрообогревом. Элементная схема датчика уровня с электрообогревом. Общий вид ТП 901-5-9/70-АВ-14 Датчик уровня с электрообогревом. Детали ТП 901-5-9/70-АВ-15 Пример установки датчиков уровней с электрообогревом | Разработан: | ЦНИИЭП иженерного оборудования
| Утверждён: | 30.12.1970 ЦНИИЭП инженерного оборудования (TsNIIEP of Building Service Equipment 175)
| Расположен в: |
|
                                                     
|