Скачать Серия 3-93 Дымовые и вентиляционные каналы газифицируемых помещений. Рабочие чертежиДата актуализации: 10.08.2017 Серия 3-93
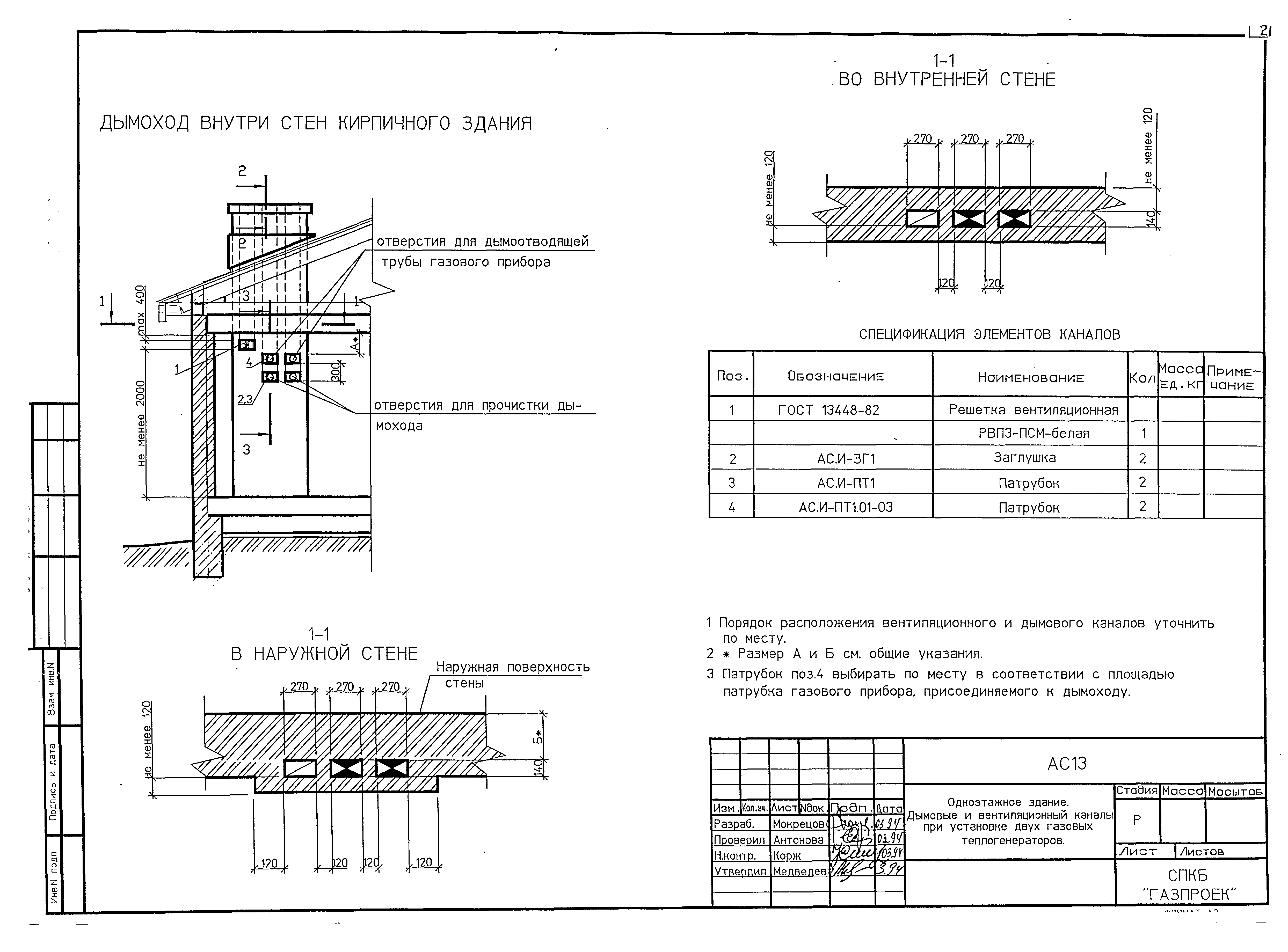
Дымовые и вентиляционные каналы газифицируемых помещений. Рабочие чертежиОбозначение: | Серия 3-93 | Обозначение англ: | Series 3-93 | Статус: | действует | Название рус.: | Дымовые и вентиляционные каналы газифицируемых помещений. Рабочие чертежи | Дата добавления в базу: | 01.09.2013 | Дата актуализации: | 05.05.2017 | Дата введения: | 28.06.1994 | Разработан: | АО Росгазификация
| Утверждён: | 28.06.1994 АО Росгазификация (Rosgazifikatsiya AO 39-П)
| Расположен в: |
| Чем заменён: | |
                                                             
|