Информационная система
«Ёшкин Кот»

Скачать базу одним архивом
Скачать обновления
История создания базы
Карта сайта

Скачать Типовой проект 902-2-469.89 Альбом 5. Насосная станция сырого осадка. Архитектурные решения. Конструкции железобетонные. Строительные изделия. Конструкции металлические

Дата актуализации: 10.08.2017

Типовой проект 902-2-469.89

Альбом 5. Насосная станция сырого осадка. Архитектурные решения. Конструкции железобетонные. Строительные изделия. Конструкции металлические

Обозначение: Типовой проект 902-2-469.89
Обозначение англ: 902-2-469.89
Статус:не определен законодательством
Название рус.:Альбом 5. Насосная станция сырого осадка. Архитектурные решения. Конструкции железобетонные. Строительные изделия. Конструкции металлические
Дата добавления в базу:01.09.2013
Дата актуализации:05.05.2017
Дата введения:27.04.1989
Оглавление:ТП 902-2-469.89 Титульный лист
ТП 902-2-469.89 Содержание альбома
ТП 902-2-469.89-АР Архитектурное решение
ТП 902-2-469.89-АР-1 Насосная станция сырого осадка. Общие данные
ТП 902-2-469.89-АР-2 Насосная станция сырого осадка. Фасады. План надземной части
ТП 902-2-469.89-АР-3 Насосная станция сырого осадка. Разрезы 1-1,2-2,3-3. План подземной части
ТП 902-2-469.89-КЖ Конструкции железобетонные
ТП 902-2-469.89-КЖ-1 Насосная станция сырого осадка. Общие данные
ТП 902-2-469.89-КЖ-2 Насосная станция сырого осадка. Днище. Опалубочный чертеж
ТП 902-2-469.89-КЖ-3 Насосная станция сырого осадка. Днище. Армирование
ТП 902-2-469.89-КЖ-4 Насосная станция сырого осадка. Стены подвала. Схема расположения элементов
ТП 902-2-469.89-КЖ-5 Насосная станция сырого осадка. Стены подвала. Монолитные участки СМ1-СМ4. Арматурно-опалубочный чертеж
ТП 902-2-469.89-КЖ-6 Насосная станция сырого осадка. Стены подвала. Монолитные участки СМ1-СМ4. Спецификация. Начало
ТП 902-2-469.89-КЖ-7 Насосная станция сырого осадка. Стены подвала. Монолитные участки СМ1-СМ4. Спецификация. Окончание
ТП 902-2-469.89-КЖ-8 Насосная станция сырого осадка. Перекрытие на отм. 0.000. Покрытие. Схема расположения элементов
ТП 902-2-469.89-КЖ-9 Насосная станция сырого осадка. Перекрытие на отм. 0.000. Монолитная балка БМ1
ТП 902-2-469.89-КЖ-10 Насосная станция сырого осадка. Фундаменты под оборудование. Трубки под электрокабели
ТП 902-2-469.89-КЖ-11 Насосная станция сырого осадка. Помещение щитов. План кирпичных стен. Расположение рамок и щитов
ТП 902-2-469.89-КЖИ КЖИ-строительные изделия
ТП 902-2-469.89-КЖИ.-0.0.0.ТУ Технические условия
ТП 902-2-469.89-КЖИ.-1.0 Панель стеновая ПС1-36-64а
ТП 902-2-469.89-КЖИ.-2.0 Панель стеновая ПС1-36-64б
ТП 902-2-469.89-КЖИ.-3.0 Панель стеновая ПС1-36-64в
ТП 902-2-469.89-КЖИ.-4.0 Панель стеновая ПС1-36-64д
ТП 902-2-469.89-КЖИ.-5.0 Панель стеновая ПС1-36-64г
ТП 902-2-469.89-КЖИ.-6.0 Каркас КР1
ТП 902-2-469.89-КЖИ.-7.0 Каркас КР2
ТП 902-2-469.89-КЖИ.-8.0 Щит металлический Щ1
ТП 902-2-469.89-КЖИ.-9.0 Щиты паркетные ЩД1,ЩД2
ТП 902-2-469.89-КЖИ.-10.0 Щит паркетный ЩД3
ТП 902-2-469.89-КМ Конструкции металлические
ТП 902-2-469.89-КМ-1 Насосная станция сырого осадка. Общие данные (начало)
ТП 902-2-469.89-КМ-2 Насосная станция сырого осадка. Общие данные (продолжение)
ТП 902-2-469.89-КМ-3 Насосная станция сырого осадка. Общие данные (окончание)
ТП 902-2-469.89-КМ-4 Насосная станция сырого осадка. Пути подвесного крана. Монорельсовые пути. Схемы расположения элементов. Узлы 1,2
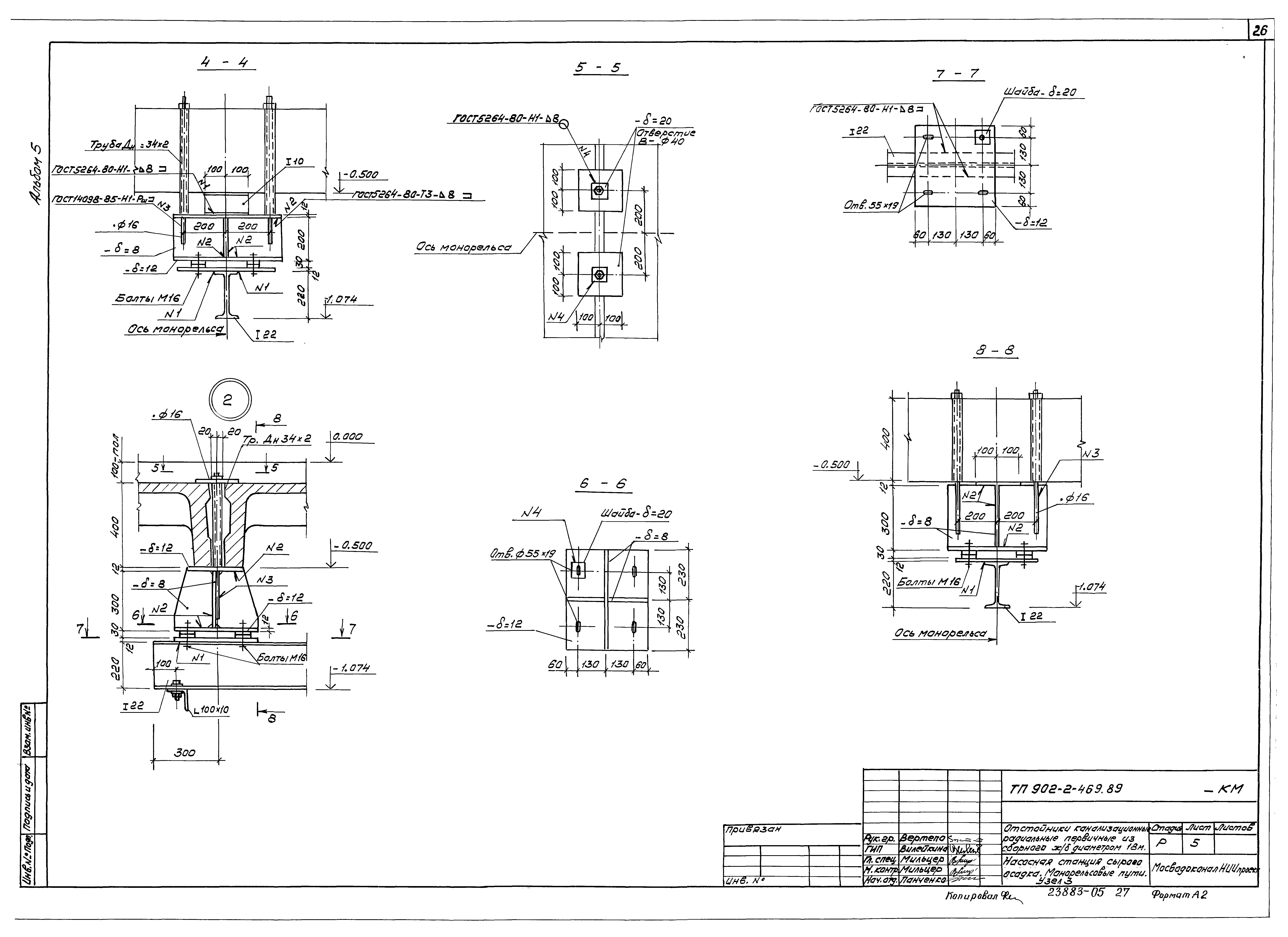
ТП 902-2-469.89-КМ-5 Насосная станция сырого осадка. Монорельсовые пути. Узел 3
ТП 902-2-469.89-КМ-6 Насосная станция сырого осадка. Лестницы и площадки на отм. -2.300;-2.600;-3.200. Ограждения. Схема расположения элементов
ТП 902-2-469.89-КМ-7 Насосная станция сырого осадка. Площадки на отм. -2.300;-2.600;-3.200. МП1,МП2,МП3
ТП 902-2-469.89-КМ-8 Насосная станция сырого осадка. Лестницы и площадки на отм. 0.000. Ограждения. Схема расположения элементов. Узлы 1,2
ТП 902-2-469.89-КМ-9 Насосная станция сырого осадка. Площадка МП4. Площадки на отм. -2.300;-2.600;-3.200. Узлы 1-5
ТП 902-2-469.89-КМ-10 Насосная станция сырого осадка. Площадки на отм. -2.400. Лестница. Ограждения. Схема расположения элементов. МП5. Узлы 1,2
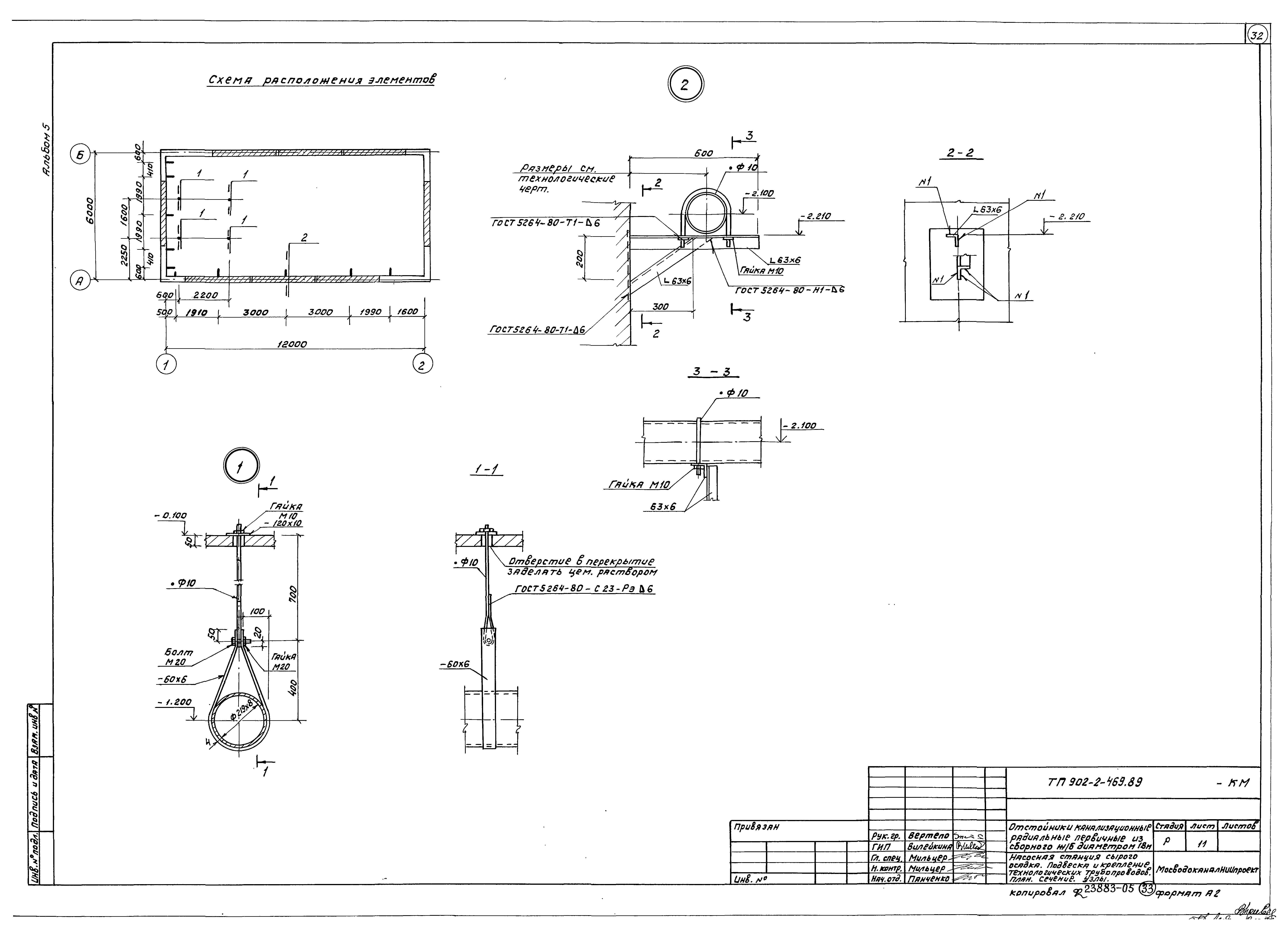
ТП 902-2-469.89-КМ-11 Насосная станция сырого осадка. Подвеска и крепление технологических трубопроводов. План. Сечение. Узлы
Разработан: МосводоканалНИИпроект
Утверждён:24.04.1989 Мосгорисполком (Mosgorispolkom 842р)
Расположен в:Техническая документация Строительство Справочные документы Типовые строительные конструкции, изделия и узлы Общероссийский строительный каталог Промышленные предприятия, здания и сооружения Здания и сооружения санитарно-технические Канализация Сооружения механической очистки Отстойники Отстойники радиальные первичные
Типовой проект 902-2-469.89Типовой проект 902-2-469.89Типовой проект 902-2-469.89Типовой проект 902-2-469.89Типовой проект 902-2-469.89Типовой проект 902-2-469.89Типовой проект 902-2-469.89Типовой проект 902-2-469.89Типовой проект 902-2-469.89Типовой проект 902-2-469.89Типовой проект 902-2-469.89Типовой проект 902-2-469.89Типовой проект 902-2-469.89Типовой проект 902-2-469.89Типовой проект 902-2-469.89Типовой проект 902-2-469.89Типовой проект 902-2-469.89Типовой проект 902-2-469.89Типовой проект 902-2-469.89Типовой проект 902-2-469.89Типовой проект 902-2-469.89Типовой проект 902-2-469.89Типовой проект 902-2-469.89Типовой проект 902-2-469.89Типовой проект 902-2-469.89Типовой проект 902-2-469.89Типовой проект 902-2-469.89Типовой проект 902-2-469.89Типовой проект 902-2-469.89Типовой проект 902-2-469.89Типовой проект 902-2-469.89Типовой проект 902-2-469.89Типовой проект 902-2-469.89

© 2013 Ёшкин Кот :-) Карта сайта