Информационная система
«Ёшкин Кот»

Скачать базу одним архивом
Скачать обновления
История создания базы
Карта сайта

Скачать Типовой проект 294-8-34.92 Альбом V. Строительные изделия

Дата актуализации: 10.08.2017

Типовой проект 294-8-34.92

Альбом V. Строительные изделия

Обозначение: Типовой проект 294-8-34.92
Обозначение англ: 294-8-34.92
Статус:не определен законодательством
Название рус.:Альбом V. Строительные изделия
Дата добавления в базу:01.09.2013
Дата актуализации:05.05.2017
Дата введения:22.04.1992
Оглавление:ТП 294-8-34.92 Содержание альбома
ТП 294-8-34.92-00.00-ТУ Технические условия
ТП 294-8-34.92-КЖИ-01.00 Балки металлические БМ-1,БМ-2
ТП 294-8-34.92-КЖИ-01.02 Балка металлическая БМ-3
ТП 294-8-34.92-КЖИ-01.03 Балка металлическая БМ-4
ТП 294-8-34.92-КЖИ-02.00 Изделие металлическое ИМ-1
ТП 294-8-34.92-КЖИ-03.00 Каркасы КРв-1,КРв-2,КРв-3,КРв-4,КРв-5,КРв-6
ТП 294-8-34.92-КЖИ-03.06 Каркасы КРв-7
ТП 294-8-34.92-КЖИ-03.07 Каркасы КРв-8
ТП 294-8-34.92-КЖИ-03.08 Каркасы КРв-9,КРв-10,КРв-11,КРв-12,КРв-17,КРв-18
ТП 294-8-34.92-КЖИ-03.14 Каркасы КРв-13,КРв-16
ТП 294-8-34.92-КЖИ-03.16 Каркасы КРв-14,КРв-15
ТП 294-8-34.92-КЖИ-03.18 Каркасы КРв-19,КРв-20
ТП 294-8-34.92-КЖИ-03.20 Каркасы КРв-21,КРв-22
ТП 294-8-34.92-КЖИ-03.22 Каркасы КРв-24,КРв-25
ТП 294-8-34.92-КЖИ-03.24 Каркасы КРв-23
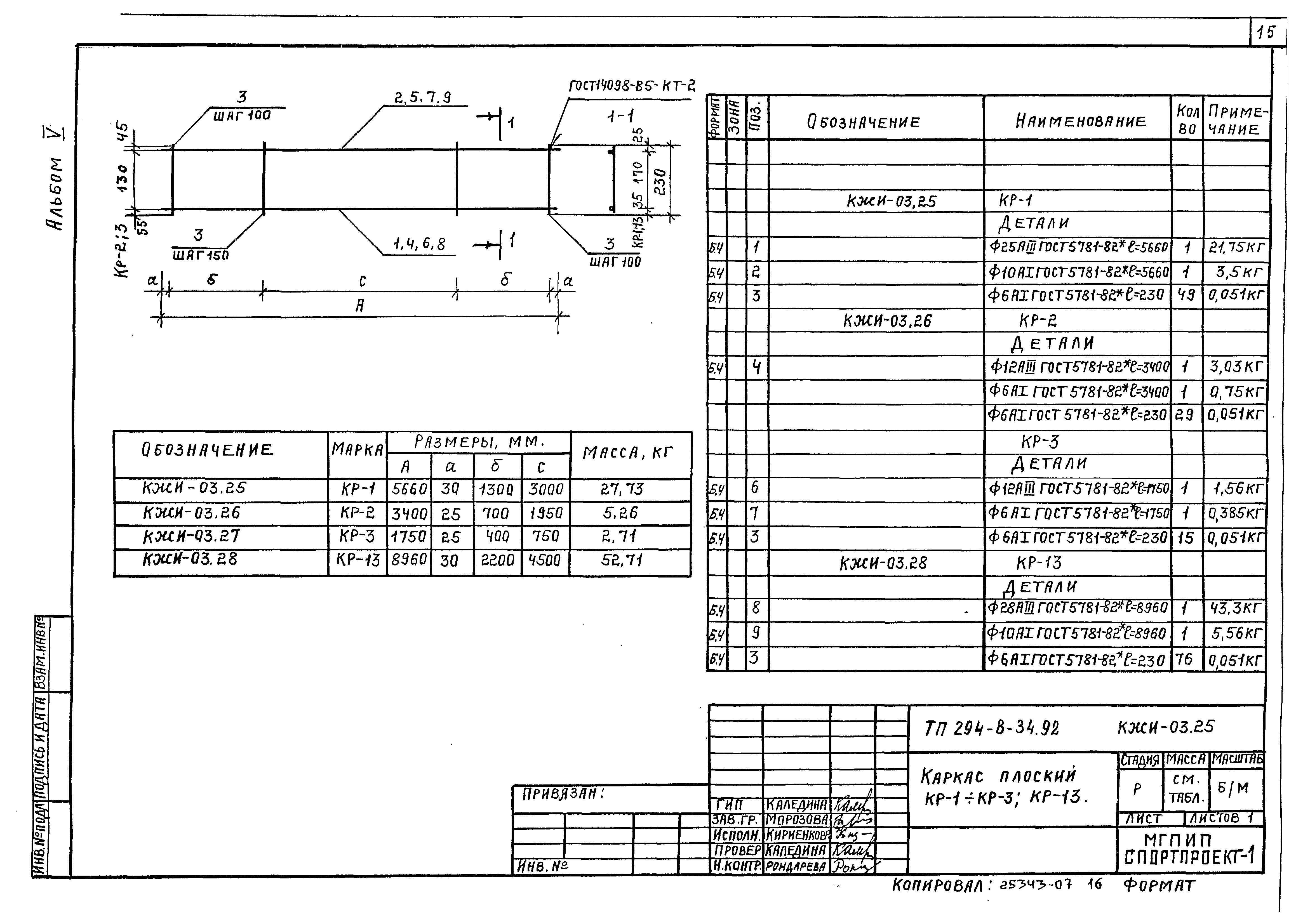
ТП 294-8-34.92-КЖИ-03.25 Каркасы плоский КР-1÷КР-3;КР-13
ТП 294-8-34.92-КЖИ-03.29 Каркасы плоский КР-5;КР-12;КР-7;КР-8
ТП 294-8-34.92-КЖИ-03.33 Каркасы плоский КР-4;КР-6
ТП 294-8-34.92-КЖИ-03.35 Каркасы плоский КР-9;КР-11
ТП 294-8-34.92-КЖИ-03.37 Каркасы плоский КР-10;КР-14,КР-15
ТП 294-8-34.92-КЖИ-03.40 Каркасы плоский КРф-1;КРф-2;КРф-3;КРф-4
ТП 294-8-34.92-КЖИ-03.44 Каркасы плоский КРф-5;КРф-6
ТП 294-8-34.92-КЖИ-03.46 Каркасы плоский КРф-7
ТП 294-8-34.92-КЖИ-03.47 Каркасы плоский КРф-8
ТП 294-8-34.92-КЖИ-04.08 Рамка РМ-9
ТП 294-8-34.92-КЖИ-04.01 Рамка обрамляющая РМ-2
ТП 294-8-34.92-КЖИ-04.02 Рамка обрамляющая РМ-3
ТП 294-8-34.92-КЖИ-04.07 Рамка обрамляющая РМ-8
ТП 294-8-34.92-КЖИ-04.03 Рамка обрамляющая РМ-4
ТП 294-8-34.92-КЖИ-04.04 Рамка обрамляющая РМ-5
ТП 294-8-34.92-КЖИ-04.05 Рамка обрамляющая РМ-6
ТП 294-8-34.92-КЖИ-04.06 Рамка обрамляющая РМ-7
ТП 294-8-34.92-КЖИ-05.00 Анкер А-1;А-2;А-3
ТП 294-8-34.92-КЖИ-06.00 Закладная деталь ЗД-1
ТП 294-8-34.92-КЖИ-06.05 Закладная деталь ЗД-6
ТП 294-8-34.92-КЖИ-06.01 Закладная деталь ЗД-2
ТП 294-8-34.92-КЖИ-06.02 Закладная деталь ЗД-3
ТП 294-8-34.92-КЖИ-06.03 Закладная деталь ЗД-4
ТП 294-8-34.92-КЖИ-06.07 Закладная деталь ЗД-8
ТП 294-8-34.92-КЖИ-06.04 Закладная деталь ЗД-5
ТП 294-8-34.92-КЖИ-06.08 Закладная деталь ЗД-9
ТП 294-8-34.92-КЖИ-06.06 Закладная деталь ЗД-7
ТП 294-8-34.92-КЖИ-06.09 Закладная деталь ЗД-10
ТП 294-8-34.92-КЖИ-06.10 Закладная деталь ЗД-11
ТП 294-8-34.92-КЖИ-06.11 Закладная деталь ЗД-12
ТП 294-8-34.92-КЖИ-06.12 Закладная деталь ЗД-13
ТП 294-8-34.92-КЖИ-06.13 Закладная деталь ЗД-14
ТП 294-8-34.92-КЖИ-06.14 Закладная деталь ЗД-15
ТП 294-8-34.92-КЖИ-06.15 Закладная деталь ЗД-16
ТП 294-8-34.92-КЖИ-04.09 Рамка РМ-11
ТП 294-8-34.92-КЖИ-06.16 Закладная деталь ЗД-17
ТП 294-8-34.92-КЖИ-06.17 Закладная деталь ЗД-18т/н
ТП 294-8-34.92-КЖИ-06.18 Закладная деталь ЗД-19
ТП 294-8-34.92-КЖИ-07.00 Крышка ЛК-1
ТП 294-8-34.92-КЖИ-06.19 Закладная деталь ЗД-20
ТП 294-8-34.92-КЖИ-07.01 Металлическая деталь МД-1
ТП 294-8-34.92-КЖИ-08.00 Стремянка ЛП-1
ТП 294-8-34.92-КЖИ-08.01 Стремянка ЛП-2
ТП 294-8-34.92-КЖИ-08.02 Стремянка ЛП-3
ТП 294-8-34.92-КЖИ-08.03 Лестница ЛМ-1
ТП 294-8-34.92-КЖИ-08.04 Лестница ЛМ-2
ТП 294-8-34.92-КЖИ-09.00 Жалюзийная решетка МЖР-1
ТП 294-8-34.92-КЖИ-09.01 Решетка МР1
ТП 294-8-34.92-КЖИ-09.02 Решетка МР2
ТП 294-8-34.92-КЖИ-09.03 Решетка МР3
ТП 294-8-34.92-КЖИ-09.04 Решетка МР4
ТП 294-8-34.92-КЖИ-09.05 Решетка МР5
ТП 294-8-34.92-КЖИ-09.06 Решетка МР6
ТП 294-8-34.92-КЖИ-10.00 Каскад К1
ТП 294-8-34.92-КЖИ-11.00 Поручень МП1
ТП 294-8-34.92-КЖИ-11.01 Поручень МП2
ТП 294-8-34.92-КЖИ-11.02 Поручень МП3
ТП 294-8-34.92-КЖИ-11.03 Поручень МП4
ТП 294-8-34.92-КЖИ-11.04 Поручень МП5
ТП 294-8-34.92-КЖИ-11.05 Поручень МП6
ТП 294-8-34.92-КЖИ-11.06 Поручень МП7
ТП 294-8-34.92-КЖИ-04.00 Рамка РМ1
ТП 294-8-34.92-КЖИ-12.00 Лотковый элемент ЛС1
ТП 294-8-34.92-КЖИ-12.01 Лотковый элемент ЛС2
ТП 294-8-34.92-КЖИ-12.02 Лотковый элемент ЛС3
ТП 294-8-34.92-КЖИ-12.03 Лотковый элемент ЛС4
ТП 294-8-34.92-КЖИ-12.04 Лотковый элемент ЛС5
ТП 294-8-34.92-КЖИ-12.05 Лотковый элемент ЛС6т/ЛС6н
ТП 294-8-34.92-КЖИ-01.04 Балка металлическая БМ-5
ТП 294-8-34.92-КЖИ-01.05 Балка металлическая БМ-6
ТП 294-8-34.92-КЖИ-06.20 Деталь закладная 3Д-21
ТП 294-8-34.92-КЖИ-06.23 Деталь закладная 3Д-24;ЗД-25
ТП 294-8-34.92-КЖИ-06.21 Деталь закладная 3Д-22
ТП 294-8-34.92-КЖИ-06.22 Деталь закладная 3Д-23
Разработан: Спортпроект-1
Утверждён:26.12.1990 Госкомархитектура (262)
Расположен в:Техническая документация Строительство Справочные документы Типовые строительные конструкции, изделия и узлы Общероссийский строительный каталог Общественные здания в городах и поселках городского типа Физкультурно-оздоровительные и спортивные здания и сооружения Физкультурно-оздоровительные и спортивные комплексы
Типовой проект 294-8-34.92Типовой проект 294-8-34.92Типовой проект 294-8-34.92Типовой проект 294-8-34.92Типовой проект 294-8-34.92Типовой проект 294-8-34.92Типовой проект 294-8-34.92Типовой проект 294-8-34.92Типовой проект 294-8-34.92Типовой проект 294-8-34.92Типовой проект 294-8-34.92Типовой проект 294-8-34.92Типовой проект 294-8-34.92Типовой проект 294-8-34.92Типовой проект 294-8-34.92Типовой проект 294-8-34.92Типовой проект 294-8-34.92Типовой проект 294-8-34.92Типовой проект 294-8-34.92Типовой проект 294-8-34.92Типовой проект 294-8-34.92Типовой проект 294-8-34.92Типовой проект 294-8-34.92Типовой проект 294-8-34.92Типовой проект 294-8-34.92Типовой проект 294-8-34.92Типовой проект 294-8-34.92Типовой проект 294-8-34.92Типовой проект 294-8-34.92Типовой проект 294-8-34.92Типовой проект 294-8-34.92Типовой проект 294-8-34.92Типовой проект 294-8-34.92Типовой проект 294-8-34.92Типовой проект 294-8-34.92Типовой проект 294-8-34.92Типовой проект 294-8-34.92Типовой проект 294-8-34.92Типовой проект 294-8-34.92Типовой проект 294-8-34.92Типовой проект 294-8-34.92Типовой проект 294-8-34.92Типовой проект 294-8-34.92Типовой проект 294-8-34.92Типовой проект 294-8-34.92Типовой проект 294-8-34.92Типовой проект 294-8-34.92Типовой проект 294-8-34.92Типовой проект 294-8-34.92Типовой проект 294-8-34.92Типовой проект 294-8-34.92Типовой проект 294-8-34.92Типовой проект 294-8-34.92Типовой проект 294-8-34.92Типовой проект 294-8-34.92Типовой проект 294-8-34.92Типовой проект 294-8-34.92Типовой проект 294-8-34.92Типовой проект 294-8-34.92Типовой проект 294-8-34.92Типовой проект 294-8-34.92Типовой проект 294-8-34.92Типовой проект 294-8-34.92Типовой проект 294-8-34.92Типовой проект 294-8-34.92

© 2013 Ёшкин Кот :-) Карта сайта