Информационная система
«Ёшкин Кот»

Скачать базу одним архивом
Скачать обновления
История создания базы
Карта сайта

Скачать Типовой проект 414-1-42.89 Альбом 2. Архитектурные решения. Конструкции железобетонные. Конструкции металлические. Технологические решения

Дата актуализации: 10.08.2017

Типовой проект 414-1-42.89

Альбом 2. Архитектурные решения. Конструкции железобетонные. Конструкции металлические. Технологические решения

Обозначение: Типовой проект 414-1-42.89
Обозначение англ: 414-1-42.89
Статус:не определен законодательством
Название рус.:Альбом 2. Архитектурные решения. Конструкции железобетонные. Конструкции металлические. Технологические решения
Дата добавления в базу:01.09.2013
Дата актуализации:05.05.2017
Дата введения:01.07.1989
Оглавление:ТП 414-1-42.89 Содержание альбома
ТП 414-1-42.89-АР Основной комплект чертежей марки АР
ТП 414-1-42.89-АР-1 Общие данные (начало)
ТП 414-1-42.89-АР-2 Общие данные (окончание)
ТП 414-1-42.89-АР-3 Фасады 1-7,7-1,А-Г,Г-А
ТП 414-1-42.89-АР-4 План на отм. -2.400
ТП 414-1-42.89-АР-5 План на отм. 0.000
ТП 414-1-42.89-АР-6 Разрез 1-1;2-2
ТП 414-1-42.89-АР-7 Спецификация элементов заполнения проемов. Планы полов. Экспликация полов. Ведомость проемов
ТП 414-1-42.89-АР-8 Фрагменты плана № 1-4. Узлы. Спецификация
ТП 414-1-42.89-АР-9 Панели-перегородки. План, виды, узлы. Спецификация. Узлы крепления кирпичных стен
ТП 414-1-42.89-АР-10 План отверстий в стенах и перегородках
ТП 414-1-42.89-КЖ Основной комплект чертежей марки КЖ
ТП 414-1-42.89-КЖ-1 Общие данные
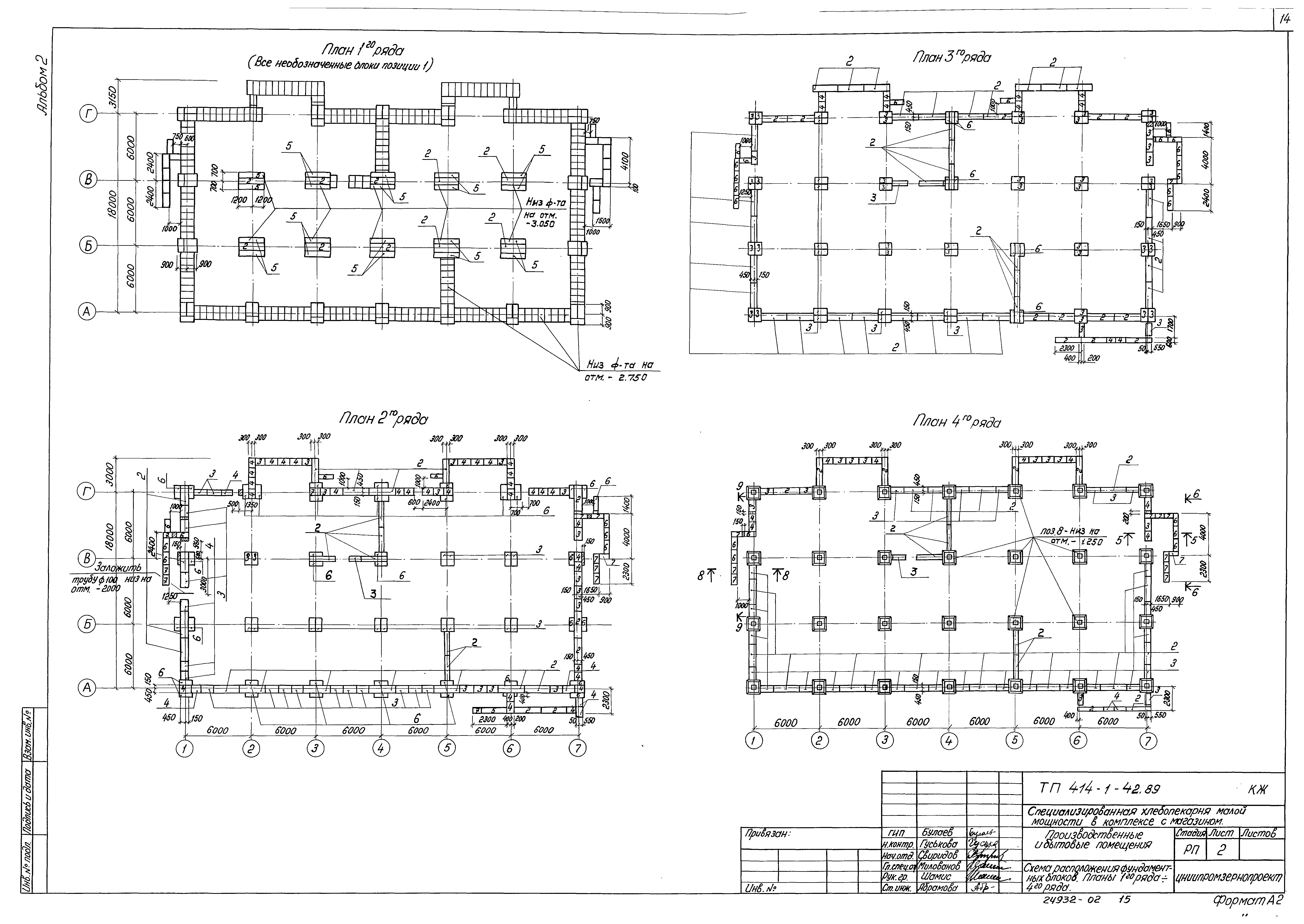
ТП 414-1-42.89-КЖ-2 Схемы расположения фундаментных блоков. Планы 1го ряда-4го ряда
ТП 414-1-42.89-КЖ-3 Схема расположения фундаментных блоков. План 5го ряда. Спецификация
ТП 414-1-42.89-КЖ-4 Схема расположения каркаса. Узлы 1,2. Схемы расположения фундаментных блоков. Разрезы 4-4÷12-12
ТП 414-1-42.89-КЖ-5 Схемы расположения колонн и ригелей на отм. 0.000 и ригелей и диафрагм жесткости на отм. 3.600
ТП 414-1-42.89-КЖ-6 Схема расположения плит перекрытия на отм. 0.000
ТП 414-1-42.89-КЖ-7 Схема расположения плит перекрытия на отм. 3.600
ТП 414-1-42.89-КЖ-8 Схемы расположения плит перекрытия и покрытия. Спецификация
ТП 414-1-42.89-КЖ-9 Схемы расположения стеновых панелей по осям А,Г,7,1. Спецификация
ТП 414-1-42.89-КЖИ Изделия железобетонные
ТП 414-1-42.89-КЖИ-01.00 Колонны: 1КД3.36-1;1КД3.36-2;1КО3.36-1;1КО3.36-2;1КО3.36-3;1К3.36-1. Спецификация
ТП 414-1-42.89-КЖИ-01.00 СБ Колонны: 1КД3.36-1;1КД3.36-2;1КО3.36-1;1КО3.36-2;1КО3.36-3;1К3.36-1. Сборочный чертеж
ТП 414-1-42.89-КМ Основной комплект чертежей марки КМ
ТП 414-1-42.89-КМ-1 Общие данные
ТП 414-1-42.89-КМ-2 Витраж входа
ТП 414-1-42.89-КМ-3 Навесы над рампами. Ограждения. Ведомость элементов
ТП 414-1-42.89-ТХ Основной комплект чертежей марки ТХ
ТП 414-1-42.89-ТХ-1 Общие данные
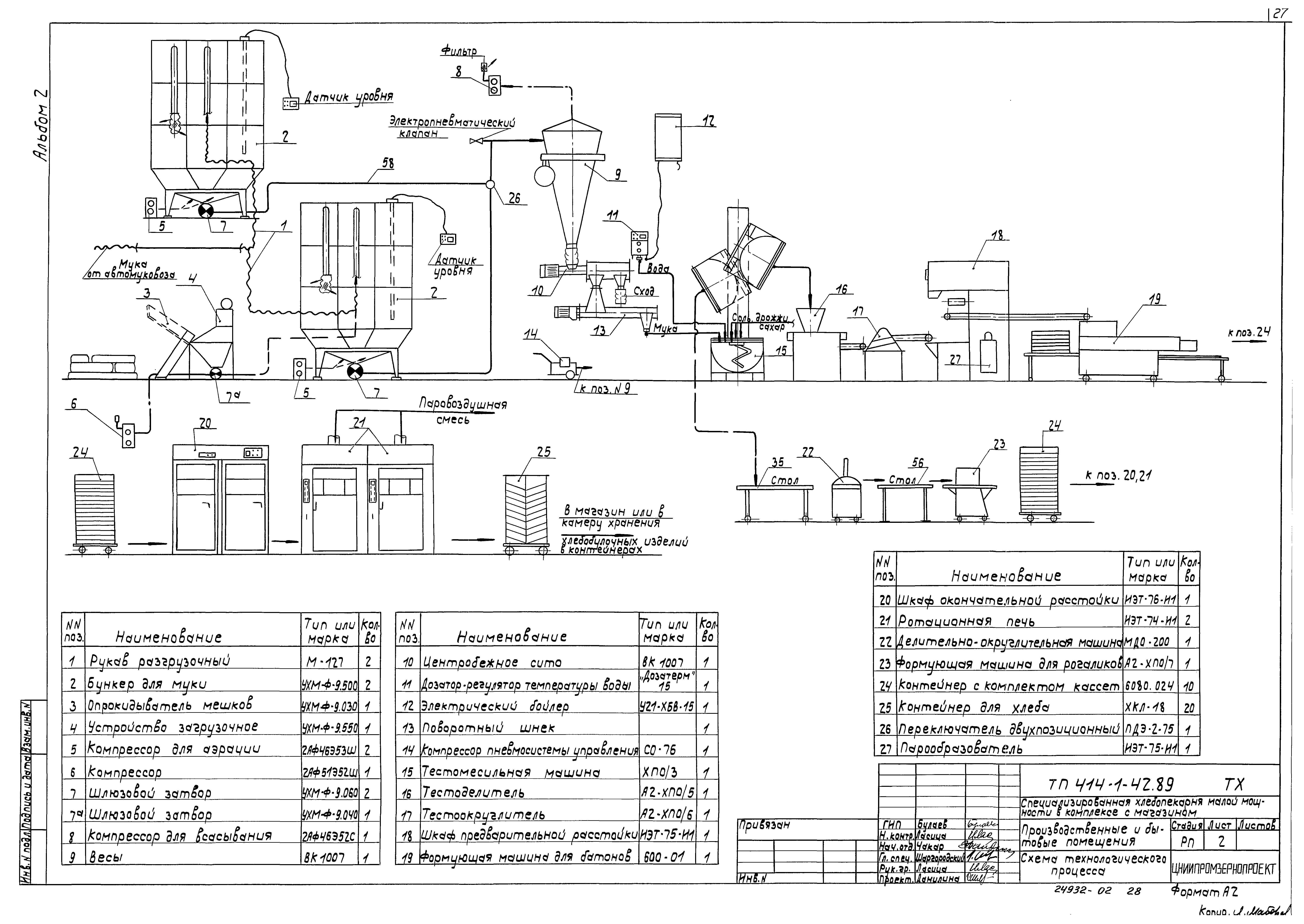
ТП 414-1-42.89-ТХ-2 Схема технологического процесса
ТП 414-1-42.89-ТХ-3 План на отм. 0.00
ТП 414-1-42.89-ТХ-4 Разрез 1-1. Разрез 2-2
ТП 414-1-42.89-ТХ-5 Экспликация оборудования
ТП 414-1-42.89-ТХ-1 Основной комплект чертежей марки ТХ-1
ТП 414-1-42.89-ТХ-1-1 Общие данные
ТП 414-1-42.89-ТХ-1-2 Расстановка оборудования магазина
Разработан: ЦНИИпромзернопроект
Утверждён:17.02.1989 Минхлебопродуктов СССР (USSR Minkhleboproduktov 40)
Расположен в:Техническая документация Строительство Справочные документы Типовые строительные конструкции, изделия и узлы Общероссийский строительный каталог Промышленные предприятия, здания и сооружения Предприятия, здания и сооружения промышленности и электроэнергетики Промышленность пищевая Промышленность хлебопекарная, макаронная и кондитерская
Типовой проект 414-1-42.89Типовой проект 414-1-42.89Типовой проект 414-1-42.89Типовой проект 414-1-42.89Типовой проект 414-1-42.89Типовой проект 414-1-42.89Типовой проект 414-1-42.89Типовой проект 414-1-42.89Типовой проект 414-1-42.89Типовой проект 414-1-42.89Типовой проект 414-1-42.89Типовой проект 414-1-42.89Типовой проект 414-1-42.89Типовой проект 414-1-42.89Типовой проект 414-1-42.89Типовой проект 414-1-42.89Типовой проект 414-1-42.89Типовой проект 414-1-42.89Типовой проект 414-1-42.89Типовой проект 414-1-42.89Типовой проект 414-1-42.89Типовой проект 414-1-42.89Типовой проект 414-1-42.89Типовой проект 414-1-42.89Типовой проект 414-1-42.89Типовой проект 414-1-42.89Типовой проект 414-1-42.89Типовой проект 414-1-42.89Типовой проект 414-1-42.89Типовой проект 414-1-42.89Типовой проект 414-1-42.89Типовой проект 414-1-42.89Типовой проект 414-1-42.89

© 2013 Ёшкин Кот :-) Карта сайта