Информационная система
«Ёшкин Кот»

Скачать базу одним архивом
Скачать обновления
История создания базы
Карта сайта

Скачать Серия ТДК-Н-1-70 Часть II Раздел IV. Альбом 6. Защитно-герметические металлические откатные двери для проемов размерами 300х240 и 180х240 в сооружениях гражданской обороны. Защитно-герметическая металлическая откатная дверь ДУ-I-6

Дата актуализации: 10.08.2017

Серия ТДК-Н-1-70 Часть II

Раздел IV. Альбом 6. Защитно-герметические металлические откатные двери для проемов размерами 300х240 и 180х240 в сооружениях гражданской обороны. Защитно-герметическая металлическая откатная дверь ДУ-I-6

Обозначение: Серия ТДК-Н-1-70 Часть II
Обозначение англ: Series ТДК-Н-1-70 Часть II
Статус:не действует
Название рус.:Раздел IV. Альбом 6. Защитно-герметические металлические откатные двери для проемов размерами 300х240 и 180х240 в сооружениях гражданской обороны. Защитно-герметическая металлическая откатная дверь ДУ-I-6
Дата добавления в базу:01.09.2013
Дата актуализации:05.05.2017
Оглавление:ТДК-Н-1-70-Д6-6-1 Содержание альбома № 6
ТДК-Н-1-70-Д6-6-2 Заглавный лист
ТДК-Н-1-70-Д6-6-3 Пояснительная записка и технические условия
ТДК-Н-1-70-Д6-6-4 Дверь ДУ-1-6. Общий вид. Лист 1. ДУ-Т-6-00.00.000
ТДК-Н-1-70-Д6-6-5 Дверь ДУ-1-6. Общий вид. Лист 2. ДУ-Т-6-00.00.000
ТДК-Н-1-70-Д6-6-6 Дверь ДУ-1-6. Общий вид. Лист 3. ДУ-Т-6-00.00.000
ТДК-Н-1-70-Д6-6-7 Дверь ДУ-1-6. Общий вид. Лист 4. ДУ-Т-6-00.00.000
ТДК-Н-1-70-Д6-6-8 Полотно в сборе. Лист 1. ДУ-Т-6-00.00.000
ТДК-Н-1-70-Д6-6-9 Полотно в сборе. Лист 2. ДУ-Т-6-00.00.000
ТДК-Н-1-70-Д6-6-10 Механизм задраивания. Лист 1. ДУ-1-6-01.10.000
ТДК-Н-1-70-Д6-6-11 Механизм задраивания. Лист 2. ДУ-1-6-01.10.000
ТДК-Н-1-70-Д6-6-12 Механизм задраивания. Лист 3. ДУ-1-6-01.10.000
ТДК-Н-1-70-Д6-6-13 Редуктор. Общий вид. ДУ-1-6-01.11.000
ТДК-Н-1-70-Д6-6-14 Корпус. ДУ-1-6-01.11.002
ТДК-Н-1-70-Д6-6-15 Детали: ДУ-1-6-01.11.000;ДУ-1-6-01.11.005;ДУ-1-6-01.11.001;ДУ-1-6-01.11.003
ТДК-Н-1-70-Д6-6-16 Детали: ДУ-1-6-01.11.006;ДУ-1-6-01.11.007;ДУ-1-6-01.11.004
ТДК-Н-1-70-Д6-6-17 Тяга. ДУ-1-6-01.10.100; Шатун ДУ-1-6-01.10.400; Детали: ДУ-1-6-01.10.401;ДУ-1-6-01.10.402;ДУ-1-6-01.10.101
ТДК-Н-1-70-Д6-6-18 Детали: ДУ-1-6-01.10.001;ДУ-1-6-01.10.004;ДУ-1-6-01.10.005;ДУ-1-6-01.10.006;ДУ-1-6-01.10.003
ТДК-Н-1-70-Д6-6-19 Детали: ДУ-1-6-01.10.013;ДУ-1-6-01.10.015;ДУ-1-6-01.10.019;ДУ-1-6-01.10.020;ДУ-1-6-01.50.000;ДУ-1-6-01.10.022
ТДК-Н-1-70-Д6-6-20 Рычаг ДУ-1-6-01.10.300; Детали ДУ-1-6-01.10.301;ДУ-1-6-01.10.002;ДУ-1-6-01.10.012
ТДК-Н-1-70-Д6-6-21 Детали ДУ-1-6-01.10.007;ДУ-1-6-01.10.009;ДУ-1-6-01.10.010;ДУ-1-6-01.10.011;ДУ-1-6-01.00.001
ТДК-Н-1-70-Д6-6-22 Траверса ДУ-1-6-01.10.200; Детали; ДУ-1-6-01.10.201;ДУ-1-6-01.10.202;ДУ-1-6-01.10.008
ТДК-Н-1-70-Д6-6-23 Детали ДУ-1-6-01.10.016;ДУ-1-6-01.10.017;ДУ-1-6-01.10.018;ДУ-1-6-01.00.002;ДУ-1-6-01.00.003;ДУ-1-6-01.10.014;ДУ-1-6-01.10.021
ТДК-Н-1-70-Д6-6-24 Блокировочное устройство. Лист 1. ДУ-1-6-01.20.000
ТДК-Н-1-70-Д6-6-25 Блокировочное устройство. Лист 2. ДУ-1-6-01.20.000
ТДК-Н-1-70-Д6-6-26 Скоба ДУ-1-6-01-21.000; Детали: ДУ-1-6-01.20.001;ДУ-1-6-01.20.002
ТДК-Н-1-70-Д6-6-27 Замок электромагнитный в сборе ДУ-1-6-01.22.000 Детали: ДУ-1-6-01.22.001;ДУ-1-6-01.22.002
ТДК-Н-1-70-Д6-6-28 Основание Ду-1-6-01.22.200; Ключ в сборе ДУ-1-6-01.22.100; Детали ДУ-1-6-01.22.101;ДУ-1-6-01.22.003;ДУ-1-6-01.22.005
ТДК-Н-1-70-Д6-6-29 Опора ДУ-1-6-01.22.400; Детали: ДУ-1-6-01.22.401;ДУ-1-6-01.22.402;ДУ-1-6-01.20.003;ДУ-1-6-01.20.004
ТДК-Н-1-70-Д6-6-30 Шток в сборе ДУ-1-6-01.22.300; Валик в сборе ДУ-1-6-01.20.500; Детали: ДУ-1-6-01.22.301;ДУ-1-6-01.22.302;ДУ-1-6-01.22.303;ДУ-1-6-01.22.501;ДУ-1-6-01.22.502
ТДК-Н-1-70-Д6-6-31 Замок в сборе ДУ-1-6-01.23.000; Корпус ДУ-1-6-01.23.100
ТДК-Н-1-70-Д6-6-32 Шток ДУ-1-6-01.23.301; Детали: ДУ-1-6-01.23.001;ДУ-1-6-01.23.002;ДУ-1-6.01.23.003;ДУ-1-6-01.23.004;ДУ-1-1-6-01.23.005;ДУ-1-6-01.23.201;ДУ-1-6-01.23.202
ТДК-Н-1-70-Д6-6-33 Полотно. Лист 1. ДУ-1-6-01.30.000
ТДК-Н-1-70-Д6-6-34 Полотно. Лист 2. ДУ-1-6-01.30.000
ТДК-Н-1-70-Д6-6-35 Полотно. Лист 3. ДУ-1-6-01.30.000
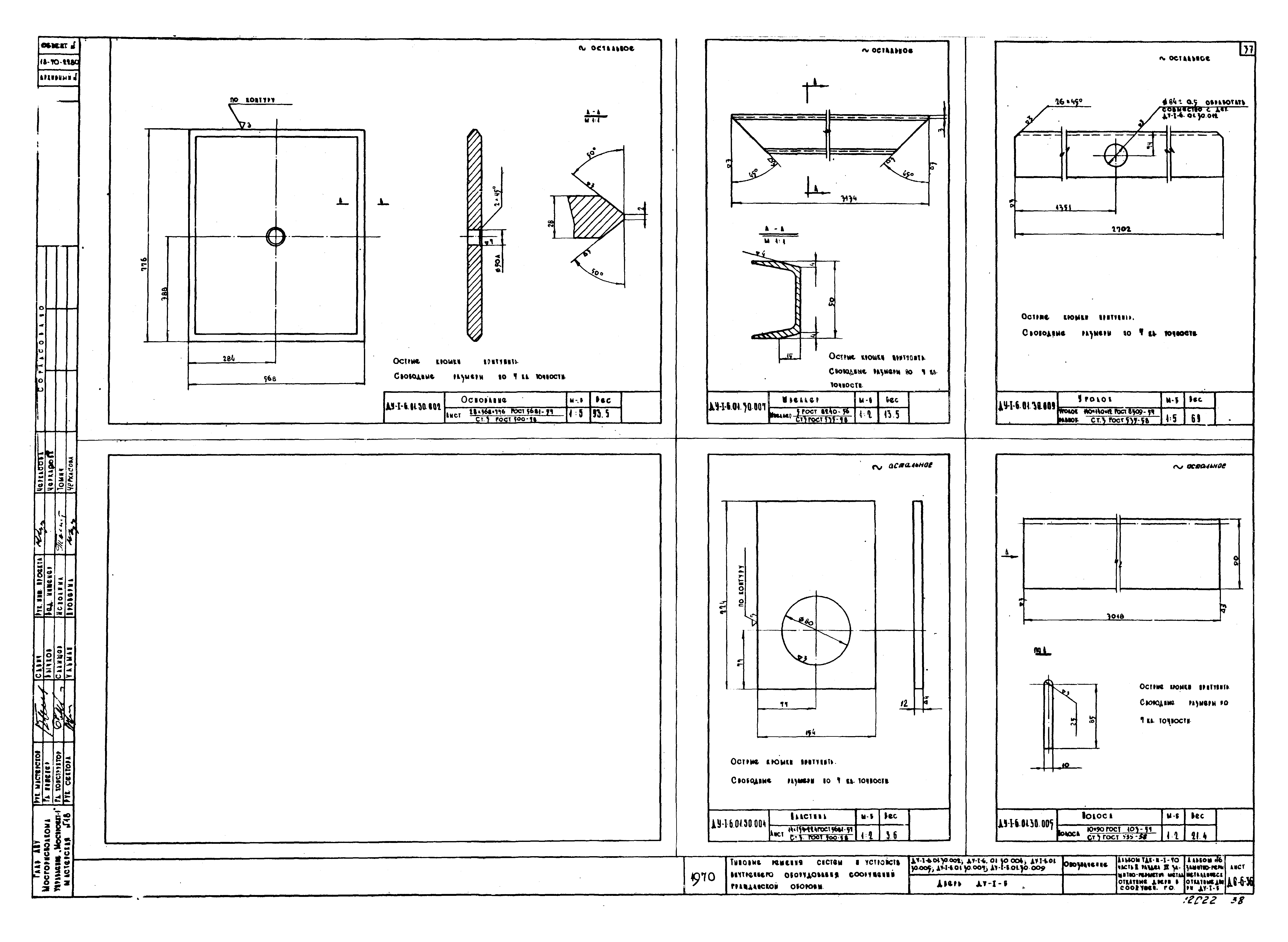
ТДК-Н-1-70-Д6-6-36 Детали: ДУ-1-6-01.30.002;ДУ-1-6-01.30.004;ДУ-1-6-01.30.005;ДУ-1-6-01.30.007;ДУ-1-6-01.30.009
ТДК-Н-1-70-Д6-6-37 Детали: ДУ-1-6-01.30.003;ДУ-1-6-01.30.006;ДУ-1-6-01.30.008;ДУ-1-6-01.30.010;ДУ-1-6-01.30.012;ДУ-1-6-01.30.017
ТДК-Н-1-70-Д6-6-38 Детали: ДУ-1-6-01.30.101;ДУ-1-6-01.30.18;ДУ-1-6-01.10.102;ДУ-1-6-07.00.001;ДУ-1-6-01.40.004;ДУ-1-6-01.50.001;ДУ-1-6-01.30.019
ТДК-Н-1-70-Д6-6-39 Пластины: ДУ-1-6-01.30.100;ДУ-1-6-01.30.800; Детали: ДУ-1-6-01.30.013;ДУ-1-6-01.30.014;ДУ-1-6-01.30.015;ДУ-1-6-01.30.016
ТДК-Н-1-70-Д6-6-40 Штурвал ДУ-1-6-01.40.000; Детали: ДУ-1-6-01.40.001;ДУ-1-6-01.40.002;ДУ-1-6-01.40.003;ДУ-1-6-01.10.023
ТДК-Н-1-70-Д6-6-41 Ходовая тележка ДУ-1-6-02.00.000
ТДК-Н-1-70-Д6-6-42 Кронштейны: ДУ-1-6-02.01.000;ДУ-1-6-02.02.000
ТДК-Н-1-70-Д6-6-43 Детали: ДУ-1-6-02.00.001;ДУ-1-6-02.00.002;ДУ-1-6-02.00.00.003;ДУ-1-6-02.00.004;ДУ-1-6-02.00.005
ТДК-Н-1-70-Д6-6-44 Серьга ДУ-1-6-02.03.000; Кронштейн ДУ-1-6-02.04.000; Детали: ДУ-1-6-02.03.001;ДУ-1-6-02.03.002;ДУ-1-6-02.04.001;ДУ-1-6-02.00.008
ТДК-Н-1-70-Д6-6-45 Детали: ДУ-1-6-02.01.001;ДУ-1-6-02.01.002;ДУ-1-6-02.01.003;ДУ-1-6-02.01.004;ДУ-1-6-02.02.001
ТДК-Н-1-70-Д6-6-46 Привод. Лист 1. ДУ-1-6-03.00.000
ТДК-Н-1-70-Д6-6-47 Привод. Лист 2. ДУ-1-6-03.00.000
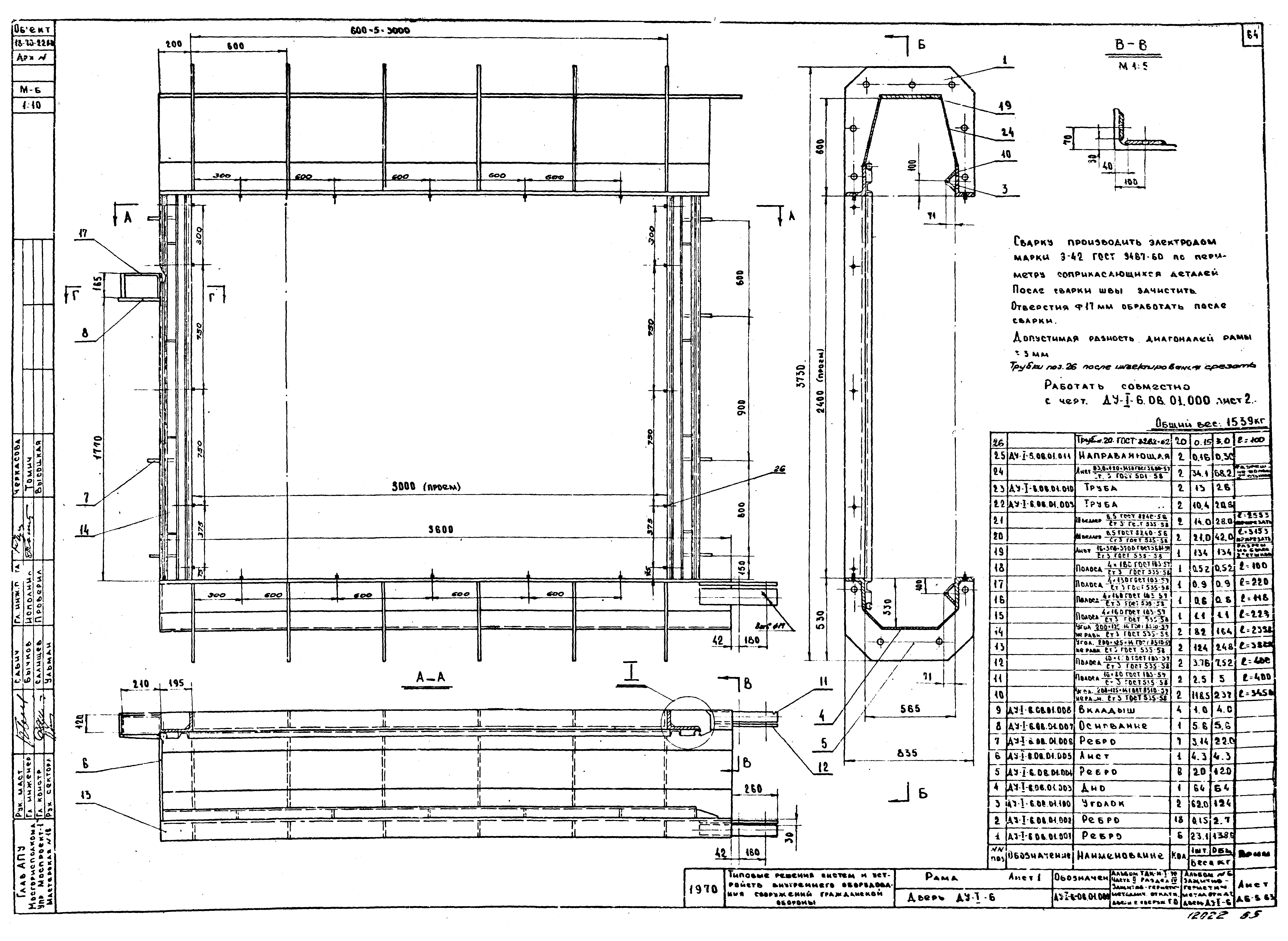
ТДК-Н-1-70-Д6-6-48 Рама ДУ-1-6-03.01.000
ТДК-Н-1-70-Д6-6-49 Детали: ДУ-1-6-03.01.001;ДУ-1-6-03.01.003;ДУ-1-6-03.01.004;ДУ-1-6-03.05.003
ТДК-Н-1-70-Д6-6-50 Барабан ДУ-1-6-03.02.000
ТДК-Н-1-70-Д6-6-51 Детали: ДУ-1-6-03.02.001;ДУ-1-6-03.02.002;ДУ-1-6-03.02.003;ДУ-1-6-03.02.004;ДУ-1-6-03.00.005;ДУ-1-6-03.00.010;ДУ-1-6-03.00.003;ДУ-1-6-03.02.003
ТДК-Н-1-70-Д6-6-52 Детали: ДУ-1-6-03.04.001;ДУ-1-6-03.03.001;ДУ-1-6-03.03.002;ДУ-1-6-03.03.003; Узлы: ДУ-1-6-03.03.000;ДУ-1-6-03.04.000
ТДК-Н-1-70-Д6-6-53 Узел ДУ-1-6-03.05.000; Детали: ДУ-1-6-03.00.002;ДУ-1-6-03.05.001;ДУ-1-6-03.05.002
ТДК-Н-1-70-Д6-6-54 Детали: ДУ-1-6-04.01.004;ДУ-1-6-04.01.002;ДУ-1-6-04.01.001;ДУ-1-6-04.01.003
ТДК-Н-1-70-Д6-6-55 Детали: ДУ-1-6-03.00.006;ДУ-1-6-03.00.110;ДУ-1-6-03.00.009;ДУ-1-6-03.01.002;ДУ-1-6-05.00.007;ДУ-1-6-03.00.004
ТДК-Н-1-70-Д6-6-56 Блоки отводные ДУ-1-6-04.00.000
ТДК-Н-1-70-Д6-6-57 Кронштейн ДУ-1-6-04.01.000;ДУ-1-6-05.01.000
ТДК-Н-1-70-Д6-6-58 Детали: ДУ-1-6-04.00.001;ДУ-1-6-04.00.008;ДУ-1-6-04.00.003;ДУ-1-6-04.00.007;ДУ-1-6-04.00.008
ТДК-Н-1-70-Д6-6-59 Детали: ДУ-1-6-04.00.002;ДУ-1-6-04.00.005;ДУ-1-6-04.00.004;ДУ-1-6-04.02.001;ДУ-1-6-04.02.000;ДУ-1-6-04.02.002
ТДК-Н-1-70-Д6-6-60 Блок ДУ-1-6-05.00.000
ТДК-Н-1-70-Д6-6-61 Детали: ДУ-1-6-05.02.000;ДУ-1-6-05.02.001;ДУ-1-6-05.02.002;ДУ-1-6-05.00.004;ДУ-1-6-05.00.001
ТДК-Н-1-70-Д6-6-62 Рама в сборе ДУ-1-6-06.00.000
ТДК-Н-1-70-Д6-6-63 Рама ДУ-1-6-06.01.000. Лист 1
ТДК-Н-1-70-Д6-6-64 Рама ДУ-1-6-06.01.000. Лист 2
ТДК-Н-1-70-Д6-6-65 Монорельс 1 ДУ-1-6-06.00.200. Монорельс 2 ДУ-1-6-06.00.300. Приямок ДУ-1-6-06.00.400
ТДК-Н-1-70-Д6-6-66 Крышка ДУ-1-6-06.00.500. Крышка ДУ-1-6-06.00.600
ТДК-Н-1-70-Д6-6-67 Детали: ДУ-1-6-00.00.001;ДУ-1-6-00.00.002;ДУ-1-6-06.00.505;ДУ-1-6-06.00.506;ДУ-1-6-06.00.502;ДУ-1-6-06.00.505;ДУ-1-6-06.00.504;ДУ-1-6-06.00.501
ТДК-Н-1-70-Д6-6-68 Сигнализационное устройство ДУ-1-6-07.00.000
ТДК-Н-1-70-Д6-6-69 Уголок ДУ-1-6-06.01.100; Детали ДУ-1-6-06.01.101;ДУ-1-6-06.01.102;ДУ-1-6-06.01.103;ДУ-1-6-06.01.002
ТДК-Н-1-70-Д6-6-70 Детали ДУ-1-6-06.01.007;ДУ-1-6-06.01.008;ДУ-1-6-06.01.009;ДУ-1-6-06.01.010;ДУ-1-6-06.01.010;ДУ-1-6-06.00.401
ТДК-Н-1-70-Д6-6-71 Детали ДУ-1-6-06.01.001;ДУ-1-6-06.01.003;ДУ-1-6-06.01.004;ДУ-1-6-06.01.005;ДУ-1-6-06.01.006
ТДК-Н-1-70-Д6-6-72 Детали ДУ-1-6-07.00.002;ДУ-1-6-01.30.011;ДУ-1-6-01.30.020;ДУ-1-6-01.30.021;ДУ-1-6-00.00.003
Разработан: Моспроект-1
Утверждён:07.12.1971 Моспроект-1 (274-р)
Издан: ЦИТП Госстроя СССР (CITP, Gosstroy (USSR) 1975 г. )
Расположен в:Техническая документация Строительство Справочные документы Типовые строительные конструкции, изделия и узлы Общероссийский строительный каталог Защитные сооружения гражданской обороны Конструкции и инженерное оборудование Инженерное оборудование
Серия ТДК-Н-1-70 Часть IIСерия ТДК-Н-1-70 Часть IIСерия ТДК-Н-1-70 Часть IIСерия ТДК-Н-1-70 Часть IIСерия ТДК-Н-1-70 Часть IIСерия ТДК-Н-1-70 Часть IIСерия ТДК-Н-1-70 Часть IIСерия ТДК-Н-1-70 Часть IIСерия ТДК-Н-1-70 Часть IIСерия ТДК-Н-1-70 Часть IIСерия ТДК-Н-1-70 Часть IIСерия ТДК-Н-1-70 Часть IIСерия ТДК-Н-1-70 Часть IIСерия ТДК-Н-1-70 Часть IIСерия ТДК-Н-1-70 Часть IIСерия ТДК-Н-1-70 Часть IIСерия ТДК-Н-1-70 Часть IIСерия ТДК-Н-1-70 Часть IIСерия ТДК-Н-1-70 Часть IIСерия ТДК-Н-1-70 Часть IIСерия ТДК-Н-1-70 Часть IIСерия ТДК-Н-1-70 Часть IIСерия ТДК-Н-1-70 Часть IIСерия ТДК-Н-1-70 Часть IIСерия ТДК-Н-1-70 Часть IIСерия ТДК-Н-1-70 Часть IIСерия ТДК-Н-1-70 Часть IIСерия ТДК-Н-1-70 Часть IIСерия ТДК-Н-1-70 Часть IIСерия ТДК-Н-1-70 Часть IIСерия ТДК-Н-1-70 Часть IIСерия ТДК-Н-1-70 Часть IIСерия ТДК-Н-1-70 Часть IIСерия ТДК-Н-1-70 Часть IIСерия ТДК-Н-1-70 Часть IIСерия ТДК-Н-1-70 Часть IIСерия ТДК-Н-1-70 Часть IIСерия ТДК-Н-1-70 Часть IIСерия ТДК-Н-1-70 Часть IIСерия ТДК-Н-1-70 Часть IIСерия ТДК-Н-1-70 Часть IIСерия ТДК-Н-1-70 Часть IIСерия ТДК-Н-1-70 Часть IIСерия ТДК-Н-1-70 Часть IIСерия ТДК-Н-1-70 Часть IIСерия ТДК-Н-1-70 Часть IIСерия ТДК-Н-1-70 Часть IIСерия ТДК-Н-1-70 Часть IIСерия ТДК-Н-1-70 Часть IIСерия ТДК-Н-1-70 Часть IIСерия ТДК-Н-1-70 Часть IIСерия ТДК-Н-1-70 Часть IIСерия ТДК-Н-1-70 Часть IIСерия ТДК-Н-1-70 Часть IIСерия ТДК-Н-1-70 Часть IIСерия ТДК-Н-1-70 Часть IIСерия ТДК-Н-1-70 Часть IIСерия ТДК-Н-1-70 Часть IIСерия ТДК-Н-1-70 Часть IIСерия ТДК-Н-1-70 Часть IIСерия ТДК-Н-1-70 Часть IIСерия ТДК-Н-1-70 Часть IIСерия ТДК-Н-1-70 Часть IIСерия ТДК-Н-1-70 Часть IIСерия ТДК-Н-1-70 Часть IIСерия ТДК-Н-1-70 Часть IIСерия ТДК-Н-1-70 Часть IIСерия ТДК-Н-1-70 Часть IIСерия ТДК-Н-1-70 Часть IIСерия ТДК-Н-1-70 Часть IIСерия ТДК-Н-1-70 Часть IIСерия ТДК-Н-1-70 Часть IIСерия ТДК-Н-1-70 Часть IIСерия ТДК-Н-1-70 Часть IIСерия ТДК-Н-1-70 Часть II

© 2013 Ёшкин Кот :-) Карта сайта