Информационная система
«Ёшкин Кот»

Скачать базу одним архивом
Скачать обновления
История создания базы
Карта сайта

Скачать Типовой проект 902-2-365.83 Альбом IX. Нестандартизированное оборудование. Устройство для удаления плавающих веществ (из ТП 902-2-363.83)

Дата актуализации: 10.08.2017

Типовой проект 902-2-365.83

Альбом IX. Нестандартизированное оборудование. Устройство для удаления плавающих веществ (из ТП 902-2-363.83)

Обозначение: Типовой проект 902-2-365.83
Обозначение англ: 902-2-365.83
Статус:не действует
Название рус.:Альбом IX. Нестандартизированное оборудование. Устройство для удаления плавающих веществ (из ТП 902-2-363.83)
Дата добавления в базу:01.09.2013
Дата актуализации:05.05.2017
Оглавление:ТП 902-2-363.83 Титульный лист
ТП 902-2-363.83 Содержание альбома. Лист 1
ТП 902-2-363.83 Содержание альбома. Лист 2
ТП 902-2-363.83 4И.439.00.001 Ограничитель
ТП 902-2-363.83 4И.439.00.000 ВП Устройство для удаления плавающих веществ УПВ-24. Ведомость покупных изделий
ТП 902-2-363.83 4И.439.00.000 Устройство для удаления плавающих веществ УПВ-24. Спецификация. Лист 1-2
ТП 902-2-363.83 4И.439.00.000 Устройство для удаления плавающих веществ УПВ-24. Спецификация. Лист 3-5
ТП 902-2-363.83 4И.439.00.007 Сухарь
ТП 902-2-363.83 4И.439.00.000 СБ Устройство для удаления плавающих веществ УПВ-24. Лист 1
ТП 902-2-363.83 4И.439.00.000 СБ Устройство для удаления плавающих веществ УПВ-24. Лист 2
ТП 902-2-363.83 4И.439.00.000 СБ Устройство для удаления плавающих веществ УПВ-24. Лист 3
ТП 902-2-363.83 4И.439.00.000 СБ Устройство для удаления плавающих веществ УПВ-24. Лист 4
ТП 902-2-363.83 4И.439.00.000 СБ Устройство для удаления плавающих веществ УПВ-24. Лист 5
ТП 902-2-363.83 4И.439.00.000 СБ Устройство для удаления плавающих веществ УПВ-24. Лист 6
ТП 902-2-363.83 4И.439.00.000 СБ Устройство для удаления плавающих веществ УПВ-24. Лист 7
ТП 902-2-363.83 4И.439.01.000 СБ Кронштейн
ТП 902-2-363.83 4И.439.01.000 Кронштейн. Спецификация
ТП 902-2-363.83 4И.439.01.100 Раструб. Спецификация
ТП 902-2-363.83 4И.439.01.100 СБ Раструб
ТП 902-2-363.83 4И.439.01.101 Фланец
ТП 902-2-363.83 4И.439.01.102 Кольцо
ТП 902-2-363.83 4И.439.01.001 Пластина
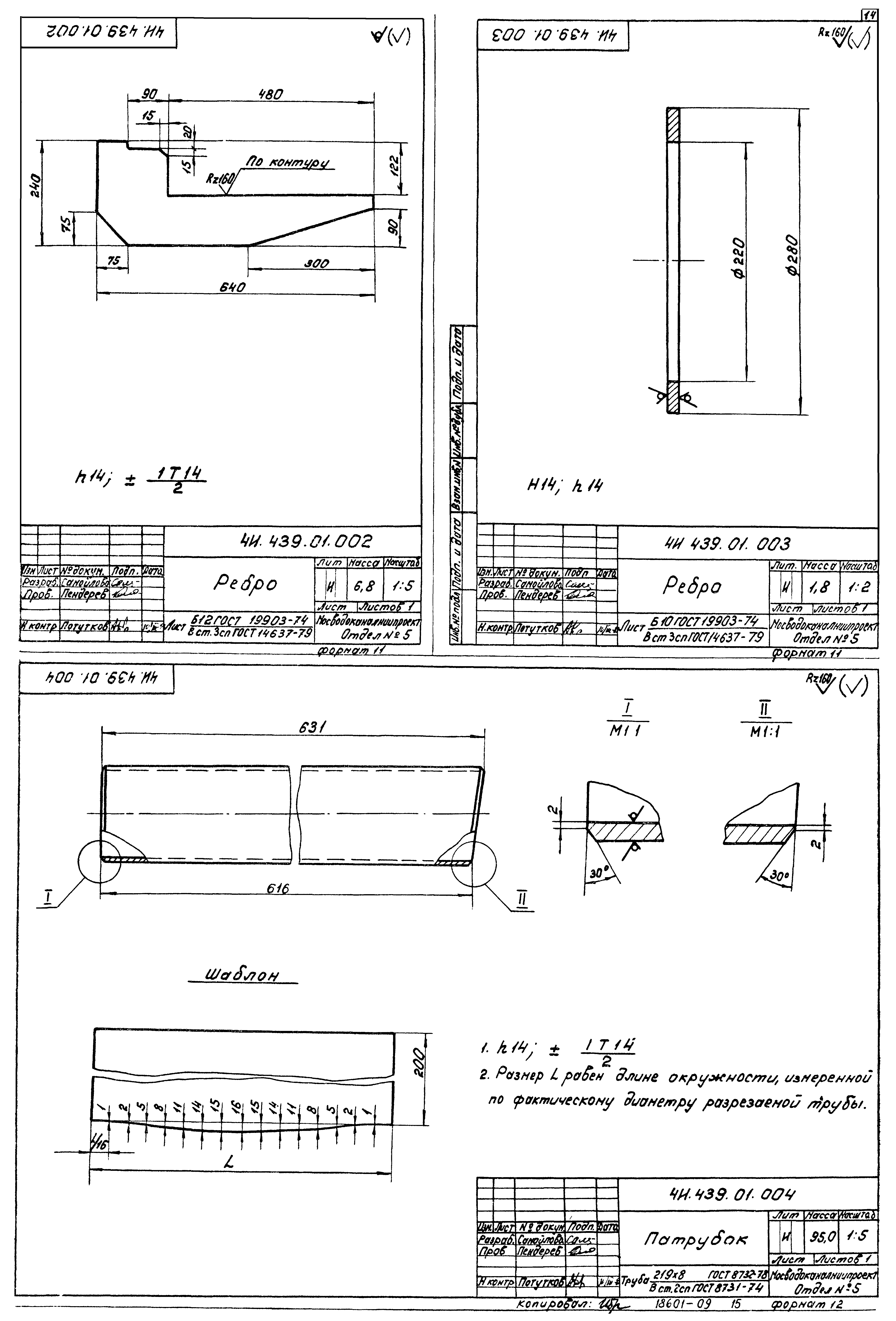
ТП 902-2-363.83 4И.439.01.002 Ребро
ТП 902-2-363.83 4И.439.01.003 Ребро
ТП 902-2-363.83 4И.439.01.004 Патрубок
ТП 902-2-363.83 4И.439.01.005 Патрубок
ТП 902-2-363.83 4И.439.02.000 Отвод. Спецификация
ТП 902-2-363.83 4И.439.02.000 СБ Отвод
ТП 902-2-363.83 4И.439.02.100 Полусекция
ТП 902-2-363.83 4И.439.02.101 Втулка
ТП 902-2-363.83 4И.439.02.102 Полусекция
ТП 902-2-363.83 4И.439.02.001 Секция
ТП 902-2-363.83 4И.439.02.002 Полусекция
ТП 902-2-363.83 4И.439.03.000 СБ Бункер. Лист 1
ТП 902-2-363.83 4И.439.03.000 СБ Бункер. Лист 2
ТП 902-2-363.83 4И.439.03.000 Бункер. Спецификация. Лист 1-2
ТП 902-2-363.83 4И.439.03.001 Переход косой
ТП 902-2-363.83 4И.439.03.002 Лист направляющий
ТП 902-2-363.83 4И.439.03.003 Лист направляющий
ТП 902-2-363.83 4И.439.03.004 Окантовка
ТП 902-2-363.83 4И.439.03.005 Патрубок
ТП 902-2-363.83 4И.439.03.006 Стенка боковая
ТП 902-2-363.83 4И.439.03.007 Угольник
ТП 902-2-363.83 4И.439.03.008 Ушко
ТП 902-2-363.83 4И.439.04.000 Вилка. Спецификация
ТП 902-2-363.83 4И.439.04.001 Основание
ТП 902-2-363.83 4И.439.04.000 СБ Вилка
ТП 902-2-363.83 4И.439.04.002 Полоса гнутая
ТП 902-2-363.83 4И.439.05.000 Подвеска. Спецификация
ТП 902-2-363.83 4И.439.05.000 СБ Подвеска
ТП 902-2-363.83 4И.439.05.001 Ушко
ТП 902-2-363.83 4И.439.06.001 Подвеска
ТП 902-2-363.83 4И.439.06.000 Скребок полупогруженный. Спецификация. Лист 1-2
ТП 902-2-363.83 4И.439.06.000 СБ Скребок полупогруженный. Спецификация
ТП 902-2-363.83 4И.439.06.002 Полоса
ТП 902-2-363.83 4И.439.06.003 Полоса
ТП 902-2-363.83 4И.439.06.004 Фартук
ТП 902-2-363.83 4И.439.06.005 Угольник
ТП 902-2-363.83 4И.439.07.000 Рычаг. Спецификация
ТП 902-2-363.83 4И.439.07.001 Угольник
ТП 902-2-363.83 4И.439.07.000 СБ Рычаг
ТП 902-2-363.83 4И.439.07.002 Ушко
ТП 902-2-363.83 4И.439.07.003 Накладка
ТП 902-2-363.83 4И.439.08.000 Штанга. Спецификация
ТП 902-2-363.83 4И.439.08.001 Гайка ходовая
ТП 902-2-363.83 4И.439.08.000 СБ Штанга
ТП 902-2-363.83 4И.439.08.002 Шпиндель
ТП 902-2-363.83 4И.439.08.003 Ушко
ТП 902-2-363.83 4И.439.09.000 Ось
ТП 902-2-363.83 4И.439.09.001 Пруток
ТП 902-2-363.83 4И.439.10.000 Кулачок. Спецификация
ТП 902-2-363.83 4И.439.10.000 СБ Кулачок
ТП 902-2-363.83 4И.439.10.001 Пластина
ТП 902-2-363.83 4И.439.11.000 Поплавок. Спецификация
ТП 902-2-363.83 4И.439.11.001 Валик
ТП 902-2-363.83 4И.439.11.000 СБ Поплавок
ТП 902-2-363.83 4И.439.11.002 Стенка торцевая
ТП 902-2-363.83 4И.439.11.003 Бобышка
ТП 902-2-363.83 4И.439.11.004 Стенка продольная
ТП 902-2-363.83 4И.439.12.000 СБ Скребок качающийся
ТП 902-2-363.83 4И.439.12.000 Скребок качающийся. Спецификация
ТП 902-2-363.83 4И.439.12.001 Лист верхний
ТП 902-2-363.83 4И.439.12.002 Угольник
ТП 902-2-363.83 4И.439.12.003 Фартук
ТП 902-2-363.83 4И.439.12.004 Стенка вертикальная
ТП 902-2-363.83 4И.439.12.005 Пластина
ТП 902-2-363.83 4И.439.13.000 Перегородка. Спецификация
ТП 902-2-363.83 4И.439.13.000 СБ Перегородка
ТП 902-2-363.83 4И.439.13.001 Лист
ТП 902-2-363.83 4И.439.13.002 Угольник
ТП 902-2-363.83 4И.439.14.000 Кронштейн. Спецификация
ТП 902-2-363.83 4И.439.14.000 СБ Кронштейн
ТП 902-2-363.83 4И.439.14.001 Основание
ТП 902-2-363.83 4И.439.14.002 Щека
ТП 902-2-363.83 4И.439.00.003 Пластина гнутая
ТП 902-2-363.83 4И.439.00.004 Палец
ТП 902-2-363.83 4И.439.00.005 Кольцо установочное
ТП 902-2-363.83 4И.439.00.006 Крючок
ТП 902-2-363.83 4И.439.00.007 Петля
ТП 902-2-363.83 4И.439.00.008 Ушко
ТП 902-2-363.83 4И.439.00.009 Фланец накидной
ТП 902-2-363.83 4И.439.00.011 Прокладка
ТП 902-2-363.83 4И.439.00.011-01 Прокладка
ТП 902-2-363.83 4И.439.00.012 Ось
ТП 902-2-363.83 4И.439.00.012-01 Ось
ТП 902-2-363.83 4И.439.00.012-02 Ось
ТП 902-2-363.83 4И.439.00.013 Противовес
ТП 902-2-363.83 4И.439.00.014 Ушко
Разработан: МосводоканалНИИпроект
Утверждён:14.12.1982 МосводоканалНИИпроект (214)
Расположен в:Техническая документация Строительство Справочные документы Типовые строительные конструкции, изделия и узлы Общероссийский строительный каталог Промышленные предприятия, здания и сооружения Здания и сооружения санитарно-технические Канализация Сооружения механической очистки Отстойники Отстойники радиальные первичные
Типовой проект 902-2-365.83Типовой проект 902-2-365.83Типовой проект 902-2-365.83Типовой проект 902-2-365.83Типовой проект 902-2-365.83Типовой проект 902-2-365.83Типовой проект 902-2-365.83Типовой проект 902-2-365.83Типовой проект 902-2-365.83Типовой проект 902-2-365.83Типовой проект 902-2-365.83Типовой проект 902-2-365.83Типовой проект 902-2-365.83Типовой проект 902-2-365.83Типовой проект 902-2-365.83Типовой проект 902-2-365.83Типовой проект 902-2-365.83Типовой проект 902-2-365.83Типовой проект 902-2-365.83Типовой проект 902-2-365.83Типовой проект 902-2-365.83Типовой проект 902-2-365.83Типовой проект 902-2-365.83Типовой проект 902-2-365.83Типовой проект 902-2-365.83Типовой проект 902-2-365.83Типовой проект 902-2-365.83Типовой проект 902-2-365.83Типовой проект 902-2-365.83Типовой проект 902-2-365.83Типовой проект 902-2-365.83Типовой проект 902-2-365.83Типовой проект 902-2-365.83Типовой проект 902-2-365.83Типовой проект 902-2-365.83Типовой проект 902-2-365.83Типовой проект 902-2-365.83Типовой проект 902-2-365.83Типовой проект 902-2-365.83Типовой проект 902-2-365.83Типовой проект 902-2-365.83Типовой проект 902-2-365.83Типовой проект 902-2-365.83Типовой проект 902-2-365.83

© 2013 Ёшкин Кот :-) Карта сайта