Информационная система
«Ёшкин Кот»

Скачать базу одним архивом
Скачать обновления
История создания базы
Карта сайта

Скачать Типовой проект 0901-9-23.87 Альбом I. Общая пояснительная записка. Технологическая часть. Архитектурно-строительная часть. Вентиляция

Дата актуализации: 10.08.2017

Типовой проект 0901-9-23.87

Альбом I. Общая пояснительная записка. Технологическая часть. Архитектурно-строительная часть. Вентиляция

Обозначение: Типовой проект 0901-9-23.87
Обозначение англ: 0901-9-23.87
Статус:не определен законодательством
Название рус.:Альбом I. Общая пояснительная записка. Технологическая часть. Архитектурно-строительная часть. Вентиляция
Дата добавления в базу:01.09.2013
Дата актуализации:05.05.2017
Дата введения:16.10.1987
Оглавление:ТП 0901-9-23.87 Содержание альбома
ТП 0901-9-23.87-ПЗ1-ПЗ6 Общая пояснительная записка
ТП 0901-9-23.87-ТХ Технологическая часть
ТП 0901-9-23.87-ТХ-1 Общие данные
ТП 0901-9-23.87-ТХ-2 ФП1,ФП1М. План на отметке 0.000. Разрезы 1-1,2-2. Схема
ТП 0901-9-23.87-ТХ-3 ФП2Б,ФП2К,ФП3Б,ФП3К. План на отм. 0.000. Разрезы 1-1,2-2. Схема
ТП 0901-9-23.87-АС Архитектурно-строительная часть
ТП 0901-9-23.87-АС-1 Общие данные
ТП 0901-9-23.87-АС-2 План на отм. 0.000. Разрезы 1-1÷3-3
ТП 0901-9-23.87-АС-3 Схема расположения стеновых блоков на отм. 0.000. Раскладка блоков по осям 1,2,А,Б. Схемы расположения плит покрытия
ТП 0901-9-23.87-АС-4 Монолитный пояс МП-1
ТП 0901-9-23.87-АС-5 Узлы 1-6
ТП 0901-9-23.87-АС-6 Фильтры-поглотители ФП1,ФП1М
ТП 0901-9-23.87-АС-7 Фильтры-поглотители ФП2Б,ФП2К
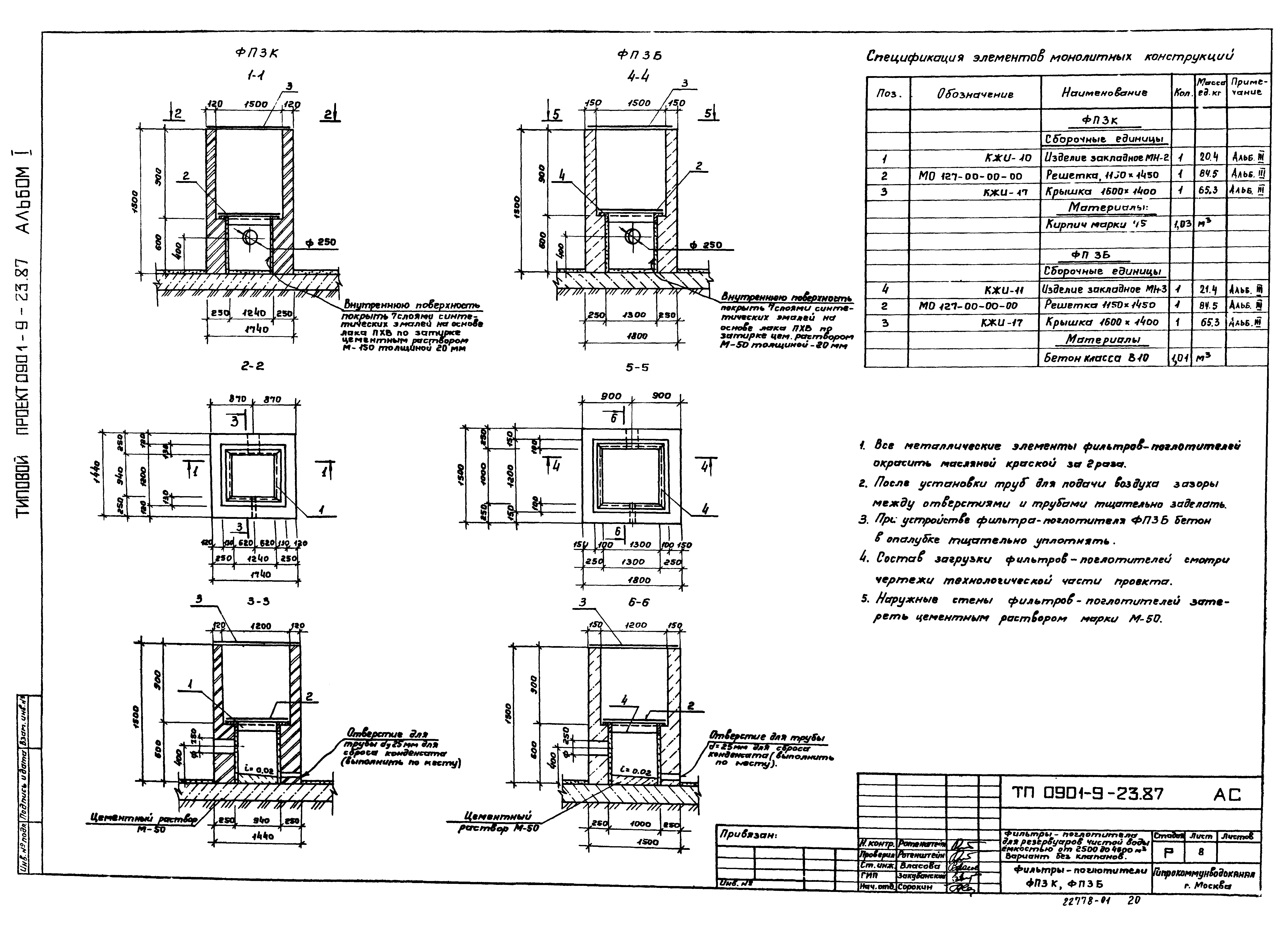
ТП 0901-9-23.87-АС-8 Фильтры-поглотители ФП3Б,ФП3К
ТП 0901-9-23.87-ОВ Вентиляция
ТП 0901-9-23.87-ОВ-1 Общие данные
ТП 0901-9-23.87-ОВ-2 План на отм. 0.000. Разрез 1-1. Схема системы В1
ТП 0901-9-23.87-ОВН1 Ограждение отверстия входного патрубка центробежного вентилятора
Разработан: Гипрокоммунводоканал Минжилкомхоза РСФСР
Утверждён:16.10.1987 Минжилкомхоз РСФСР (Russian Federation Minzhilkomkhoz 12-ТД)
Расположен в:Техническая документация Строительство Справочные документы Типовые строительные конструкции, изделия и узлы Общероссийский строительный каталог Защитные сооружения гражданской обороны Конструкции и инженерное оборудование Фильтры-поглотители
Типовой проект 0901-9-23.87Типовой проект 0901-9-23.87Типовой проект 0901-9-23.87Типовой проект 0901-9-23.87Типовой проект 0901-9-23.87Типовой проект 0901-9-23.87Типовой проект 0901-9-23.87Типовой проект 0901-9-23.87Типовой проект 0901-9-23.87Типовой проект 0901-9-23.87Типовой проект 0901-9-23.87Типовой проект 0901-9-23.87Типовой проект 0901-9-23.87Типовой проект 0901-9-23.87Типовой проект 0901-9-23.87Типовой проект 0901-9-23.87Типовой проект 0901-9-23.87Типовой проект 0901-9-23.87Типовой проект 0901-9-23.87Типовой проект 0901-9-23.87Типовой проект 0901-9-23.87Типовой проект 0901-9-23.87Типовой проект 0901-9-23.87Типовой проект 0901-9-23.87

© 2013 Ёшкин Кот :-) Карта сайта