Информационная система
«Ёшкин Кот»

Скачать базу одним архивом
Скачать обновления
История создания базы
Карта сайта

Скачать Типовой проект 902-2-362.83 Альбом II. Архитектурно-строительная часть

Дата актуализации: 10.08.2017

Типовой проект 902-2-362.83

Альбом II. Архитектурно-строительная часть

Обозначение: Типовой проект 902-2-362.83
Обозначение англ: 902-2-362.83
Статус:не действует
Название рус.:Альбом II. Архитектурно-строительная часть
Дата добавления в базу:01.09.2013
Дата актуализации:05.05.2017
Оглавление:ТП 902-2-362.83-АС-1 Общие данные (начало)
ТП 902-2-362.83-АС-2 Общие данные (продолжение)
ТП 902-2-362.83-АС-9 Общие данные (окончание)
ТП 902-2-362.83-АС-10 План группы отстойников и коммуникаций
ТП 902-2-362.83-АС-11 Отстойник. План 2-2, сечения 1-1,3-3,4-4
ТП 902-2-362.83-АС-12 Отстойник. Сечения 5-5÷10-10
ТП 902-2-362.83-АС-13 Отстойник. Сечения 11-11÷15-15. Узел 1
ТП 902-2-362.83-АС-14 Отстойник. Днище. Армирование. Планы, сечения 1-1,2-2
ТП 902-2-362.83-АС-15 Отстойник. Днище. Армирование. Сечения 3-3÷7-7
ТП 902-2-362.83-АС-16 Отстойник. Днище. Армирование. Сечения 8-8÷11-11
ТП 902-2-362.83-АС-17 Отстойник. Схема расположения стеновых панелей. Узлы 1,2. Сечение 1-1
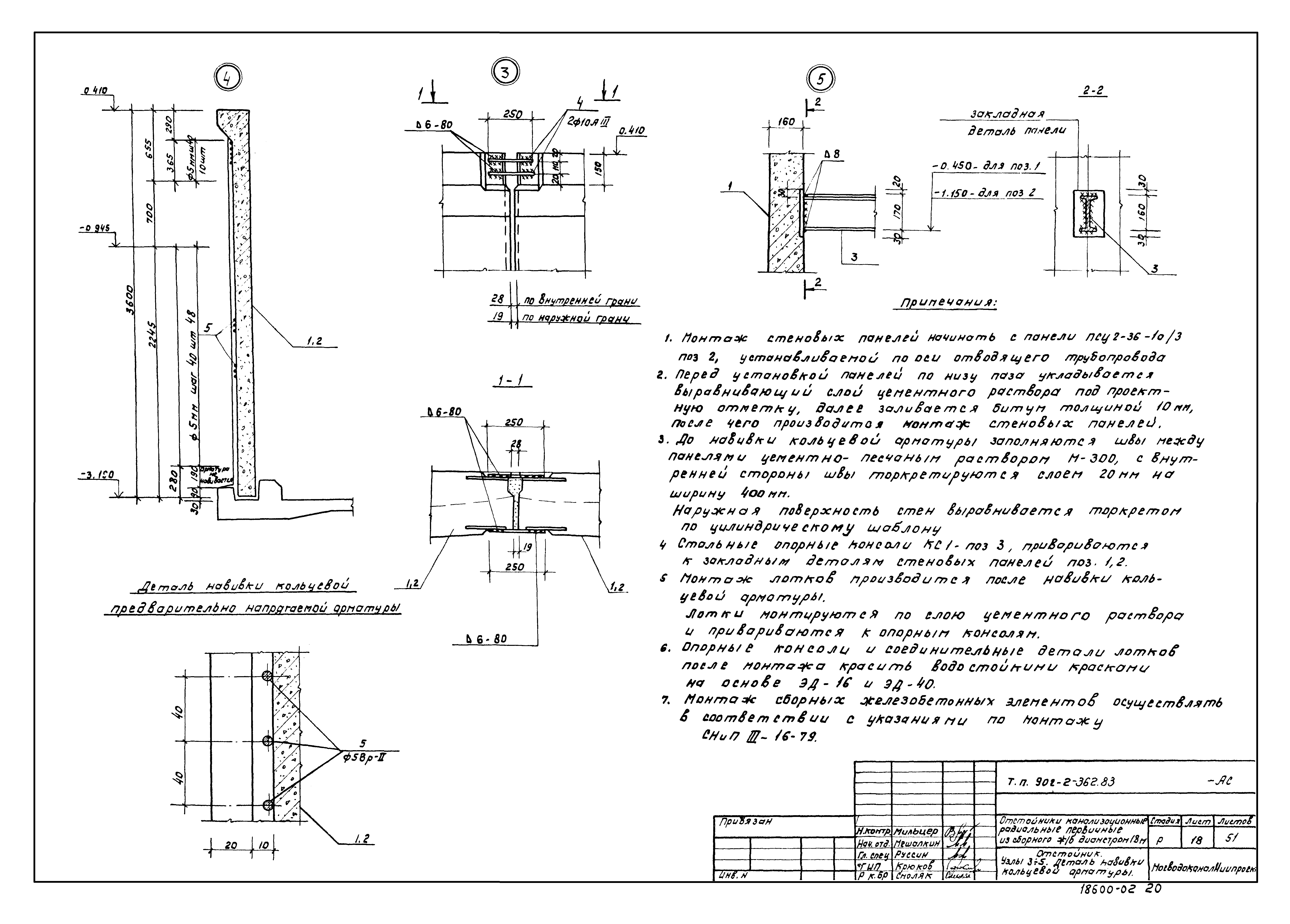
ТП 902-2-362.83-АС-18 Отстойник. Узлы 3-5. Деталь навивки кольцевой арматуры
ТП 902-2-362.83-АС-19 Отстойник. Схема расположения лотков. Узлы 6,7. Сечения
ТП 902-2-362.83-АС-20 Отстойник. Лоток ДОМ2 и борт БМ1. Армирование. Планы, сечения
ТП 902-2-362.83-АС-21 Распределительная чаша. Планы 1-1,2-2,5-5. Сечения 3-3,4-4,6-6
ТП 902-2-362.83-АС-22 Распределительная чаша. Армирование. Сечения 1-1÷4-4
ТП 902-2-362.83-АС-23 Распределительная чаша. Армирование. Сечения 5-5÷8-8. УМ1
ТП 902-2-362.83-АС-24 Жиросборник Ж-1. План 2-2. Сечение 1-1. План днища
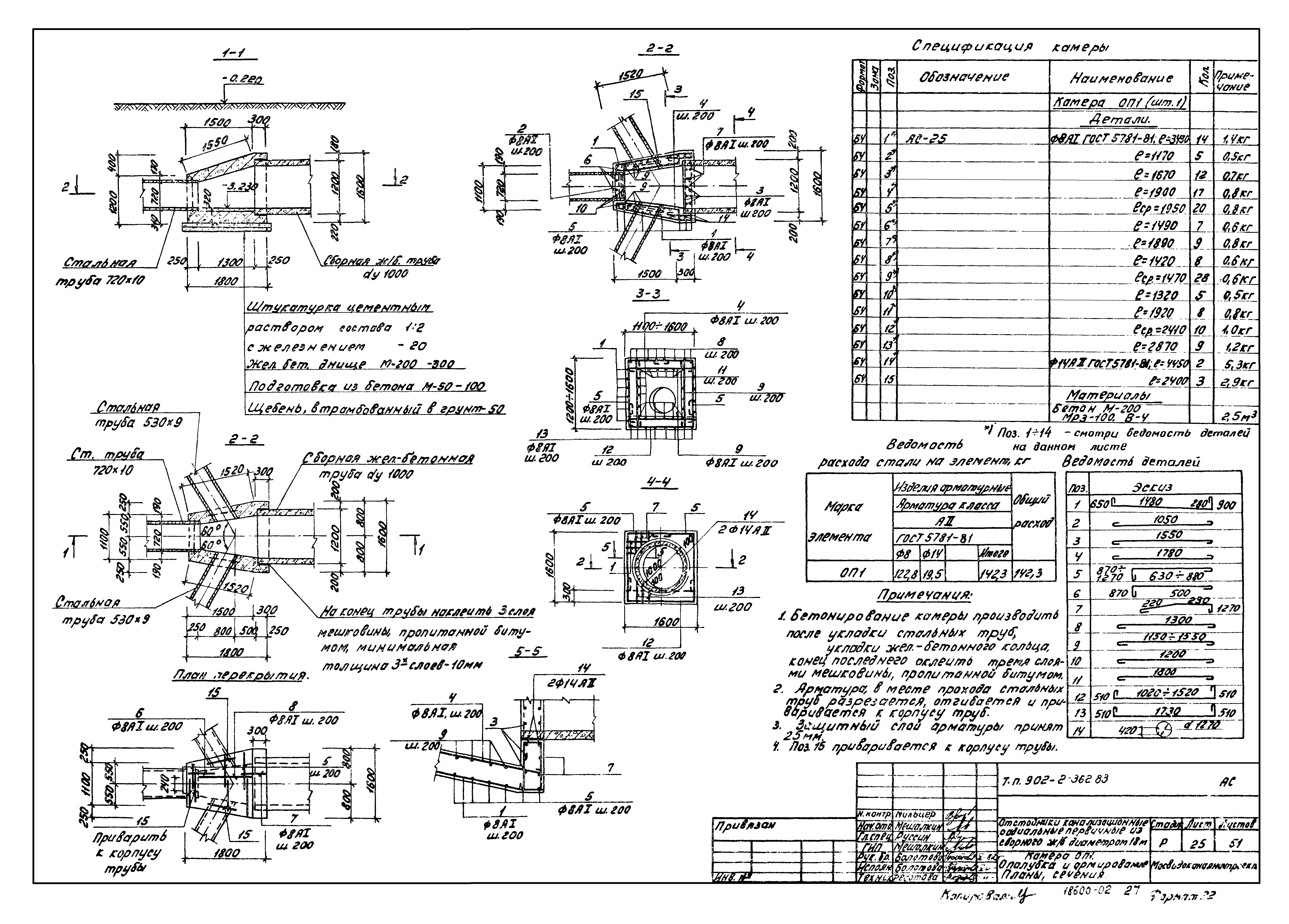
ТП 902-2-362.83-АС-25 Камера ОП1. Опалубка и армирование. Планы, сечения
ТП 902-2-362.83-АС-26 Насосная станция сырого осадка. Общие данные
ТП 902-2-362.83-АС-27 Насосная станция сырого осадка. Фасады 1-1,2-2,А-Б. План надземной части. Деталь А
ТП 902-2-362.83-АС-28 Насосная станция сырого осадка. Разрезы 1-1,2-2,3-3. План подземной части
ТП 902-2-362.83-АС-29 Насосная станция сырого осадка. Спецификации. Ведомости. Детали 1,2
ТП 902-2-362.83-АС-30 Насосная станция сырого осадка. Схема расположения стеновых панелей. Сечения 1-1÷5-5
ТП 902-2-362.83-АС-31 Насосная станция сырого осадка. Схема расположения стеновых панелей. Узлы 1-7
ТП 902-2-362.83-АС-32 Насосная станция сырого осадка. Днище. Опалубочный чертеж. План и сечения
ТП 902-2-362.83-АС-33 Насосная станция сырого осадка. Днище. Армирование. Планы. Сечение 1-1. Узлы
ТП 902-2-362.83-АС-34 Насосная станция сырого осадка. Днище. Армирование. Сечения 2-2÷4-4. Узел 1
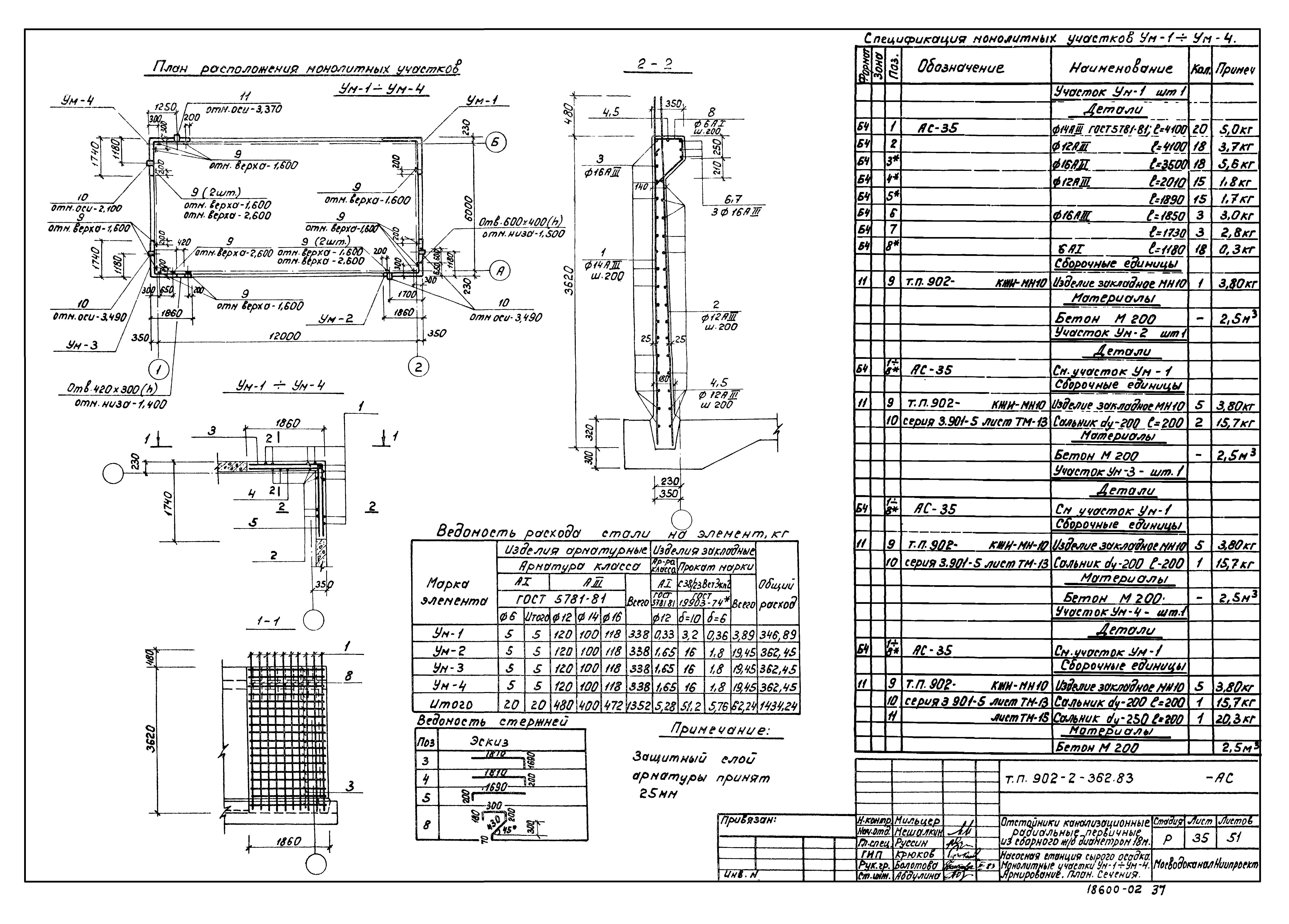
ТП 902-2-362.83-АС-35 Насосная станция сырого осадка. Монолитные участки УМ1-УМ4. Армирование. План. Сечения
ТП 902-2-362.83-АС-36 Насосная станция сырого осадка. Обвязочный пояс. ОПМ1. Армирование. План. Сечения 1-1÷5-5
ТП 902-2-362.83-АС-37 Насосная станция сырого осадка. План покрытия и планы перекрытия на отметках 0.000 и 2.250
ТП 902-2-362.83-АС-38 Насосная станция сырого осадка. План на отметке -3.740. План прокладки электрокабеля и расположения ФОМ1-ФОМ3
ТП 902-2-362.83-АС-39 Насосная станция сырого осадка. Помещение щитов. Планы 1-1,2-2. Сечения 3-3÷6-6
ТП 902-2-362.83-АС-40 Насосная станция сырого осадка. Общие данные
ТП 902-2-362.83-АС-41 Насосная станция сырого осадка. Монорельс МР1. План и узлы
ТП 902-2-362.83-АС-42 Насосная станция сырого осадка. Монорельс МР2. План, сечение и узлы
ТП 902-2-362.83-АС-43 Насосная станция сырого осадка. Площадки и лестницы. План, сечения, узлы
ТП 902-2-362.83-АС-44 Насосная станция сырого осадка. Подвеска и крепление технологических трубопроводов. План, сечения, узлы
ТП 902-2-362.83-АС-45 Отстойник. Вариант с термонатяжением арматуры. Схема расположения панелей консолей. Сечение. Сечение 1-1. Узлы 1,2
ТП 902-2-362.83-АС-46 Отстойник. Вариант с термонатяжением арматуры. Узлы 3,4. Армирование
ТП 902-2-362.83-АС-47 Отстойник. Вариант с термонатяжением арматуры. Узел 5. Армирование
ТП 902-2-362.83-АС-48 Отстойник. Вариант с термонатяжением арматуры. Узел 6. Детали сечений арматуры
ТП 902-2-362.83-АС-49 Отстойник. Вариант с термонатяжением арматуры. Узел 7. План 1-1. Сечения 2-2÷4-4
ТП 902-2-362.83-АС-50 Отстойник. Вариант с термонатяжением арматуры. План оборудования при нагреве трех стержней
ТП 902-2-362.83-АС-51 Отстойник. Вариант с термонатяжением арматуры. Принципиальная схема питания. План оборудования при натяжки одного стержня
Разработан: МосводоканалНИИпроект
Утверждён:17.11.1982 МосводоканалНИИпроект (191)
Расположен в:Техническая документация Строительство Справочные документы Типовые строительные конструкции, изделия и узлы Общероссийский строительный каталог Промышленные предприятия, здания и сооружения Здания и сооружения санитарно-технические Канализация Сооружения механической очистки Отстойники Отстойники радиальные первичные
Типовой проект 902-2-362.83Типовой проект 902-2-362.83Типовой проект 902-2-362.83Типовой проект 902-2-362.83Типовой проект 902-2-362.83Типовой проект 902-2-362.83Типовой проект 902-2-362.83Типовой проект 902-2-362.83Типовой проект 902-2-362.83Типовой проект 902-2-362.83Типовой проект 902-2-362.83Типовой проект 902-2-362.83Типовой проект 902-2-362.83Типовой проект 902-2-362.83Типовой проект 902-2-362.83Типовой проект 902-2-362.83Типовой проект 902-2-362.83Типовой проект 902-2-362.83Типовой проект 902-2-362.83Типовой проект 902-2-362.83Типовой проект 902-2-362.83Типовой проект 902-2-362.83Типовой проект 902-2-362.83Типовой проект 902-2-362.83Типовой проект 902-2-362.83Типовой проект 902-2-362.83Типовой проект 902-2-362.83Типовой проект 902-2-362.83Типовой проект 902-2-362.83Типовой проект 902-2-362.83Типовой проект 902-2-362.83Типовой проект 902-2-362.83Типовой проект 902-2-362.83Типовой проект 902-2-362.83Типовой проект 902-2-362.83Типовой проект 902-2-362.83Типовой проект 902-2-362.83Типовой проект 902-2-362.83Типовой проект 902-2-362.83Типовой проект 902-2-362.83Типовой проект 902-2-362.83Типовой проект 902-2-362.83Типовой проект 902-2-362.83Типовой проект 902-2-362.83Типовой проект 902-2-362.83Типовой проект 902-2-362.83Типовой проект 902-2-362.83Типовой проект 902-2-362.83Типовой проект 902-2-362.83Типовой проект 902-2-362.83Типовой проект 902-2-362.83Типовой проект 902-2-362.83Типовой проект 902-2-362.83Типовой проект 902-2-362.83

© 2013 Ёшкин Кот :-) Карта сайта