Информационная система
«Ёшкин Кот»

Скачать базу одним архивом
Скачать обновления
История создания базы
Карта сайта

Скачать Типовой проект 902-2-322 Альбом III. Часть 2. Блок емкостей АМ-560. Контактные резервуары

Дата актуализации: 10.08.2017

Типовой проект 902-2-322

Альбом III. Часть 2. Блок емкостей АМ-560. Контактные резервуары

Обозначение: Типовой проект 902-2-322
Обозначение англ: 902-2-322
Статус:действует
Название рус.:Альбом III. Часть 2. Блок емкостей АМ-560. Контактные резервуары
Дата добавления в базу:01.09.2013
Дата актуализации:05.05.2017
Дата введения:29.09.1978
Оглавление:ТП 902-2-322 Содержание альбома
ТП 902-2-322-КГ-1 Общие данные
ТП 902-2-322-КГ Технологическая часть
ТП 902-2-322 Блок емкостей
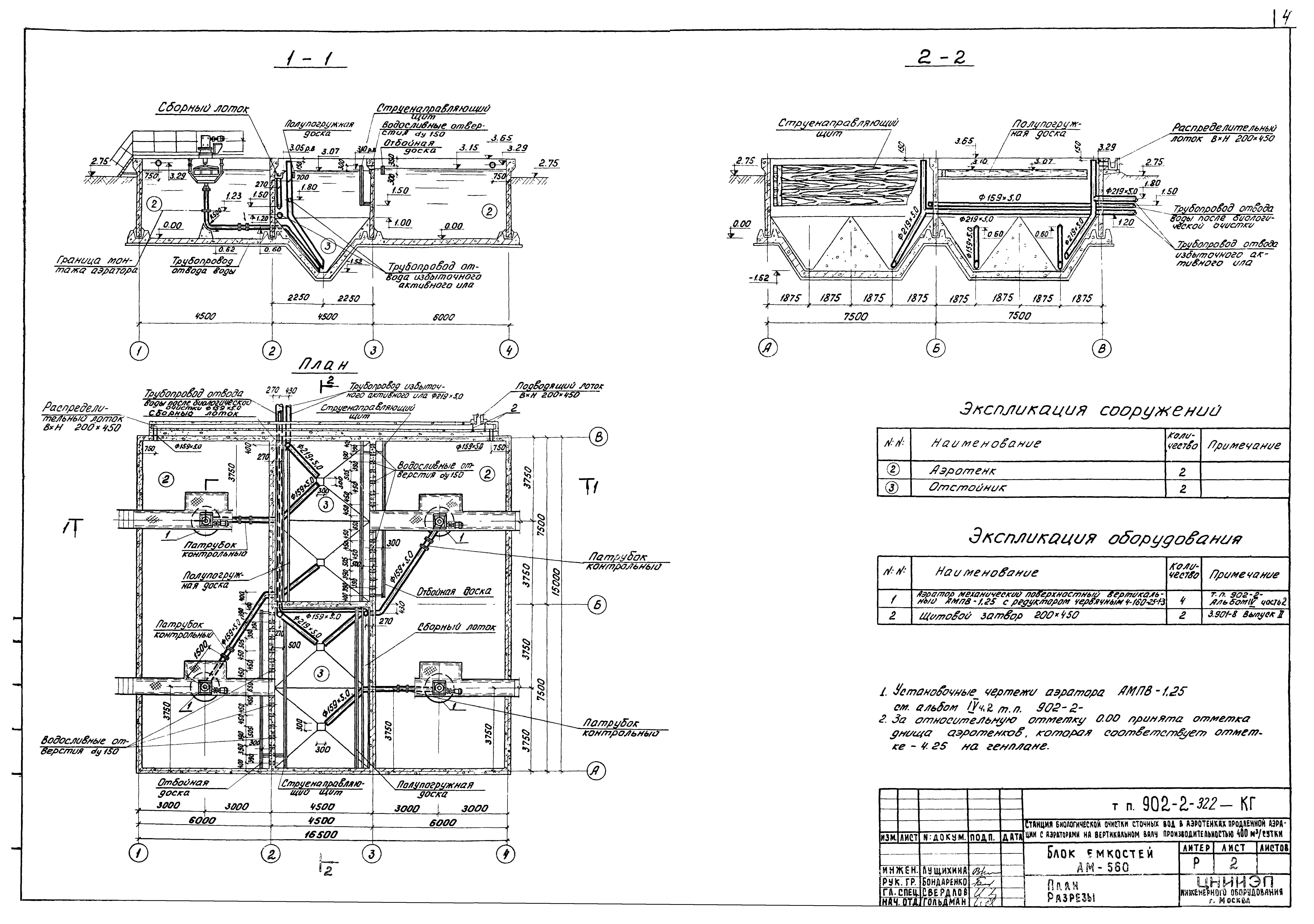
ТП 902-2-322-КГ-2 План. Разрезы
ТП 902-2-322 Контактные резервуары
ТП 902-2-322-КГ-3 План. Разрезы
ТП 902-2-322-КЖ Конструкции железобетонные
ТП 902-2-322-КЖ-1 Маркировочная схема стеновых панелей. Маркировочная схема лотков и ходовых мостиков. Разрезы 1-1;2-2
ТП 902-2-322-КЖ-2 Разрез 3-3. Узлы. Спецификация
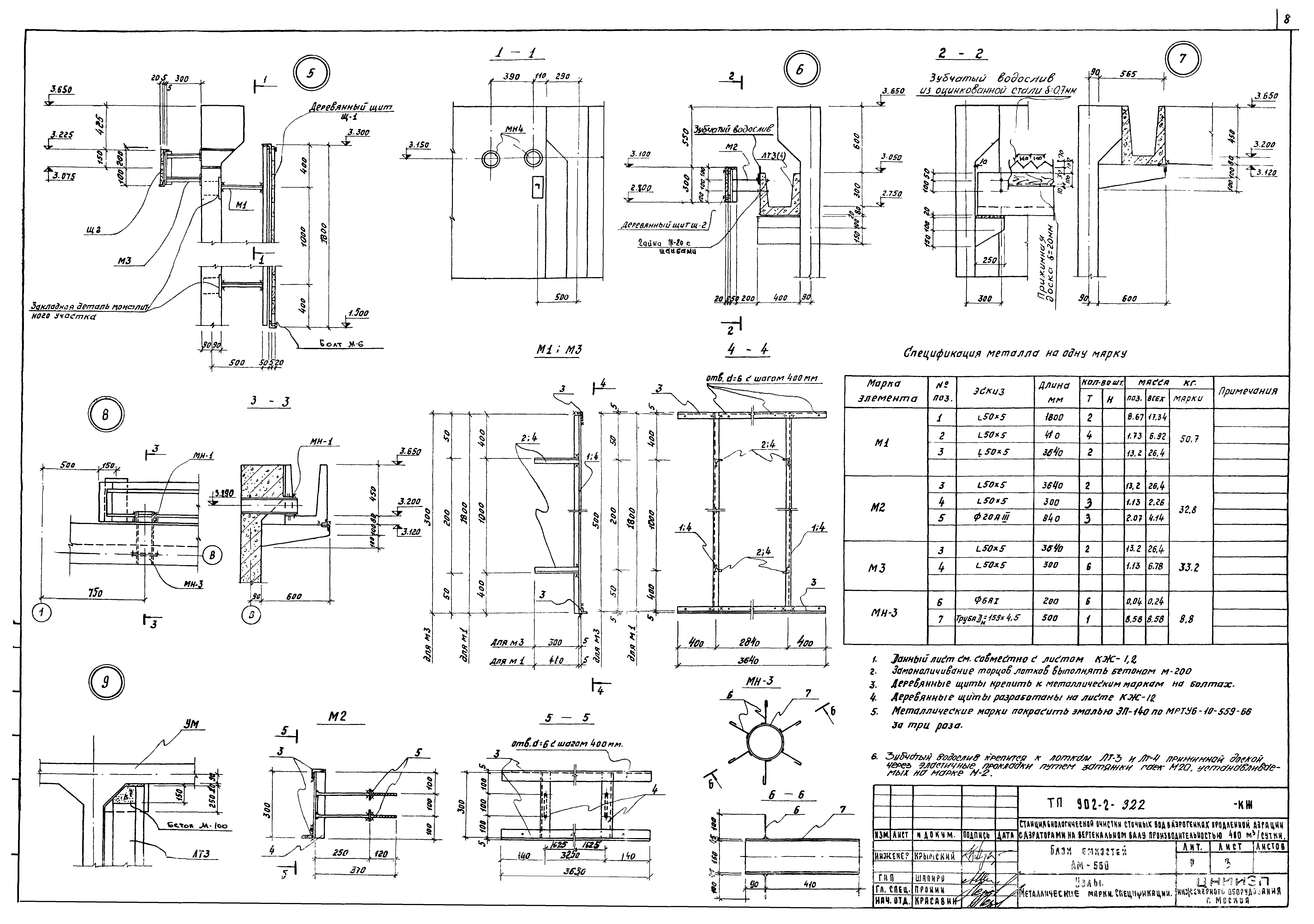
ТП 902-2-322-КЖ-3 Узлы. Металлические марки. Спецификация
ТП 902-2-322-КЖ-4 План днища. Разрезы 1-1÷3-3. Узлы 1-5
ТП 902-2-322-КЖ-5 Днище. Армирование. План раскладки верхних и нижних сеток. План раскладки каркасов. Разрезы
ТП 902-2-322-КЖ-6 Днище. Армирование. Узлы. Разрезы. Спецификации
ТП 902-2-322-КЖ-7 Днище. Армирование. Сетки. Каркасы. Спецификации
ТП 902-2-322-КЖ-8 Монолитные конструкции. Опалубочный чертеж
ТП 902-2-322-КЖ-9 Монолитные конструкции. Армирование
ТП 902-2-322-КЖ-10 Монолитные конструкции. Арматурные сетки С1-С6. Спецификации
ТП 902-2-322-КЖ-11 Монолитные конструкции. Спецификации
ТП 902-2-322-КЖ-12 Сборные железобетонные конструкции
ТП 902-2-322-КЖ-13 Ходовые мостики
ТП 902-2-322-ЭЛ Электротехническая часть
ТП 902-2-322-ЭЛ-1 Общие данные
Разработан: ЦНИИЭП иженерного оборудования
Утверждён:19.07.1977 Госгражданстрой (Gosgrazhdanstroy 144)
Расположен в:Техническая документация Строительство Справочные документы Типовые строительные конструкции, изделия и узлы Общероссийский строительный каталог Промышленные предприятия, здания и сооружения Здания и сооружения санитарно-технические Канализация Сооружения биологической (биохимической) очистки Станции биологической очистки сточных вод
Типовой проект 902-2-322Типовой проект 902-2-322Типовой проект 902-2-322Типовой проект 902-2-322Типовой проект 902-2-322Типовой проект 902-2-322Типовой проект 902-2-322Типовой проект 902-2-322Типовой проект 902-2-322Типовой проект 902-2-322Типовой проект 902-2-322Типовой проект 902-2-322Типовой проект 902-2-322Типовой проект 902-2-322Типовой проект 902-2-322Типовой проект 902-2-322Типовой проект 902-2-322Типовой проект 902-2-322Типовой проект 902-2-322Типовой проект 902-2-322Типовой проект 902-2-322

© 2013 Ёшкин Кот :-) Карта сайта