Скачать Типовой проект 903-1-225.86 Альбом 10.6. Металлоконструкции топливоподачи. Конвейеры ленточные № 4, 5 (из ТП 903-1-224.86)Дата актуализации: 10.08.2017 Типовой проект 903-1-225.86
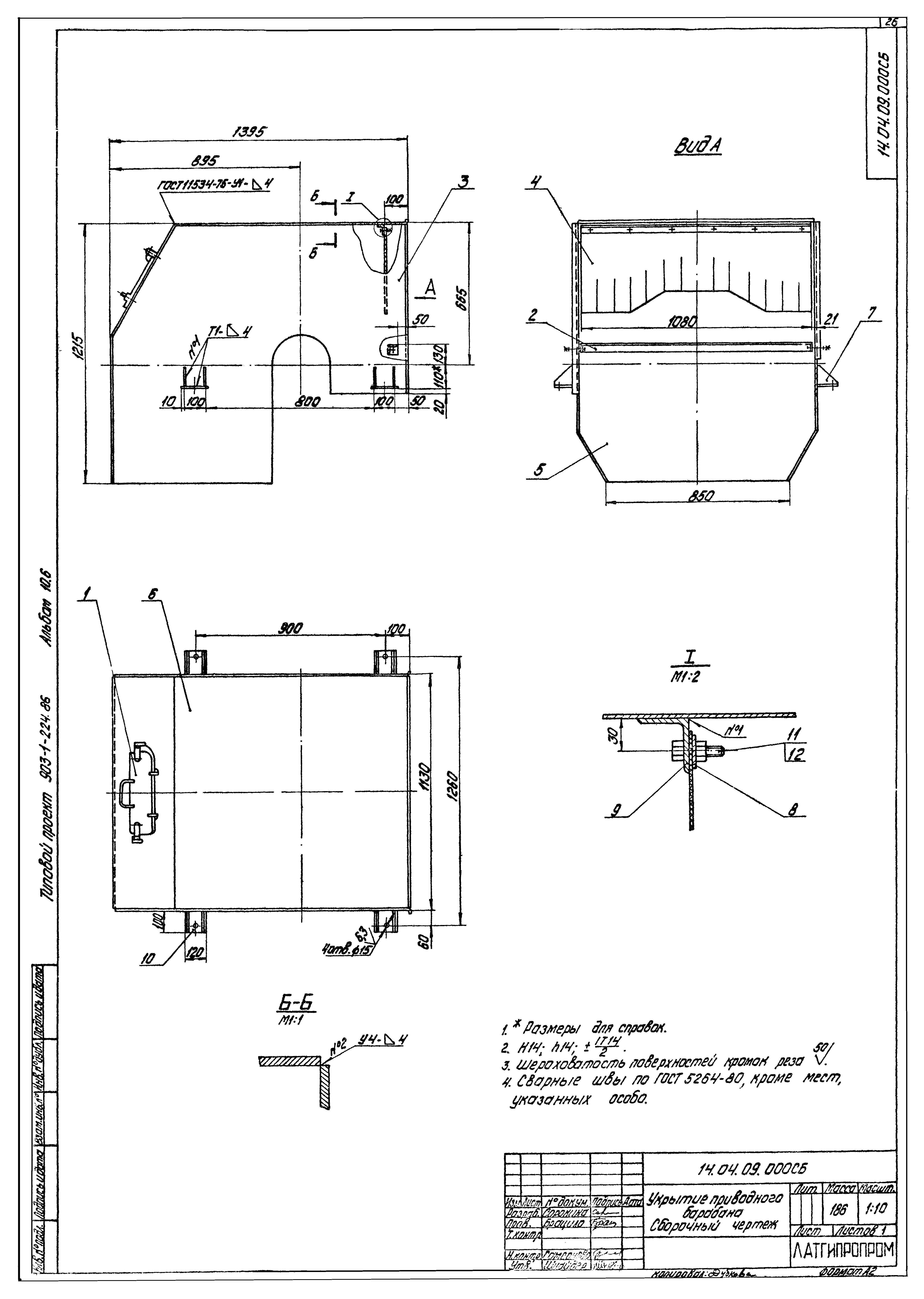
Альбом 10.6. Металлоконструкции топливоподачи. Конвейеры ленточные № 4, 5 (из ТП 903-1-224.86)Обозначение: | Типовой проект 903-1-225.86 | Обозначение англ: | 903-1-225.86 | Статус: | действует | Название рус.: | Альбом 10.6. Металлоконструкции топливоподачи. Конвейеры ленточные № 4, 5 (из ТП 903-1-224.86) | Дата добавления в базу: | 01.09.2013 | Дата актуализации: | 05.05.2017 | Оглавление: | ТП 903-1-224.86 Содержание альбома ТП 903-1-224.86 14.04.00.000 Конвейер ленточный желобчатый 8050-80 L=22750 № 4 ТП 903-1-224.86 14.04.00.000 СБ Конвейер ленточный желобчатый 8050-80 L=22750 № 4. Сборочный чертеж ТП 903-1-224.86 14.04.01.000 Воронка от сбрасывателя ТП 903-1-224.86 14.04.01.001 Уголок ТП 903-1-224.86 14.04.01.000 СБ Воронка от сбрасывателя. Сборочный чертеж ТП 903-1-224.86 14.04.02.000 Кронштейн ТП 903-1-224.86 14.04.02.001 Стойка ТП 903-1-224.86 14.04.02.000 СБ Кронштейн. Сборочный чертеж ТП 903-1-224.86 14.04.03.000 СБ Металлоконструкция конвейера. Сборочный чертеж ТП 903-1-224.86 14.04.03.000 Металлоконструкция конвейера ТП 903-1-224.86 14.04.03.100 Секция загрузочная ТП 903-1-224.86 14.04.03.100 СБ Секция загрузочная. Сборочный чертеж ТП 903-1-224.86 14.04.03.200 Секция головная ТП 903-1-224.86 14.04.03.200 СБ Секция головная. Сборочный чертеж ТП 903-1-224.86 14.04.03.300 Секция средней части ТП 903-1-224.86 14.04.03.300 СБ Секция средней части. Сборочный чертеж ТП 903-1-224.86 14.04.03.400 Секция средней части ТП 903-1-224.86 14.04.03.400 СБ Секция средней части. Сборочный чертеж ТП 903-1-224.86 14.04.03.500 Стойка Н=365 ТП 903-1-224.86 14.04.03.501 Стойка ТП 903-1-224.86 14.04.03.500 СБ Стойка Н=365. Сборочный чертеж ТП 903-1-224.86 14.04.04.000 СБ Ограждение конвейера и устройство аварийное выключающее в сборе. Сборочный чертеж ТП 903-1-224.86 14.04.04.000 Ограждение конвейера и устройство аварийное выключающее в сборе ТП 903-1-224.86 14.04.04.001 Скоба ТП 903-1-224.86 14.04.04.002 Уголок ТП 903-1-224.86 14.04.04.100 Панель ограждения ТП 903-1-224.86 14.04.04.100 СБ Панель ограждения. Сборочный чертеж ТП 903-1-224.86 14.04.05.000 Ограждение муфты ТП 903-1-224.86 14.04.05.001 Обечайка ТП 903-1-224.86 14.04.05.000 СБ Ограждение муфты. Сборочный чертеж ТП 903-1-224.86 14.04.06.000 СБ Рама натяжки. Сборочный чертеж ТП 903-1-224.86 14.04.06.000 Рама натяжки ТП 903-1-224.86 14.04.07.000 Рама привода ТП 903-1-224.86 14.04.07.001 Связь ТП 903-1-224.86 14.04.07.000 СБ Рама привода. Сборочный чертеж ТП 903-1-224.86 14.04.08.000 Рама приводного барабана ТП 903-1-224.86 14.04.08.001 Косынка ТП 903-1-224.86 14.04.08.002 Косынка ТП 903-1-224.86 14.04.08.000 СБ Рама приводного барабана. Сборочный чертеж ТП 903-1-224.86 14.04.09.000 Укрытие приводного барабана ТП 903-1-224.86 14.04.09.001 Боковина ТП 903-1-224.86 14.04.09.002 Завеса ТП 903-1-224.86 14.04.09.003 Боковина ТП 903-1-224.86 14.04.09.000 СБ Укрытие приводного барабана. Сборочный чертеж ТП 903-1-224.86 14.04.09.004 Лист верхний ТП 903-1-224.86 14.04.09.005 Косынка ТП 903-1-224.86 14.04.09.100 Связь поперечная ТП 903-1-224.86 14.04.09.100 СБ Связь поперечная. Сборочный чертеж ТП 903-1-224.86 14.05.00.000 Конвейер ленточный желобчатый 8050-80 L=22750 № 5 ТП 903-1-224.86 14.05.00.000 СБ Конвейер ленточный желобчатый 8050-80 L=22750 № 5. Сборочный чертеж ТП 903-1-224.86 14.05.01.000 СБ Ограждение конвейера и устройство аварийное выключающее в сборе. Сборочный чертеж ТП 903-1-224.86 14.05.01.000 Ограждение конвейера и устройство аварийное выключающее в сборе ТП 903-1-224.86 14.05.02.000 Рама привода ТП 903-1-224.86 14.05.02.001 Связь ТП 903-1-224.86 14.05.02.000 СБ Рама привода. Сборочный чертеж | Разработан: | Латгипропром
| Утверждён: | 20.05.1986 Госстрой СССР (Государственный комитет Совета Министров СССР по делам строительства) (USSR Gosstroy АЧ-30)
| Расположен в: |
|
                                 
|