Информационная система
«Ёшкин Кот»

Скачать базу одним архивом
Скачать обновления
История создания базы
Карта сайта

Скачать Типовой проект 903-1-225.86 Альбом 2.4. Часть 2. Металлоконструкции газовоздухопроводов для блок-секции котлоагрегата КВ-ТС-10 (вариант без воздухоподогревателя) (из ТП 903-1-224.86)

Дата актуализации: 10.08.2017

Типовой проект 903-1-225.86

Альбом 2.4. Часть 2. Металлоконструкции газовоздухопроводов для блок-секции котлоагрегата КВ-ТС-10 (вариант без воздухоподогревателя) (из ТП 903-1-224.86)

Обозначение: Типовой проект 903-1-225.86
Обозначение англ: 903-1-225.86
Статус:действует
Название рус.:Альбом 2.4. Часть 2. Металлоконструкции газовоздухопроводов для блок-секции котлоагрегата КВ-ТС-10 (вариант без воздухоподогревателя) (из ТП 903-1-224.86)
Дата добавления в базу:01.10.2014
Дата актуализации:05.05.2017
Оглавление:Газоходы котла КВ-ТС-10
   65.120.11.003 Пластина
   64.86.10.000 Лапа
   64.86.10.000СБ Лапа
Топливоподача и золоудаление котла КВ-ТС-10
   12.02.01.000 Короб (левый)
   12.02.01.000СБ Короб (левый)
   12.02.01.001 Стенка
   12.02.01.002 Стенка
   12.02.01.100 Фланец
   12.02.01.100СБ Фланец
   12.02.02.000 Короб (правый)
   12.02.03.000 Переход
   12.02.02.000СБ Короб (правый)
   12.02.03.000СБ Переход
   12.02.03.001 Стенка
   12.02.03.002 Стенка
   12.02.04.000 Переход
   12.02.04.001 Стенка
   12.02.04.000СБ Переход
   12.02.04.002 Стенка
   12.02.05.000 Бункер
   12.02.05.000СБ Бункер
   12.02.05.001 Стенка
   12.02.05.002 Стенка
   12.02.05.003 Стенка
   12.02.05.004 Фланец
   12.02.07.001 Крышка
   12.02.07.002 Дозатор
   12.02.07.000 Короб с задвижкой
   12.02.07.100 Короб
   12.02.07.000СБ Короб с задвижкой
   12.02.07.100СБ Короб
   12.02.07.101 Стенка
   12.02.07.200 Короб
   12.02.07.200СБ Короб
   12.02.07.300 Задвижка
   12.02.07.300СБ Задвижка
   12.02.08.000 Переход
   12.02.08.100 Переход
   12.02.08.000СБ Переход
   12.02.08.100СБ Переход
   12.02.08.101 Переход
   12.02.08.200 Переход
   12.02.08.201 Стенка
   12.02.08.200СБ Переход
   12.02.08.300 Короб
   12.02.09.000 Желоб
   12.02.08.300СБ Короб
   12.02.09.000СБ Желоб
   12.02.10.000 Фланец
   12.02.10.000СБ Фланец
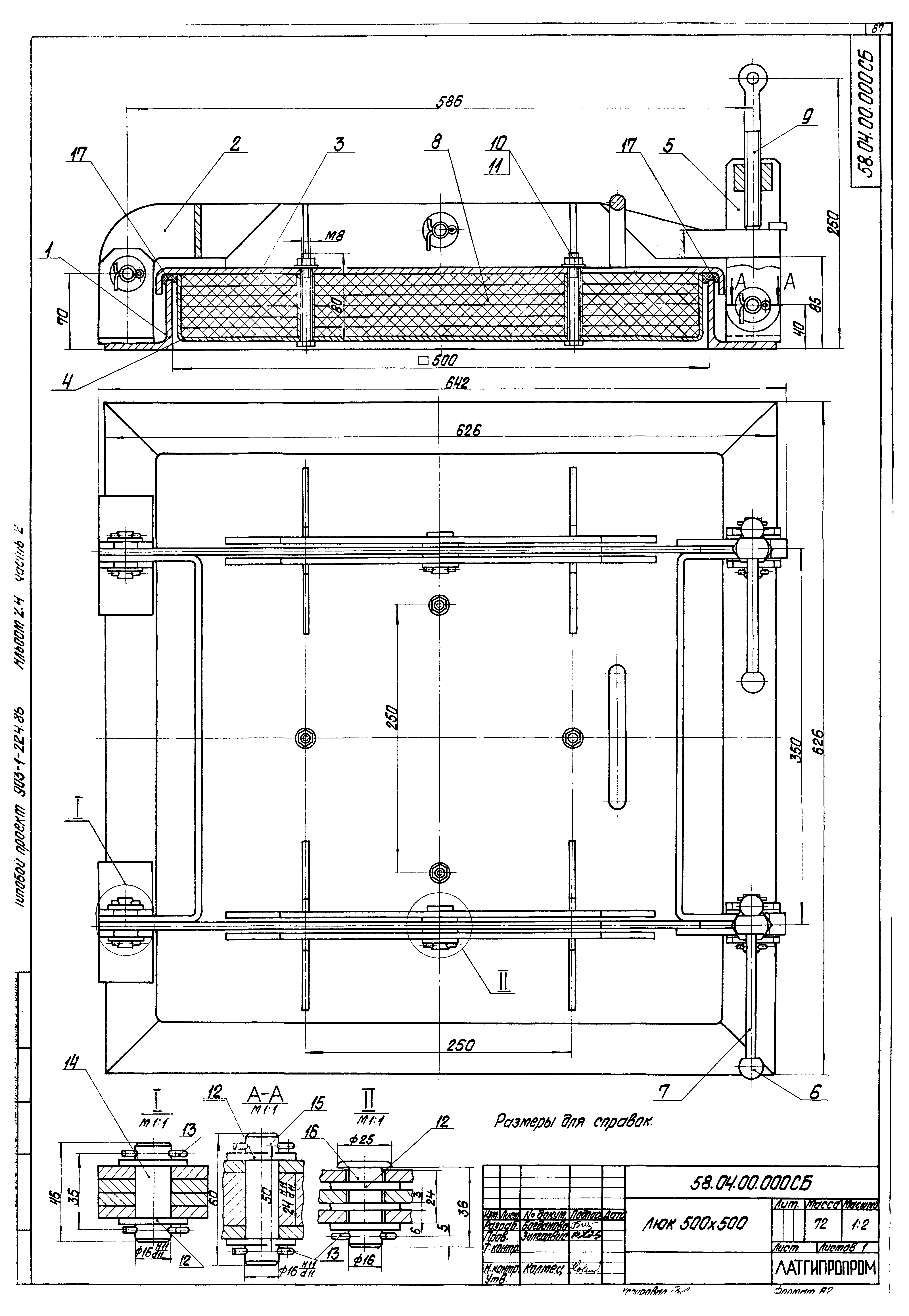
   58.04.00.000 Люк 500х500
   58.04.00.000СБ Люк 500х500
   58.04.00.001 Шарик
   58.04.00.002 Ручка
   58.04.00.003 Прокладка
   58.04.01.000 Рама
   58.04.01.001 Ушко
   58.04.01.000СБ Рама
   58.04.01.002 Ушко
   58.04.02.000 Рычаг
   58.04.02.000СБ Рычаг
   58.04.02.001 Скоба
   58.04.02.002 Рычаг
   58.04.02.003 Скоба
   58.04.03.000 Крышка
   58.04.03.000СБ Крышка
   58.04.03.001 Крышка
   58.04.04.000 Ящик
   58.04.04.000СБ Ящик
   58.04.05.000 Вилка
   58.04.05.000СБ Вилка
   12.02.11.000 Привод заслонки
   12.02.11.001 Ручка
   12.02.11.000СБ Привод заслонки
   12.02.11.100 Скоба
   12.02.18.000 Рама
   12.02.11.100СБ Скоба
   12.02.18.000СБ Рама
   12.02.20.000 Рама
   12.02.20.001 Балка
   12.02.20.000СБ Рама
   12.02.22.000 Рама
   12.02.22.100 Рама
   12.02.22.100СБ Рама
   12.02.22.000СБ Рама
   12.02.21.300СБ Ограждение
   12.02.21.200 Скоба
   12.02.21.300 Ограждение
   12.02.21.200 Скоба
   12.02.23.000 Ограждение каната
   12.02.23.000СБ Ограждение каната
   12.02.24.000 Металлоконструкция крепления блоков
   12.02.24.100 Рама
   12.02.24.000СБ Металлоконструкция крепления блоков
   12.02.24.100СБ Рама
   12.02.24.200СБ Опора
   12.02.24.200 Опора
Бачок-расширитель
   21.13.00.000 Бачок-расширитель
   21.13.00.000СБ Бачок-расширитель
   21.13.01.000 Бачок-расширитель
   21.13.01.100 Лапа
   21.13.01.000СБ Бачок-расширитель
   21.13.01.001 Корпус
   21.13.01.002 Патрубок
   21.13.01.003 Днище
   21.13.01.100СБ Лапа
   21.13.01.101 Пластина
   21.13.02.000 Рама
   21.13.02.000СБ Рама
   21.13.02.001 Балка
Переход, фланец
   12.02.12.000 Переход
   12.02.12.002 Фланец
   12.02.12.000СБ Переход
   12.02.12.001 Переход
Разработан: Латгипропром
Утверждён:20.05.1986 Госстрой СССР (Государственный комитет Совета Министров СССР по делам строительства) (USSR Gosstroy АЧ-29)
Расположен в:Техническая документация Строительство Справочные документы Типовые строительные конструкции, изделия и узлы Общероссийский строительный каталог Промышленные предприятия, здания и сооружения Здания и сооружения санитарно-технические Теплоснабжение Котельные установки Закрытые системы теплоснабжения Топливо - каменные и бурые угли
Типовой проект 903-1-225.86Типовой проект 903-1-225.86Типовой проект 903-1-225.86Типовой проект 903-1-225.86Типовой проект 903-1-225.86Типовой проект 903-1-225.86Типовой проект 903-1-225.86Типовой проект 903-1-225.86Типовой проект 903-1-225.86Типовой проект 903-1-225.86Типовой проект 903-1-225.86Типовой проект 903-1-225.86Типовой проект 903-1-225.86Типовой проект 903-1-225.86Типовой проект 903-1-225.86Типовой проект 903-1-225.86Типовой проект 903-1-225.86Типовой проект 903-1-225.86Типовой проект 903-1-225.86Типовой проект 903-1-225.86Типовой проект 903-1-225.86Типовой проект 903-1-225.86Типовой проект 903-1-225.86Типовой проект 903-1-225.86Типовой проект 903-1-225.86Типовой проект 903-1-225.86Типовой проект 903-1-225.86Типовой проект 903-1-225.86Типовой проект 903-1-225.86Типовой проект 903-1-225.86Типовой проект 903-1-225.86Типовой проект 903-1-225.86Типовой проект 903-1-225.86Типовой проект 903-1-225.86Типовой проект 903-1-225.86Типовой проект 903-1-225.86Типовой проект 903-1-225.86Типовой проект 903-1-225.86Типовой проект 903-1-225.86Типовой проект 903-1-225.86Типовой проект 903-1-225.86Типовой проект 903-1-225.86Типовой проект 903-1-225.86Типовой проект 903-1-225.86

© 2013 Ёшкин Кот :-) Карта сайта